
| 賃料 | 予想金額:83,000〜103,000円程度 | 管理費 | 予想金額:3,000〜7,000円程度 |
| 礼金/敷金 | 非公開(アーカイブ) | 平米数 | 21.05㎡ |
| 初期費用概算(参考) | 目安:281,500〜381,500 円 | みなし賃料(月額・参考) | 92,969〜112,969 円 |
| 備考 | 本ページは過去募集のアーカイブです。表示の金額は周辺相場・過去募集を踏まえた参考レンジであり、実際の契約金額・条件ではありません。 | ||
※上記みなし賃料(月額)は仲介手数料割引・無料&キャッシュバックを加味した高級賃貸バイブル限定の金額です。一般的なみなし賃料とは異なります。
【建物ページ】アーバイル東京ネストの詳細・最新空室はこちら▶▶選ばれる理由
仲介手数料無料・キャンペーン情報(毎月15名様限定)
〇仲介手数料割引キャンペーン
アーバイル東京ネスト 1101の口コミ・レビュー
アーバイル東京ネスト 1101。この響きには、未来と過去が交錯する街、東京中央区八丁堀の中心で、優雅な生活の舞台が用意されています。21.05㎡のこの空間は、まるで一つの芸術作品のように、あなたの生活を豊かに彩るための絶妙なバランスが保たれています。
イメージしてください。朝日が東の窓から差し込むと、部屋全体が金色に染まり、まるで新しい一日の始まりを告げる楽器の音色のように、静かに響く時間が流れ…アーバイル東京ネスト 1101。この響きには、未来と過去が交錯する街、東京中央区八丁堀の中心で、優雅な生活の舞台が用意されています。21.05㎡のこの空間は、まるで一つの芸術作品のように、あなたの生活を豊かに彩るための絶妙なバランスが保たれています。
イメージしてください。朝日が東の窓から差し込むと、部屋全体が金色に染まり、まるで新しい一日の始まりを告げる楽器の音色のように、静かに響く時間が流れます。そんな空間で起きる目覚めは、まるで穀物の香ばしい香りが漂う田園風景の中で目覚める幸せな瞬間を思い起こさせ、あなたの心を優しく包み込みます。
アーバイル東京ネスト 1101の魅力はその立地にもあります。八丁堀駅からわずか徒歩2分、都会の喧騒の中にありながら、静穏さも併せ持つこの場所は、まさに現代のオアシス。周辺には歴史が息づく道があり、古き良き時代の名残が感じられる風情があります。近くの隅田川の流れに寄り添うように散策すれば、流れる水の音に耳を澄まし、心が穏やかになるのを感じられるでしょう。
設備もまた、生活を豊かにするためのパートナーです。TVモニターホンの安心感は、まるで親しい友人が訪ねてきた時のあたたかい笑顔のようです。また、エレベーターで軽やかに上がる瞬間、まるで空を飛ぶような高揚感に包まれます。そして、オートロックで守られた空間は、あなたのプライベートをしっかりと保護してくれる親しい守護者のようです。
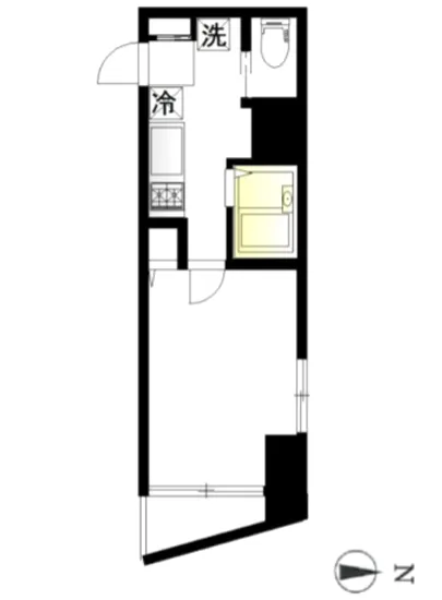
アーバイル東京ネスト 1101の1Kの間取りは、あなた自身の物語を描くためのキャンバス。洋室は、自由にアレンジできるパーソナルな空間として、あなたのアイデンティティを表現する場所。お気に入りのアート作品や書籍を並べれば、そこはまるで美術館の一角のように変わります。あなたが求める心地よさやデザインを、好きなように形作ることができるのです。
日々の暮らしには、小さな幸せがたくさん散りばめられています。たとえば、夕暮れ時、窓際に座って、街の灯りや人々の営みを眺めるその瞬間。温かい紅茶の香りがあなたの心を癒しながら、窓の外では東京の夜が静かに幕を上げ、まるで映画のワンシーンのごとく、あなたの一日を締めくくってくれます。
アーバイル東京ネスト 1101は、ただの住まいではありません。そこに暮らす人々に、新たな発見や心躍る瞬間を提供する、まるで旅するかのような生活を約束する場所です。ここでの生活は、まるであなた自身が主役となる物語の始まりなのです。さあ、この特別な空間で、あなたの新しい物語を紡いでみませんか。
イメージしてください。朝日が東の窓から差し込むと、部屋全体が金色に染まり、まるで新しい一日の始まりを告げる楽器の音色のように、静かに響く時間が流れ…アーバイル東京ネスト 1101。この響きには、未来と過去が交錯する街、東京中央区八丁堀の中心で、優雅な生活の舞台が用意されています。21.05㎡のこの空間は、まるで一つの芸術作品のように、あなたの生活を豊かに彩るための絶妙なバランスが保たれています。
イメージしてください。朝日が東の窓から差し込むと、部屋全体が金色に染まり、まるで新しい一日の始まりを告げる楽器の音色のように、静かに響く時間が流れます。そんな空間で起きる目覚めは、まるで穀物の香ばしい香りが漂う田園風景の中で目覚める幸せな瞬間を思い起こさせ、あなたの心を優しく包み込みます。
アーバイル東京ネスト 1101の魅力はその立地にもあります。八丁堀駅からわずか徒歩2分、都会の喧騒の中にありながら、静穏さも併せ持つこの場所は、まさに現代のオアシス。周辺には歴史が息づく道があり、古き良き時代の名残が感じられる風情があります。近くの隅田川の流れに寄り添うように散策すれば、流れる水の音に耳を澄まし、心が穏やかになるのを感じられるでしょう。
設備もまた、生活を豊かにするためのパートナーです。TVモニターホンの安心感は、まるで親しい友人が訪ねてきた時のあたたかい笑顔のようです。また、エレベーターで軽やかに上がる瞬間、まるで空を飛ぶような高揚感に包まれます。そして、オートロックで守られた空間は、あなたのプライベートをしっかりと保護してくれる親しい守護者のようです。
アーバイル東京ネスト 1101の1Kの間取りは、あなた自身の物語を描くためのキャンバス。洋室は、自由にアレンジできるパーソナルな空間として、あなたのアイデンティティを表現する場所。お気に入りのアート作品や書籍を並べれば、そこはまるで美術館の一角のように変わります。あなたが求める心地よさやデザインを、好きなように形作ることができるのです。
日々の暮らしには、小さな幸せがたくさん散りばめられています。たとえば、夕暮れ時、窓際に座って、街の灯りや人々の営みを眺めるその瞬間。温かい紅茶の香りがあなたの心を癒しながら、窓の外では東京の夜が静かに幕を上げ、まるで映画のワンシーンのごとく、あなたの一日を締めくくってくれます。
アーバイル東京ネスト 1101は、ただの住まいではありません。そこに暮らす人々に、新たな発見や心躍る瞬間を提供する、まるで旅するかのような生活を約束する場所です。ここでの生活は、まるであなた自身が主役となる物語の始まりなのです。さあ、この特別な空間で、あなたの新しい物語を紡いでみませんか。
バイブルスコア
バイブルスコア: 15.7
高級な物件でない場合は割高な物件です。。
※バイブルスコア詳細はこちら
バイブルスコアとは独自のAI機械学習技術を利用した物件評価システムで、物件のおすすめ度を示します。最高得点は100点で、スコアが高いほど、よりおすすめの物件と評価されています。
写真
契約条件
| 賃料 | 予想金額:83,000〜103,000円程度 | 管理費 | 予想金額:3,000〜7,000円程度 |
| 礼金 | 非公開(アーカイブ) | 敷金 | 非公開(アーカイブ) |
| フリーレント | なし | 平米数 | 21.05㎡ |
| 間取り | 1K | 大型収納 | |
| 契約期間 |
| 方角 | 東 / 北 |
| 更新料 | 契約形態 | 普通賃貸借契約 | |
| 取引態様 | 媒介 | 内見状況 | 入居中 |
| 入居時期 | 入居中 | SOHO・事務所 | |
| ペット | 間取り内訳 | 洋: | |
| キャンペーン情報・備考 | 本情報は賃料改定交渉の資料作成、収益物件の利回り試算、周辺エリアや最寄り駅の坪単価分析、次回募集開始時期の予測などにご活用いただけます。 | ||
※「どの不動産に頼めばいいのか分からない」「信頼できる営業マンの話を聞きたい」「一番親切な会社と契約したい」とお悩みの方におすすめなのが「高級賃貸バイブル」です。
高級賃貸バイブルは業界10年以上の熟練スタッフ群がお客様ファーストで対応します。
下記ボタンから、まずは無料でご相談下さい。
※内覧をご希望の際には、どうぞ物件のエントランス前にてお待ち合わせくださいませ。ご内覧後は、同じ場所でお別れとさせていただきます。お客様のご都合に合わせたスムーズなご案内を心がけておりますので、ご質問等がございましたら何なりとお申し付けください。 物件概要
| 物件名 |
| 築年月 |
|
|---|---|---|---|
| 所在地 | |||
| 交通 | |||
| 総戸数 |
| 総階数 |
|
| 構造 |
| ||
地図
物件までの道のりは、「拡大地図を表示」をクリックしてナビ機能をご利用ください。
部屋設備










建物設備

TVモニターホン

エレベーター

オートロック

宅配ボックス

敷地内ゴミ置場

管理人

駐輪場
アーバイル東京ネストの現在募集中のお部屋
- No rooms found for this property.




























