
| 賃料 | 予想金額:142,000〜162,000円程度 | 管理費 | 予想金額:8,000〜12,000円程度 |
| 礼金/敷金 | 非公開(アーカイブ) | 平米数 | 40.67㎡ |
| 初期費用概算(参考) | 目安:588,500〜688,500 円 | みなし賃料(月額・参考) | 162,135〜182,135 円 |
| 備考 | 本ページは過去募集のアーカイブです。表示の金額は周辺相場・過去募集を踏まえた参考レンジであり、実際の契約金額・条件ではありません。 | ||
※上記みなし賃料(月額)は仲介手数料割引・無料&キャッシュバックを加味した高級賃貸バイブル限定の金額です。一般的なみなし賃料とは異なります。
【建物ページ】ズーム渋谷笹塚の詳細・最新空室はこちら▶▶選ばれる理由
仲介手数料無料・キャンペーン情報(毎月15名様限定)
〇仲介手数料割引キャンペーン
ズーム渋谷笹塚 302の口コミ・レビュー
ズーム渋谷笹塚 302。あなたの生活の舞台となるこの特別な空間は、まるで洗練されたアート作品のように、四季折々の彩りを楽しむことができる贅沢な場所です。東京都渋谷区幡ヶ谷、都市の喧騒を背に、静謐な西と南の方角を向いて佇むこの物件は、あなたを包み込む温もりを持っています。
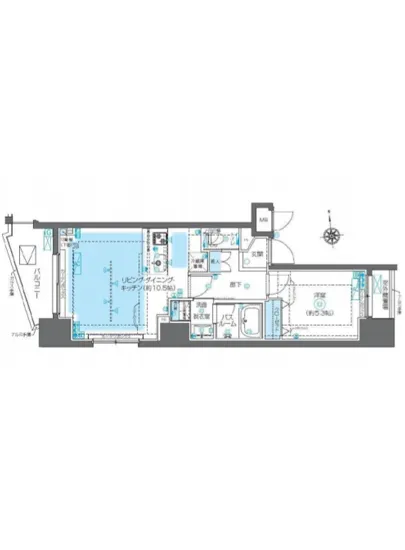
302号室に一歩足を踏み入れると、まず目に飛び込んでくるのは、明るく開放的なLDK(10.5帖)の広がりです。柔らかな陽の光が…ズーム渋谷笹塚 302。あなたの生活の舞台となるこの特別な空間は、まるで洗練されたアート作品のように、四季折々の彩りを楽しむことができる贅沢な場所です。東京都渋谷区幡ヶ谷、都市の喧騒を背に、静謐な西と南の方角を向いて佇むこの物件は、あなたを包み込む温もりを持っています。
302号室に一歩足を踏み入れると、まず目に飛び込んでくるのは、明るく開放的なLDK(10.5帖)の広がりです。柔らかな陽の光が差し込み、穏やかな風が心地よく肌を撫でることで、まるで優雅な映画のワンシーンにいるかのような気分を味わえます。窓からの眺望には、季節ごとに変わる街の景色が広がり、都会とは思えぬ自然との調和を感じることができるでしょう。
その奥には、5.3帖の洋室が静かに存在しています。ここは、まさにあなた専用の隠れ家。大切な人との心温まる語らいや、優雅に一人の時間を楽しむ場所として、どんなシーンにもふさわしい空間です。柔らかなカーテンからこぼれる光が、心地よい安堵感を与え、穏やかな香りのキャンドルを灯せば、そこには瞬時に特別な時間が広がります。
ズーム渋谷笹塚 302は、ただの住まいではありません。生活の一部として、あなたのストーリーを紡いでいくパートナーです。エレガントなデザイナーズ仕様は、個々の美意識を満たし、視覚的な満足感を与えてくれることでしょう。オートロックやTVモニターホンといったセキュリティー設備も整っており、安全面でも心強い存在です。
周囲には、歴史ある街並みと現代の文化が融合する魅力的な環境が広がっています。京王線 笹塚駅からわずか徒歩9分という立地は、都会でありながらもゆったりとした時間の流れを感じることができます。近隣には、アートギャラリーやカフェが点在し、心を豊かにしてくれるスポットがいっぱいです。ひとたび街を歩けば、匂い立つ新鮮なコーヒーや、はちみつの甘さ、そして緑の香りが漂い、五感を刺激してくれることでしょう。
また、バイク置場や駐輪場、宅配ボックスも完備されているため、忙しい日常の中でもあなたのライフスタイルをしっかりサポートしてくれます。管理人さんの温かな笑顔が迎えてくれ、毎日の暮らしに安心感を与えてくれるのも嬉しいポイントです。
ズーム渋谷笹塚 302は、ただの住まいではなく、あなたの人生の新たな章を彩る場所です。この特別な空間で、心に響く体験を一緒に創造していきましょう。あなたの物語の幕を開けるのは、ここからです。
302号室に一歩足を踏み入れると、まず目に飛び込んでくるのは、明るく開放的なLDK(10.5帖)の広がりです。柔らかな陽の光が…ズーム渋谷笹塚 302。あなたの生活の舞台となるこの特別な空間は、まるで洗練されたアート作品のように、四季折々の彩りを楽しむことができる贅沢な場所です。東京都渋谷区幡ヶ谷、都市の喧騒を背に、静謐な西と南の方角を向いて佇むこの物件は、あなたを包み込む温もりを持っています。
302号室に一歩足を踏み入れると、まず目に飛び込んでくるのは、明るく開放的なLDK(10.5帖)の広がりです。柔らかな陽の光が差し込み、穏やかな風が心地よく肌を撫でることで、まるで優雅な映画のワンシーンにいるかのような気分を味わえます。窓からの眺望には、季節ごとに変わる街の景色が広がり、都会とは思えぬ自然との調和を感じることができるでしょう。
その奥には、5.3帖の洋室が静かに存在しています。ここは、まさにあなた専用の隠れ家。大切な人との心温まる語らいや、優雅に一人の時間を楽しむ場所として、どんなシーンにもふさわしい空間です。柔らかなカーテンからこぼれる光が、心地よい安堵感を与え、穏やかな香りのキャンドルを灯せば、そこには瞬時に特別な時間が広がります。
ズーム渋谷笹塚 302は、ただの住まいではありません。生活の一部として、あなたのストーリーを紡いでいくパートナーです。エレガントなデザイナーズ仕様は、個々の美意識を満たし、視覚的な満足感を与えてくれることでしょう。オートロックやTVモニターホンといったセキュリティー設備も整っており、安全面でも心強い存在です。
周囲には、歴史ある街並みと現代の文化が融合する魅力的な環境が広がっています。京王線 笹塚駅からわずか徒歩9分という立地は、都会でありながらもゆったりとした時間の流れを感じることができます。近隣には、アートギャラリーやカフェが点在し、心を豊かにしてくれるスポットがいっぱいです。ひとたび街を歩けば、匂い立つ新鮮なコーヒーや、はちみつの甘さ、そして緑の香りが漂い、五感を刺激してくれることでしょう。
また、バイク置場や駐輪場、宅配ボックスも完備されているため、忙しい日常の中でもあなたのライフスタイルをしっかりサポートしてくれます。管理人さんの温かな笑顔が迎えてくれ、毎日の暮らしに安心感を与えてくれるのも嬉しいポイントです。
ズーム渋谷笹塚 302は、ただの住まいではなく、あなたの人生の新たな章を彩る場所です。この特別な空間で、心に響く体験を一緒に創造していきましょう。あなたの物語の幕を開けるのは、ここからです。
バイブルスコア
バイブルスコア: 35.9
平均的なスコアです。
※バイブルスコア詳細はこちら
バイブルスコアとは独自のAI機械学習技術を利用した物件評価システムで、物件のおすすめ度を示します。最高得点は100点で、スコアが高いほど、よりおすすめの物件と評価されています。
写真
現在写真が登録されていません契約条件
| 賃料 | 予想金額:142,000〜162,000円程度 | 管理費 | 予想金額:8,000〜12,000円程度 |
| 礼金 | 非公開(アーカイブ) | 敷金 | 非公開(アーカイブ) |
| フリーレント | なし | 平米数 | 40.67㎡ |
| 間取り | 1LDK | 大型収納 | |
| 契約期間 |
| 方角 | 西 / 南 |
| 更新料 | 契約形態 | 普通賃貸借契約 | |
| 取引態様 | 媒介 | 内見状況 | 入居中 |
| 入居時期 | 入居中 | SOHO・事務所 | |
| ペット | ペット可 | 間取り内訳 | 洋:5.3 LDK:10.5 |
| キャンペーン情報・備考 | 本情報は賃料改定交渉の資料作成、収益物件の利回り試算、周辺エリアや最寄り駅の坪単価分析、次回募集開始時期の予測などにご活用いただけます。 | ||
※「どの不動産に頼めばいいのか分からない」「信頼できる営業マンの話を聞きたい」「一番親切な会社と契約したい」とお悩みの方におすすめなのが「高級賃貸バイブル」です。
高級賃貸バイブルは業界10年以上の熟練スタッフ群がお客様ファーストで対応します。
下記ボタンから、まずは無料でご相談下さい。
※内覧をご希望の際には、どうぞ物件のエントランス前にてお待ち合わせくださいませ。ご内覧後は、同じ場所でお別れとさせていただきます。お客様のご都合に合わせたスムーズなご案内を心がけておりますので、ご質問等がございましたら何なりとお申し付けください。 物件概要
地図
物件までの道のりは、「拡大地図を表示」をクリックしてナビ機能をご利用ください。
部屋設備















建物設備

TVモニターホン

エレベーター

オートロック

バイク置場

宅配ボックス

敷地内ゴミ置場

管理人

駐輪場
ズーム渋谷笹塚の現在募集中のお部屋
- No rooms found for this property.
