
| 賃料 | 予想金額:108,000〜128,000円程度 | 管理費 | 予想金額:18,000〜22,000円程度 |
| 礼金/敷金 | 非公開(アーカイブ) | 平米数 | 25.7㎡ |
| 初期費用概算(参考) | 目安:249,250〜349,250 円 | みなし賃料(月額・参考) | 132,266〜152,266 円 |
| 備考 | 本ページは過去募集のアーカイブです。表示の金額は周辺相場・過去募集を踏まえた参考レンジであり、実際の契約金額・条件ではありません。 | ||
※上記みなし賃料(月額)は仲介手数料割引・無料&キャッシュバックを加味した高級賃貸バイブル限定の金額です。一般的なみなし賃料とは異なります。
【建物ページ】ラグディア高輪の詳細・最新空室はこちら▶▶選ばれる理由
仲介手数料無料・キャンペーン情報(毎月15名様限定)
〇仲介手数料割引キャンペーン
ラグディア高輪 202の口コミ・レビュー
ラグディア高輪 202、この名に秘められた魅力は、まるで都会のオアシスであるかのように、訪れる者を安らぎへと誘います。東京都港区高輪2-1-46という洗練された立地に位置し、あなたの新たな生活の舞台を迎え入れます。西向きの窓からは、穏やかな夕日が差し込み、色鮮やかな暮らしのシーンに、優雅な絵画のような余韻を添えてくれることでしょう。
この物件は、ただの住まいではなく、ひとつの物語の始まりを感じさ…ラグディア高輪 202、この名に秘められた魅力は、まるで都会のオアシスであるかのように、訪れる者を安らぎへと誘います。東京都港区高輪2-1-46という洗練された立地に位置し、あなたの新たな生活の舞台を迎え入れます。西向きの窓からは、穏やかな夕日が差し込み、色鮮やかな暮らしのシーンに、優雅な絵画のような余韻を添えてくれることでしょう。
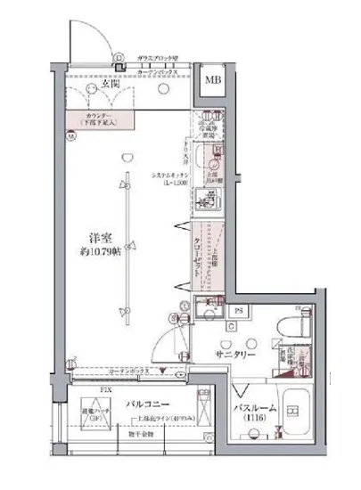
この物件は、ただの住まいではなく、ひとつの物語の始まりを感じさせる特別な空間です。広さ25.7㎡の中に、あなたの生活の全てが凝縮されています。1Rの間取りは、10.79帖の温かなゲストルームのように、あなたを迎え入れ、心地よい安らぎを提供します。まるで空気の中に溶け込むかのようなデザインは、日々のストレスを忘れさせ、心を軽やかにしてくれるでしょう。
静寂の中に、ふとした家庭の香りが漂ってきます。キッチンからは、あなたの好きな香りたつ料理が広がり、友人を招いての食卓が心温まるひとときを演出します。そこには、温もりを求める気持ちが詰まっており、食材の優しい触感や、料理の香ばしい匂いが、まるで映画のワンシーンのように心を豊かにしてくれるのです。
ラグディア高輪 202は、あなたの生活に便利さをもたらします。エレベーターやオートロック、宅配ボックスなど、現代の暮らしに欠かせない設備が完備されており、あらゆる瞬間があなたの思い通りに進むことを助けてくれます。日々のストーリーに欠かせないシーンを、彼女が静かに支えてくれることでしょう。
また、近くには泉岳寺駅があり、都心へのアクセスがスムーズに行えます。この立地は、古き良き日本の文化と最先端の都市生活が交差する場でもあり、あなたの生活に多くの彩りを添えてくれます。静けさの中にありながら、周囲には歴史ある寺院やアートギャラリーが点在し、感性を刺激する空間が広がっています。あなたがこの街に居住することで、日々の喧騒を忘れ、アートや文化に触れる幸せを享受できることでしょう。
ラグディア高輪 202は、あなたの生活のパートナーとして、無限の可能性を秘めています。その魅力的な空間には、あなたの夢や希望が詰まっており、心を満たす豊かなストーリーが待っています。さあ、この特別な住まいで、あなたの新しい物語を始めてみませんか。日常が映画のように美しく、感動に満ちたものとなることを約束します。
この物件は、ただの住まいではなく、ひとつの物語の始まりを感じさ…ラグディア高輪 202、この名に秘められた魅力は、まるで都会のオアシスであるかのように、訪れる者を安らぎへと誘います。東京都港区高輪2-1-46という洗練された立地に位置し、あなたの新たな生活の舞台を迎え入れます。西向きの窓からは、穏やかな夕日が差し込み、色鮮やかな暮らしのシーンに、優雅な絵画のような余韻を添えてくれることでしょう。
この物件は、ただの住まいではなく、ひとつの物語の始まりを感じさせる特別な空間です。広さ25.7㎡の中に、あなたの生活の全てが凝縮されています。1Rの間取りは、10.79帖の温かなゲストルームのように、あなたを迎え入れ、心地よい安らぎを提供します。まるで空気の中に溶け込むかのようなデザインは、日々のストレスを忘れさせ、心を軽やかにしてくれるでしょう。
静寂の中に、ふとした家庭の香りが漂ってきます。キッチンからは、あなたの好きな香りたつ料理が広がり、友人を招いての食卓が心温まるひとときを演出します。そこには、温もりを求める気持ちが詰まっており、食材の優しい触感や、料理の香ばしい匂いが、まるで映画のワンシーンのように心を豊かにしてくれるのです。
ラグディア高輪 202は、あなたの生活に便利さをもたらします。エレベーターやオートロック、宅配ボックスなど、現代の暮らしに欠かせない設備が完備されており、あらゆる瞬間があなたの思い通りに進むことを助けてくれます。日々のストーリーに欠かせないシーンを、彼女が静かに支えてくれることでしょう。
また、近くには泉岳寺駅があり、都心へのアクセスがスムーズに行えます。この立地は、古き良き日本の文化と最先端の都市生活が交差する場でもあり、あなたの生活に多くの彩りを添えてくれます。静けさの中にありながら、周囲には歴史ある寺院やアートギャラリーが点在し、感性を刺激する空間が広がっています。あなたがこの街に居住することで、日々の喧騒を忘れ、アートや文化に触れる幸せを享受できることでしょう。
ラグディア高輪 202は、あなたの生活のパートナーとして、無限の可能性を秘めています。その魅力的な空間には、あなたの夢や希望が詰まっており、心を満たす豊かなストーリーが待っています。さあ、この特別な住まいで、あなたの新しい物語を始めてみませんか。日常が映画のように美しく、感動に満ちたものとなることを約束します。
バイブルスコア
バイブルスコア: 35.4
平均的なスコアです。
※バイブルスコア詳細はこちら
バイブルスコアとは独自のAI機械学習技術を利用した物件評価システムで、物件のおすすめ度を示します。最高得点は100点で、スコアが高いほど、よりおすすめの物件と評価されています。
写真
契約条件
| 賃料 | 予想金額:108,000〜128,000円程度 | 管理費 | 予想金額:18,000〜22,000円程度 |
| 礼金 | 非公開(アーカイブ) | 敷金 | 非公開(アーカイブ) |
| フリーレント | なし | 平米数 | 25.7㎡ |
| 間取り | 1R | 大型収納 | |
| 契約期間 |
| 方角 | 西 |
| 更新料 | 契約形態 | 普通賃貸借契約 | |
| 取引態様 | 媒介 | 内見状況 | 入居中 |
| 入居時期 | 入居中 | SOHO・事務所 | 事務所(SOHO)可 |
| ペット | ペット可 | 間取り内訳 | BR=10.79J |
| キャンペーン情報・備考 | 本情報は賃料改定交渉の資料作成、収益物件の利回り試算、周辺エリアや最寄り駅の坪単価分析、次回募集開始時期の予測などにご活用いただけます。 | ||
※「どの不動産に頼めばいいのか分からない」「信頼できる営業マンの話を聞きたい」「一番親切な会社と契約したい」とお悩みの方におすすめなのが「高級賃貸バイブル」です。
高級賃貸バイブルは業界10年以上の熟練スタッフ群がお客様ファーストで対応します。
下記ボタンから、まずは無料でご相談下さい。
※内覧をご希望の際には、どうぞ物件のエントランス前にてお待ち合わせくださいませ。ご内覧後は、同じ場所でお別れとさせていただきます。お客様のご都合に合わせたスムーズなご案内を心がけておりますので、ご質問等がございましたら何なりとお申し付けください。 物件概要
| 物件名 |
| 築年月 |
|
|---|---|---|---|
| 所在地 | |||
| 交通 | |||
| 総戸数 |
| 総階数 |
|
| 構造 |
| ||
地図
物件までの道のりは、「拡大地図を表示」をクリックしてナビ機能をご利用ください。
部屋設備












建物設備

TVモニターホン

エレベーター

オートロック

宅配ボックス

敷地内ゴミ置場

管理人

駐輪場
ラグディア高輪の現在募集中のお部屋
- No rooms found for this property.





















