
| 賃料 | 予想金額:120,000〜140,000円程度 | 管理費 | 予想金額:8,000〜12,000円程度 |
| 礼金/敷金 | 非公開(アーカイブ) | 平米数 | 25.01㎡ |
| 初期費用概算(参考) | 目安:511,500〜611,500 円 | みなし賃料(月額・参考) | 138,990〜158,990 円 |
| 備考 | 本ページは過去募集のアーカイブです。表示の金額は周辺相場・過去募集を踏まえた参考レンジであり、実際の契約金額・条件ではありません。 | ||
※上記みなし賃料(月額)は仲介手数料割引・無料&キャッシュバックを加味した高級賃貸バイブル限定の金額です。一般的なみなし賃料とは異なります。
【建物ページ】ザ・パークハビオ高円寺の詳細・最新空室はこちら▶▶選ばれる理由
仲介手数料無料・キャンペーン情報(毎月15名様限定)
〇仲介手数料割引キャンペーン
ザ・パークハビオ高円寺 118の口コミ・レビュー
ザ・パークハビオ高円寺 118。この名を耳にした瞬間、あなたの心の中に住まう新しい物語が始まります。都会の喧騒を少し離れた場所に佇むこの美しい物件は、ただの住まいではなく、生活の舞台となることでしょう。高円寺駅から徒歩わずか6分。優雅な足取りで向かえば、あっという間にあなたの日常が広がっていきます。
目の前に広がるのは、洗練されたデザインの外観。エレガントな形状が、まるで芸術作品のように周囲の景…ザ・パークハビオ高円寺 118。この名を耳にした瞬間、あなたの心の中に住まう新しい物語が始まります。都会の喧騒を少し離れた場所に佇むこの美しい物件は、ただの住まいではなく、生活の舞台となることでしょう。高円寺駅から徒歩わずか6分。優雅な足取りで向かえば、あっという間にあなたの日常が広がっていきます。
目の前に広がるのは、洗練されたデザインの外観。エレガントな形状が、まるで芸術作品のように周囲の景観と調和しています。ザ・パークハビオ高円寺 118は、あなたを優しく迎え入れる入口として、オートロックでしっかりと守られています。ここでは、安心感に包まれた上質な日常が待っています。
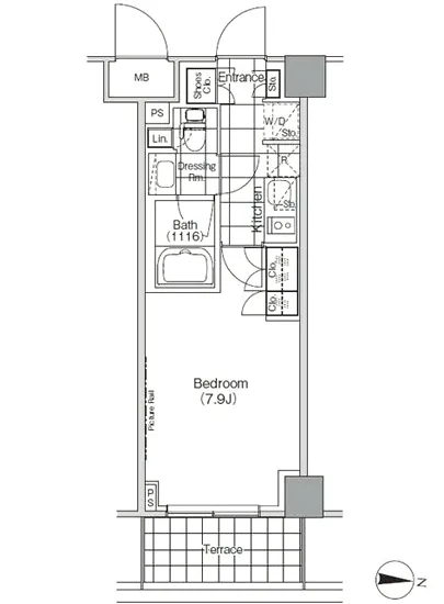
玄関を一歩踏み入れると、あなたを包み込むのは心地よい静寂。25.01㎡の空間は、贅沢な開放感を与えてくれます。洋室は7.9帖の広さを持ち、あなただけの特別な時間を演出。デザイナーズの美しい内装に身をゆだねると、インスピレーションが次々と訪れるでしょう。朝、カーテンを開けると、優しい朝日が差し込んできて、あなたを温かく迎えてくれます。静まり返った昼下がり、柔らかな日差しを浴びながら、コーヒーを一口。香ばしい香りがあなたの感覚を刺激し、周りの景色と調和しながら、心が満たされていきます。
ザ・パークハビオ高円寺 118の生活は、まるで映画のワンシーンのように展開します。夕暮れ時、窓の向こうに広がる美しい街並みが、オレンジ色の光に染まります。あなたは、サンセットを眺めながら、心の中で小さな幸せを感じます。ここには、街の文化が息づいており、周囲には個性的なカフェやアートギャラリーが点在しています。高円寺の歴史を感じながら、地元の人々とのふれあいも楽しむことができます。まるで、あなた自身がこの町の新たな一ページを刻んでいるかのようです。
休暇の日、バイクを駐車場に置いて、自転車での散策も素晴らしい体験です。風を感じながら、アートなスポットを巡り、感性を刺激する時間を持つことができるのです。すると、あなたの感情は豊かになり、日常生活もさらに色鮮やかに変わることでしょう。
管理人による心のこもったサポートがあり、宅配ボックスや敷地内ゴミ置場の整備も行き届いていますので、安心して暮らすことができます。この土地に新しい生活を始める準備が整っていることを実感しながら、ザ・パークハビオ高円寺 118での豊かな物語が、あなたを待っています。
ここでの日々は、あなた自身のアート作品となるでしょう。デザイン、安心感、そして地域の息吹が織りなす世界に身を委ね、心を豊かにしてくれる場所。それが、ザ・パークハビオ高円寺 118です。新しい扉を開け、あなたの物語をこの場所から始めてみませんか。
目の前に広がるのは、洗練されたデザインの外観。エレガントな形状が、まるで芸術作品のように周囲の景…ザ・パークハビオ高円寺 118。この名を耳にした瞬間、あなたの心の中に住まう新しい物語が始まります。都会の喧騒を少し離れた場所に佇むこの美しい物件は、ただの住まいではなく、生活の舞台となることでしょう。高円寺駅から徒歩わずか6分。優雅な足取りで向かえば、あっという間にあなたの日常が広がっていきます。
目の前に広がるのは、洗練されたデザインの外観。エレガントな形状が、まるで芸術作品のように周囲の景観と調和しています。ザ・パークハビオ高円寺 118は、あなたを優しく迎え入れる入口として、オートロックでしっかりと守られています。ここでは、安心感に包まれた上質な日常が待っています。
玄関を一歩踏み入れると、あなたを包み込むのは心地よい静寂。25.01㎡の空間は、贅沢な開放感を与えてくれます。洋室は7.9帖の広さを持ち、あなただけの特別な時間を演出。デザイナーズの美しい内装に身をゆだねると、インスピレーションが次々と訪れるでしょう。朝、カーテンを開けると、優しい朝日が差し込んできて、あなたを温かく迎えてくれます。静まり返った昼下がり、柔らかな日差しを浴びながら、コーヒーを一口。香ばしい香りがあなたの感覚を刺激し、周りの景色と調和しながら、心が満たされていきます。
ザ・パークハビオ高円寺 118の生活は、まるで映画のワンシーンのように展開します。夕暮れ時、窓の向こうに広がる美しい街並みが、オレンジ色の光に染まります。あなたは、サンセットを眺めながら、心の中で小さな幸せを感じます。ここには、街の文化が息づいており、周囲には個性的なカフェやアートギャラリーが点在しています。高円寺の歴史を感じながら、地元の人々とのふれあいも楽しむことができます。まるで、あなた自身がこの町の新たな一ページを刻んでいるかのようです。
休暇の日、バイクを駐車場に置いて、自転車での散策も素晴らしい体験です。風を感じながら、アートなスポットを巡り、感性を刺激する時間を持つことができるのです。すると、あなたの感情は豊かになり、日常生活もさらに色鮮やかに変わることでしょう。
管理人による心のこもったサポートがあり、宅配ボックスや敷地内ゴミ置場の整備も行き届いていますので、安心して暮らすことができます。この土地に新しい生活を始める準備が整っていることを実感しながら、ザ・パークハビオ高円寺 118での豊かな物語が、あなたを待っています。
ここでの日々は、あなた自身のアート作品となるでしょう。デザイン、安心感、そして地域の息吹が織りなす世界に身を委ね、心を豊かにしてくれる場所。それが、ザ・パークハビオ高円寺 118です。新しい扉を開け、あなたの物語をこの場所から始めてみませんか。
バイブルスコア
バイブルスコア: 9.8
高級な物件でない場合は割高な物件です。。
※バイブルスコア詳細はこちら
バイブルスコアとは独自のAI機械学習技術を利用した物件評価システムで、物件のおすすめ度を示します。最高得点は100点で、スコアが高いほど、よりおすすめの物件と評価されています。
写真
現在写真が登録されていません契約条件
| 賃料 | 予想金額:120,000〜140,000円程度 | 管理費 | 予想金額:8,000〜12,000円程度 |
| 礼金 | 非公開(アーカイブ) | 敷金 | 非公開(アーカイブ) |
| フリーレント | なし | 平米数 | 25.01㎡ |
| 間取り | 1K | 大型収納 | |
| 契約期間 |
| 方角 | 東 |
| 更新料 | 契約形態 | 普通賃貸借契約 | |
| 取引態様 | 媒介 | 内見状況 | 入居中 |
| 入居時期 | 入居中 | SOHO・事務所 | 事務所(SOHO)可 |
| ペット | ペット可 | 間取り内訳 | 洋:7.9 |
| キャンペーン情報・備考 | 本情報は賃料改定交渉の資料作成、収益物件の利回り試算、周辺エリアや最寄り駅の坪単価分析、次回募集開始時期の予測などにご活用いただけます。 | ||
※「どの不動産に頼めばいいのか分からない」「信頼できる営業マンの話を聞きたい」「一番親切な会社と契約したい」とお悩みの方におすすめなのが「高級賃貸バイブル」です。
高級賃貸バイブルは業界10年以上の熟練スタッフ群がお客様ファーストで対応します。
下記ボタンから、まずは無料でご相談下さい。
※内覧をご希望の際には、どうぞ物件のエントランス前にてお待ち合わせくださいませ。ご内覧後は、同じ場所でお別れとさせていただきます。お客様のご都合に合わせたスムーズなご案内を心がけておりますので、ご質問等がございましたら何なりとお申し付けください。 物件概要
| 物件名 |
| 築年月 |
|
|---|---|---|---|
| 所在地 | |||
| 交通 | |||
| 総戸数 |
| 総階数 |
|
| 構造 |
| ||
地図
物件までの道のりは、「拡大地図を表示」をクリックしてナビ機能をご利用ください。
部屋設備














建物設備

TVモニターホン

エレベーター

オートロック

バイク置場

宅配ボックス

敷地内ゴミ置場

管理人

駐車場平置き

駐車場機械式

駐輪場
ザ・パークハビオ高円寺の現在募集中のお部屋
- ザ・パークハビオ高円寺 321 - 間取り: 1LDK+WIC+SIC - 賃料: 17.7万円
- ザ・パークハビオ高円寺 315 - 間取り: 1LDK+WIC+SIC - 賃料: 17.7万円
