
| 賃料 | 予想金額:218,000〜238,000円程度 | 管理費 | 予想金額:0〜2,000円程度 |
| 礼金/敷金 | 非公開(アーカイブ) | 平米数 | 35.85㎡ |
| 初期費用概算(参考) | 目安:839,500〜939,500 円 | みなし賃料(月額・参考) | 231,781〜251,781 円 |
| 備考 | 本ページは過去募集のアーカイブです。表示の金額は周辺相場・過去募集を踏まえた参考レンジであり、実際の契約金額・条件ではありません。 | ||
※上記みなし賃料(月額)は仲介手数料割引・無料&キャッシュバックを加味した高級賃貸バイブル限定の金額です。一般的なみなし賃料とは異なります。
【建物ページ】東京ポートシティ竹芝レジデンスタワーの詳細・最新空室はこちら▶▶選ばれる理由
仲介手数料無料・キャンペーン情報(毎月15名様限定)
〇仲介手数料割引キャンペーン
東京ポートシティ竹芝レジデンスタワー 1608の口コミ・レビュー
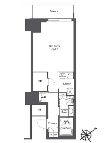
東京ポートシティ竹芝レジデンスタワー 1608。あなたの新たな生活がここにあり、海と都市が織り成すハーモニーの舞台へようこそ。この素晴らしい物件は、専有面積35.85㎡の広々とした1Rの間取りを持ち、現代的なデザインと機能性が融合した空間です。
扉を開けた瞬間、あなたは心地良い静寂に包まれ、周囲の喧騒を忘れることができるでしょう。北西向きの窓からは、夕暮れ時の海に反射するオレンジ色の光が差し込み…東京ポートシティ竹芝レジデンスタワー 1608。あなたの新たな生活がここにあり、海と都市が織り成すハーモニーの舞台へようこそ。この素晴らしい物件は、専有面積35.85㎡の広々とした1Rの間取りを持ち、現代的なデザインと機能性が融合した空間です。
扉を開けた瞬間、あなたは心地良い静寂に包まれ、周囲の喧騒を忘れることができるでしょう。北西向きの窓からは、夕暮れ時の海に反射するオレンジ色の光が差し込み、まるで絵画のような美しい景色が広がります。波の音が遠くから聴こえてきて、まるで一日の疲れを癒すために特別に呼ばれているかのようです。
ここ、東京ポートシティ竹芝レジデンスタワー 1608では、あなたの日常が特別なものに変わります。デザイナーズ物件ならではの洗練された内装は、異国のリゾート地にいるかのような感覚を与え、心を豊かにしてくれます。13.5帖の広さを有するこの空間は、あなたの創造力を刺激します。アートなインテリアやお気に入りの書籍を並べたおしゃれな空間が、日々の生活をより鮮やかに色づけることでしょう。
また、シンプルに過ごせるよう、フロントサービスや宅配ボックス、24時間管理といった便利な設備が整っているため、生活のあらゆるシーンで安心感を得られます。そんな日常生活に、フィットネスやラウンジスペースでのリラックスタイムも加えれば、まるで映画のワンシーンを体験しているかのような贅沢な時間が流れます。
竹芝駅から徒歩1分という立地も見逃せません。周囲には洗練されたカフェやレストラン、アートギャラリーが点在し、文化的な香りを漂わせています。この街の静かな歴史を感じると同時に、メトロポリス東京の活気を身近に感じるこの特異な場所こそ、あなたのライフスタイルをより豊かにしてくれることでしょう。
東京ポートシティ竹芝レジデンスタワー 1608は、ただの住まいを超えた、心地よい生きざまを提供します。この空間で、あなた自身を再発見し、日々の生活の中に新しい息吹を吹き込んでみてはいかがでしょうか。朝の光に包まれて目覚め、海の香りを感じながら一日のスタートを切り、夕暮れの街に出かける。そんな映画のような、優雅で甘美なライフスタイルが、あなたを待っています。未だ見ぬ美しい物語の幕開けを、ぜひご自身の手で感じてください。
扉を開けた瞬間、あなたは心地良い静寂に包まれ、周囲の喧騒を忘れることができるでしょう。北西向きの窓からは、夕暮れ時の海に反射するオレンジ色の光が差し込み…東京ポートシティ竹芝レジデンスタワー 1608。あなたの新たな生活がここにあり、海と都市が織り成すハーモニーの舞台へようこそ。この素晴らしい物件は、専有面積35.85㎡の広々とした1Rの間取りを持ち、現代的なデザインと機能性が融合した空間です。
扉を開けた瞬間、あなたは心地良い静寂に包まれ、周囲の喧騒を忘れることができるでしょう。北西向きの窓からは、夕暮れ時の海に反射するオレンジ色の光が差し込み、まるで絵画のような美しい景色が広がります。波の音が遠くから聴こえてきて、まるで一日の疲れを癒すために特別に呼ばれているかのようです。
ここ、東京ポートシティ竹芝レジデンスタワー 1608では、あなたの日常が特別なものに変わります。デザイナーズ物件ならではの洗練された内装は、異国のリゾート地にいるかのような感覚を与え、心を豊かにしてくれます。13.5帖の広さを有するこの空間は、あなたの創造力を刺激します。アートなインテリアやお気に入りの書籍を並べたおしゃれな空間が、日々の生活をより鮮やかに色づけることでしょう。
また、シンプルに過ごせるよう、フロントサービスや宅配ボックス、24時間管理といった便利な設備が整っているため、生活のあらゆるシーンで安心感を得られます。そんな日常生活に、フィットネスやラウンジスペースでのリラックスタイムも加えれば、まるで映画のワンシーンを体験しているかのような贅沢な時間が流れます。
竹芝駅から徒歩1分という立地も見逃せません。周囲には洗練されたカフェやレストラン、アートギャラリーが点在し、文化的な香りを漂わせています。この街の静かな歴史を感じると同時に、メトロポリス東京の活気を身近に感じるこの特異な場所こそ、あなたのライフスタイルをより豊かにしてくれることでしょう。
東京ポートシティ竹芝レジデンスタワー 1608は、ただの住まいを超えた、心地よい生きざまを提供します。この空間で、あなた自身を再発見し、日々の生活の中に新しい息吹を吹き込んでみてはいかがでしょうか。朝の光に包まれて目覚め、海の香りを感じながら一日のスタートを切り、夕暮れの街に出かける。そんな映画のような、優雅で甘美なライフスタイルが、あなたを待っています。未だ見ぬ美しい物語の幕開けを、ぜひご自身の手で感じてください。
バイブルスコア
バイブルスコア: 13.7
高級な物件でない場合は割高な物件です。。
※バイブルスコア詳細はこちら
バイブルスコアとは独自のAI機械学習技術を利用した物件評価システムで、物件のおすすめ度を示します。最高得点は100点で、スコアが高いほど、よりおすすめの物件と評価されています。
写真
契約条件
| 賃料 | 予想金額:218,000〜238,000円程度 | 管理費 | 予想金額:0〜2,000円程度 |
| 礼金 | 非公開(アーカイブ) | 敷金 | 非公開(アーカイブ) |
| フリーレント | なし | 平米数 | 35.85㎡ |
| 間取り | 1R | 大型収納 | WIC |
| 契約期間 |
| 方角 | 北西 |
| 更新料 | 契約形態 | 普通賃貸借契約 | |
| 取引態様 | 媒介 | 内見状況 | 入居中 |
| 入居時期 | 入居中 | SOHO・事務所 | |
| ペット | ペット可 | 間取り内訳 | Room=13.5 |
| キャンペーン情報・備考 | 本情報は賃料改定交渉の資料作成、収益物件の利回り試算、周辺エリアや最寄り駅の坪単価分析、次回募集開始時期の予測などにご活用いただけます。 | ||
※「どの不動産に頼めばいいのか分からない」「信頼できる営業マンの話を聞きたい」「一番親切な会社と契約したい」とお悩みの方におすすめなのが「高級賃貸バイブル」です。
高級賃貸バイブルは業界10年以上の熟練スタッフ群がお客様ファーストで対応します。
下記ボタンから、まずは無料でご相談下さい。
※内覧をご希望の際には、どうぞ物件のエントランス前にてお待ち合わせくださいませ。ご内覧後は、同じ場所でお別れとさせていただきます。お客様のご都合に合わせたスムーズなご案内を心がけておりますので、ご質問等がございましたら何なりとお申し付けください。 物件概要
| 物件名 |
| 築年月 |
|
|---|---|---|---|
| 所在地 | |||
| 交通 | |||
| 総戸数 |
| 総階数 |
|
| 構造 |
| ||
地図
物件までの道のりは、「拡大地図を表示」をクリックしてナビ機能をご利用ください。
部屋設備

















建物設備

24時間管理

TVモニターホン

エレベーター

オートロック

バイク置場

フィットネス

フロントサービス

ラウンジ

宅配ボックス

敷地内ゴミ置場

管理人

駐車場平置き

駐車場機械式

駐輪場
東京ポートシティ竹芝レジデンスタワーの現在募集中のお部屋
- 東京ポートシティ竹芝 レジデンスタワー 1511 - 間取り: 1LDK - 賃料: 25.6万円
- 東京ポートシティ竹芝 レジデンスタワー 1311 - 間取り: 1LDK - 賃料: 25.2万円
- 東京ポートシティ竹芝 レジデンスタワー 1505 - 間取り: 1LDK+WIC - 賃料: 31.3万円
- 東京ポートシティ竹芝 レジデンスタワー 1009 - 間取り: 1R+WIC - 賃料: 22.3万円


























