
| 賃料 | 予想金額:240,000〜260,000円程度 | 管理費 | 予想金額:0〜2,000円程度 |
| 礼金/敷金 | 非公開(アーカイブ) | 平米数 | 72.67㎡ |
| 初期費用概算(参考) | 目安:666,500〜766,500 円 | みなし賃料(月額・参考) | 249,719〜269,719 円 |
| 備考 | 本ページは過去募集のアーカイブです。表示の金額は周辺相場・過去募集を踏まえた参考レンジであり、実際の契約金額・条件ではありません。 | ||
※上記みなし賃料(月額)は仲介手数料割引・無料&キャッシュバックを加味した高級賃貸バイブル限定の金額です。一般的なみなし賃料とは異なります。
【建物ページ】ベルメゾン六本木タワーズの詳細・最新空室はこちら▶▶選ばれる理由
仲介手数料無料・キャンペーン情報(毎月15名様限定)
〇仲介手数料割引キャンペーン
ベルメゾン六本木タワーズ 401の口コミ・レビュー
ベルメゾン六本木タワーズ 401。これは、貴方の人生に新たな章をもたらす場所です。南西の方角に位置するこの特別な空間は、陽光の恵みをたっぷりと受け、優雅な光のダンスが日々の暮らしを彩ります。さあ、一歩足を踏み入れてください。この部屋は、ただの住居ではなく、あなたの生活を豊かにするために生まれた特別なシェルターなのです。
まず、目に飛び込むのは、広々としたLDK 12.9帖の空間。ここには、あなた…ベルメゾン六本木タワーズ 401。これは、貴方の人生に新たな章をもたらす場所です。南西の方角に位置するこの特別な空間は、陽光の恵みをたっぷりと受け、優雅な光のダンスが日々の暮らしを彩ります。さあ、一歩足を踏み入れてください。この部屋は、ただの住居ではなく、あなたの生活を豊かにするために生まれた特別なシェルターなのです。
まず、目に飛び込むのは、広々としたLDK 12.9帖の空間。ここには、あなたのアイデアや感情が溢れ出てくる柔らかな余白が広がっています。友人や家族との思い出を紡ぐ食卓がしっかりと据えられ、その周りには笑い声が響き渡ります。時には贅沢な夕食、時にはカジュアルなブランチ。この空間は、まるで映画のワンシーンのように、あなたの人生を映し出すキャンバスとなることでしょう。
そして、そっと目を向ければ、キッチン 3.1帖からは香ばしい料理の香りが漂ってくるのが感じられます。新鮮な食材があなたの手によって魔法のように変わり、家族や友人との絆を一層深めます。あなたの目の前には、スパイスの豊かな香りが漂うオムライスや、季節のフルーツを贅沢に使ったデザートが。楽しげな会話に花を咲かせながら、味わう幸せが、心の底からの満ち足りを与えてくれることでしょう。
続いて、心地よいプライベート空間へと足を進めましょう。ここには、6帖の明るい寝室、5.6帖の落ち着いた書斎、そして4.7帖の趣味部屋が待っています。それぞれが独自の色を持ち、あなたの生活スタイルに寄り添ってくれます。就寝前の静かな読書タイム、心を整えるためのメディテーション、あるいは、クリエイティブなアイデアを育むためのアトリエとして。そのすべてが、このベルメゾン六本木タワーズ 401の中に存在します。
さらに、周辺には歴史と文化が息づいている六本木。その街並みは、まるで映画のセットのようにエレガントで、毎日が旅のような体験に満ちています。アートギャラリーやミュージアムが立ち並び、刺激的な文化体験が手の届くところにあります。美術館からの帰り道、夕暮れの六本木ヒルズの美しいシルエットとともに、心は満ち足りた気持ちになることでしょう。
このベルメゾン六本木タワーズ 401には、便利な設備も整っています。安心のオートロックシステムや、荷物が届くたびに嬉しい宅配ボックス。駐車場や駐輪場も完備されており、都市生活の利便性を最大限に享受できます。
最後に、この特別な住処は、あなたを待っています。心に響く生活の調和がここにあり、日常が特別な瞬間に変わる場所として、貴方様をお迎えします。一度このベルメゾン六本木タワーズ 401に足を運んでみてください。あなたの新たな物語が、ここから始まることを、心より願っています。
まず、目に飛び込むのは、広々としたLDK 12.9帖の空間。ここには、あなた…ベルメゾン六本木タワーズ 401。これは、貴方の人生に新たな章をもたらす場所です。南西の方角に位置するこの特別な空間は、陽光の恵みをたっぷりと受け、優雅な光のダンスが日々の暮らしを彩ります。さあ、一歩足を踏み入れてください。この部屋は、ただの住居ではなく、あなたの生活を豊かにするために生まれた特別なシェルターなのです。
まず、目に飛び込むのは、広々としたLDK 12.9帖の空間。ここには、あなたのアイデアや感情が溢れ出てくる柔らかな余白が広がっています。友人や家族との思い出を紡ぐ食卓がしっかりと据えられ、その周りには笑い声が響き渡ります。時には贅沢な夕食、時にはカジュアルなブランチ。この空間は、まるで映画のワンシーンのように、あなたの人生を映し出すキャンバスとなることでしょう。
そして、そっと目を向ければ、キッチン 3.1帖からは香ばしい料理の香りが漂ってくるのが感じられます。新鮮な食材があなたの手によって魔法のように変わり、家族や友人との絆を一層深めます。あなたの目の前には、スパイスの豊かな香りが漂うオムライスや、季節のフルーツを贅沢に使ったデザートが。楽しげな会話に花を咲かせながら、味わう幸せが、心の底からの満ち足りを与えてくれることでしょう。
続いて、心地よいプライベート空間へと足を進めましょう。ここには、6帖の明るい寝室、5.6帖の落ち着いた書斎、そして4.7帖の趣味部屋が待っています。それぞれが独自の色を持ち、あなたの生活スタイルに寄り添ってくれます。就寝前の静かな読書タイム、心を整えるためのメディテーション、あるいは、クリエイティブなアイデアを育むためのアトリエとして。そのすべてが、このベルメゾン六本木タワーズ 401の中に存在します。
さらに、周辺には歴史と文化が息づいている六本木。その街並みは、まるで映画のセットのようにエレガントで、毎日が旅のような体験に満ちています。アートギャラリーやミュージアムが立ち並び、刺激的な文化体験が手の届くところにあります。美術館からの帰り道、夕暮れの六本木ヒルズの美しいシルエットとともに、心は満ち足りた気持ちになることでしょう。
このベルメゾン六本木タワーズ 401には、便利な設備も整っています。安心のオートロックシステムや、荷物が届くたびに嬉しい宅配ボックス。駐車場や駐輪場も完備されており、都市生活の利便性を最大限に享受できます。
最後に、この特別な住処は、あなたを待っています。心に響く生活の調和がここにあり、日常が特別な瞬間に変わる場所として、貴方様をお迎えします。一度このベルメゾン六本木タワーズ 401に足を運んでみてください。あなたの新たな物語が、ここから始まることを、心より願っています。
バイブルスコア
バイブルスコア: 82.6
レア物件です、すぐ仮押さえしましょう!
このお部屋は、現在ご入居中のため空室情報はございません。ただし、将来的に募集が開始される際、バイブルスコアにおいて非常に高い評価が期待されます。特にご興味をお持ちの方は、今のうちにブックマークやお気に入りに登録していただくと、募集開始のお知らせをすぐに受け取ることができます。是非ともご検討くださいませ。
※バイブルスコア詳細はこちら
バイブルスコアとは独自のAI機械学習技術を利用した物件評価システムで、物件のおすすめ度を示します。最高得点は100点で、スコアが高いほど、よりおすすめの物件と評価されています。
写真
契約条件
| 賃料 | 予想金額:240,000〜260,000円程度 | 管理費 | 予想金額:0〜2,000円程度 |
| 礼金 | 非公開(アーカイブ) | 敷金 | 非公開(アーカイブ) |
| フリーレント | なし | 平米数 | 72.67㎡ |
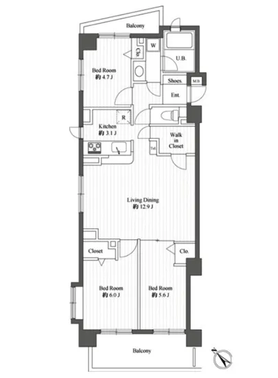
| 間取り | 3LDK | 大型収納 | WIC |
| 契約期間 |
| 方角 | 南西 |
| 更新料 | 契約形態 | 普通賃貸借契約 | |
| 取引態様 | 媒介 | 内見状況 | 入居中 |
| 入居時期 | 入居中 | SOHO・事務所 | |
| ペット | 間取り内訳 | LD=12.9J / K=3.1J / BR=6J / BR=5.6J / BR=4.7J | |
| キャンペーン情報・備考 | 本情報は賃料改定交渉の資料作成、収益物件の利回り試算、周辺エリアや最寄り駅の坪単価分析、次回募集開始時期の予測などにご活用いただけます。 | ||
※「どの不動産に頼めばいいのか分からない」「信頼できる営業マンの話を聞きたい」「一番親切な会社と契約したい」とお悩みの方におすすめなのが「高級賃貸バイブル」です。
高級賃貸バイブルは業界10年以上の熟練スタッフ群がお客様ファーストで対応します。
下記ボタンから、まずは無料でご相談下さい。
※内覧をご希望の際には、どうぞ物件のエントランス前にてお待ち合わせくださいませ。ご内覧後は、同じ場所でお別れとさせていただきます。お客様のご都合に合わせたスムーズなご案内を心がけておりますので、ご質問等がございましたら何なりとお申し付けください。 物件概要
| 物件名 |
| 築年月 |
|
|---|---|---|---|
| 所在地 | |||
| 交通 | |||
| 総戸数 |
| 総階数 |
|
| 構造 |
| ||
地図
物件までの道のりは、「拡大地図を表示」をクリックしてナビ機能をご利用ください。
部屋設備


















建物設備

TVモニターホン

エレベーター

オートロック

宅配ボックス

敷地内ゴミ置場

駐車場平置き

駐車場機械式

駐輪場
ベルメゾン六本木タワーズの現在募集中のお部屋
- No rooms found for this property.




















