
| 賃料 | 予想金額:277,000〜297,000円程度 | 管理費 | 予想金額:0〜2,000円程度 |
| 礼金/敷金 | 非公開(アーカイブ) | 平米数 | 54.9㎡ |
| 初期費用概算(参考) | 目安:472,000〜572,000 円 | みなし賃料(月額・参考) | 287,875〜307,875 円 |
| 備考 | 本ページは過去募集のアーカイブです。表示の金額は周辺相場・過去募集を踏まえた参考レンジであり、実際の契約金額・条件ではありません。 | ||
※上記みなし賃料(月額)は仲介手数料割引・無料&キャッシュバックを加味した高級賃貸バイブル限定の金額です。一般的なみなし賃料とは異なります。
【建物ページ】カスタリア麻布十番の詳細・最新空室はこちら▶▶選ばれる理由
仲介手数料無料・キャンペーン情報(毎月15名様限定)
〇フリーレント1か月キャンペーン
カスタリア麻布十番 701の口コミ・レビュー
カスタリア麻布十番 701。あなたの新しい生活の舞台が、ここに待ち構えています。701という数字は、ただの階数ではなく、あなたのライフスタイルを新たな高みへと引き上げる特別な印。54.9㎡の広がりに、心が躍る空間が広がり、日々の暮らしに小さな奇跡をもたらします。
この物件は、美しい麻布十番の中心に位置しており、南を向いた窓から差し込む柔らかな光は、朝の目覚めを優しく包み込みます。LDK 19.6…カスタリア麻布十番 701。あなたの新しい生活の舞台が、ここに待ち構えています。701という数字は、ただの階数ではなく、あなたのライフスタイルを新たな高みへと引き上げる特別な印。54.9㎡の広がりに、心が躍る空間が広がり、日々の暮らしに小さな奇跡をもたらします。
この物件は、美しい麻布十番の中心に位置しており、南を向いた窓から差し込む柔らかな光は、朝の目覚めを優しく包み込みます。LDK 19.6帖の広々としたスペースは、まるで心躍る映画のワンシーンのように、あなたの選ぶ家具やインテリアによって表情を変えます。その瞬間、思わず深呼吸したくなるほど、空気は爽やかで、窓の外からは都会の喧騒を忘れさせる心地よい静けさが漂っています。
カスタリア麻布十番 701に住むことで、あなたの生活はまるでアートのように色鮮やかに彩られます。デザイナーズマンションならではの洗練された内装は、毎日の生活に新たなインスピレーションを与え、豊かな感性を刺激します。エレガントなキッチンには、調理道具が整然と並び、料理の香ばしい匂いが漂うことでしょう。特に、バルコニーで育てたハーブを使ったディナーは、特別な一皿にあなたの心を満たします。
この物件には、オートロックとエレベーター、さらに宅配ボックスが完備されており、あなたの生活は安心と便利さで支えられています。管理人の目が行き届く、清潔感あふれる共用スペースは、まるで親しい友人が訪れたときのような温かみを感じさせてくれます。そして、麻布十番の歴史ある街並みに身を置くことで、時折耳にする伝統的な祭りや文化イベントが、あなたの心にも新たな情熱を呼び起こします。
周辺のカフェやショップは、まるで高級ブランドのショーウィンドウのように、あなたの感性を刺激する美しい存在です。散策するたび、新しい発見があなたを待っています。気持ちの良い風に誘われて、ふと立ち寄ったおしゃれなカフェで、特製のスイーツを口にすれば、その甘さが心に残り、何度も訪れたくなることでしょう。
カスタリア麻布十番 701での生活は、あなた自身が物語の主人公となり、毎日が新しい冒険の始まりです。住む人はただの居住者ではなく、この特別な空間の一部となり、それぞれの物語を紡ぎ出していくのです。さあ、あなたもこの場所で、新たなストーリーを始めてみませんか。
この物件は、美しい麻布十番の中心に位置しており、南を向いた窓から差し込む柔らかな光は、朝の目覚めを優しく包み込みます。LDK 19.6…カスタリア麻布十番 701。あなたの新しい生活の舞台が、ここに待ち構えています。701という数字は、ただの階数ではなく、あなたのライフスタイルを新たな高みへと引き上げる特別な印。54.9㎡の広がりに、心が躍る空間が広がり、日々の暮らしに小さな奇跡をもたらします。
この物件は、美しい麻布十番の中心に位置しており、南を向いた窓から差し込む柔らかな光は、朝の目覚めを優しく包み込みます。LDK 19.6帖の広々としたスペースは、まるで心躍る映画のワンシーンのように、あなたの選ぶ家具やインテリアによって表情を変えます。その瞬間、思わず深呼吸したくなるほど、空気は爽やかで、窓の外からは都会の喧騒を忘れさせる心地よい静けさが漂っています。
カスタリア麻布十番 701に住むことで、あなたの生活はまるでアートのように色鮮やかに彩られます。デザイナーズマンションならではの洗練された内装は、毎日の生活に新たなインスピレーションを与え、豊かな感性を刺激します。エレガントなキッチンには、調理道具が整然と並び、料理の香ばしい匂いが漂うことでしょう。特に、バルコニーで育てたハーブを使ったディナーは、特別な一皿にあなたの心を満たします。
この物件には、オートロックとエレベーター、さらに宅配ボックスが完備されており、あなたの生活は安心と便利さで支えられています。管理人の目が行き届く、清潔感あふれる共用スペースは、まるで親しい友人が訪れたときのような温かみを感じさせてくれます。そして、麻布十番の歴史ある街並みに身を置くことで、時折耳にする伝統的な祭りや文化イベントが、あなたの心にも新たな情熱を呼び起こします。
周辺のカフェやショップは、まるで高級ブランドのショーウィンドウのように、あなたの感性を刺激する美しい存在です。散策するたび、新しい発見があなたを待っています。気持ちの良い風に誘われて、ふと立ち寄ったおしゃれなカフェで、特製のスイーツを口にすれば、その甘さが心に残り、何度も訪れたくなることでしょう。
カスタリア麻布十番 701での生活は、あなた自身が物語の主人公となり、毎日が新しい冒険の始まりです。住む人はただの居住者ではなく、この特別な空間の一部となり、それぞれの物語を紡ぎ出していくのです。さあ、あなたもこの場所で、新たなストーリーを始めてみませんか。
バイブルスコア
バイブルスコア: 20.8
平均的なスコアです。
※バイブルスコア詳細はこちら
バイブルスコアとは独自のAI機械学習技術を利用した物件評価システムで、物件のおすすめ度を示します。最高得点は100点で、スコアが高いほど、よりおすすめの物件と評価されています。
写真
契約条件
| 賃料 | 予想金額:277,000〜297,000円程度 | 管理費 | 予想金額:0〜2,000円程度 |
| 礼金 | 非公開(アーカイブ) | 敷金 | 非公開(アーカイブ) |
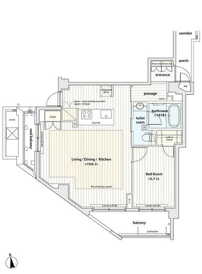
| フリーレント | 1.0ヶ月 | 平米数 | 54.9㎡ |
| 間取り | 1LDK | 大型収納 | |
| 契約期間 |
| 方角 | 南 |
| 更新料 | 契約形態 | 普通賃貸借契約 | |
| 取引態様 | 媒介 | 内見状況 | 入居中 |
| 入居時期 | 入居中 | SOHO・事務所 | |
| ペット | 間取り内訳 | 洋:5.7 LDK:19.6 | |
| キャンペーン情報・備考 | 本情報は賃料改定交渉の資料作成、収益物件の利回り試算、周辺エリアや最寄り駅の坪単価分析、次回募集開始時期の予測などにご活用いただけます。 | ||
※「どの不動産に頼めばいいのか分からない」「信頼できる営業マンの話を聞きたい」「一番親切な会社と契約したい」とお悩みの方におすすめなのが「高級賃貸バイブル」です。
高級賃貸バイブルは業界10年以上の熟練スタッフ群がお客様ファーストで対応します。
下記ボタンから、まずは無料でご相談下さい。
※内覧をご希望の際には、どうぞ物件のエントランス前にてお待ち合わせくださいませ。ご内覧後は、同じ場所でお別れとさせていただきます。お客様のご都合に合わせたスムーズなご案内を心がけておりますので、ご質問等がございましたら何なりとお申し付けください。 物件概要
| 物件名 |
| 築年月 |
|
|---|---|---|---|
| 所在地 | |||
| 交通 | |||
| 総戸数 |
| 総階数 |
|
| 構造 |
| ||
地図
物件までの道のりは、「拡大地図を表示」をクリックしてナビ機能をご利用ください。
部屋設備














建物設備

TVモニターホン

エレベーター

オートロック

宅配ボックス

敷地内ゴミ置場

管理人

駐車場平置き

駐輪場
カスタリア麻布十番の現在募集中のお部屋
- No rooms found for this property.




















