
| 賃料 | 予想金額:258,000〜278,000円程度 | 管理費 | 予想金額:0〜2,000円程度 |
| 礼金/敷金 | 非公開(アーカイブ) | 平米数 | 49.24㎡ |
| 初期費用概算(参考) | 目安:711,500〜811,500 円 | みなし賃料(月額・参考) | 268,281〜288,281 円 |
| 備考 | 本ページは過去募集のアーカイブです。表示の金額は周辺相場・過去募集を踏まえた参考レンジであり、実際の契約金額・条件ではありません。 | ||
※上記みなし賃料(月額)は仲介手数料割引・無料&キャッシュバックを加味した高級賃貸バイブル限定の金額です。一般的なみなし賃料とは異なります。
【建物ページ】カスタリア麻布十番の詳細・最新空室はこちら▶▶選ばれる理由
仲介手数料無料・キャンペーン情報(毎月15名様限定)
〇仲介手数料割引キャンペーン
カスタリア麻布十番 803の口コミ・レビュー
カスタリア麻布十番 803。東京の心臓部、港区麻布十番に佇むこの物件は、まるで洗練されたシンフォニーのように、あなたを特別な世界へと誘います。803号室に足を踏み入れた瞬間、北向きの窓から差し込む柔らかな光が、空間全体を優しく包み込み、あなたの心を穏やかにさせてくれます。
このカスタリア麻布十番 803は、49.24㎡の贅沢な空間を誇り、その中で人生の美しい瞬間を楽しむことができる特権をあなたに…カスタリア麻布十番 803。東京の心臓部、港区麻布十番に佇むこの物件は、まるで洗練されたシンフォニーのように、あなたを特別な世界へと誘います。803号室に足を踏み入れた瞬間、北向きの窓から差し込む柔らかな光が、空間全体を優しく包み込み、あなたの心を穏やかにさせてくれます。
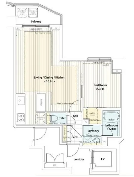
このカスタリア麻布十番 803は、49.24㎡の贅沢な空間を誇り、その中で人生の美しい瞬間を楽しむことができる特権をあなたに授けます。LDKは16.9帖の広さを持ち、そこには温かみのある木質の床が心地良い触感を与え、あなたを包み込むように迎え入れてくれます。友人と共に語らいのひとときを過ごしたり、特別な日のディナーを楽しんだりすることで、まるで映画の一場面のような、幸せな時間が流れます。
そして、5.6帖の洋室は、あなたのプライベートな空間として、心の拠り所となります。静寂の中で読書に耽るとき、ページをめくる音が心に響き渡り、まるで時の流れを忘れてしまうほどの没入感を与えてくれます。窓の外には、東京の街並みが広がる景色が一望でき、日常の喧騒を忘れさせてくれるのです。
カスタリア麻布十番 803には、最新の設備も整っています。TVモニターホンから聞こえるチャイムは、まるであなたを迎えるセレモニーのようで、エレガントな生活をもたらします。また、オートロックシステムによって、安心感が加わり、無駄な心配をせずに日々を楽しめます。宅配ボックスがあることで、忙しいあなたのライフスタイルにも寄り添い、いつでも気軽に荷物を受け取ることができます。
周囲の文化や歴史も、あなたの生活を彩ります。麻布十番の街並みは、古き良き日本の風情と現代的な洗練が共存しており、歴史の重みを感じながら、アートやグルメを楽しむことができます。美しいカフェの香りや、隣接する庭園の四季折々の風景が、あなたの毎日を彩るでしょう。
カスタリア麻布十番 803は、単なる住まいではなく、あなたの人生を豊かにする舞台です。ここで紡がれる日々が、あなたの心の中に美しい映画のように刻まれていくことでしょう。さあ、あなたの新たな物語をこの特別な空間で始めてみませんか。
このカスタリア麻布十番 803は、49.24㎡の贅沢な空間を誇り、その中で人生の美しい瞬間を楽しむことができる特権をあなたに…カスタリア麻布十番 803。東京の心臓部、港区麻布十番に佇むこの物件は、まるで洗練されたシンフォニーのように、あなたを特別な世界へと誘います。803号室に足を踏み入れた瞬間、北向きの窓から差し込む柔らかな光が、空間全体を優しく包み込み、あなたの心を穏やかにさせてくれます。
このカスタリア麻布十番 803は、49.24㎡の贅沢な空間を誇り、その中で人生の美しい瞬間を楽しむことができる特権をあなたに授けます。LDKは16.9帖の広さを持ち、そこには温かみのある木質の床が心地良い触感を与え、あなたを包み込むように迎え入れてくれます。友人と共に語らいのひとときを過ごしたり、特別な日のディナーを楽しんだりすることで、まるで映画の一場面のような、幸せな時間が流れます。
そして、5.6帖の洋室は、あなたのプライベートな空間として、心の拠り所となります。静寂の中で読書に耽るとき、ページをめくる音が心に響き渡り、まるで時の流れを忘れてしまうほどの没入感を与えてくれます。窓の外には、東京の街並みが広がる景色が一望でき、日常の喧騒を忘れさせてくれるのです。
カスタリア麻布十番 803には、最新の設備も整っています。TVモニターホンから聞こえるチャイムは、まるであなたを迎えるセレモニーのようで、エレガントな生活をもたらします。また、オートロックシステムによって、安心感が加わり、無駄な心配をせずに日々を楽しめます。宅配ボックスがあることで、忙しいあなたのライフスタイルにも寄り添い、いつでも気軽に荷物を受け取ることができます。
周囲の文化や歴史も、あなたの生活を彩ります。麻布十番の街並みは、古き良き日本の風情と現代的な洗練が共存しており、歴史の重みを感じながら、アートやグルメを楽しむことができます。美しいカフェの香りや、隣接する庭園の四季折々の風景が、あなたの毎日を彩るでしょう。
カスタリア麻布十番 803は、単なる住まいではなく、あなたの人生を豊かにする舞台です。ここで紡がれる日々が、あなたの心の中に美しい映画のように刻まれていくことでしょう。さあ、あなたの新たな物語をこの特別な空間で始めてみませんか。
バイブルスコア
バイブルスコア: 17.7
高級な物件でない場合は割高な物件です。。
※バイブルスコア詳細はこちら
バイブルスコアとは独自のAI機械学習技術を利用した物件評価システムで、物件のおすすめ度を示します。最高得点は100点で、スコアが高いほど、よりおすすめの物件と評価されています。
写真
契約条件
| 賃料 | 予想金額:258,000〜278,000円程度 | 管理費 | 予想金額:0〜2,000円程度 |
| 礼金 | 非公開(アーカイブ) | 敷金 | 非公開(アーカイブ) |
| フリーレント | なし | 平米数 | 49.24㎡ |
| 間取り | 1LDK | 大型収納 | |
| 契約期間 |
| 方角 | 北 |
| 更新料 | 契約形態 | 普通賃貸借契約 | |
| 取引態様 | 媒介 | 内見状況 | 入居中 |
| 入居時期 | 入居中 | SOHO・事務所 | |
| ペット | 間取り内訳 | 洋室5.6畳 LDK16.9畳 | |
| キャンペーン情報・備考 | 本情報は賃料改定交渉の資料作成、収益物件の利回り試算、周辺エリアや最寄り駅の坪単価分析、次回募集開始時期の予測などにご活用いただけます。 | ||
※「どの不動産に頼めばいいのか分からない」「信頼できる営業マンの話を聞きたい」「一番親切な会社と契約したい」とお悩みの方におすすめなのが「高級賃貸バイブル」です。
高級賃貸バイブルは業界10年以上の熟練スタッフ群がお客様ファーストで対応します。
下記ボタンから、まずは無料でご相談下さい。
※内覧をご希望の際には、どうぞ物件のエントランス前にてお待ち合わせくださいませ。ご内覧後は、同じ場所でお別れとさせていただきます。お客様のご都合に合わせたスムーズなご案内を心がけておりますので、ご質問等がございましたら何なりとお申し付けください。 物件概要
| 物件名 |
| 築年月 |
|
|---|---|---|---|
| 所在地 | |||
| 交通 | |||
| 総戸数 |
| 総階数 |
|
| 構造 |
| ||
地図
物件までの道のりは、「拡大地図を表示」をクリックしてナビ機能をご利用ください。
部屋設備











建物設備

TVモニターホン

エレベーター

オートロック

宅配ボックス

敷地内ゴミ置場

管理人

駐車場平置き

駐輪場
カスタリア麻布十番の現在募集中のお部屋
- No rooms found for this property.




















