
| 賃料 | 予想金額:223,000〜243,000円程度 | 管理費 | 予想金額:0〜2,000円程度 |
| 礼金/敷金 | 非公開(アーカイブ) | 平米数 | 49.24㎡ |
| 初期費用概算(参考) | 目安:857,000〜957,000 円 | みなし賃料(月額・参考) | 237,042〜257,042 円 |
| 備考 | 本ページは過去募集のアーカイブです。表示の金額は周辺相場・過去募集を踏まえた参考レンジであり、実際の契約金額・条件ではありません。 | ||
※上記みなし賃料(月額)は仲介手数料割引・無料&キャッシュバックを加味した高級賃貸バイブル限定の金額です。一般的なみなし賃料とは異なります。
【建物ページ】カスタリア麻布十番の詳細・最新空室はこちら▶▶選ばれる理由
仲介手数料無料・キャンペーン情報(毎月15名様限定)
〇仲介手数料割引キャンペーン
カスタリア麻布十番 207の口コミ・レビュー
カスタリア麻布十番 207。この美しい名前が呼びかけるたび、あなたを優雅な生活へと誘います。ここには、ただの住まいではなく、心を満たしてくれる空間が広がっています。専有面積49.24㎡の中に、まるで心を込めて編まれた絨毯のような穏やかな世界が広がっているのです。
北向きの窓から差し込む柔らかな光が、洋室5.6帖を優しく照らし出します。ここはまるで、静かな画家が描いた一枚の絵画のよう。あなたの足元…カスタリア麻布十番 207。この美しい名前が呼びかけるたび、あなたを優雅な生活へと誘います。ここには、ただの住まいではなく、心を満たしてくれる空間が広がっています。専有面積49.24㎡の中に、まるで心を込めて編まれた絨毯のような穏やかな世界が広がっているのです。
北向きの窓から差し込む柔らかな光が、洋室5.6帖を優しく照らし出します。ここはまるで、静かな画家が描いた一枚の絵画のよう。あなたの足元には、ゆっくりとした午後の読書にぴったりなクッションが待っているかもしれません。彼らは、あなたの心を捉え、日々の疲れを優しく解きほぐしてくれる存在です。
LDK16.9帖は、まるで舞台のセットのように広々とした空間。そこには、あなたが夢見るホームパーティーの情景が浮かびます。友人たちが笑い声を響かせ、グラスが触れ合う音が心地良く響く中、香ばしい料理の香りが漂います。キッチンから立ち上るスパイスの香りは、あなたの創造力をさらに駆り立て、料理の腕前を披露するチャンスを与えてくれることでしょう。
カスタリア麻布十番 207は、ただのデザイナーズマンションではなく、あなたの新しい人生の舞台です。オートロックやTVモニターホンという便利な設備は、あなたの日常を守る頼もしいパートナーとして存在します。エレベーターで移動する瞬間さえも、まるで特別な旅の一部のように感じられるでしょう。宅配ボックスからの荷物の受け取りも、まるで宝物を手に入れるかのような喜びを思い起こさせます。
この地、港区麻布十番は歴史と文化が交錯する特別な場所です。石畳の道を歩きながら、昔から続く老舗の洋食屋や、現代アートを楽しめるギャラリーを訪れれば、まるで時空を超えた旅をしているかのようです。麻布十番駅から徒歩3分というアクセスの良さも、人生のさまざまなシーンであなたを支えてくれます。
カスタリア麻布十番 207は、ただ居住するための場所ではありません。そこはあなたの人生のシーンを彩るキャンバスであり、毎日が映画のワンシーンのようにドラマティックに繰り広げられる場所なのです。新たな生活が始まるその瞬間のために、あなたをお待ちしています。心と身体が喜びに満ちる日々が、ここに待っているのです。
北向きの窓から差し込む柔らかな光が、洋室5.6帖を優しく照らし出します。ここはまるで、静かな画家が描いた一枚の絵画のよう。あなたの足元…カスタリア麻布十番 207。この美しい名前が呼びかけるたび、あなたを優雅な生活へと誘います。ここには、ただの住まいではなく、心を満たしてくれる空間が広がっています。専有面積49.24㎡の中に、まるで心を込めて編まれた絨毯のような穏やかな世界が広がっているのです。
北向きの窓から差し込む柔らかな光が、洋室5.6帖を優しく照らし出します。ここはまるで、静かな画家が描いた一枚の絵画のよう。あなたの足元には、ゆっくりとした午後の読書にぴったりなクッションが待っているかもしれません。彼らは、あなたの心を捉え、日々の疲れを優しく解きほぐしてくれる存在です。
LDK16.9帖は、まるで舞台のセットのように広々とした空間。そこには、あなたが夢見るホームパーティーの情景が浮かびます。友人たちが笑い声を響かせ、グラスが触れ合う音が心地良く響く中、香ばしい料理の香りが漂います。キッチンから立ち上るスパイスの香りは、あなたの創造力をさらに駆り立て、料理の腕前を披露するチャンスを与えてくれることでしょう。
カスタリア麻布十番 207は、ただのデザイナーズマンションではなく、あなたの新しい人生の舞台です。オートロックやTVモニターホンという便利な設備は、あなたの日常を守る頼もしいパートナーとして存在します。エレベーターで移動する瞬間さえも、まるで特別な旅の一部のように感じられるでしょう。宅配ボックスからの荷物の受け取りも、まるで宝物を手に入れるかのような喜びを思い起こさせます。
この地、港区麻布十番は歴史と文化が交錯する特別な場所です。石畳の道を歩きながら、昔から続く老舗の洋食屋や、現代アートを楽しめるギャラリーを訪れれば、まるで時空を超えた旅をしているかのようです。麻布十番駅から徒歩3分というアクセスの良さも、人生のさまざまなシーンであなたを支えてくれます。
カスタリア麻布十番 207は、ただ居住するための場所ではありません。そこはあなたの人生のシーンを彩るキャンバスであり、毎日が映画のワンシーンのようにドラマティックに繰り広げられる場所なのです。新たな生活が始まるその瞬間のために、あなたをお待ちしています。心と身体が喜びに満ちる日々が、ここに待っているのです。
バイブルスコア
バイブルスコア: 36.8
平均的なスコアです。
※バイブルスコア詳細はこちら
バイブルスコアとは独自のAI機械学習技術を利用した物件評価システムで、物件のおすすめ度を示します。最高得点は100点で、スコアが高いほど、よりおすすめの物件と評価されています。
写真
契約条件
| 賃料 | 予想金額:223,000〜243,000円程度 | 管理費 | 予想金額:0〜2,000円程度 |
| 礼金 | 非公開(アーカイブ) | 敷金 | 非公開(アーカイブ) |
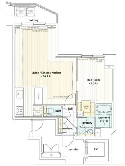
| フリーレント | なし | 平米数 | 49.24㎡ |
| 間取り | 1LDK | 大型収納 | |
| 契約期間 |
| 方角 | 北 |
| 更新料 | 契約形態 | 普通賃貸借契約 | |
| 取引態様 | 媒介 | 内見状況 | 入居中 |
| 入居時期 | 入居中 | SOHO・事務所 | |
| ペット | 間取り内訳 | 洋室5.6畳 LDK16.9畳 | |
| キャンペーン情報・備考 | 本情報は賃料改定交渉の資料作成、収益物件の利回り試算、周辺エリアや最寄り駅の坪単価分析、次回募集開始時期の予測などにご活用いただけます。 | ||
※「どの不動産に頼めばいいのか分からない」「信頼できる営業マンの話を聞きたい」「一番親切な会社と契約したい」とお悩みの方におすすめなのが「高級賃貸バイブル」です。
高級賃貸バイブルは業界10年以上の熟練スタッフ群がお客様ファーストで対応します。
下記ボタンから、まずは無料でご相談下さい。
※内覧をご希望の際には、どうぞ物件のエントランス前にてお待ち合わせくださいませ。ご内覧後は、同じ場所でお別れとさせていただきます。お客様のご都合に合わせたスムーズなご案内を心がけておりますので、ご質問等がございましたら何なりとお申し付けください。 物件概要
| 物件名 |
| 築年月 |
|
|---|---|---|---|
| 所在地 | |||
| 交通 | |||
| 総戸数 |
| 総階数 |
|
| 構造 |
| ||
地図
物件までの道のりは、「拡大地図を表示」をクリックしてナビ機能をご利用ください。
部屋設備











建物設備

TVモニターホン

エレベーター

オートロック

宅配ボックス

敷地内ゴミ置場

管理人

駐車場平置き

駐輪場
カスタリア麻布十番の現在募集中のお部屋
- No rooms found for this property.




















