
| 賃料 | 予想金額:213,000〜233,000円程度 | 管理費 | 予想金額:0〜2,000円程度 |
| 礼金/敷金 | 非公開(アーカイブ) | 平米数 | 40.15㎡ |
| 初期費用概算(参考) | 目安:376,000〜476,000 円 | みなし賃料(月額・参考) | 221,875〜241,875 円 |
| 備考 | 本ページは過去募集のアーカイブです。表示の金額は周辺相場・過去募集を踏まえた参考レンジであり、実際の契約金額・条件ではありません。 | ||
※上記みなし賃料(月額)は仲介手数料割引・無料&キャッシュバックを加味した高級賃貸バイブル限定の金額です。一般的なみなし賃料とは異なります。
【建物ページ】カスタリア麻布十番の詳細・最新空室はこちら▶▶選ばれる理由
仲介手数料無料・キャンペーン情報(毎月15名様限定)
〇フリーレント1か月キャンペーン
カスタリア麻布十番 502の口コミ・レビュー
カスタリア麻布十番 502。あなたの新しい生活が、ここで幕を開けます。まるでアートのように洗練されたデザインの中で、心豊かな日々が待っています。502の扉を開ける瞬間、そこには異次元の世界が広がります。西向きの窓から流れ込む柔らかな光は、朝日と共にこの優雅な空間を暖かく包み込み、1LDKの間取りは、まるであなたのライフスタイルに寄り添うかのように設計されています。
最初に目に飛び込んでくるのは、…カスタリア麻布十番 502。あなたの新しい生活が、ここで幕を開けます。まるでアートのように洗練されたデザインの中で、心豊かな日々が待っています。502の扉を開ける瞬間、そこには異次元の世界が広がります。西向きの窓から流れ込む柔らかな光は、朝日と共にこの優雅な空間を暖かく包み込み、1LDKの間取りは、まるであなたのライフスタイルに寄り添うかのように設計されています。
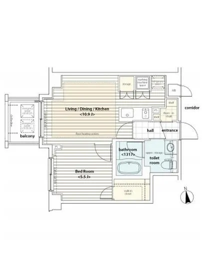
最初に目に飛び込んでくるのは、広々としたLDK10.9帖。ここはまさに社交の舞台です。大切な人と共に美味しい食事を囲む姿を想像してみてください。テーブルの上には、色とりどりの料理が並び、香ばしいバターの香りや、新鮮なハーブの香りが漂う中、会話が弾む様子はまるで映画の一シーンのようです。フローリングに足を踏み入れるたびに、心地よい温もりが広がり、まるで自然の一部となったかのような感覚を味わえることでしょう。
洋室5.5帖では、プライベートな時間を存分に楽しむことができます。一日の疲れを癒すために、ふかふかのベッドに身を沈め、静寂に包まれる瞬間を堪能してください。心を落ち着け、深呼吸をすれば、外から聞こえる街の音が、まるで優しい子守唄のように感じられることでしょう。
カスタリア麻布十番 502の周辺には、歴史ある街並みや文化が息づいており、まるで時が止まったような美しい景色が広がります。麻布十番駅から徒歩3分の距離にあり、アクセスも抜群です。忙しい日々の合間に、近くのカフェに立ち寄り、温かなコーヒーの香ばしい香りを楽しむこともできます。都心の喧騒を忘れ、静かな時間を過ごすことができるこの場所で、あなたの新しいストーリーが紡がれていくのです。
さらに、カスタリア麻布十番 502の魅力には、安心感を与えるオートロックやエレベーター、宅配ボックスも完備されています。日々の生活がより便利になることはもちろん、こちらの物件があなたを優しく見守ってくれる存在となることを約束します。
カスタリア麻布十番 502は、あなたにとってただの住まいではなく、心の拠り所であり、生活の舞台です。ここで新しい物語を作り上げる準備は整いました。一歩を踏み出し、この特別な空間での生活を始めてみませんか。あなたの夢が、ここで叶います。
最初に目に飛び込んでくるのは、…カスタリア麻布十番 502。あなたの新しい生活が、ここで幕を開けます。まるでアートのように洗練されたデザインの中で、心豊かな日々が待っています。502の扉を開ける瞬間、そこには異次元の世界が広がります。西向きの窓から流れ込む柔らかな光は、朝日と共にこの優雅な空間を暖かく包み込み、1LDKの間取りは、まるであなたのライフスタイルに寄り添うかのように設計されています。
最初に目に飛び込んでくるのは、広々としたLDK10.9帖。ここはまさに社交の舞台です。大切な人と共に美味しい食事を囲む姿を想像してみてください。テーブルの上には、色とりどりの料理が並び、香ばしいバターの香りや、新鮮なハーブの香りが漂う中、会話が弾む様子はまるで映画の一シーンのようです。フローリングに足を踏み入れるたびに、心地よい温もりが広がり、まるで自然の一部となったかのような感覚を味わえることでしょう。
洋室5.5帖では、プライベートな時間を存分に楽しむことができます。一日の疲れを癒すために、ふかふかのベッドに身を沈め、静寂に包まれる瞬間を堪能してください。心を落ち着け、深呼吸をすれば、外から聞こえる街の音が、まるで優しい子守唄のように感じられることでしょう。
カスタリア麻布十番 502の周辺には、歴史ある街並みや文化が息づいており、まるで時が止まったような美しい景色が広がります。麻布十番駅から徒歩3分の距離にあり、アクセスも抜群です。忙しい日々の合間に、近くのカフェに立ち寄り、温かなコーヒーの香ばしい香りを楽しむこともできます。都心の喧騒を忘れ、静かな時間を過ごすことができるこの場所で、あなたの新しいストーリーが紡がれていくのです。
さらに、カスタリア麻布十番 502の魅力には、安心感を与えるオートロックやエレベーター、宅配ボックスも完備されています。日々の生活がより便利になることはもちろん、こちらの物件があなたを優しく見守ってくれる存在となることを約束します。
カスタリア麻布十番 502は、あなたにとってただの住まいではなく、心の拠り所であり、生活の舞台です。ここで新しい物語を作り上げる準備は整いました。一歩を踏み出し、この特別な空間での生活を始めてみませんか。あなたの夢が、ここで叶います。
バイブルスコア
バイブルスコア: 17.4
高級な物件でない場合は割高な物件です。。
※バイブルスコア詳細はこちら
バイブルスコアとは独自のAI機械学習技術を利用した物件評価システムで、物件のおすすめ度を示します。最高得点は100点で、スコアが高いほど、よりおすすめの物件と評価されています。
写真
契約条件
| 賃料 | 予想金額:213,000〜233,000円程度 | 管理費 | 予想金額:0〜2,000円程度 |
| 礼金 | 非公開(アーカイブ) | 敷金 | 非公開(アーカイブ) |
| フリーレント | 1.0ヶ月 | 平米数 | 40.15㎡ |
| 間取り | 1LDK | 大型収納 | WIC+SIC |
| 契約期間 |
| 方角 | 西 |
| 更新料 | 契約形態 | 普通賃貸借契約 | |
| 取引態様 | 媒介 | 内見状況 | 入居中 |
| 入居時期 | 入居中 | SOHO・事務所 | |
| ペット | 間取り内訳 | 洋室5.5J LDK10.9J | |
| キャンペーン情報・備考 | 本情報は賃料改定交渉の資料作成、収益物件の利回り試算、周辺エリアや最寄り駅の坪単価分析、次回募集開始時期の予測などにご活用いただけます。 | ||
※「どの不動産に頼めばいいのか分からない」「信頼できる営業マンの話を聞きたい」「一番親切な会社と契約したい」とお悩みの方におすすめなのが「高級賃貸バイブル」です。
高級賃貸バイブルは業界10年以上の熟練スタッフ群がお客様ファーストで対応します。
下記ボタンから、まずは無料でご相談下さい。
※内覧をご希望の際には、どうぞ物件のエントランス前にてお待ち合わせくださいませ。ご内覧後は、同じ場所でお別れとさせていただきます。お客様のご都合に合わせたスムーズなご案内を心がけておりますので、ご質問等がございましたら何なりとお申し付けください。 物件概要
| 物件名 |
| 築年月 |
|
|---|---|---|---|
| 所在地 | |||
| 交通 | |||
| 総戸数 |
| 総階数 |
|
| 構造 |
| ||
地図
物件までの道のりは、「拡大地図を表示」をクリックしてナビ機能をご利用ください。
部屋設備
















建物設備

TVモニターホン

エレベーター

オートロック

宅配ボックス

敷地内ゴミ置場

管理人

駐車場平置き

駐輪場
カスタリア麻布十番の現在募集中のお部屋
- No rooms found for this property.




















