
| 賃料 | 予想金額:135,000〜155,000円程度 | 管理費 | 予想金額:23,000〜27,000円程度 |
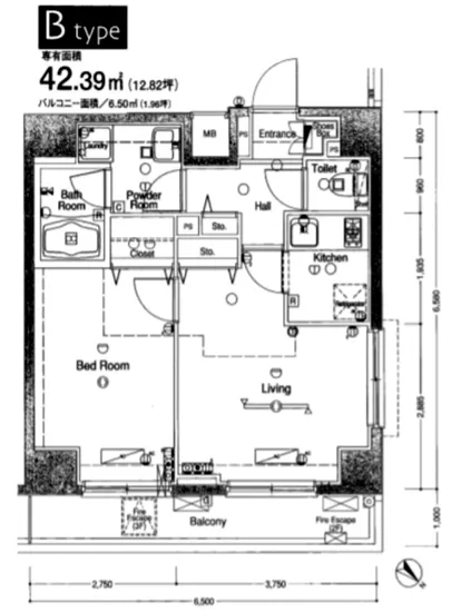
| 礼金/敷金 | 非公開(アーカイブ) | 平米数 | 42.39㎡ |
| 初期費用概算(参考) | 目安:441,500〜541,500 円 | みなし賃料(月額・参考) | 167,219〜187,219 円 |
| 備考 | 本ページは過去募集のアーカイブです。表示の金額は周辺相場・過去募集を踏まえた参考レンジであり、実際の契約金額・条件ではありません。 | ||
※上記みなし賃料(月額)は仲介手数料割引・無料&キャッシュバックを加味した高級賃貸バイブル限定の金額です。一般的なみなし賃料とは異なります。
【建物ページ】ブライズ東京キャナルの詳細・最新空室はこちら▶▶選ばれる理由
仲介手数料無料・キャンペーン情報(毎月15名様限定)
〇仲介手数料割引キャンペーン
ブライズ東京キャナル 202の口コミ・レビュー
ブライズ東京キャナル 202。この名を耳にした瞬間、心躍る期待感が胸を満たします。まるで、人生の新たな一章を開くための扉が目の前に現れたかのようです。東京都中央区勝どき3-16-3に位置するこの物件は、都営地下鉄大江戸線の勝どき駅から徒歩5分という絶好のロケーション。日常の喧騒から少し離れ、穏やかな時間が流れる場所で、あなたの新しい生活が始まります。
ブライズ東京キャナル 202は、まるで洗練さ…ブライズ東京キャナル 202。この名を耳にした瞬間、心躍る期待感が胸を満たします。まるで、人生の新たな一章を開くための扉が目の前に現れたかのようです。東京都中央区勝どき3-16-3に位置するこの物件は、都営地下鉄大江戸線の勝どき駅から徒歩5分という絶好のロケーション。日常の喧騒から少し離れ、穏やかな時間が流れる場所で、あなたの新しい生活が始まります。
ブライズ東京キャナル 202は、まるで洗練されたアートピースのように、あなたを迎え入れます。42.39㎡の専有面積を持つ1LDKは、ただの居住空間ではなく、心の安息地と呼ぶにふさわしい空間です。広がるLDKは、まるで大自然が広がる野原のように開放的で、日差しが優しく差し込み、心地よい温もりが部屋全体を包みます。洗練されたデザインは、現代的なシンプルさを保ちながらも、独自の温かさを呼び覚まします。
この居住空間では、毎朝、アロマの香りが漂うコーヒーを淹れ、ゆったりとした時間の流れに身を委ねることができます。窓からは北東と北西の眺望が広がり、街の喧騒を忘れさせる静寂が漂います。何気ない日常の中に、まるで映画のワンシーンのようなドラマを感じることができるでしょう。時折、風が窓を優しく揺らし、まるで自然があなたに語りかけているかのようです。
ブライズ東京キャナル 202の魅力は、設備にも宿っています。TVモニターホンやエレベーター、オートロックは、安心のセキュリティを提供し、宅配ボックスでのお届け物も、あなたの生活をスマートにサポートします。管理人がいることで、さらに安心感が加わり、さまざまな人々との温かい交流が生まれる場所でもあります。敷地内にはゴミ置場も完備されており、日常の雑事もスムーズにクリアできます。
周辺には歴史や文化、さらには芸術が息づいています。勝どきエリアは、東京湾に近く、古くからの水辺の文化が色濃く残っています。この地に住むことで、歴史的な風景や街の営みを肌で感じることができます。近くの公園では春には桜が咲き誇り、夏には涼やかな風が吹き、秋には紅葉が彩り、冬には静かな雪景色が広がります。それぞれの季節が、あなたの生活を彩ることでしょう。
ブライズ東京キャナル 202は、ただの住まいではありません。それは、人生の新たな籠りし時間への誘い、そして日常の中に潜む感動を生み出す場所です。この物件に住むことで、心と体が安らぎ、豊かな日々を過ごすことができるのです。あなたの新しい物語が、ここから始まることを心より願っています。
ブライズ東京キャナル 202は、まるで洗練さ…ブライズ東京キャナル 202。この名を耳にした瞬間、心躍る期待感が胸を満たします。まるで、人生の新たな一章を開くための扉が目の前に現れたかのようです。東京都中央区勝どき3-16-3に位置するこの物件は、都営地下鉄大江戸線の勝どき駅から徒歩5分という絶好のロケーション。日常の喧騒から少し離れ、穏やかな時間が流れる場所で、あなたの新しい生活が始まります。
ブライズ東京キャナル 202は、まるで洗練されたアートピースのように、あなたを迎え入れます。42.39㎡の専有面積を持つ1LDKは、ただの居住空間ではなく、心の安息地と呼ぶにふさわしい空間です。広がるLDKは、まるで大自然が広がる野原のように開放的で、日差しが優しく差し込み、心地よい温もりが部屋全体を包みます。洗練されたデザインは、現代的なシンプルさを保ちながらも、独自の温かさを呼び覚まします。
この居住空間では、毎朝、アロマの香りが漂うコーヒーを淹れ、ゆったりとした時間の流れに身を委ねることができます。窓からは北東と北西の眺望が広がり、街の喧騒を忘れさせる静寂が漂います。何気ない日常の中に、まるで映画のワンシーンのようなドラマを感じることができるでしょう。時折、風が窓を優しく揺らし、まるで自然があなたに語りかけているかのようです。
ブライズ東京キャナル 202の魅力は、設備にも宿っています。TVモニターホンやエレベーター、オートロックは、安心のセキュリティを提供し、宅配ボックスでのお届け物も、あなたの生活をスマートにサポートします。管理人がいることで、さらに安心感が加わり、さまざまな人々との温かい交流が生まれる場所でもあります。敷地内にはゴミ置場も完備されており、日常の雑事もスムーズにクリアできます。
周辺には歴史や文化、さらには芸術が息づいています。勝どきエリアは、東京湾に近く、古くからの水辺の文化が色濃く残っています。この地に住むことで、歴史的な風景や街の営みを肌で感じることができます。近くの公園では春には桜が咲き誇り、夏には涼やかな風が吹き、秋には紅葉が彩り、冬には静かな雪景色が広がります。それぞれの季節が、あなたの生活を彩ることでしょう。
ブライズ東京キャナル 202は、ただの住まいではありません。それは、人生の新たな籠りし時間への誘い、そして日常の中に潜む感動を生み出す場所です。この物件に住むことで、心と体が安らぎ、豊かな日々を過ごすことができるのです。あなたの新しい物語が、ここから始まることを心より願っています。
バイブルスコア
バイブルスコア: 25.4
平均的なスコアです。
※バイブルスコア詳細はこちら
バイブルスコアとは独自のAI機械学習技術を利用した物件評価システムで、物件のおすすめ度を示します。最高得点は100点で、スコアが高いほど、よりおすすめの物件と評価されています。
写真
契約条件
| 賃料 | 予想金額:135,000〜155,000円程度 | 管理費 | 予想金額:23,000〜27,000円程度 |
| 礼金 | 非公開(アーカイブ) | 敷金 | 非公開(アーカイブ) |
| フリーレント | なし | 平米数 | 42.39㎡ |
| 間取り | 1LDK | 大型収納 | |
| 契約期間 |
| 方角 | 北東 / 北西 |
| 更新料 | 契約形態 | 普通賃貸借契約 | |
| 取引態様 | 媒介 | 内見状況 | 入居中 |
| 入居時期 | 入居中 | SOHO・事務所 | |
| ペット | 間取り内訳 | 洋: LDK: | |
| キャンペーン情報・備考 | 本情報は賃料改定交渉の資料作成、収益物件の利回り試算、周辺エリアや最寄り駅の坪単価分析、次回募集開始時期の予測などにご活用いただけます。 | ||
※「どの不動産に頼めばいいのか分からない」「信頼できる営業マンの話を聞きたい」「一番親切な会社と契約したい」とお悩みの方におすすめなのが「高級賃貸バイブル」です。
高級賃貸バイブルは業界10年以上の熟練スタッフ群がお客様ファーストで対応します。
下記ボタンから、まずは無料でご相談下さい。
※内覧をご希望の際には、どうぞ物件のエントランス前にてお待ち合わせくださいませ。ご内覧後は、同じ場所でお別れとさせていただきます。お客様のご都合に合わせたスムーズなご案内を心がけておりますので、ご質問等がございましたら何なりとお申し付けください。 物件概要
| 物件名 |
| 築年月 |
|
|---|---|---|---|
| 所在地 | |||
| 交通 | |||
| 総戸数 |
| 総階数 |
|
| 構造 |
| ||
地図
物件までの道のりは、「拡大地図を表示」をクリックしてナビ機能をご利用ください。
部屋設備










建物設備

TVモニターホン

エレベーター

オートロック

宅配ボックス

敷地内ゴミ置場

管理人

駐輪場
ブライズ東京キャナルの現在募集中のお部屋
- No rooms found for this property.









