
| 賃料 | 予想金額:145,000〜165,000円程度 | 管理費 | 予想金額:10,000〜14,000円程度 |
| 礼金/敷金 | 非公開(アーカイブ) | 平米数 | 40.21㎡ |
| 初期費用概算(参考) | 目安:144,000〜244,000 円 | みなし賃料(月額・参考) | 157,813〜177,813 円 |
| 備考 | 本ページは過去募集のアーカイブです。表示の金額は周辺相場・過去募集を踏まえた参考レンジであり、実際の契約金額・条件ではありません。 | ||
※上記みなし賃料(月額)は仲介手数料割引・無料&キャッシュバックを加味した高級賃貸バイブル限定の金額です。一般的なみなし賃料とは異なります。
【建物ページ】ラグゼナ大鳥居の詳細・最新空室はこちら▶▶選ばれる理由
仲介手数料無料・キャンペーン情報(毎月15名様限定)
〇引っ越しお祝い金93000円プレゼント(キャッシュバック)
〇仲介手数料無料キャンペーン
ラグゼナ大鳥居 201の口コミ・レビュー
ラグゼナ大鳥居 201。あなたが新たに迎えるこの特別な空間は、ただの住まいではありません。それは、心の奥深くに語りかけ、生活を彩る舞台なのです。2階に位置するこの物件は、自然光が優雅に差し込む窓から、西と北の二つの方角に広がる景色を楽しむことができます。40.21㎡の専有面積は、四つの季節を存分に感じながら、心地の良い時間を演出します。
入ると、まず目に飛び込むのは、心温まるLDKの空間。9帖の…ラグゼナ大鳥居 201。あなたが新たに迎えるこの特別な空間は、ただの住まいではありません。それは、心の奥深くに語りかけ、生活を彩る舞台なのです。2階に位置するこの物件は、自然光が優雅に差し込む窓から、西と北の二つの方角に広がる景色を楽しむことができます。40.21㎡の専有面積は、四つの季節を存分に感じながら、心地の良い時間を演出します。
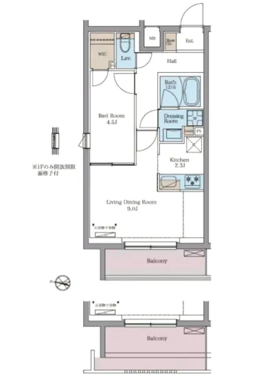
入ると、まず目に飛び込むのは、心温まるLDKの空間。9帖のリビングダイニングは、まるで家族や友人との語らいにぴったりな、優雅な舞台です。大切な人を招いて夕食を共にし、ワインの香りが漂う中、笑い声が響き渡る様子が目に浮かびます。そんなシーンを思い描けば、自然と心が弾んでしまいます。キッチンは2.3帖の広さで、料理する喜びが際立ちます。手にした食材が、あなたの創造性豊かな料理へと変わる瞬間を感じられることでしょう。
次に、静寂を求めるあなたにとって最高の隠れ家、洋室4.5帖。そこは、心の平穏が広がる場所。優しいベッドでゆったりと寛ぎ、穏やかな音楽を流しながら、夜空を眺める贅沢な時間を過ごすことができます。朝は新鮮なコーヒーの香りに包まれ、一日の始まりを穏やかに迎えてみませんか。
また、ラグゼナ大鳥居 201は、利便性にも恵まれています。最寄りの京急空港線糀谷駅まで徒歩わずか10分。忙しい日常から一歩引き、心地よい生活を送ることが可能です。周囲には、心を満たす歴史あるスポットや文化的なイベントも点在しています。大田区の歴史を感じながら、日々の散策もまた楽しみの一つとなるでしょう。
この物件は、あなたの生活を支えるために、しっかりとした設備を整えております。オートロックやエレベーター、宅配ボックスを完備しており、安全で快適な生活をお約束します。また、駐車場や駐輪場も完備しており、車や自転車での移動もスムーズです。まるで、あなたを優しく包み込むセーターのように、ラグゼナ大鳥居 201は心地よい安らぎを与えてくれます。
この高級賃貸物件は、ただの住まいではなく、あなたの人生の一部となり、共に成長し、共に喜びを分かち合う場所です。心を込めて、あなたをお迎えする準備が整ったラグゼナ大鳥居 201で、新たな生活のページを開いてみませんか。心の豊かさを感じる日々が、ここで待っています。
入ると、まず目に飛び込むのは、心温まるLDKの空間。9帖の…ラグゼナ大鳥居 201。あなたが新たに迎えるこの特別な空間は、ただの住まいではありません。それは、心の奥深くに語りかけ、生活を彩る舞台なのです。2階に位置するこの物件は、自然光が優雅に差し込む窓から、西と北の二つの方角に広がる景色を楽しむことができます。40.21㎡の専有面積は、四つの季節を存分に感じながら、心地の良い時間を演出します。
入ると、まず目に飛び込むのは、心温まるLDKの空間。9帖のリビングダイニングは、まるで家族や友人との語らいにぴったりな、優雅な舞台です。大切な人を招いて夕食を共にし、ワインの香りが漂う中、笑い声が響き渡る様子が目に浮かびます。そんなシーンを思い描けば、自然と心が弾んでしまいます。キッチンは2.3帖の広さで、料理する喜びが際立ちます。手にした食材が、あなたの創造性豊かな料理へと変わる瞬間を感じられることでしょう。
次に、静寂を求めるあなたにとって最高の隠れ家、洋室4.5帖。そこは、心の平穏が広がる場所。優しいベッドでゆったりと寛ぎ、穏やかな音楽を流しながら、夜空を眺める贅沢な時間を過ごすことができます。朝は新鮮なコーヒーの香りに包まれ、一日の始まりを穏やかに迎えてみませんか。
また、ラグゼナ大鳥居 201は、利便性にも恵まれています。最寄りの京急空港線糀谷駅まで徒歩わずか10分。忙しい日常から一歩引き、心地よい生活を送ることが可能です。周囲には、心を満たす歴史あるスポットや文化的なイベントも点在しています。大田区の歴史を感じながら、日々の散策もまた楽しみの一つとなるでしょう。
この物件は、あなたの生活を支えるために、しっかりとした設備を整えております。オートロックやエレベーター、宅配ボックスを完備しており、安全で快適な生活をお約束します。また、駐車場や駐輪場も完備しており、車や自転車での移動もスムーズです。まるで、あなたを優しく包み込むセーターのように、ラグゼナ大鳥居 201は心地よい安らぎを与えてくれます。
この高級賃貸物件は、ただの住まいではなく、あなたの人生の一部となり、共に成長し、共に喜びを分かち合う場所です。心を込めて、あなたをお迎えする準備が整ったラグゼナ大鳥居 201で、新たな生活のページを開いてみませんか。心の豊かさを感じる日々が、ここで待っています。
バイブルスコア
バイブルスコア: 17.4
高級な物件でない場合は割高な物件です。。
※バイブルスコア詳細はこちら
バイブルスコアとは独自のAI機械学習技術を利用した物件評価システムで、物件のおすすめ度を示します。最高得点は100点で、スコアが高いほど、よりおすすめの物件と評価されています。
写真
現在写真が登録されていません契約条件
| 賃料 | 予想金額:145,000〜165,000円程度 | 管理費 | 予想金額:10,000〜14,000円程度 |
| 礼金 | 非公開(アーカイブ) | 敷金 | 非公開(アーカイブ) |
| フリーレント | なし | 平米数 | 40.21㎡ |
| 間取り | 1LDK | 大型収納 | WIC |
| 契約期間 |
| 方角 | 西 / 北 |
| 更新料 | 契約形態 | 普通賃貸借契約 | |
| 取引態様 | 媒介 | 内見状況 | 入居中 |
| 入居時期 | 入居中 | SOHO・事務所 | |
| ペット | ペット可 | 間取り内訳 | 洋:4.5 LD:9 K:2.3 |
| キャンペーン情報・備考 | 本情報は賃料改定交渉の資料作成、収益物件の利回り試算、周辺エリアや最寄り駅の坪単価分析、次回募集開始時期の予測などにご活用いただけます。 | ||
※「どの不動産に頼めばいいのか分からない」「信頼できる営業マンの話を聞きたい」「一番親切な会社と契約したい」とお悩みの方におすすめなのが「高級賃貸バイブル」です。
高級賃貸バイブルは業界10年以上の熟練スタッフ群がお客様ファーストで対応します。
下記ボタンから、まずは無料でご相談下さい。
※内覧をご希望の際には、どうぞ物件のエントランス前にてお待ち合わせくださいませ。ご内覧後は、同じ場所でお別れとさせていただきます。お客様のご都合に合わせたスムーズなご案内を心がけておりますので、ご質問等がございましたら何なりとお申し付けください。 物件概要
| 物件名 |
| 築年月 |
|
|---|---|---|---|
| 所在地 | |||
| 交通 | |||
| 総戸数 |
| 総階数 |
|
| 構造 |
| ||
地図
物件までの道のりは、「拡大地図を表示」をクリックしてナビ機能をご利用ください。
部屋設備
















建物設備

TVモニターホン

エレベーター

オートロック

宅配ボックス

敷地内ゴミ置場

管理人

駐車場平置き

駐車場機械式

駐輪場
ラグゼナ大鳥居の現在募集中のお部屋
- No rooms found for this property.
