
| 賃料 | 予想金額:173,000〜193,000円程度 | 管理費 | 予想金額:6,000〜10,000円程度 |
| 礼金/敷金 | 非公開(アーカイブ) | 平米数 | 51.69㎡ |
| 初期費用概算(参考) | 目安:544,000〜644,000 円 | みなし賃料(月額・参考) | 189,563〜209,563 円 |
| 備考 | 本ページは過去募集のアーカイブです。表示の金額は周辺相場・過去募集を踏まえた参考レンジであり、実際の契約金額・条件ではありません。 | ||
※上記みなし賃料(月額)は仲介手数料割引・無料&キャッシュバックを加味した高級賃貸バイブル限定の金額です。一般的なみなし賃料とは異なります。
【建物ページ】HF学芸大学レジデンスの詳細・最新空室はこちら▶▶選ばれる理由
仲介手数料無料・キャンペーン情報(毎月15名様限定)
〇仲介手数料割引キャンペーン
HF学芸大学レジデンス 301の口コミ・レビュー
HF学芸大学レジデンス 301。この名前を耳にした瞬間、あなたはまるで静謐な森の奥に入り込んだかのような心地よい興奮を覚えることでしょう。東京都目黒区下目黒6-18-27に立ち、あなたをそっと迎え入れるこの邸宅は、一歩足を踏み入れた瞬間から特別な空間へと導いてくれます。
HF学芸大学レジデンス 301は、まるで熟成されたワインのように、時間をかけてその魅力を育んできました。301号室は、51.6…HF学芸大学レジデンス 301。この名前を耳にした瞬間、あなたはまるで静謐な森の奥に入り込んだかのような心地よい興奮を覚えることでしょう。東京都目黒区下目黒6-18-27に立ち、あなたをそっと迎え入れるこの邸宅は、一歩足を踏み入れた瞬間から特別な空間へと導いてくれます。
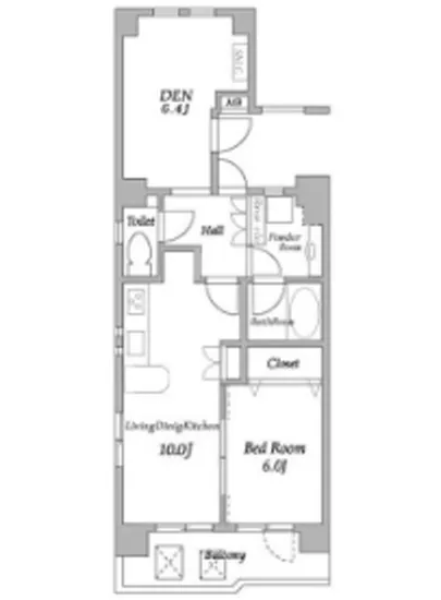
HF学芸大学レジデンス 301は、まるで熟成されたワインのように、時間をかけてその魅力を育んできました。301号室は、51.69㎡の広さを誇る1LDKという洗練された間取りを有し、心地よい光と風を取り込みます。持つ者のセンスを映し出すこのスペースは、まるで自分自身のアート作品を創りあげるキャンバスのようです。広がるLDKは10帖、洋室は6帖、S(サービスルーム)は6.4帖というバランスが絶妙で、あなたの日々の生活がまるで映画のワンシーンに昇華されることを約束します。
玄関のドアを開けると、そこには広がる穏やかな空間が待っています。足元に敷かれたフローリングは、手触りが滑らかで、軽やかな足音が心地よく響きます。箱庭のような柔らかな光が差し込み、あなたの心を包み込み、どこか懐かしいような居心地の良さをもたらしてくれます。
HF学芸大学レジデンス 301の魅力の一つに、便利な設備があります。TVモニターホンやオートロックが装備されているため、安全でありながらも洗練された暮らしを実現します。宅配ボックスがあなたの生活を一層便利にし、駐車場や駐輪場も完備されています。このすべてが、あなたのライフスタイルを彩る素敵なアクセントとなるでしょう。
周辺の景観もまた、この物件に華を添える重要な要素です。学芸大学駅から徒歩13分の距離に位置し、洗練されたカフェやアートスペースが点在するエリアは、創造性を刺激します。春には桜が咲き誇り、夏には青々とした緑が深い安らぎをもたらします。周囲には、歴史ある美術館やギャラリーが点在し、芸術の香りが漂う文化的な街並みがあなたを包み込みます。
HF学芸大学レジデンス 301は単なる住まいではありません。それは、あなたが毎日の生活の中で自分自身を再発見し、心豊かな時間を過ごすための舞台です。日々の暮らしがまるで映画のワンシーンであるかのように、あなたの心に刻まれる時間を過ごすことができるのです。この特別な場所で、あなたのストーリーが始まります。HF学芸大学レジデンス 301が、あなたを新しい世界へといざないます。
HF学芸大学レジデンス 301は、まるで熟成されたワインのように、時間をかけてその魅力を育んできました。301号室は、51.6…HF学芸大学レジデンス 301。この名前を耳にした瞬間、あなたはまるで静謐な森の奥に入り込んだかのような心地よい興奮を覚えることでしょう。東京都目黒区下目黒6-18-27に立ち、あなたをそっと迎え入れるこの邸宅は、一歩足を踏み入れた瞬間から特別な空間へと導いてくれます。
HF学芸大学レジデンス 301は、まるで熟成されたワインのように、時間をかけてその魅力を育んできました。301号室は、51.69㎡の広さを誇る1LDKという洗練された間取りを有し、心地よい光と風を取り込みます。持つ者のセンスを映し出すこのスペースは、まるで自分自身のアート作品を創りあげるキャンバスのようです。広がるLDKは10帖、洋室は6帖、S(サービスルーム)は6.4帖というバランスが絶妙で、あなたの日々の生活がまるで映画のワンシーンに昇華されることを約束します。
玄関のドアを開けると、そこには広がる穏やかな空間が待っています。足元に敷かれたフローリングは、手触りが滑らかで、軽やかな足音が心地よく響きます。箱庭のような柔らかな光が差し込み、あなたの心を包み込み、どこか懐かしいような居心地の良さをもたらしてくれます。
HF学芸大学レジデンス 301の魅力の一つに、便利な設備があります。TVモニターホンやオートロックが装備されているため、安全でありながらも洗練された暮らしを実現します。宅配ボックスがあなたの生活を一層便利にし、駐車場や駐輪場も完備されています。このすべてが、あなたのライフスタイルを彩る素敵なアクセントとなるでしょう。
周辺の景観もまた、この物件に華を添える重要な要素です。学芸大学駅から徒歩13分の距離に位置し、洗練されたカフェやアートスペースが点在するエリアは、創造性を刺激します。春には桜が咲き誇り、夏には青々とした緑が深い安らぎをもたらします。周囲には、歴史ある美術館やギャラリーが点在し、芸術の香りが漂う文化的な街並みがあなたを包み込みます。
HF学芸大学レジデンス 301は単なる住まいではありません。それは、あなたが毎日の生活の中で自分自身を再発見し、心豊かな時間を過ごすための舞台です。日々の暮らしがまるで映画のワンシーンであるかのように、あなたの心に刻まれる時間を過ごすことができるのです。この特別な場所で、あなたのストーリーが始まります。HF学芸大学レジデンス 301が、あなたを新しい世界へといざないます。
バイブルスコア
バイブルスコア: 44.9
条件のいい物件です、引っ越しが2か月以内の場合は仮申し込みを検討すべき物件です。
※バイブルスコア詳細はこちら
バイブルスコアとは独自のAI機械学習技術を利用した物件評価システムで、物件のおすすめ度を示します。最高得点は100点で、スコアが高いほど、よりおすすめの物件と評価されています。
写真
現在写真が登録されていません契約条件
| 賃料 | 予想金額:173,000〜193,000円程度 | 管理費 | 予想金額:6,000〜10,000円程度 |
| 礼金 | 非公開(アーカイブ) | 敷金 | 非公開(アーカイブ) |
| フリーレント | なし | 平米数 | 51.69㎡ |
| 間取り | 1LDK | 大型収納 | S |
| 契約期間 | 2年 | 方角 | |
| 更新料 | 1ヶ月 | 契約形態 | 普通賃貸借契約 |
| 取引態様 | 媒介 | 内見状況 | 入居中 |
| 入居時期 | 入居中 | SOHO・事務所 | 不可 |
| ペット | 不可 | 間取り内訳 | 洋:6 S:6.4 LDK:10 |
| キャンペーン情報・備考 | 本情報は賃料改定交渉の資料作成、収益物件の利回り試算、周辺エリアや最寄り駅の坪単価分析、次回募集開始時期の予測などにご活用いただけます。 | ||
※「どの不動産に頼めばいいのか分からない」「信頼できる営業マンの話を聞きたい」「一番親切な会社と契約したい」とお悩みの方におすすめなのが「高級賃貸バイブル」です。
高級賃貸バイブルは業界10年以上の熟練スタッフ群がお客様ファーストで対応します。
下記ボタンから、まずは無料でご相談下さい。
※内覧をご希望の際には、どうぞ物件のエントランス前にてお待ち合わせくださいませ。ご内覧後は、同じ場所でお別れとさせていただきます。お客様のご都合に合わせたスムーズなご案内を心がけておりますので、ご質問等がございましたら何なりとお申し付けください。 物件概要
| 物件名 |
| 築年月 |
|
|---|---|---|---|
| 所在地 | |||
| 交通 | |||
| 総戸数 |
| 総階数 |
|
| 構造 |
| ||
地図
物件までの道のりは、「拡大地図を表示」をクリックしてナビ機能をご利用ください。
部屋設備













建物設備

TVモニターホン

エレベーター

オートロック

宅配ボックス

敷地内ゴミ置場

管理人

駐車場平置き

駐車場機械式

駐輪場
HF学芸大学レジデンスの現在募集中のお部屋
- No rooms found for this property.
