
| 賃料 | 予想金額:214,000〜234,000円程度 | 管理費 | 予想金額:8,000〜12,000円程度 |
| 礼金/敷金 | 非公開(アーカイブ) | 平米数 | 62.0㎡ |
| 初期費用概算(参考) | 目安:736,220〜836,220 円 | みなし賃料(月額・参考) | 235,713〜255,713 円 |
| 備考 | 本ページは過去募集のアーカイブです。表示の金額は周辺相場・過去募集を踏まえた参考レンジであり、実際の契約金額・条件ではありません。 | ||
※上記みなし賃料(月額)は仲介手数料割引・無料&キャッシュバックを加味した高級賃貸バイブル限定の金額です。一般的なみなし賃料とは異なります。
【建物ページ】コンフォリア本駒込の詳細・最新空室はこちら▶▶選ばれる理由
仲介手数料無料・キャンペーン情報(毎月15名様限定)
〇引っ越しお祝い金49280円プレゼント(キャッシュバック)
〇仲介手数料無料キャンペーン
コンフォリア本駒込 503の口コミ・レビュー
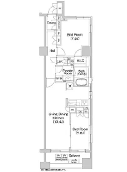
コンフォリア本駒込 503は、ただの物件ではなく、住む人に語りかける高級な空間です。この503号室は、心を満たす特別なひとときを約束する場所。東京都文京区本駒込にその身を置き、北東の方角からは朝日が優しく差し込むことでしょう。62㎡の広さがもたらすのは、充実した生活の基盤。LDKは13.4帖の心地よい広がりを持ち、家族が集い、会話が弾む場所となることでしょう。
この場所に足を踏み入れた瞬間、洗練…コンフォリア本駒込 503は、ただの物件ではなく、住む人に語りかける高級な空間です。この503号室は、心を満たす特別なひとときを約束する場所。東京都文京区本駒込にその身を置き、北東の方角からは朝日が優しく差し込むことでしょう。62㎡の広さがもたらすのは、充実した生活の基盤。LDKは13.4帖の心地よい広がりを持ち、家族が集い、会話が弾む場所となることでしょう。
この場所に足を踏み入れた瞬間、洗練されたデザインが放つ上品な雰囲気があなたを包み込みます。贅沢な素材が織りなすインテリアは、まるで高級ブティックの中に佇んでいるかのようです。守られた空間には、24時間管理の安心感が漂い、日々の喧騒から解き放たれる瞬間を提供してくれます。テレビモニターホンにより訪問者を確認し、オートロックで安心して生活できる環境が整っています。
そして、生活する中で耳にすることとなる、風のそよぎや街のざわめきが、まるで音楽のように心に響きます。近くには、歴史深い文京区の文化が息づいており、美術館や歴史的建造物が散在。散策しながらふと立ち寄ることで、あなたの感性が磨かれることでしょう。もしかすると、子供時代に憧れた物語の舞台がそこに広がっているかもしれません。
居心地の良い洋室は、7.5帖と5帖の二つのスペースに分かれており、プライベートな時間を贅沢に楽しむことができます。光が溢れる窓からは、四季折々の風景が美しく望めることでしょう。冬の寒い日には、柔らかな毛布に包まれたくなる、心地よいひんやり感が室内に忍び込んできて、書籍に没頭したり、家族と一緒に過ごすひとときを鮮やかに彩ります。
また、宅配ボックスや駐車場、駐輪場を完備しているので、生活がさらに便利になることは間違いありません。都会の真ん中にありながら、生活必需品が手の届く場所にあることが、まるで夢のような生活をもたらします。
コンフォリア本駒込 503は、ただの住まいではなく、あなたの新たな人生の舞台となることでしょう。生活の中に埋め込まれた繊細な瞬間が、まるで美しい映画のワンシーンのように、心に刻み込まれていくのです。この特別な空間で、心豊かな日々を手に入れてください。あなたがこの家でどのようなストーリーを紡いでいくのか、楽しみでなりません。どうか、私の中で新しい物語を描いてください。
この場所に足を踏み入れた瞬間、洗練…コンフォリア本駒込 503は、ただの物件ではなく、住む人に語りかける高級な空間です。この503号室は、心を満たす特別なひとときを約束する場所。東京都文京区本駒込にその身を置き、北東の方角からは朝日が優しく差し込むことでしょう。62㎡の広さがもたらすのは、充実した生活の基盤。LDKは13.4帖の心地よい広がりを持ち、家族が集い、会話が弾む場所となることでしょう。
この場所に足を踏み入れた瞬間、洗練されたデザインが放つ上品な雰囲気があなたを包み込みます。贅沢な素材が織りなすインテリアは、まるで高級ブティックの中に佇んでいるかのようです。守られた空間には、24時間管理の安心感が漂い、日々の喧騒から解き放たれる瞬間を提供してくれます。テレビモニターホンにより訪問者を確認し、オートロックで安心して生活できる環境が整っています。
そして、生活する中で耳にすることとなる、風のそよぎや街のざわめきが、まるで音楽のように心に響きます。近くには、歴史深い文京区の文化が息づいており、美術館や歴史的建造物が散在。散策しながらふと立ち寄ることで、あなたの感性が磨かれることでしょう。もしかすると、子供時代に憧れた物語の舞台がそこに広がっているかもしれません。
居心地の良い洋室は、7.5帖と5帖の二つのスペースに分かれており、プライベートな時間を贅沢に楽しむことができます。光が溢れる窓からは、四季折々の風景が美しく望めることでしょう。冬の寒い日には、柔らかな毛布に包まれたくなる、心地よいひんやり感が室内に忍び込んできて、書籍に没頭したり、家族と一緒に過ごすひとときを鮮やかに彩ります。
また、宅配ボックスや駐車場、駐輪場を完備しているので、生活がさらに便利になることは間違いありません。都会の真ん中にありながら、生活必需品が手の届く場所にあることが、まるで夢のような生活をもたらします。
コンフォリア本駒込 503は、ただの住まいではなく、あなたの新たな人生の舞台となることでしょう。生活の中に埋め込まれた繊細な瞬間が、まるで美しい映画のワンシーンのように、心に刻み込まれていくのです。この特別な空間で、心豊かな日々を手に入れてください。あなたがこの家でどのようなストーリーを紡いでいくのか、楽しみでなりません。どうか、私の中で新しい物語を描いてください。
バイブルスコア
バイブルスコア: 23.9
平均的なスコアです。
※バイブルスコア詳細はこちら
バイブルスコアとは独自のAI機械学習技術を利用した物件評価システムで、物件のおすすめ度を示します。最高得点は100点で、スコアが高いほど、よりおすすめの物件と評価されています。
写真
契約条件
| 賃料 | 予想金額:214,000〜234,000円程度 | 管理費 | 予想金額:8,000〜12,000円程度 |
| 礼金 | 非公開(アーカイブ) | 敷金 | 非公開(アーカイブ) |
| フリーレント | なし | 平米数 | 62.0㎡ |
| 間取り | 2LDK | 大型収納 | WIC |
| 契約期間 |
| 方角 | 北東 |
| 更新料 | 契約形態 | 普通賃貸借契約 | |
| 取引態様 | 媒介 | 内見状況 | 入居中 |
| 入居時期 | 入居中 | SOHO・事務所 | |
| ペット | ペット可 | 間取り内訳 | 洋:7.5 洋:5 LDK:13.4 |
| キャンペーン情報・備考 | 本情報は賃料改定交渉の資料作成、収益物件の利回り試算、周辺エリアや最寄り駅の坪単価分析、次回募集開始時期の予測などにご活用いただけます。 | ||
※「どの不動産に頼めばいいのか分からない」「信頼できる営業マンの話を聞きたい」「一番親切な会社と契約したい」とお悩みの方におすすめなのが「高級賃貸バイブル」です。
高級賃貸バイブルは業界10年以上の熟練スタッフ群がお客様ファーストで対応します。
下記ボタンから、まずは無料でご相談下さい。
※内覧をご希望の際には、どうぞ物件のエントランス前にてお待ち合わせくださいませ。ご内覧後は、同じ場所でお別れとさせていただきます。お客様のご都合に合わせたスムーズなご案内を心がけておりますので、ご質問等がございましたら何なりとお申し付けください。 物件概要
| 物件名 |
| 築年月 |
|
|---|---|---|---|
| 所在地 | |||
| 交通 | |||
| 総戸数 |
| 総階数 |
|
| 構造 |
| ||
地図
物件までの道のりは、「拡大地図を表示」をクリックしてナビ機能をご利用ください。
部屋設備















建物設備

24時間管理

TVモニターホン

エレベーター

オートロック

宅配ボックス

敷地内ゴミ置場

管理人

駐車場平置き

駐車場機械式

駐輪場
コンフォリア本駒込の現在募集中のお部屋
- コンフォリア本駒込 901 - 間取り: 2LDK+WIC - 賃料: 27.6万円
- コンフォリア本駒込 202 - 間取り: 1SLDK+WIC - 賃料: 25.6万円




