
| 賃料 | 予想金額:155,000〜175,000円程度 | 管理費 | 予想金額:0〜2,000円程度 |
| 礼金/敷金 | 非公開(アーカイブ) | 平米数 | 38.16㎡ |
| 初期費用概算(参考) | 目安:784,000〜884,000 円 | みなし賃料(月額・参考) | 168,938〜188,938 円 |
| 備考 | 本ページは過去募集のアーカイブです。表示の金額は周辺相場・過去募集を踏まえた参考レンジであり、実際の契約金額・条件ではありません。 | ||
※上記みなし賃料(月額)は仲介手数料割引・無料&キャッシュバックを加味した高級賃貸バイブル限定の金額です。一般的なみなし賃料とは異なります。
【建物ページ】パレスサイドステージホームズ麹町の詳細・最新空室はこちら▶▶選ばれる理由
仲介手数料無料・キャンペーン情報(毎月15名様限定)
〇仲介手数料割引キャンペーン
パレスサイドステージホームズ麹町 701の口コミ・レビュー
パレスサイドステージホームズ麹町 701。この名前を耳にした瞬間、あなたの心は静かに揺さぶられます。まるで都会のオアシスがそっとあなたを包み込むかのような、優れた設計が魅力のこの物件は、東京都千代田区麹町に位置し、まさに生活の舞台劇を演じるにふさわしいロケーションです。
701号室は、天空に近い7階にございます。東と南の二つの方向に広がる視界は、まるで朝日が微笑む瞬間や、夕暮れの優雅なシルエット…パレスサイドステージホームズ麹町 701。この名前を耳にした瞬間、あなたの心は静かに揺さぶられます。まるで都会のオアシスがそっとあなたを包み込むかのような、優れた設計が魅力のこの物件は、東京都千代田区麹町に位置し、まさに生活の舞台劇を演じるにふさわしいロケーションです。
701号室は、天空に近い7階にございます。東と南の二つの方向に広がる視界は、まるで朝日が微笑む瞬間や、夕暮れの優雅なシルエットを捉えるキャンバスのようです。あなたの目の前に広がるのは、どこまでも青い空と洗練された都市の風景。高層ビルの合間から漏れ出る光が、頑なな日常に一筋の希望を与えてくれることでしょう。
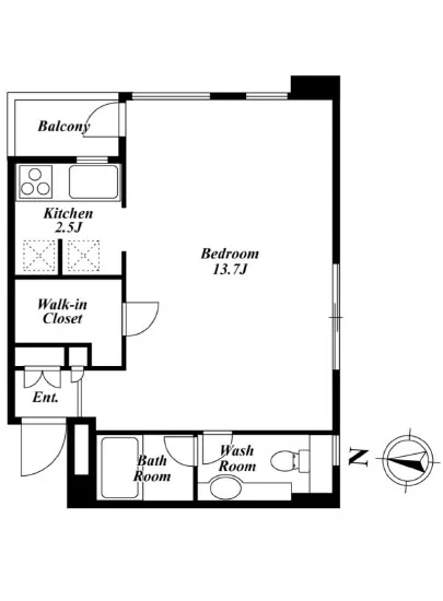
このパレスサイドステージホームズ麹町 701は、38.16㎡の空間に、あなたの生活を豊かに彩るためのディテールが凝縮されています。デザイナーズの美学が宿る広々とした洋室は13.7帖の空間と、心地よい料理を生み出すための2.5帖のキッチンを備えております。この場所では、朝の光がキッチンに差し込み、コーヒーの香りが漂う中で、優雅な朝食を楽しむことができるのです。
生活の利便性も抜群です。東京メトロ半蔵門線の半蔵門駅から徒歩わずか2分。ここから広がる様々な街並みや文化を散策する喜びは、まるで宝の地図を手にした冒険者のよう。歴史ある街並みを歩き、気鋭のアートギャラリーを訪れ、豊かなカフェ文化に浸ることができます。周囲の静けさは、まさに心の喧騒を払いのけ、あなた自身を見つめ直す時間を提供してくれるでしょう。
また、パレスサイドステージホームズ麹町 701は、24時間管理のセキュリティシステムを完備しており、安心感を提供します。オートロックやTVモニターホンは、まるで守護者のようにあなたのプライバシーを守ります。そして、宅配ボックスや駐輪場も設置されており、忙しい都会生活を送る方にとって、利便性は計り知れません。
この場所での毎日は、まるで映画のワンシーンのように美しく、感動的です。朝、カーテンを開けると広がる景色は、新しい一日の始まりを告げるシンフォニーのようで、その音色はあなたの心を躍らせることでしょう。夜、窓から見える街の灯りは、まるで星空のようにキラキラと輝き、あなたを優しく包み込みます。
パレスサイドステージホームズ麹町 701。ここは、ただの住まいではなく、あなたの人生を豊かにする舞台です。一度この空間に足を踏み入れれば、きっとその魅力に引き込まれ、気づけばあなた自身もこの物件の一部になっていることでしょう。新たな物語が始まるその瞬間を、心待ちにしているのです。
701号室は、天空に近い7階にございます。東と南の二つの方向に広がる視界は、まるで朝日が微笑む瞬間や、夕暮れの優雅なシルエット…パレスサイドステージホームズ麹町 701。この名前を耳にした瞬間、あなたの心は静かに揺さぶられます。まるで都会のオアシスがそっとあなたを包み込むかのような、優れた設計が魅力のこの物件は、東京都千代田区麹町に位置し、まさに生活の舞台劇を演じるにふさわしいロケーションです。
701号室は、天空に近い7階にございます。東と南の二つの方向に広がる視界は、まるで朝日が微笑む瞬間や、夕暮れの優雅なシルエットを捉えるキャンバスのようです。あなたの目の前に広がるのは、どこまでも青い空と洗練された都市の風景。高層ビルの合間から漏れ出る光が、頑なな日常に一筋の希望を与えてくれることでしょう。
このパレスサイドステージホームズ麹町 701は、38.16㎡の空間に、あなたの生活を豊かに彩るためのディテールが凝縮されています。デザイナーズの美学が宿る広々とした洋室は13.7帖の空間と、心地よい料理を生み出すための2.5帖のキッチンを備えております。この場所では、朝の光がキッチンに差し込み、コーヒーの香りが漂う中で、優雅な朝食を楽しむことができるのです。
生活の利便性も抜群です。東京メトロ半蔵門線の半蔵門駅から徒歩わずか2分。ここから広がる様々な街並みや文化を散策する喜びは、まるで宝の地図を手にした冒険者のよう。歴史ある街並みを歩き、気鋭のアートギャラリーを訪れ、豊かなカフェ文化に浸ることができます。周囲の静けさは、まさに心の喧騒を払いのけ、あなた自身を見つめ直す時間を提供してくれるでしょう。
また、パレスサイドステージホームズ麹町 701は、24時間管理のセキュリティシステムを完備しており、安心感を提供します。オートロックやTVモニターホンは、まるで守護者のようにあなたのプライバシーを守ります。そして、宅配ボックスや駐輪場も設置されており、忙しい都会生活を送る方にとって、利便性は計り知れません。
この場所での毎日は、まるで映画のワンシーンのように美しく、感動的です。朝、カーテンを開けると広がる景色は、新しい一日の始まりを告げるシンフォニーのようで、その音色はあなたの心を躍らせることでしょう。夜、窓から見える街の灯りは、まるで星空のようにキラキラと輝き、あなたを優しく包み込みます。
パレスサイドステージホームズ麹町 701。ここは、ただの住まいではなく、あなたの人生を豊かにする舞台です。一度この空間に足を踏み入れれば、きっとその魅力に引き込まれ、気づけばあなた自身もこの物件の一部になっていることでしょう。新たな物語が始まるその瞬間を、心待ちにしているのです。
バイブルスコア
バイブルスコア: 24.2
平均的なスコアです。
※バイブルスコア詳細はこちら
バイブルスコアとは独自のAI機械学習技術を利用した物件評価システムで、物件のおすすめ度を示します。最高得点は100点で、スコアが高いほど、よりおすすめの物件と評価されています。
写真
契約条件
| 賃料 | 予想金額:155,000〜175,000円程度 | 管理費 | 予想金額:0〜2,000円程度 |
| 礼金 | 非公開(アーカイブ) | 敷金 | 非公開(アーカイブ) |
| フリーレント | なし | 平米数 | 38.16㎡ |
| 間取り | 1K | 大型収納 | WIC |
| 契約期間 |
| 方角 | 東 / 南 |
| 更新料 | 契約形態 | 普通賃貸借契約 | |
| 取引態様 | 媒介 | 内見状況 | 入居中 |
| 入居時期 | 入居中 | SOHO・事務所 | |
| ペット | 間取り内訳 | 洋:13.7 K:2.5 | |
| キャンペーン情報・備考 | 本情報は賃料改定交渉の資料作成、収益物件の利回り試算、周辺エリアや最寄り駅の坪単価分析、次回募集開始時期の予測などにご活用いただけます。 | ||
※「どの不動産に頼めばいいのか分からない」「信頼できる営業マンの話を聞きたい」「一番親切な会社と契約したい」とお悩みの方におすすめなのが「高級賃貸バイブル」です。
高級賃貸バイブルは業界10年以上の熟練スタッフ群がお客様ファーストで対応します。
下記ボタンから、まずは無料でご相談下さい。
※内覧をご希望の際には、どうぞ物件のエントランス前にてお待ち合わせくださいませ。ご内覧後は、同じ場所でお別れとさせていただきます。お客様のご都合に合わせたスムーズなご案内を心がけておりますので、ご質問等がございましたら何なりとお申し付けください。 物件概要
| 物件名 |
| 築年月 |
|
|---|---|---|---|
| 所在地 | |||
| 交通 | |||
| 総戸数 |
| 総階数 |
|
| 構造 |
| ||
地図
物件までの道のりは、「拡大地図を表示」をクリックしてナビ機能をご利用ください。
部屋設備















建物設備

24時間管理

TVモニターホン

エレベーター

オートロック

宅配ボックス

敷地内ゴミ置場

管理人

駐輪場
パレスサイドステージホームズ麹町の現在募集中のお部屋
- No rooms found for this property.


















