
| 賃料 | 予想金額:350,000〜370,000円程度 | 管理費 | 予想金額:8,000〜12,000円程度 |
| 礼金/敷金 | 非公開(アーカイブ) | 平米数 | 85.41㎡ |
| 初期費用概算(参考) | 目安:956,500〜1,056,500 円 | みなし賃料(月額・参考) | 373,469〜393,469 円 |
| 備考 | 本ページは過去募集のアーカイブです。表示の金額は周辺相場・過去募集を踏まえた参考レンジであり、実際の契約金額・条件ではありません。 | ||
※上記みなし賃料(月額)は仲介手数料割引・無料&キャッシュバックを加味した高級賃貸バイブル限定の金額です。一般的なみなし賃料とは異なります。
【建物ページ】メゾンドゥース南麻布の詳細・最新空室はこちら▶▶選ばれる理由
仲介手数料無料・キャンペーン情報(毎月15名様限定)
〇仲介手数料割引キャンペーン
メゾンドゥース南麻布 502の口コミ・レビュー
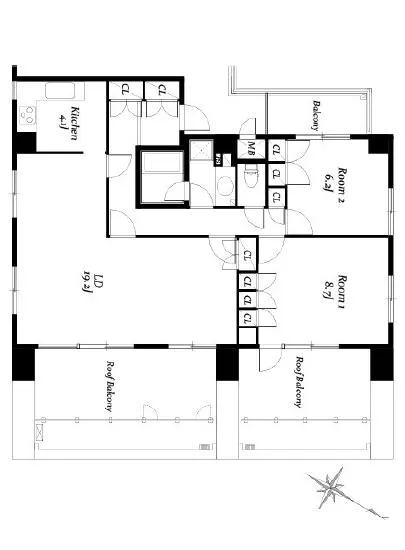
メゾンドゥース南麻布 502。この高級賃貸の一室には、ひときわ魅力的な魅力が宿っています。麻布の静かな街並みに佇むこの物件は、訪れる人々を優雅な日常の世界へと誘います。502号室の扉を開けると、広がるのは85.41㎡の空間が持つ、まるでアートのような美しさ。洗練されたデザインと機能が調和したこの空間は、日々の暮らしをまるで映画のワンシーンのように彩ってくれることでしょう。
西に向かって広がる大き…メゾンドゥース南麻布 502。この高級賃貸の一室には、ひときわ魅力的な魅力が宿っています。麻布の静かな街並みに佇むこの物件は、訪れる人々を優雅な日常の世界へと誘います。502号室の扉を開けると、広がるのは85.41㎡の空間が持つ、まるでアートのような美しさ。洗練されたデザインと機能が調和したこの空間は、日々の暮らしをまるで映画のワンシーンのように彩ってくれることでしょう。
西に向かって広がる大きな窓からは、柔らかな光が差し込み、まるで自然のキャンバスが目の前に広がっているかのようです。LDK19.2帖の広々としたリビングは、穏やかな午後のひとときを演出します。ここに身をゆだね、心地よい音楽が流れ、コーヒーの香りが漂う中、お友達と楽しい会話を楽しむ姿が目に浮かびます。あるいは、一人でゆったりと本を手に取り、穏やかな時間を過ごすのもいいでしょう。ことのほか、夜空を見上げると、星々が瞬き、まるで宇宙が生活に寄り添っているかのような感覚を味わえます。
洋室6.2帖、8.7帖はそれぞれ独立した空間でありながら、生活の一部として完璧に調和しています。プライベートな時間を過ごすにはぴったりの場所であり、静寂が広がるこの空間は、穏やかな気持ちにしてくれることでしょう。心地よい寝具に包まれて、朝日が差し込む時間を迎える喜び――それは、日々の中で失われがちな感情を呼び起こしてくれる大切な瞬間です。
さらに、メゾンドゥース南麻布では、オートロックやエレベーターなどの設備が完備されており、安全と利便性が確保されています。敷地内のゴミ置場や平置き駐車場、駐輪場も完備され、日々の暮らしをより快適にしてくれます。心地よい暮らしを実現するためのハードウェアは整っており、まるで大切なお客様を迎えるための素敵なおもてなしのようです。
周辺には、東京メトロ南北線 麻布十番駅があり、わずか徒歩11分の距離であります。歴史ある町並みや文化的な施設が点在するこの地区は、生活の中に芸術や歴史、文化をもたらしてくれます。日々の買い物や散策を通じて、麻布の魅力に触れることができるのです。
メゾンドゥース南麻布 502での生活は、もはや単なる住まいを超えたもの。あなたの日常が、まるで特別な映画のワンシーンとなり、五感を刺激する様々な体験があなたを待っています。さあ、この美しい空間で、あなた自身のストーリーを紡ぎ始めてみませんか。
西に向かって広がる大き…メゾンドゥース南麻布 502。この高級賃貸の一室には、ひときわ魅力的な魅力が宿っています。麻布の静かな街並みに佇むこの物件は、訪れる人々を優雅な日常の世界へと誘います。502号室の扉を開けると、広がるのは85.41㎡の空間が持つ、まるでアートのような美しさ。洗練されたデザインと機能が調和したこの空間は、日々の暮らしをまるで映画のワンシーンのように彩ってくれることでしょう。
西に向かって広がる大きな窓からは、柔らかな光が差し込み、まるで自然のキャンバスが目の前に広がっているかのようです。LDK19.2帖の広々としたリビングは、穏やかな午後のひとときを演出します。ここに身をゆだね、心地よい音楽が流れ、コーヒーの香りが漂う中、お友達と楽しい会話を楽しむ姿が目に浮かびます。あるいは、一人でゆったりと本を手に取り、穏やかな時間を過ごすのもいいでしょう。ことのほか、夜空を見上げると、星々が瞬き、まるで宇宙が生活に寄り添っているかのような感覚を味わえます。
洋室6.2帖、8.7帖はそれぞれ独立した空間でありながら、生活の一部として完璧に調和しています。プライベートな時間を過ごすにはぴったりの場所であり、静寂が広がるこの空間は、穏やかな気持ちにしてくれることでしょう。心地よい寝具に包まれて、朝日が差し込む時間を迎える喜び――それは、日々の中で失われがちな感情を呼び起こしてくれる大切な瞬間です。
さらに、メゾンドゥース南麻布では、オートロックやエレベーターなどの設備が完備されており、安全と利便性が確保されています。敷地内のゴミ置場や平置き駐車場、駐輪場も完備され、日々の暮らしをより快適にしてくれます。心地よい暮らしを実現するためのハードウェアは整っており、まるで大切なお客様を迎えるための素敵なおもてなしのようです。
周辺には、東京メトロ南北線 麻布十番駅があり、わずか徒歩11分の距離であります。歴史ある町並みや文化的な施設が点在するこの地区は、生活の中に芸術や歴史、文化をもたらしてくれます。日々の買い物や散策を通じて、麻布の魅力に触れることができるのです。
メゾンドゥース南麻布 502での生活は、もはや単なる住まいを超えたもの。あなたの日常が、まるで特別な映画のワンシーンとなり、五感を刺激する様々な体験があなたを待っています。さあ、この美しい空間で、あなた自身のストーリーを紡ぎ始めてみませんか。
バイブルスコア
バイブルスコア: 23.1
平均的なスコアです。
※バイブルスコア詳細はこちら
バイブルスコアとは独自のAI機械学習技術を利用した物件評価システムで、物件のおすすめ度を示します。最高得点は100点で、スコアが高いほど、よりおすすめの物件と評価されています。
写真
契約条件
| 賃料 | 予想金額:350,000〜370,000円程度 | 管理費 | 予想金額:8,000〜12,000円程度 |
| 礼金 | 非公開(アーカイブ) | 敷金 | 非公開(アーカイブ) |
| フリーレント | なし | 平米数 | 85.41㎡ |
| 間取り | 2LDK | 大型収納 | |
| 契約期間 |
| 方角 | 西 |
| 更新料 | 契約形態 | 普通賃貸借契約 | |
| 取引態様 | 媒介 | 内見状況 | 入居中 |
| 入居時期 | 入居中 | SOHO・事務所 | 事務所(SOHO)可 |
| ペット | 間取り内訳 | 洋:6.2 洋:8.7 LD:19.2 K:4.1 | |
| キャンペーン情報・備考 | 本情報は賃料改定交渉の資料作成、収益物件の利回り試算、周辺エリアや最寄り駅の坪単価分析、次回募集開始時期の予測などにご活用いただけます。 | ||
※「どの不動産に頼めばいいのか分からない」「信頼できる営業マンの話を聞きたい」「一番親切な会社と契約したい」とお悩みの方におすすめなのが「高級賃貸バイブル」です。
高級賃貸バイブルは業界10年以上の熟練スタッフ群がお客様ファーストで対応します。
下記ボタンから、まずは無料でご相談下さい。
※内覧をご希望の際には、どうぞ物件のエントランス前にてお待ち合わせくださいませ。ご内覧後は、同じ場所でお別れとさせていただきます。お客様のご都合に合わせたスムーズなご案内を心がけておりますので、ご質問等がございましたら何なりとお申し付けください。 物件概要
| 物件名 |
| 築年月 |
|
|---|---|---|---|
| 所在地 | |||
| 交通 | |||
| 総戸数 |
| 総階数 |
|
| 構造 |
| ||
地図
物件までの道のりは、「拡大地図を表示」をクリックしてナビ機能をご利用ください。
部屋設備















建物設備

エレベーター

オートロック

敷地内ゴミ置場

駐車場平置き

駐輪場
メゾンドゥース南麻布の現在募集中のお部屋
- メゾンドゥース南麻布 303 - 間取り: 1LDK - 賃料: 22万円





















