
| 賃料 | 予想金額:141,000〜161,000円程度 | 管理費 | 予想金額:10,000〜14,000円程度 |
| 礼金/敷金 | 非公開(アーカイブ) | 平米数 | 42.6㎡ |
| 初期費用概算(参考) | 目安:286,000〜386,000 円 | みなし賃料(月額・参考) | 156,854〜176,854 円 |
| 備考 | 本ページは過去募集のアーカイブです。表示の金額は周辺相場・過去募集を踏まえた参考レンジであり、実際の契約金額・条件ではありません。 | ||
※上記みなし賃料(月額)は仲介手数料割引・無料&キャッシュバックを加味した高級賃貸バイブル限定の金額です。一般的なみなし賃料とは異なります。
【建物ページ】ライトコート四谷の詳細・最新空室はこちら▶▶選ばれる理由
仲介手数料無料・キャンペーン情報(毎月15名様限定)
〇仲介手数料割引キャンペーン
ライトコート四谷 311の口コミ・レビュー
ライトコート四谷 311。それは、まるで静謐なオアシスのように、都市の喧騒から少しだけ離れた場所に佇む、特別な住まいです。311号室の扉を開ける瞬間、都会の喧騒は遠くなり、心地よさと安らぎに包まれることでしょう。この特別な空間は、あなたとともに新しい物語を紡ぐために待機しています。
光が柔らかく差し込む窓からは、北西の景色が広がり、夕暮れ時には赤く染まる空を望むことができます。静かな部屋の中には…ライトコート四谷 311。それは、まるで静謐なオアシスのように、都市の喧騒から少しだけ離れた場所に佇む、特別な住まいです。311号室の扉を開ける瞬間、都会の喧騒は遠くなり、心地よさと安らぎに包まれることでしょう。この特別な空間は、あなたとともに新しい物語を紡ぐために待機しています。
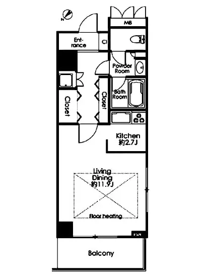
光が柔らかく差し込む窓からは、北西の景色が広がり、夕暮れ時には赤く染まる空を望むことができます。静かな部屋の中には、洋室11.9帖の広がりがあり、あなたを包み込むような柔らかなカーペットが足元を優しく支えます。窓の外からは鳥のさえずりが聞こえ、やがて日が沈むと、星たちが夜の舞台に顔を出すのです。その瞬間、都市の光が星のようにきらめき、まるで空の中の一部となったかのような気分に浸ることができるでしょう。
キッチンは2.7帖のコンパクトさですが、その中に詰まった可能性は無限大です。新鮮な食材の香りが漂い、料理するたびにあなたの心が躍る、そんな素敵な空間が広がっています。目の前に広がる美しい風景を眺めながら、愛情を込めた食事を作ることができる、この特別な場所は、一日の疲れを癒し、喜びを与えてくれるのです。
ライトコート四谷 311の魅力は、ただ部屋の広さや設備にとどまりません。24時間管理の安心感、オートロックのセキュリティ、そして宅配ボックスなど、暮らしの利便性が随所に施されています。まるで、あなたの生活を見守るかのように、常にその存在を感じることができるのです。管理人の温かい笑顔も、時折出会うことで、四谷の街の仲間として温かい気持ちになることでしょう。
この周辺は、歴史と文化が息づくエリア。古くからの伝統や、現代アートが融合し、あなたの感性を豊かにしてくれるはずです。近くにある美術館やカフェでは、訪れるたびに新しい発見が待っていることでしょう。四季折々に変化する街の顔は、あなたの日常に彩りを加え、まるで映画のワンシーンのような美しい瞬間を演出してくれます。
住まうことは、その場所の一部となること。ライトコート四谷 311での暮らしは、ただ居住空間を提供するだけではありません。ここでは、あなたの生活そのものがアートとなり、感動を呼び起こす特別な瞬間を提供してくれるのです。心が豊かになっていく瞬間を、あなた自身の手で描き出してみませんか。日常が非日常に変わる、その時を待ちながら、ライトコート四谷 311で新たな生活を始める、その一歩を踏み出してみましょう。
光が柔らかく差し込む窓からは、北西の景色が広がり、夕暮れ時には赤く染まる空を望むことができます。静かな部屋の中には…ライトコート四谷 311。それは、まるで静謐なオアシスのように、都市の喧騒から少しだけ離れた場所に佇む、特別な住まいです。311号室の扉を開ける瞬間、都会の喧騒は遠くなり、心地よさと安らぎに包まれることでしょう。この特別な空間は、あなたとともに新しい物語を紡ぐために待機しています。
光が柔らかく差し込む窓からは、北西の景色が広がり、夕暮れ時には赤く染まる空を望むことができます。静かな部屋の中には、洋室11.9帖の広がりがあり、あなたを包み込むような柔らかなカーペットが足元を優しく支えます。窓の外からは鳥のさえずりが聞こえ、やがて日が沈むと、星たちが夜の舞台に顔を出すのです。その瞬間、都市の光が星のようにきらめき、まるで空の中の一部となったかのような気分に浸ることができるでしょう。
キッチンは2.7帖のコンパクトさですが、その中に詰まった可能性は無限大です。新鮮な食材の香りが漂い、料理するたびにあなたの心が躍る、そんな素敵な空間が広がっています。目の前に広がる美しい風景を眺めながら、愛情を込めた食事を作ることができる、この特別な場所は、一日の疲れを癒し、喜びを与えてくれるのです。
ライトコート四谷 311の魅力は、ただ部屋の広さや設備にとどまりません。24時間管理の安心感、オートロックのセキュリティ、そして宅配ボックスなど、暮らしの利便性が随所に施されています。まるで、あなたの生活を見守るかのように、常にその存在を感じることができるのです。管理人の温かい笑顔も、時折出会うことで、四谷の街の仲間として温かい気持ちになることでしょう。
この周辺は、歴史と文化が息づくエリア。古くからの伝統や、現代アートが融合し、あなたの感性を豊かにしてくれるはずです。近くにある美術館やカフェでは、訪れるたびに新しい発見が待っていることでしょう。四季折々に変化する街の顔は、あなたの日常に彩りを加え、まるで映画のワンシーンのような美しい瞬間を演出してくれます。
住まうことは、その場所の一部となること。ライトコート四谷 311での暮らしは、ただ居住空間を提供するだけではありません。ここでは、あなたの生活そのものがアートとなり、感動を呼び起こす特別な瞬間を提供してくれるのです。心が豊かになっていく瞬間を、あなた自身の手で描き出してみませんか。日常が非日常に変わる、その時を待ちながら、ライトコート四谷 311で新たな生活を始める、その一歩を踏み出してみましょう。
バイブルスコア
バイブルスコア: 25.7
平均的なスコアです。
※バイブルスコア詳細はこちら
バイブルスコアとは独自のAI機械学習技術を利用した物件評価システムで、物件のおすすめ度を示します。最高得点は100点で、スコアが高いほど、よりおすすめの物件と評価されています。
写真
現在写真が登録されていません契約条件
| 賃料 | 予想金額:141,000〜161,000円程度 | 管理費 | 予想金額:10,000〜14,000円程度 |
| 礼金 | 非公開(アーカイブ) | 敷金 | 非公開(アーカイブ) |
| フリーレント | なし | 平米数 | 42.6㎡ |
| 間取り | 1K | 大型収納 | |
| 契約期間 |
| 方角 | 北西 |
| 更新料 | 契約形態 | 普通賃貸借契約 | |
| 取引態様 | 媒介 | 内見状況 | 入居中 |
| 入居時期 | 入居中 | SOHO・事務所 | |
| ペット | 間取り内訳 | 洋:11.9 K:2.7 | |
| キャンペーン情報・備考 | 本情報は賃料改定交渉の資料作成、収益物件の利回り試算、周辺エリアや最寄り駅の坪単価分析、次回募集開始時期の予測などにご活用いただけます。 | ||
※「どの不動産に頼めばいいのか分からない」「信頼できる営業マンの話を聞きたい」「一番親切な会社と契約したい」とお悩みの方におすすめなのが「高級賃貸バイブル」です。
高級賃貸バイブルは業界10年以上の熟練スタッフ群がお客様ファーストで対応します。
下記ボタンから、まずは無料でご相談下さい。
※内覧をご希望の際には、どうぞ物件のエントランス前にてお待ち合わせくださいませ。ご内覧後は、同じ場所でお別れとさせていただきます。お客様のご都合に合わせたスムーズなご案内を心がけておりますので、ご質問等がございましたら何なりとお申し付けください。 物件概要
| 物件名 |
| 築年月 |
|
|---|---|---|---|
| 所在地 | |||
| 交通 | |||
| 総戸数 |
| 総階数 |
|
| 構造 |
| ||
地図
物件までの道のりは、「拡大地図を表示」をクリックしてナビ機能をご利用ください。
部屋設備











建物設備

24時間管理

TVモニターホン

エレベーター

オートロック

宅配ボックス

敷地内ゴミ置場

管理人

駐車場平置き

駐車場機械式

駐輪場
ライトコート四谷の現在募集中のお部屋
- No rooms found for this property.
