
| 賃料 | 予想金額:150,000〜170,000円程度 | 管理費 | 予想金額:13,000〜17,000円程度 |
| 礼金/敷金 | 非公開(アーカイブ) | 平米数 | 42.6㎡ |
| 初期費用概算(参考) | 目安:624,000〜724,000 円 | みなし賃料(月額・参考) | 175,708〜195,708 円 |
| 備考 | 本ページは過去募集のアーカイブです。表示の金額は周辺相場・過去募集を踏まえた参考レンジであり、実際の契約金額・条件ではありません。 | ||
※上記みなし賃料(月額)は仲介手数料割引・無料&キャッシュバックを加味した高級賃貸バイブル限定の金額です。一般的なみなし賃料とは異なります。
【建物ページ】ライトコート四谷の詳細・最新空室はこちら▶▶選ばれる理由
仲介手数料無料・キャンペーン情報(毎月15名様限定)
〇仲介手数料割引キャンペーン
ライトコート四谷 211の口コミ・レビュー
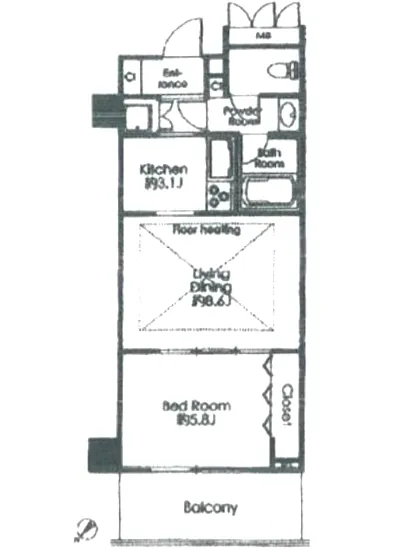
ライトコート四谷 211は、まるで都会のオアシスのように洗練された魅力を放つ特別な住まいです。新宿区若葉3-2に位置し、北西の風が心地よく舞い込むこの空間は、あなた自身の物語の舞台となります。42.6㎡の広大な専有面積には、生活の全てがまとまり、あなたの個性が輝く舞台を提供します。
この物件に一歩足を踏み入れると、まるで静かな湖畔のような穏やかな空気に包まれます。各部屋は、光と影のコントラストが…ライトコート四谷 211は、まるで都会のオアシスのように洗練された魅力を放つ特別な住まいです。新宿区若葉3-2に位置し、北西の風が心地よく舞い込むこの空間は、あなた自身の物語の舞台となります。42.6㎡の広大な専有面積には、生活の全てがまとまり、あなたの個性が輝く舞台を提供します。
この物件に一歩足を踏み入れると、まるで静かな湖畔のような穏やかな空気に包まれます。各部屋は、光と影のコントラストが美しく、日々の暮らしをより一層豊かなものにしてくれます。洋室5.8帖は、柔らかな陽射しが降り注ぎ、あたかも夢の中にいるかのようなリラックスしたひとときを演出します。ここでは、朝のコーヒーの香りが漂い、あなたを穏やかな日常へと誘います。
リビングダイニング8.6帖は、友人や家族との笑顔が溢れる場所です。心地よい風が窓から吹き込み、優雅な音色で穏やかな時間を奏でます。食卓を囲むたくさんの会話や、夕暮れ時の静かな読書の時間が、ここに集う人々の心に温かい思い出を刻むことでしょう。また、キッチン3.1帖は、料理の魔法をかける場所。新鮮な食材の香ばしさや、スパイスの香りが、あなたの創造力をかき立てます。
ライトコート四谷 211は、24時間管理された安全な空間でもあります。心地よい暮らしを支えるための設備が整い、オートロックや宅配ボックス、駐車場など、快適さと利便性が共存しています。まるで貴族の城であるかのように、安心して日常を楽しむことができます。エレベーターで上がるたびに、まるで自分だけの特別な空間に向かうような高揚感が味わえます。
この地は、四谷の歴史的な街並みと文化が息づく地域。周辺には、緑豊かな公園やアートギャラリーが点在しており、散策することで心を豊かにしてくれるでしょう。日々の生活の中で、芸術や歴史と触れ合うことができるこの場所は、心の豊かさを得るための最高の舞台でもあります。
ライトコート四谷 211での生活は、まるで映画のワンシーンのように、感情豊かに、そして新たな発見に満ちています。ここでの暮らしは、あなたの人生に色彩を添え、どんな日常も美しい瞬間に変えてくれることでしょう。是非、この特別な空間で、新たな物語を紡いでみてはいかがでしょうか。
この物件に一歩足を踏み入れると、まるで静かな湖畔のような穏やかな空気に包まれます。各部屋は、光と影のコントラストが…ライトコート四谷 211は、まるで都会のオアシスのように洗練された魅力を放つ特別な住まいです。新宿区若葉3-2に位置し、北西の風が心地よく舞い込むこの空間は、あなた自身の物語の舞台となります。42.6㎡の広大な専有面積には、生活の全てがまとまり、あなたの個性が輝く舞台を提供します。
この物件に一歩足を踏み入れると、まるで静かな湖畔のような穏やかな空気に包まれます。各部屋は、光と影のコントラストが美しく、日々の暮らしをより一層豊かなものにしてくれます。洋室5.8帖は、柔らかな陽射しが降り注ぎ、あたかも夢の中にいるかのようなリラックスしたひとときを演出します。ここでは、朝のコーヒーの香りが漂い、あなたを穏やかな日常へと誘います。
リビングダイニング8.6帖は、友人や家族との笑顔が溢れる場所です。心地よい風が窓から吹き込み、優雅な音色で穏やかな時間を奏でます。食卓を囲むたくさんの会話や、夕暮れ時の静かな読書の時間が、ここに集う人々の心に温かい思い出を刻むことでしょう。また、キッチン3.1帖は、料理の魔法をかける場所。新鮮な食材の香ばしさや、スパイスの香りが、あなたの創造力をかき立てます。
ライトコート四谷 211は、24時間管理された安全な空間でもあります。心地よい暮らしを支えるための設備が整い、オートロックや宅配ボックス、駐車場など、快適さと利便性が共存しています。まるで貴族の城であるかのように、安心して日常を楽しむことができます。エレベーターで上がるたびに、まるで自分だけの特別な空間に向かうような高揚感が味わえます。
この地は、四谷の歴史的な街並みと文化が息づく地域。周辺には、緑豊かな公園やアートギャラリーが点在しており、散策することで心を豊かにしてくれるでしょう。日々の生活の中で、芸術や歴史と触れ合うことができるこの場所は、心の豊かさを得るための最高の舞台でもあります。
ライトコート四谷 211での生活は、まるで映画のワンシーンのように、感情豊かに、そして新たな発見に満ちています。ここでの暮らしは、あなたの人生に色彩を添え、どんな日常も美しい瞬間に変えてくれることでしょう。是非、この特別な空間で、新たな物語を紡いでみてはいかがでしょうか。
バイブルスコア
バイブルスコア: 18.8
高級な物件でない場合は割高な物件です。。
※バイブルスコア詳細はこちら
バイブルスコアとは独自のAI機械学習技術を利用した物件評価システムで、物件のおすすめ度を示します。最高得点は100点で、スコアが高いほど、よりおすすめの物件と評価されています。
写真
現在写真が登録されていません契約条件
| 賃料 | 予想金額:150,000〜170,000円程度 | 管理費 | 予想金額:13,000〜17,000円程度 |
| 礼金 | 非公開(アーカイブ) | 敷金 | 非公開(アーカイブ) |
| フリーレント | なし | 平米数 | 42.6㎡ |
| 間取り | 1LDK | 大型収納 | |
| 契約期間 |
| 方角 | 北西 |
| 更新料 | 契約形態 | 普通賃貸借契約 | |
| 取引態様 | 媒介 | 内見状況 | 入居中 |
| 入居時期 | 入居中 | SOHO・事務所 | |
| ペット | ペット可 | 間取り内訳 | 洋:5.8 LD:8.6 K:3.1 |
| キャンペーン情報・備考 | 本情報は賃料改定交渉の資料作成、収益物件の利回り試算、周辺エリアや最寄り駅の坪単価分析、次回募集開始時期の予測などにご活用いただけます。 | ||
※「どの不動産に頼めばいいのか分からない」「信頼できる営業マンの話を聞きたい」「一番親切な会社と契約したい」とお悩みの方におすすめなのが「高級賃貸バイブル」です。
高級賃貸バイブルは業界10年以上の熟練スタッフ群がお客様ファーストで対応します。
下記ボタンから、まずは無料でご相談下さい。
※内覧をご希望の際には、どうぞ物件のエントランス前にてお待ち合わせくださいませ。ご内覧後は、同じ場所でお別れとさせていただきます。お客様のご都合に合わせたスムーズなご案内を心がけておりますので、ご質問等がございましたら何なりとお申し付けください。 物件概要
| 物件名 |
| 築年月 |
|
|---|---|---|---|
| 所在地 | |||
| 交通 | |||
| 総戸数 |
| 総階数 |
|
| 構造 |
| ||
地図
物件までの道のりは、「拡大地図を表示」をクリックしてナビ機能をご利用ください。
部屋設備















建物設備

24時間管理

TVモニターホン

エレベーター

オートロック

宅配ボックス

敷地内ゴミ置場

管理人

駐車場平置き

駐車場機械式

駐輪場
ライトコート四谷の現在募集中のお部屋
- No rooms found for this property.
