
| 賃料 | 予想金額:1,040,000〜1,060,000円程度 | 管理費 | 予想金額:18,000〜22,000円程度 |
| 礼金/敷金 | 非公開(アーカイブ) | 平米数 | 92.83㎡ |
| 初期費用概算(参考) | 目安:3,746,500〜3,846,500 円 | みなし賃料(月額・参考) | 1,117,219〜1,137,219 円 |
| 備考 | 本ページは過去募集のアーカイブです。表示の金額は周辺相場・過去募集を踏まえた参考レンジであり、実際の契約金額・条件ではありません。 | ||
※上記みなし賃料(月額)は仲介手数料割引・無料&キャッシュバックを加味した高級賃貸バイブル限定の金額です。一般的なみなし賃料とは異なります。
【建物ページ】BRAVE赤坂の詳細・最新空室はこちら▶▶選ばれる理由
仲介手数料無料・キャンペーン情報(毎月15名様限定)
〇仲介手数料割引キャンペーン
BRAVE赤坂 4階 92.83㎡の口コミ・レビュー
BRAVE赤坂 4階 92.83㎡、それはまるで真珠のように洗練された、特別な空間です。この素晴らしい物件は、東京都港区赤坂の心臓部に位置し、南の陽射しが優雅に降り注ぐ、穏やかでスタイリッシュな暮らしを約束します。あなたがこの家に足を踏み入れると、広々とした32.5帖のLDKがその広がりを感じさせ、まるで自分が都心の高級リゾートにいるかのような錯覚に陥ります。
朝日が窓から差し込み、金色の光が壁…BRAVE赤坂 4階 92.83㎡、それはまるで真珠のように洗練された、特別な空間です。この素晴らしい物件は、東京都港区赤坂の心臓部に位置し、南の陽射しが優雅に降り注ぐ、穏やかでスタイリッシュな暮らしを約束します。あなたがこの家に足を踏み入れると、広々とした32.5帖のLDKがその広がりを感じさせ、まるで自分が都心の高級リゾートにいるかのような錯覚に陥ります。
朝日が窓から差し込み、金色の光が壁を撫でる様子は、まるで新しい一日を迎えるための絵画のようです。ゆっくりとした朝食の時間、カフェの香りを漂わせるコーヒーや、焼きたてのパンの香ばしい香りが食卓を囲む人々を優しく包み込みます。ここでの生活は、日常の何気ない瞬間を特別に変えてくれるのです。
BRAVE赤坂 4階 92.83㎡は、あなたのセンスに呼応するように設計されたデザイナーズマンション。そのデザインは、心地よい触感をもたらす素材と色彩で、まるで自己表現のキャンバスのよう。低層の落ち着いた外観は、周囲の喧騒を忘れさせ、静かな安らぎの空間へと誘います。
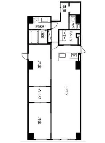
この特別な空間には、使い勝手を追求した2LDKが備わっています。8.3帖、そして4.5帖の洋室は、家族や友人との時間を大切にし、プライバシーを守るための隠れ家としても最適です。お好きなインテリアを飾り、温かみのある生活空間を創り上げてください。ここから見る景色は、まるで映画のワンシーンのように、あなたの心を打つことでしょう。カーテンを開けた瞬間に広がる青空と、街の喧騒が融合する光景を感じてみてください。
さらに、BRAVE赤坂 4階 92.83㎡の魅力はそれだけではありません。エレベーターでの上昇は、まるで人生を昇華させるかのような気持ちにさせ、オートロックで守られた安全な環境は、日常に安心感を与えます。宅配ボックスや敷地内ゴミ置場、駐輪場も整い、利便性と快適さを両立させた生活がここにあります。
そして、東京メトロ千代田線の赤坂駅から徒歩5分という立地は、都会の文化を満喫するための拠点となります。周囲には多くのカフェやアートギャラリー、歴史的な名所が点在しており、日々の暮らしに彩りを加えます。特に赤坂は、歴史深い街並みが残る一方で、現代的な風潮も併せ持ち、まるで時の流れを楽しむことができる特別な場所です。
BRAVE赤坂 4階 92.83㎡に住むということは、ただの住処ではなく、あなた自身の物語を紡ぐ舞台を手に入れることを意味します。新しい日々が、ここから始まるのです。あなたとの出会いを心待ちにしているこの物件は、きっとあなたを特別な瞬間で包み込んでくれることでしょう。さあ、人生の新たな章をこの素晴らしい空間で始めてみませんか。
朝日が窓から差し込み、金色の光が壁…BRAVE赤坂 4階 92.83㎡、それはまるで真珠のように洗練された、特別な空間です。この素晴らしい物件は、東京都港区赤坂の心臓部に位置し、南の陽射しが優雅に降り注ぐ、穏やかでスタイリッシュな暮らしを約束します。あなたがこの家に足を踏み入れると、広々とした32.5帖のLDKがその広がりを感じさせ、まるで自分が都心の高級リゾートにいるかのような錯覚に陥ります。
朝日が窓から差し込み、金色の光が壁を撫でる様子は、まるで新しい一日を迎えるための絵画のようです。ゆっくりとした朝食の時間、カフェの香りを漂わせるコーヒーや、焼きたてのパンの香ばしい香りが食卓を囲む人々を優しく包み込みます。ここでの生活は、日常の何気ない瞬間を特別に変えてくれるのです。
BRAVE赤坂 4階 92.83㎡は、あなたのセンスに呼応するように設計されたデザイナーズマンション。そのデザインは、心地よい触感をもたらす素材と色彩で、まるで自己表現のキャンバスのよう。低層の落ち着いた外観は、周囲の喧騒を忘れさせ、静かな安らぎの空間へと誘います。
この特別な空間には、使い勝手を追求した2LDKが備わっています。8.3帖、そして4.5帖の洋室は、家族や友人との時間を大切にし、プライバシーを守るための隠れ家としても最適です。お好きなインテリアを飾り、温かみのある生活空間を創り上げてください。ここから見る景色は、まるで映画のワンシーンのように、あなたの心を打つことでしょう。カーテンを開けた瞬間に広がる青空と、街の喧騒が融合する光景を感じてみてください。
さらに、BRAVE赤坂 4階 92.83㎡の魅力はそれだけではありません。エレベーターでの上昇は、まるで人生を昇華させるかのような気持ちにさせ、オートロックで守られた安全な環境は、日常に安心感を与えます。宅配ボックスや敷地内ゴミ置場、駐輪場も整い、利便性と快適さを両立させた生活がここにあります。
そして、東京メトロ千代田線の赤坂駅から徒歩5分という立地は、都会の文化を満喫するための拠点となります。周囲には多くのカフェやアートギャラリー、歴史的な名所が点在しており、日々の暮らしに彩りを加えます。特に赤坂は、歴史深い街並みが残る一方で、現代的な風潮も併せ持ち、まるで時の流れを楽しむことができる特別な場所です。
BRAVE赤坂 4階 92.83㎡に住むということは、ただの住処ではなく、あなた自身の物語を紡ぐ舞台を手に入れることを意味します。新しい日々が、ここから始まるのです。あなたとの出会いを心待ちにしているこの物件は、きっとあなたを特別な瞬間で包み込んでくれることでしょう。さあ、人生の新たな章をこの素晴らしい空間で始めてみませんか。
バイブルスコア
バイブルスコア: 18.5
高級な物件でない場合は割高な物件です。。
※バイブルスコア詳細はこちら
バイブルスコアとは独自のAI機械学習技術を利用した物件評価システムで、物件のおすすめ度を示します。最高得点は100点で、スコアが高いほど、よりおすすめの物件と評価されています。
写真
契約条件
| 賃料 | 予想金額:1,040,000〜1,060,000円程度 | 管理費 | 予想金額:18,000〜22,000円程度 |
| 礼金 | 非公開(アーカイブ) | 敷金 | 非公開(アーカイブ) |
| フリーレント | なし | 平米数 | 92.83㎡ |
| 間取り | 2LDK | 大型収納 | WIC+Sto |
| 契約期間 |
| 方角 | 南 |
| 更新料 | 契約形態 | 普通賃貸借契約 | |
| 取引態様 | 媒介 | 内見状況 | 入居中 |
| 入居時期 | 入居中 | SOHO・事務所 | 事務所(SOHO)可 |
| ペット | ペット可 | 間取り内訳 | LDK=32.5J / BR=8.3J , 4.5J |
| キャンペーン情報・備考 | 本情報は賃料改定交渉の資料作成、収益物件の利回り試算、周辺エリアや最寄り駅の坪単価分析、次回募集開始時期の予測などにご活用いただけます。 | ||
※「どの不動産に頼めばいいのか分からない」「信頼できる営業マンの話を聞きたい」「一番親切な会社と契約したい」とお悩みの方におすすめなのが「高級賃貸バイブル」です。
高級賃貸バイブルは業界10年以上の熟練スタッフ群がお客様ファーストで対応します。
下記ボタンから、まずは無料でご相談下さい。
※内覧をご希望の際には、どうぞ物件のエントランス前にてお待ち合わせくださいませ。ご内覧後は、同じ場所でお別れとさせていただきます。お客様のご都合に合わせたスムーズなご案内を心がけておりますので、ご質問等がございましたら何なりとお申し付けください。 物件概要
| 物件名 |
| 築年月 |
|
|---|---|---|---|
| 所在地 | |||
| 交通 | |||
| 総戸数 |
| 総階数 |
|
| 構造 |
| ||
地図
物件までの道のりは、「拡大地図を表示」をクリックしてナビ機能をご利用ください。
部屋設備

















建物設備

TVモニターホン

エレベーター

オートロック

宅配ボックス

敷地内ゴミ置場

駐輪場
BRAVE赤坂の現在募集中のお部屋
- No rooms found for this property.




















