
| 賃料 | 予想金額:990,000〜1,010,000円程度 | 管理費 | 予想金額:18,000〜22,000円程度 |
| 礼金/敷金 | 非公開(アーカイブ) | 平米数 | 90.83㎡ |
| 初期費用概算(参考) | 目安:3,571,500〜3,671,500 円 | みなし賃料(月額・参考) | 1,064,615〜1,084,615 円 |
| 備考 | 本ページは過去募集のアーカイブです。表示の金額は周辺相場・過去募集を踏まえた参考レンジであり、実際の契約金額・条件ではありません。 | ||
※上記みなし賃料(月額)は仲介手数料割引・無料&キャッシュバックを加味した高級賃貸バイブル限定の金額です。一般的なみなし賃料とは異なります。
【建物ページ】BRAVE赤坂の詳細・最新空室はこちら▶▶選ばれる理由
仲介手数料無料・キャンペーン情報(毎月15名様限定)
〇仲介手数料割引キャンペーン
BRAVE赤坂 3階 90.83㎡の口コミ・レビュー
BRAVE赤坂 3階 90.83㎡、それはまるで一編の詩が具現化したかのような、特別な空間です。東京都港区赤坂という歴史と文化が息づく街の中心に佇むこの物件は、見上げると青空に溶け込み、低層の風合いが周囲の景色と優しく調和しています。北向きの窓からは、四季折々の変化を見せる風景が広がり、朝日が新たな希望を運んでくる瞬間や、夕暮れ時には街灯が点灯し始める美しい光の交響曲をお楽しみいただけます。
こ…BRAVE赤坂 3階 90.83㎡、それはまるで一編の詩が具現化したかのような、特別な空間です。東京都港区赤坂という歴史と文化が息づく街の中心に佇むこの物件は、見上げると青空に溶け込み、低層の風合いが周囲の景色と優しく調和しています。北向きの窓からは、四季折々の変化を見せる風景が広がり、朝日が新たな希望を運んでくる瞬間や、夕暮れ時には街灯が点灯し始める美しい光の交響曲をお楽しみいただけます。
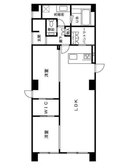
このBRAVE赤坂は、ただの住まいではありません。心地よく迎え入れてくれるような親しみやすさと、洗練されたデザインが共存しています。玄関を開けた瞬間、広がる90.83㎡の空間には、充実した生活が待っていることを伝えています。2LDKの間取りは、日常の喧騒を離れ、静かなひとときを過ごすための理想のステージです。LDKは11.6帖、洋室は4.5帖という明確な区分があり、それぞれが独自の時間を育むためのスペースを提供してくれます。
この素敵な空間での生活は、まるで美術館にいるかのような気分を味わわせてくれます。朝目覚めると、カーテンの隙間から差し込む穏やかな光が、あなたの肌を優しく包み込むことでしょう。その瞬間、温かいコーヒーの香りがキッチンから漂い、心を満たしてくれるのです。食卓の上には、家族や友人との親しい会話が響き渡り、お互いの存在を感じながら、笑い声が部屋いっぱいに広がります。
また、BRAVE赤坂には現代の利便性がしっかりと組み込まれています。TVモニターホンやオートロック、エレベーター、宅配ボックスなどの設備が、あなたの生活を一層快適に、安心にしてくれることでしょう。また、敷地内ゴミ置場や駐輪場といった細やかな配慮も、住む人々の心を温かく包んでくれます。
赤坂駅から徒歩5分という立地は、日常生活の便利さを提供するだけではなく、この土地の歴史や文化と触れ合う絶好の位置を占めています。古き良き赤坂の街並みを散策すれば、麗しき伝統と現代的なカフェやレストランが交錯する独特な雰囲気に包まれ、心が弾むことでしょう。美術館やギャラリーも近く、文化的な刺激が常に身近にあるのです。
BRAVE赤坂 3階 90.83㎡は、単なる住まいではなく、あなた自身が演じる物語の舞台。心の安らぎと、創造力をかき立てる空間がここにあります。あなたの新たな生活が、この場所で始まることを心から楽しみにしています。お待ち申し上げております。
こ…BRAVE赤坂 3階 90.83㎡、それはまるで一編の詩が具現化したかのような、特別な空間です。東京都港区赤坂という歴史と文化が息づく街の中心に佇むこの物件は、見上げると青空に溶け込み、低層の風合いが周囲の景色と優しく調和しています。北向きの窓からは、四季折々の変化を見せる風景が広がり、朝日が新たな希望を運んでくる瞬間や、夕暮れ時には街灯が点灯し始める美しい光の交響曲をお楽しみいただけます。
このBRAVE赤坂は、ただの住まいではありません。心地よく迎え入れてくれるような親しみやすさと、洗練されたデザインが共存しています。玄関を開けた瞬間、広がる90.83㎡の空間には、充実した生活が待っていることを伝えています。2LDKの間取りは、日常の喧騒を離れ、静かなひとときを過ごすための理想のステージです。LDKは11.6帖、洋室は4.5帖という明確な区分があり、それぞれが独自の時間を育むためのスペースを提供してくれます。
この素敵な空間での生活は、まるで美術館にいるかのような気分を味わわせてくれます。朝目覚めると、カーテンの隙間から差し込む穏やかな光が、あなたの肌を優しく包み込むことでしょう。その瞬間、温かいコーヒーの香りがキッチンから漂い、心を満たしてくれるのです。食卓の上には、家族や友人との親しい会話が響き渡り、お互いの存在を感じながら、笑い声が部屋いっぱいに広がります。
また、BRAVE赤坂には現代の利便性がしっかりと組み込まれています。TVモニターホンやオートロック、エレベーター、宅配ボックスなどの設備が、あなたの生活を一層快適に、安心にしてくれることでしょう。また、敷地内ゴミ置場や駐輪場といった細やかな配慮も、住む人々の心を温かく包んでくれます。
赤坂駅から徒歩5分という立地は、日常生活の便利さを提供するだけではなく、この土地の歴史や文化と触れ合う絶好の位置を占めています。古き良き赤坂の街並みを散策すれば、麗しき伝統と現代的なカフェやレストランが交錯する独特な雰囲気に包まれ、心が弾むことでしょう。美術館やギャラリーも近く、文化的な刺激が常に身近にあるのです。
BRAVE赤坂 3階 90.83㎡は、単なる住まいではなく、あなた自身が演じる物語の舞台。心の安らぎと、創造力をかき立てる空間がここにあります。あなたの新たな生活が、この場所で始まることを心から楽しみにしています。お待ち申し上げております。
バイブルスコア
バイブルスコア: 24.2
平均的なスコアです。
※バイブルスコア詳細はこちら
バイブルスコアとは独自のAI機械学習技術を利用した物件評価システムで、物件のおすすめ度を示します。最高得点は100点で、スコアが高いほど、よりおすすめの物件と評価されています。
写真
契約条件
| 賃料 | 予想金額:990,000〜1,010,000円程度 | 管理費 | 予想金額:18,000〜22,000円程度 |
| 礼金 | 非公開(アーカイブ) | 敷金 | 非公開(アーカイブ) |
| フリーレント | なし | 平米数 | 90.83㎡ |
| 間取り | 2LDK | 大型収納 | WIC+SIC+Sto |
| 契約期間 |
| 方角 | 北 |
| 更新料 | 契約形態 | 普通賃貸借契約 | |
| 取引態様 | 媒介 | 内見状況 | 入居中 |
| 入居時期 | 入居中 | SOHO・事務所 | 事務所(SOHO)可 |
| ペット | ペット可 | 間取り内訳 | |
| キャンペーン情報・備考 | 本情報は賃料改定交渉の資料作成、収益物件の利回り試算、周辺エリアや最寄り駅の坪単価分析、次回募集開始時期の予測などにご活用いただけます。 | ||
※「どの不動産に頼めばいいのか分からない」「信頼できる営業マンの話を聞きたい」「一番親切な会社と契約したい」とお悩みの方におすすめなのが「高級賃貸バイブル」です。
高級賃貸バイブルは業界10年以上の熟練スタッフ群がお客様ファーストで対応します。
下記ボタンから、まずは無料でご相談下さい。
※内覧をご希望の際には、どうぞ物件のエントランス前にてお待ち合わせくださいませ。ご内覧後は、同じ場所でお別れとさせていただきます。お客様のご都合に合わせたスムーズなご案内を心がけておりますので、ご質問等がございましたら何なりとお申し付けください。 物件概要
| 物件名 |
| 築年月 |
|
|---|---|---|---|
| 所在地 | |||
| 交通 | |||
| 総戸数 |
| 総階数 |
|
| 構造 |
| ||
地図
物件までの道のりは、「拡大地図を表示」をクリックしてナビ機能をご利用ください。
部屋設備















建物設備

TVモニターホン

エレベーター

オートロック

宅配ボックス

敷地内ゴミ置場

駐輪場
BRAVE赤坂の現在募集中のお部屋
- No rooms found for this property.




















