
| 賃料 | 予想金額:970,000〜990,000円程度 | 管理費 | 予想金額:18,000〜22,000円程度 |
| 礼金/敷金 | 非公開(アーカイブ) | 平米数 | 90.83㎡ |
| 初期費用概算(参考) | 目安:3,501,500〜3,601,500 円 | みなし賃料(月額・参考) | 1,043,573〜1,063,573 円 |
| 備考 | 本ページは過去募集のアーカイブです。表示の金額は周辺相場・過去募集を踏まえた参考レンジであり、実際の契約金額・条件ではありません。 | ||
※上記みなし賃料(月額)は仲介手数料割引・無料&キャッシュバックを加味した高級賃貸バイブル限定の金額です。一般的なみなし賃料とは異なります。
【建物ページ】BRAVE赤坂の詳細・最新空室はこちら▶▶選ばれる理由
仲介手数料無料・キャンペーン情報(毎月15名様限定)
〇仲介手数料割引キャンペーン
BRAVE赤坂 2階 90.83㎡の口コミ・レビュー
BRAVE赤坂 2階 90.83㎡。この言葉を耳にした瞬間、まるで運命の扉があなたの目の前に開かれるような感覚を覚えます。東京都港区赤坂4-12-7に位置するこの高級賃貸物件は、単なる住まいではなく、まさに新たなライフスタイルのスタート地点。2階という控えめながらも十分なプライバシーを保つ高さ、90.83㎡という広さは、あなたの生活を優雅に彩るための舞台装置です。
この物件があなたに語りかけるよ…BRAVE赤坂 2階 90.83㎡。この言葉を耳にした瞬間、まるで運命の扉があなたの目の前に開かれるような感覚を覚えます。東京都港区赤坂4-12-7に位置するこの高級賃貸物件は、単なる住まいではなく、まさに新たなライフスタイルのスタート地点。2階という控えめながらも十分なプライバシーを保つ高さ、90.83㎡という広さは、あなたの生活を優雅に彩るための舞台装置です。
この物件があなたに語りかけるように、周囲の風景がその特別な存在感を引き立てています。赤坂という地名には、古き良き文化の名残と現代の洗練が息づいています。街を歩むと、耳には静かな時の流れが聞こえ、目には歴史的な建物が映ります。BRAVE赤坂は、その中で穏やかな安らぎを提供し、あなたを特別な日常へと誘います。
エレベーターで2階に上がると、そこには広がる90.83㎡の空間が待っています。2LDKの魅力は、光が差し込むリビングルームや、心地よい風を感じる洋室にあります。リビングは、まるで映画のワンシーンのように、家族や友人が集る場所。特別な夜には、ダイニングテーブルを囲みながら、おいしい料理の香りが漂い、遠くから聞こえる歓声が心をふるわせます。
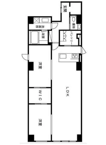
それぞれの間取りが持つ独自の個性もまた、BRAVE赤坂の魅力です。洋室4.5帖の空間は、まるで秘密の隠れ家。柔らかな光が窓から差し込み、心穏やかな読書の時間を過ごすことができます。そして、LDK11.6帖の広々としたスペースでは、家族の笑い声や友人との楽しい会話が響き渡り、まるで祝祭の一部になったかのような高揚感に包まれます。
BRAVE赤坂には、安心をもたらす設備も充実しています。オートロックのドアを通り抜けると、あなたはこの特別な空間の一員となります。TVモニターホンで訪問者を確認し、宅配ボックスでの便利な受取は忙しい現代人にとって嬉しいポイントです。また、敷地内のゴミ置場や駐輪場も、日常生活をよりスムーズにしてくれる大切な存在です。
北向きの窓からは、季節ごとに表情を変える赤坂の街の景色が広がります。四季折々の情景が映し出される中で、あなたは日々の暮らしの中に自然の美を感じ取り、心をリフレッシュさせることができるでしょう。
BRAVE赤坂 2階 90.83㎡は、単なる住まいを超えた、心のふるさとです。あなたの人生を豊かに彩る舞台として、ここから新たな物語が始まります。赤坂という特別な場所で、あなたもその一部になりませんか。新しい日々の中で、BRAVE赤坂があなたを迎え入れる瞬間を、心からお待ちしております。
この物件があなたに語りかけるよ…BRAVE赤坂 2階 90.83㎡。この言葉を耳にした瞬間、まるで運命の扉があなたの目の前に開かれるような感覚を覚えます。東京都港区赤坂4-12-7に位置するこの高級賃貸物件は、単なる住まいではなく、まさに新たなライフスタイルのスタート地点。2階という控えめながらも十分なプライバシーを保つ高さ、90.83㎡という広さは、あなたの生活を優雅に彩るための舞台装置です。
この物件があなたに語りかけるように、周囲の風景がその特別な存在感を引き立てています。赤坂という地名には、古き良き文化の名残と現代の洗練が息づいています。街を歩むと、耳には静かな時の流れが聞こえ、目には歴史的な建物が映ります。BRAVE赤坂は、その中で穏やかな安らぎを提供し、あなたを特別な日常へと誘います。
エレベーターで2階に上がると、そこには広がる90.83㎡の空間が待っています。2LDKの魅力は、光が差し込むリビングルームや、心地よい風を感じる洋室にあります。リビングは、まるで映画のワンシーンのように、家族や友人が集る場所。特別な夜には、ダイニングテーブルを囲みながら、おいしい料理の香りが漂い、遠くから聞こえる歓声が心をふるわせます。
それぞれの間取りが持つ独自の個性もまた、BRAVE赤坂の魅力です。洋室4.5帖の空間は、まるで秘密の隠れ家。柔らかな光が窓から差し込み、心穏やかな読書の時間を過ごすことができます。そして、LDK11.6帖の広々としたスペースでは、家族の笑い声や友人との楽しい会話が響き渡り、まるで祝祭の一部になったかのような高揚感に包まれます。
BRAVE赤坂には、安心をもたらす設備も充実しています。オートロックのドアを通り抜けると、あなたはこの特別な空間の一員となります。TVモニターホンで訪問者を確認し、宅配ボックスでの便利な受取は忙しい現代人にとって嬉しいポイントです。また、敷地内のゴミ置場や駐輪場も、日常生活をよりスムーズにしてくれる大切な存在です。
北向きの窓からは、季節ごとに表情を変える赤坂の街の景色が広がります。四季折々の情景が映し出される中で、あなたは日々の暮らしの中に自然の美を感じ取り、心をリフレッシュさせることができるでしょう。
BRAVE赤坂 2階 90.83㎡は、単なる住まいを超えた、心のふるさとです。あなたの人生を豊かに彩る舞台として、ここから新たな物語が始まります。赤坂という特別な場所で、あなたもその一部になりませんか。新しい日々の中で、BRAVE赤坂があなたを迎え入れる瞬間を、心からお待ちしております。
バイブルスコア
バイブルスコア: 26.9
平均的なスコアです。
※バイブルスコア詳細はこちら
バイブルスコアとは独自のAI機械学習技術を利用した物件評価システムで、物件のおすすめ度を示します。最高得点は100点で、スコアが高いほど、よりおすすめの物件と評価されています。
写真
契約条件
| 賃料 | 予想金額:970,000〜990,000円程度 | 管理費 | 予想金額:18,000〜22,000円程度 |
| 礼金 | 非公開(アーカイブ) | 敷金 | 非公開(アーカイブ) |
| フリーレント | なし | 平米数 | 90.83㎡ |
| 間取り | 2LDK | 大型収納 | WIC+SIC+Sto |
| 契約期間 |
| 方角 | 北 |
| 更新料 | 契約形態 | 普通賃貸借契約 | |
| 取引態様 | 媒介 | 内見状況 | 入居中 |
| 入居時期 | 入居中 | SOHO・事務所 | 事務所(SOHO)可 |
| ペット | ペット可 | 間取り内訳 | |
| キャンペーン情報・備考 | 本情報は賃料改定交渉の資料作成、収益物件の利回り試算、周辺エリアや最寄り駅の坪単価分析、次回募集開始時期の予測などにご活用いただけます。 | ||
※「どの不動産に頼めばいいのか分からない」「信頼できる営業マンの話を聞きたい」「一番親切な会社と契約したい」とお悩みの方におすすめなのが「高級賃貸バイブル」です。
高級賃貸バイブルは業界10年以上の熟練スタッフ群がお客様ファーストで対応します。
下記ボタンから、まずは無料でご相談下さい。
※内覧をご希望の際には、どうぞ物件のエントランス前にてお待ち合わせくださいませ。ご内覧後は、同じ場所でお別れとさせていただきます。お客様のご都合に合わせたスムーズなご案内を心がけておりますので、ご質問等がございましたら何なりとお申し付けください。 物件概要
| 物件名 |
| 築年月 |
|
|---|---|---|---|
| 所在地 | |||
| 交通 | |||
| 総戸数 |
| 総階数 |
|
| 構造 |
| ||
地図
物件までの道のりは、「拡大地図を表示」をクリックしてナビ機能をご利用ください。
部屋設備















建物設備

TVモニターホン

エレベーター

オートロック

宅配ボックス

敷地内ゴミ置場

駐輪場
BRAVE赤坂の現在募集中のお部屋
- No rooms found for this property.




















