
| 賃料 | 予想金額:270,000〜290,000円程度 | 管理費 | 予想金額:11,500〜15,500円程度 |
| 礼金/敷金 | 非公開(アーカイブ) | 平米数 | 73.96㎡ |
| 初期費用概算(参考) | 目安:1,324,000〜1,424,000 円 | みなし賃料(月額・参考) | 306,781〜326,781 円 |
| 備考 | 本ページは過去募集のアーカイブです。表示の金額は周辺相場・過去募集を踏まえた参考レンジであり、実際の契約金額・条件ではありません。 | ||
※上記みなし賃料(月額)は仲介手数料割引・無料&キャッシュバックを加味した高級賃貸バイブル限定の金額です。一般的なみなし賃料とは異なります。
【建物ページ】エアライズタワーの詳細・最新空室はこちら▶▶選ばれる理由
仲介手数料無料・キャンペーン情報(毎月15名様限定)
〇仲介手数料割引キャンペーン
エアライズタワー 2107の口コミ・レビュー
エアライズタワー 2107。この名を耳にした瞬間、まるでその名の通り、空へと羽ばたく高貴な気持ちが胸を満たします。高層ビルの美しいシルエットが、あなたの日常を特別なものに変えてくれるのです。東京都豊島区東池袋4-5-1に位置するこの物件は、南東を向き、陽光が優しく注ぎ込み、心を温めてくれるでしょう。
エアライズタワー 2107は、ただの住まいではありません。まるで人の魂を宿す存在のように、あなた…エアライズタワー 2107。この名を耳にした瞬間、まるでその名の通り、空へと羽ばたく高貴な気持ちが胸を満たします。高層ビルの美しいシルエットが、あなたの日常を特別なものに変えてくれるのです。東京都豊島区東池袋4-5-1に位置するこの物件は、南東を向き、陽光が優しく注ぎ込み、心を温めてくれるでしょう。
エアライズタワー 2107は、ただの住まいではありません。まるで人の魂を宿す存在のように、あなたに語りかけ、毎日を特別にしてくれるのです。エントランスをくぐると、フロントサービスが出迎え、親しみを感じさせるホスピタリティに包まれます。あなたの生活の舞台がここにあることを、静かに告げています。タワーの高さが、まるで貴族の息吹を感じさせ、まるで人生の新たな幕開けを予感させるのです。
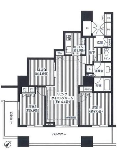
広さ73.96㎡の空間が、あなたを優雅に迎え入れます。リビングダイニングは、14.4帖の広さを有し、家族や友人と共に思い出を紡ぐ場所。心地よい風が通り抜ける窓辺で、朝の日差しを浴びながらコーヒーの香りに包まれ、まるで映画のワンシーンのような至福のひとときを楽しむことができるでしょう。キッチンは3帖の広さで、料理をするたびに美味しい匂いが漂い、家族の笑顔を引き出してくれます。
エアライズタワー 2107の3LDKの間取りは、プライバシーも大切にされており、7帖、5.9帖、4.6帖の寝室は、それぞれに思い出や夢を育むスペースとなります。夜、静寂の中で流れる星の音を感じながら熟睡する時間は、まるで星空の下での静かな夜を思わせます。
駅までは徒歩1分、東京メトロ有楽町線の便利さを享受し、仕事や趣味の時間を余裕を持って楽しむことができます。周辺には豊かな歴史と文化が息づいており、賑やかな街並みが日常の彩りを与えてくれます。周囲のアートや歴史的な遺産との絶妙なコントラストが、あなたの日々に新たな視点をもたらしてくれることでしょう。
エアライズタワー 2107は、あなたの生活をより良いものへと導く、特別な舞台です。五感を刺激する毎日がここに広がっており、物件自体があなたを待っているかのようです。まるで時を超えたアートのように、美しさと機能性が融合されたこの空間で、あなたの人生の新たな物語を描いてみませんか。
エアライズタワー 2107は、ただの住まいではありません。まるで人の魂を宿す存在のように、あなた…エアライズタワー 2107。この名を耳にした瞬間、まるでその名の通り、空へと羽ばたく高貴な気持ちが胸を満たします。高層ビルの美しいシルエットが、あなたの日常を特別なものに変えてくれるのです。東京都豊島区東池袋4-5-1に位置するこの物件は、南東を向き、陽光が優しく注ぎ込み、心を温めてくれるでしょう。
エアライズタワー 2107は、ただの住まいではありません。まるで人の魂を宿す存在のように、あなたに語りかけ、毎日を特別にしてくれるのです。エントランスをくぐると、フロントサービスが出迎え、親しみを感じさせるホスピタリティに包まれます。あなたの生活の舞台がここにあることを、静かに告げています。タワーの高さが、まるで貴族の息吹を感じさせ、まるで人生の新たな幕開けを予感させるのです。
広さ73.96㎡の空間が、あなたを優雅に迎え入れます。リビングダイニングは、14.4帖の広さを有し、家族や友人と共に思い出を紡ぐ場所。心地よい風が通り抜ける窓辺で、朝の日差しを浴びながらコーヒーの香りに包まれ、まるで映画のワンシーンのような至福のひとときを楽しむことができるでしょう。キッチンは3帖の広さで、料理をするたびに美味しい匂いが漂い、家族の笑顔を引き出してくれます。
エアライズタワー 2107の3LDKの間取りは、プライバシーも大切にされており、7帖、5.9帖、4.6帖の寝室は、それぞれに思い出や夢を育むスペースとなります。夜、静寂の中で流れる星の音を感じながら熟睡する時間は、まるで星空の下での静かな夜を思わせます。
駅までは徒歩1分、東京メトロ有楽町線の便利さを享受し、仕事や趣味の時間を余裕を持って楽しむことができます。周辺には豊かな歴史と文化が息づいており、賑やかな街並みが日常の彩りを与えてくれます。周囲のアートや歴史的な遺産との絶妙なコントラストが、あなたの日々に新たな視点をもたらしてくれることでしょう。
エアライズタワー 2107は、あなたの生活をより良いものへと導く、特別な舞台です。五感を刺激する毎日がここに広がっており、物件自体があなたを待っているかのようです。まるで時を超えたアートのように、美しさと機能性が融合されたこの空間で、あなたの人生の新たな物語を描いてみませんか。
バイブルスコア
バイブルスコア: 31.9
平均的なスコアです。
※バイブルスコア詳細はこちら
バイブルスコアとは独自のAI機械学習技術を利用した物件評価システムで、物件のおすすめ度を示します。最高得点は100点で、スコアが高いほど、よりおすすめの物件と評価されています。
写真
契約条件
| 賃料 | 予想金額:270,000〜290,000円程度 | 管理費 | 予想金額:11,500〜15,500円程度 |
| 礼金 | 非公開(アーカイブ) | 敷金 | 非公開(アーカイブ) |
| フリーレント | なし | 平米数 | 73.96㎡ |
| 間取り | 3LDK | 大型収納 | |
| 契約期間 |
| 方角 | 南東 |
| 更新料 | 契約形態 | 普通賃貸借契約 | |
| 取引態様 | 媒介 | 内見状況 | 入居中 |
| 入居時期 | 入居中 | SOHO・事務所 | |
| ペット | 間取り内訳 | LD=14.4J / K=3J / BR=7J / BR=5.9J / BR=4.6J | |
| キャンペーン情報・備考 | 本情報は賃料改定交渉の資料作成、収益物件の利回り試算、周辺エリアや最寄り駅の坪単価分析、次回募集開始時期の予測などにご活用いただけます。 | ||
※「どの不動産に頼めばいいのか分からない」「信頼できる営業マンの話を聞きたい」「一番親切な会社と契約したい」とお悩みの方におすすめなのが「高級賃貸バイブル」です。
高級賃貸バイブルは業界10年以上の熟練スタッフ群がお客様ファーストで対応します。
下記ボタンから、まずは無料でご相談下さい。
※内覧をご希望の際には、どうぞ物件のエントランス前にてお待ち合わせくださいませ。ご内覧後は、同じ場所でお別れとさせていただきます。お客様のご都合に合わせたスムーズなご案内を心がけておりますので、ご質問等がございましたら何なりとお申し付けください。 物件概要
| 物件名 |
| 築年月 |
|
|---|---|---|---|
| 所在地 | |||
| 交通 | |||
| 総戸数 |
| 総階数 |
|
| 構造 |
| ||
地図
物件までの道のりは、「拡大地図を表示」をクリックしてナビ機能をご利用ください。
部屋設備

















建物設備

24時間管理

TVモニターホン

エレベーター

オートロック

ゲストルーム

バイク置場

フィットネス

フロントサービス

ラウンジ

宅配ボックス

敷地内ゴミ置場

管理人

駐車場平置き

駐車場機械式

駐輪場
エアライズタワーの現在募集中のお部屋
- エアライズタワー 4階 41.72㎡ - 間取り: 1LDK - 賃料: 19.9万円
- エアライズタワー 34階 86.43㎡ - 間取り: 3LDK+WIC - 賃料: 45万円
- エアライズタワー 7階 45.36㎡ - 間取り: 1LDK - 賃料: 20.9万円
- エアライズタワー 6階 58.99㎡ - 間取り: 2LDK - 賃料: 26.5万円




















