
| 賃料 | 予想金額:130,000〜150,000円程度 | 管理費 | 予想金額:10,000〜14,000円程度 |
| 礼金/敷金 | 非公開(アーカイブ) | 平米数 | 34.58㎡ |
| 初期費用概算(参考) | 目安:549,500〜649,500 円 | みなし賃料(月額・参考) | 151,573〜171,573 円 |
| 備考 | 本ページは過去募集のアーカイブです。表示の金額は周辺相場・過去募集を踏まえた参考レンジであり、実際の契約金額・条件ではありません。 | ||
※上記みなし賃料(月額)は仲介手数料割引・無料&キャッシュバックを加味した高級賃貸バイブル限定の金額です。一般的なみなし賃料とは異なります。
【建物ページ】フリーディオ広尾南の詳細・最新空室はこちら▶▶選ばれる理由
仲介手数料無料・キャンペーン情報(毎月15名様限定)
〇仲介手数料割引キャンペーン
フリーディオ広尾南 404の口コミ・レビュー
フリーディオ広尾南 404。この響きは、まるで熟成されたワインの香りが漂う上質な時を告げる名前のようです。東京都渋谷区恵比寿2-30-1という地に佇むこの物件は、あなたの新しい生活を静かに待ち侘びています。404という番号は、まるで特別な部屋を示唆する魔法のように、日常の喧騒から少し離れた、洗練された空間を約束します。
この物件の魅力は、単なる広さや間取りに留まりません。専有面積34.58㎡の中…フリーディオ広尾南 404。この響きは、まるで熟成されたワインの香りが漂う上質な時を告げる名前のようです。東京都渋谷区恵比寿2-30-1という地に佇むこの物件は、あなたの新しい生活を静かに待ち侘びています。404という番号は、まるで特別な部屋を示唆する魔法のように、日常の喧騒から少し離れた、洗練された空間を約束します。
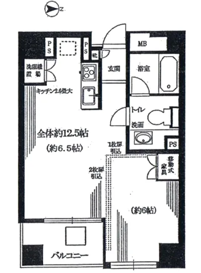
この物件の魅力は、単なる広さや間取りに留まりません。専有面積34.58㎡の中に、心温まるストーリーが詰まっています。自らが語りかけるように、洋室6帖とDK12.5帖が調和を保ち、生活の舞台を用意しています。朝日が差し込み、優しい光に包まれた洋室で目覚めれば、まるで映画の主人公のように新たな一日が始まります。心地よい木の質感が、手のひらに伝わり、外から流れ込む新鮮な空気の香りが、日々の忙しさを忘れさせてくれます。
フリーディオ広尾南 404は、エレベーターで上がるたびに、あなたに特別な時間を提供します。オートロックの安心感に守られた空間では、配達物が宅配ボックスに届く音さえも、心地よいサウンドのひとつとして感じられるでしょう。敷地内ゴミ置場や駐車場、駐輪場が整備されており、日常の小さな不安を取り去り、穏やかな暮らしを支えてくれます。
最寄駅である東京メトロ日比谷線広尾駅まで徒歩8分というアクセスの良さは、まるで都会の中心に住む特権を享受しているかのようです。周囲には洗練されたカフェやレストラン、香ばしいコーヒーの香りが漂う焙煎所、そしてアートギャラリーが点在しており、文化的な豊かさに浸りながら、毎日が新しい発見の連続となるでしょう。周辺の歴史的な背景と、今を生きる人々の創造力が融合するこの街は、まさにフリーディオ広尾南 404が位置するにふさわしい舞台です。
あなたがここで新しい生活を始めるとき、どんな風景が広がっているのでしょう。他の誰かの物語が色鮮やかに描かれたその空間に、自らのストーリーを重ねていくような感覚を大切にしてください。生活の中で出会う朝の光、穏やかな午後の風、そして夜の静けさに酔いしれ、フリーディオ広尾南 404は、あなたの人生に新たなエッセンスをもたらしてくれることでしょう。
フリーディオ広尾南 404、この特別な場所が、あなたを待っています。あなたの物語が始まるその瞬間に、準備を整え、温かく迎え入れる準備をしているのです。さあ、あなたの新しい生活がここから始まります。
この物件の魅力は、単なる広さや間取りに留まりません。専有面積34.58㎡の中…フリーディオ広尾南 404。この響きは、まるで熟成されたワインの香りが漂う上質な時を告げる名前のようです。東京都渋谷区恵比寿2-30-1という地に佇むこの物件は、あなたの新しい生活を静かに待ち侘びています。404という番号は、まるで特別な部屋を示唆する魔法のように、日常の喧騒から少し離れた、洗練された空間を約束します。
この物件の魅力は、単なる広さや間取りに留まりません。専有面積34.58㎡の中に、心温まるストーリーが詰まっています。自らが語りかけるように、洋室6帖とDK12.5帖が調和を保ち、生活の舞台を用意しています。朝日が差し込み、優しい光に包まれた洋室で目覚めれば、まるで映画の主人公のように新たな一日が始まります。心地よい木の質感が、手のひらに伝わり、外から流れ込む新鮮な空気の香りが、日々の忙しさを忘れさせてくれます。
フリーディオ広尾南 404は、エレベーターで上がるたびに、あなたに特別な時間を提供します。オートロックの安心感に守られた空間では、配達物が宅配ボックスに届く音さえも、心地よいサウンドのひとつとして感じられるでしょう。敷地内ゴミ置場や駐車場、駐輪場が整備されており、日常の小さな不安を取り去り、穏やかな暮らしを支えてくれます。
最寄駅である東京メトロ日比谷線広尾駅まで徒歩8分というアクセスの良さは、まるで都会の中心に住む特権を享受しているかのようです。周囲には洗練されたカフェやレストラン、香ばしいコーヒーの香りが漂う焙煎所、そしてアートギャラリーが点在しており、文化的な豊かさに浸りながら、毎日が新しい発見の連続となるでしょう。周辺の歴史的な背景と、今を生きる人々の創造力が融合するこの街は、まさにフリーディオ広尾南 404が位置するにふさわしい舞台です。
あなたがここで新しい生活を始めるとき、どんな風景が広がっているのでしょう。他の誰かの物語が色鮮やかに描かれたその空間に、自らのストーリーを重ねていくような感覚を大切にしてください。生活の中で出会う朝の光、穏やかな午後の風、そして夜の静けさに酔いしれ、フリーディオ広尾南 404は、あなたの人生に新たなエッセンスをもたらしてくれることでしょう。
フリーディオ広尾南 404、この特別な場所が、あなたを待っています。あなたの物語が始まるその瞬間に、準備を整え、温かく迎え入れる準備をしているのです。さあ、あなたの新しい生活がここから始まります。
バイブルスコア
バイブルスコア: 23.9
平均的なスコアです。
※バイブルスコア詳細はこちら
バイブルスコアとは独自のAI機械学習技術を利用した物件評価システムで、物件のおすすめ度を示します。最高得点は100点で、スコアが高いほど、よりおすすめの物件と評価されています。
写真
契約条件
| 賃料 | 予想金額:130,000〜150,000円程度 | 管理費 | 予想金額:10,000〜14,000円程度 |
| 礼金 | 非公開(アーカイブ) | 敷金 | 非公開(アーカイブ) |
| フリーレント | なし | 平米数 | 34.58㎡ |
| 間取り | 1DK | 大型収納 | |
| 契約期間 | 方角 | 東 | |
| 更新料 | 契約形態 | 定期借家契約 | |
| 取引態様 | 媒介 | 内見状況 | 入居中 |
| 入居時期 | 入居中 | SOHO・事務所 | |
| ペット | 間取り内訳 | 洋:6 DK:12.5 | |
| キャンペーン情報・備考 | 本情報は賃料改定交渉の資料作成、収益物件の利回り試算、周辺エリアや最寄り駅の坪単価分析、次回募集開始時期の予測などにご活用いただけます。 | ||
※「どの不動産に頼めばいいのか分からない」「信頼できる営業マンの話を聞きたい」「一番親切な会社と契約したい」とお悩みの方におすすめなのが「高級賃貸バイブル」です。
高級賃貸バイブルは業界10年以上の熟練スタッフ群がお客様ファーストで対応します。
下記ボタンから、まずは無料でご相談下さい。
※内覧をご希望の際には、どうぞ物件のエントランス前にてお待ち合わせくださいませ。ご内覧後は、同じ場所でお別れとさせていただきます。お客様のご都合に合わせたスムーズなご案内を心がけておりますので、ご質問等がございましたら何なりとお申し付けください。 物件概要
| 物件名 |
| 築年月 |
|
|---|---|---|---|
| 所在地 | |||
| 交通 | |||
| 総戸数 |
| 総階数 |
|
| 構造 |
| ||
地図
物件までの道のりは、「拡大地図を表示」をクリックしてナビ機能をご利用ください。
部屋設備











建物設備

TVモニターホン

エレベーター

オートロック

宅配ボックス

敷地内ゴミ置場

管理人

駐車場平置き

駐車場機械式

駐輪場
フリーディオ広尾南の現在募集中のお部屋
- No rooms found for this property.

















