
| 賃料 | 予想金額:138,000〜158,000円程度 | 管理費 | 予想金額:13,000〜17,000円程度 |
| 礼金/敷金 | 非公開(アーカイブ) | 平米数 | 38.94㎡ |
| 初期費用概算(参考) | 目安:286,000〜386,000 円 | みなし賃料(月額・参考) | 156,917〜176,917 円 |
| 備考 | 本ページは過去募集のアーカイブです。表示の金額は周辺相場・過去募集を踏まえた参考レンジであり、実際の契約金額・条件ではありません。 | ||
※上記みなし賃料(月額)は仲介手数料割引・無料&キャッシュバックを加味した高級賃貸バイブル限定の金額です。一般的なみなし賃料とは異なります。
【建物ページ】リーガランド新宿山吹の詳細・最新空室はこちら▶▶選ばれる理由
仲介手数料無料・キャンペーン情報(毎月15名様限定)
〇仲介手数料割引キャンペーン
リーガランド新宿山吹 101の口コミ・レビュー
「リーガランド新宿山吹 101」は、美しい南向きの窓から降り注ぐ陽射しとともに、あなたを優雅な暮らしへと誘ってくれる魅惑の住空間です。38.94㎡の贅沢なスペースはまるで一枚のキャンバスのように、あなたの個性を表現するための舞台を提供します。東京メトロ有楽町線の江戸川橋駅からは徒歩7分という絶妙な距離で、喧騒から一歩引いた静謐な場所に佇んでいます。
あなたがこの部屋に足を踏み入れると、まず広がる…「リーガランド新宿山吹 101」は、美しい南向きの窓から降り注ぐ陽射しとともに、あなたを優雅な暮らしへと誘ってくれる魅惑の住空間です。38.94㎡の贅沢なスペースはまるで一枚のキャンバスのように、あなたの個性を表現するための舞台を提供します。東京メトロ有楽町線の江戸川橋駅からは徒歩7分という絶妙な距離で、喧騒から一歩引いた静謐な場所に佇んでいます。
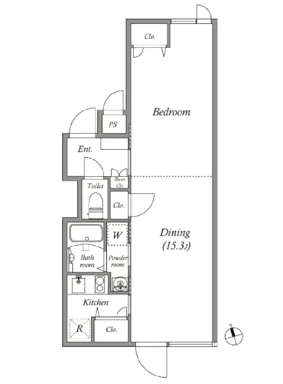
あなたがこの部屋に足を踏み入れると、まず広がるのは洗練されたデザインの数々。目に飛び込んでくるのは、広々とした洋室15.3帖の充実感。柔らかな風に揺れるカーテンを通して差し込む光は、まるで朝の新鮮な空気を運んでくる小鳥のさえずりのようで、心を洗い流してくれます。壁にかけたアート作品は、あなたの感性を刺激し、日常生活にちょっとした驚きと喜びを添えてくれることでしょう。
「リーガランド新宿山吹 101」は、ただの住まいではなく、あなたの日常の舞台です。大切な人と共にグラスを重ねたり、香り高いコーヒーを味わいながら、柔らかいソファに身を沈める瞬間はまるで映画のワンシーンのよう。時間が緩やかに流れ、世の中の喧噪を忘れさせてくれる特別な場所なのです。
安全性を重視したオートロックシステムや、快適さを求めるための宅配ボックスなど、生活の利便性を考えた設備も整っています。管理人が常駐しているため、どこか心温まる安心感を抱きながら、毎日を楽しむことができるでしょう。エレベーターでの上昇もまた、一日のスタートを切る爽快さを感じられる瞬間で、そこから見上げる青空はあなたの心を解き放つ鍵となります。
周辺には新宿の文化や歴史が息づいており、散策することで新たな発見が待ち受けています。古い街並みや季節折々の花々が迎えてくれる中で、思わず深呼吸したくなるような癒しの空間が広がっています。ここでは、昼下がりにお気に入りのカフェでスイーツを楽しむ贅沢も味わえ、友人との語らいや静かなひとときも、特別な思い出として心に刻まれることでしょう。
「リーガランド新宿山吹 101」は、あなたの人生の新たな章を彩る、唯一無二のパートナーなのです。この場所で過ごす日々は、まるで詩の一節が紡がれるかのように、豊かで、感情豊かで、愛に満ちたものとなることでしょう。さあ、この特別な空間で、あなた自身の物語を創作してみませんか。
あなたがこの部屋に足を踏み入れると、まず広がる…「リーガランド新宿山吹 101」は、美しい南向きの窓から降り注ぐ陽射しとともに、あなたを優雅な暮らしへと誘ってくれる魅惑の住空間です。38.94㎡の贅沢なスペースはまるで一枚のキャンバスのように、あなたの個性を表現するための舞台を提供します。東京メトロ有楽町線の江戸川橋駅からは徒歩7分という絶妙な距離で、喧騒から一歩引いた静謐な場所に佇んでいます。
あなたがこの部屋に足を踏み入れると、まず広がるのは洗練されたデザインの数々。目に飛び込んでくるのは、広々とした洋室15.3帖の充実感。柔らかな風に揺れるカーテンを通して差し込む光は、まるで朝の新鮮な空気を運んでくる小鳥のさえずりのようで、心を洗い流してくれます。壁にかけたアート作品は、あなたの感性を刺激し、日常生活にちょっとした驚きと喜びを添えてくれることでしょう。
「リーガランド新宿山吹 101」は、ただの住まいではなく、あなたの日常の舞台です。大切な人と共にグラスを重ねたり、香り高いコーヒーを味わいながら、柔らかいソファに身を沈める瞬間はまるで映画のワンシーンのよう。時間が緩やかに流れ、世の中の喧噪を忘れさせてくれる特別な場所なのです。
安全性を重視したオートロックシステムや、快適さを求めるための宅配ボックスなど、生活の利便性を考えた設備も整っています。管理人が常駐しているため、どこか心温まる安心感を抱きながら、毎日を楽しむことができるでしょう。エレベーターでの上昇もまた、一日のスタートを切る爽快さを感じられる瞬間で、そこから見上げる青空はあなたの心を解き放つ鍵となります。
周辺には新宿の文化や歴史が息づいており、散策することで新たな発見が待ち受けています。古い街並みや季節折々の花々が迎えてくれる中で、思わず深呼吸したくなるような癒しの空間が広がっています。ここでは、昼下がりにお気に入りのカフェでスイーツを楽しむ贅沢も味わえ、友人との語らいや静かなひとときも、特別な思い出として心に刻まれることでしょう。
「リーガランド新宿山吹 101」は、あなたの人生の新たな章を彩る、唯一無二のパートナーなのです。この場所で過ごす日々は、まるで詩の一節が紡がれるかのように、豊かで、感情豊かで、愛に満ちたものとなることでしょう。さあ、この特別な空間で、あなた自身の物語を創作してみませんか。
バイブルスコア
バイブルスコア: 23.5
平均的なスコアです。
※バイブルスコア詳細はこちら
バイブルスコアとは独自のAI機械学習技術を利用した物件評価システムで、物件のおすすめ度を示します。最高得点は100点で、スコアが高いほど、よりおすすめの物件と評価されています。
写真
契約条件
| 賃料 | 予想金額:138,000〜158,000円程度 | 管理費 | 予想金額:13,000〜17,000円程度 |
| 礼金 | 非公開(アーカイブ) | 敷金 | 非公開(アーカイブ) |
| フリーレント | なし | 平米数 | 38.94㎡ |
| 間取り | 1R | 大型収納 | |
| 契約期間 |
| 方角 | 南 |
| 更新料 | 契約形態 | 普通賃貸借契約 | |
| 取引態様 | 媒介 | 内見状況 | 入居中 |
| 入居時期 | 入居中 | SOHO・事務所 | |
| ペット | 間取り内訳 | 洋:15.3 | |
| キャンペーン情報・備考 | 本情報は賃料改定交渉の資料作成、収益物件の利回り試算、周辺エリアや最寄り駅の坪単価分析、次回募集開始時期の予測などにご活用いただけます。 | ||
※「どの不動産に頼めばいいのか分からない」「信頼できる営業マンの話を聞きたい」「一番親切な会社と契約したい」とお悩みの方におすすめなのが「高級賃貸バイブル」です。
高級賃貸バイブルは業界10年以上の熟練スタッフ群がお客様ファーストで対応します。
下記ボタンから、まずは無料でご相談下さい。
※内覧をご希望の際には、どうぞ物件のエントランス前にてお待ち合わせくださいませ。ご内覧後は、同じ場所でお別れとさせていただきます。お客様のご都合に合わせたスムーズなご案内を心がけておりますので、ご質問等がございましたら何なりとお申し付けください。 物件概要
| 物件名 |
| 築年月 |
|
|---|---|---|---|
| 所在地 | |||
| 交通 | |||
| 総戸数 |
| 総階数 |
|
| 構造 |
| ||
地図
物件までの道のりは、「拡大地図を表示」をクリックしてナビ機能をご利用ください。
部屋設備












建物設備

TVモニターホン

エレベーター

オートロック

宅配ボックス

敷地内ゴミ置場

管理人
リーガランド新宿山吹の現在募集中のお部屋
- No rooms found for this property.


