
| 賃料 | 予想金額:81,000〜101,000円程度 | 管理費 | 予想金額:10,000〜14,000円程度 |
| 礼金/敷金 | 非公開(アーカイブ) | 平米数 | 22.16㎡ |
| 初期費用概算(参考) | 目安:268,400〜368,400 円 | みなし賃料(月額・参考) | 97,738〜117,738 円 |
| 備考 | 本ページは過去募集のアーカイブです。表示の金額は周辺相場・過去募集を踏まえた参考レンジであり、実際の契約金額・条件ではありません。 | ||
※上記みなし賃料(月額)は仲介手数料割引・無料&キャッシュバックを加味した高級賃貸バイブル限定の金額です。一般的なみなし賃料とは異なります。
【建物ページ】アジールコート品川中延の詳細・最新空室はこちら▶▶選ばれる理由
仲介手数料無料・キャンペーン情報(毎月15名様限定)
〇引っ越しお祝い金54600円プレゼント(キャッシュバック)
〇仲介手数料無料キャンペーン
アジールコート品川中延 501の口コミ・レビュー
アジールコート品川中延 501。ここに、あなたの新たな物語が息づく舞台があります。美しき北向きの窓からは、優雅な光が差し込み、心を洗うような穏やかな朝を迎えることでしょう。この21世紀の都会のオアシスには、22.16㎡の空間に一人分の夢がぎっしりと詰まっています。
この特別な空間は、まるで洗練されたアート作品のように、住む人に語りかけてきます。ドアを開けた瞬間、芳しい香りが漂うクッキングスペース…アジールコート品川中延 501。ここに、あなたの新たな物語が息づく舞台があります。美しき北向きの窓からは、優雅な光が差し込み、心を洗うような穏やかな朝を迎えることでしょう。この21世紀の都会のオアシスには、22.16㎡の空間に一人分の夢がぎっしりと詰まっています。
この特別な空間は、まるで洗練されたアート作品のように、住む人に語りかけてきます。ドアを開けた瞬間、芳しい香りが漂うクッキングスペースが目の前に広がり、自分だけのキッチンで、季節の食材をふんだんに使った創作料理に心を躍らせることができます。柔らかな陽射しがキッチンを照らし、その美しさを引き立てる様は、まるで映画の中の一場面のよう。
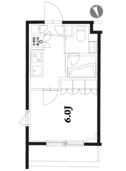
アジールコート品川中延 501の室内は、洗練されたデザインが施された洋室6帖が大きな魅力。窮屈さを感じさせない広々とした空間が、心をリフレッシュさせてくれます。朝日が差し込む窓辺に座り、あなたの心を静めるコーヒーを味わう時間は、まるで贅沢な休息の時間。軽やかに流れる音楽が心を包み込み、まるで特別な瞬間を迎え入れる準備をしているかのようです。
そして、アジールコート品川中延 501の魅力は、その立地にもあります。東京急行電鉄東急大井町線の荏原町駅までのわずか3分の距離は、忙しい現代人にとって、スムーズで快適な移動を約束します。周囲に広がる街並みは、歴史と文化が織りなす街の表情を見せ、あなたの生活に彩を添えてくれるでしょう。
エレガントなエントランスを持つアジールコート品川中延 501では、オートロックやTVモニターホンが住まいを守り、安心して暮らすための心強いパートナーとなります。日常生活を一層充実させるための設備は、どれもが配慮あふれるものであり、快適さを追求した空間にふさわしい存在です。低層の静かな環境の中、管理人のいる生活は、どこか温もりを感じさせ、親しみやすさを演出します。
大きな美術館やギャラリーが点在するこの地域には、アートと文化が息づいており、住む人に新しい発見と感動をもたらします。週末には、近隣の隠れた名店を訪れ、あなた自身のストーリーを美味しい食事で彩ることができるでしょう。
アジールコート品川中延 501は、ただの住まいではありません。ここであなたの新しい生活が始まるのです。五感を刺激し、心地よい日常を紡ぎだすこの空間は、あなたを優雅な人生の主役に変えてくれることでしょう。新たな日々の幕開けを、ぜひこの場所で迎えてください。
この特別な空間は、まるで洗練されたアート作品のように、住む人に語りかけてきます。ドアを開けた瞬間、芳しい香りが漂うクッキングスペース…アジールコート品川中延 501。ここに、あなたの新たな物語が息づく舞台があります。美しき北向きの窓からは、優雅な光が差し込み、心を洗うような穏やかな朝を迎えることでしょう。この21世紀の都会のオアシスには、22.16㎡の空間に一人分の夢がぎっしりと詰まっています。
この特別な空間は、まるで洗練されたアート作品のように、住む人に語りかけてきます。ドアを開けた瞬間、芳しい香りが漂うクッキングスペースが目の前に広がり、自分だけのキッチンで、季節の食材をふんだんに使った創作料理に心を躍らせることができます。柔らかな陽射しがキッチンを照らし、その美しさを引き立てる様は、まるで映画の中の一場面のよう。
アジールコート品川中延 501の室内は、洗練されたデザインが施された洋室6帖が大きな魅力。窮屈さを感じさせない広々とした空間が、心をリフレッシュさせてくれます。朝日が差し込む窓辺に座り、あなたの心を静めるコーヒーを味わう時間は、まるで贅沢な休息の時間。軽やかに流れる音楽が心を包み込み、まるで特別な瞬間を迎え入れる準備をしているかのようです。
そして、アジールコート品川中延 501の魅力は、その立地にもあります。東京急行電鉄東急大井町線の荏原町駅までのわずか3分の距離は、忙しい現代人にとって、スムーズで快適な移動を約束します。周囲に広がる街並みは、歴史と文化が織りなす街の表情を見せ、あなたの生活に彩を添えてくれるでしょう。
エレガントなエントランスを持つアジールコート品川中延 501では、オートロックやTVモニターホンが住まいを守り、安心して暮らすための心強いパートナーとなります。日常生活を一層充実させるための設備は、どれもが配慮あふれるものであり、快適さを追求した空間にふさわしい存在です。低層の静かな環境の中、管理人のいる生活は、どこか温もりを感じさせ、親しみやすさを演出します。
大きな美術館やギャラリーが点在するこの地域には、アートと文化が息づいており、住む人に新しい発見と感動をもたらします。週末には、近隣の隠れた名店を訪れ、あなた自身のストーリーを美味しい食事で彩ることができるでしょう。
アジールコート品川中延 501は、ただの住まいではありません。ここであなたの新しい生活が始まるのです。五感を刺激し、心地よい日常を紡ぎだすこの空間は、あなたを優雅な人生の主役に変えてくれることでしょう。新たな日々の幕開けを、ぜひこの場所で迎えてください。
バイブルスコア
バイブルスコア: 48
条件のいい物件です、引っ越しが2か月以内の場合は仮申し込みを検討すべき物件です。
※バイブルスコア詳細はこちら
バイブルスコアとは独自のAI機械学習技術を利用した物件評価システムで、物件のおすすめ度を示します。最高得点は100点で、スコアが高いほど、よりおすすめの物件と評価されています。
写真
現在写真が登録されていません契約条件
| 賃料 | 予想金額:81,000〜101,000円程度 | 管理費 | 予想金額:10,000〜14,000円程度 |
| 礼金 | 非公開(アーカイブ) | 敷金 | 非公開(アーカイブ) |
| フリーレント | なし | 平米数 | 22.16㎡ |
| 間取り | 1K | 大型収納 | なし |
| 契約期間 | 2年 | 方角 | 北 |
| 更新料 | 1ヶ月 | 契約形態 | 普通賃貸借契約 |
| 取引態様 | 媒介 | 内見状況 | 入居中 |
| 入居時期 | 入居中 | SOHO・事務所 | 不可 |
| ペット | ペット可 | 間取り内訳 | 洋:6 |
| キャンペーン情報・備考 | 本情報は賃料改定交渉の資料作成、収益物件の利回り試算、周辺エリアや最寄り駅の坪単価分析、次回募集開始時期の予測などにご活用いただけます。 | ||
※「どの不動産に頼めばいいのか分からない」「信頼できる営業マンの話を聞きたい」「一番親切な会社と契約したい」とお悩みの方におすすめなのが「高級賃貸バイブル」です。
高級賃貸バイブルは業界10年以上の熟練スタッフ群がお客様ファーストで対応します。
下記ボタンから、まずは無料でご相談下さい。
※内覧をご希望の際には、どうぞ物件のエントランス前にてお待ち合わせくださいませ。ご内覧後は、同じ場所でお別れとさせていただきます。お客様のご都合に合わせたスムーズなご案内を心がけておりますので、ご質問等がございましたら何なりとお申し付けください。 物件概要
| 物件名 |
| 築年月 |
|
|---|---|---|---|
| 所在地 | |||
| 交通 | |||
| 総戸数 |
| 総階数 |
|
| 構造 |
| ||
地図
物件までの道のりは、「拡大地図を表示」をクリックしてナビ機能をご利用ください。
部屋設備















建物設備

TVモニターホン

エレベーター

オートロック

バイク置場

宅配ボックス

敷地内ゴミ置場

管理人

駐車場平置き

駐車場機械式

駐輪場
アジールコート品川中延の現在募集中のお部屋
- No rooms found for this property.
