
| 賃料 | 予想金額:104,000〜124,000円程度 | 管理費 | 予想金額:8,000〜12,000円程度 |
| 礼金/敷金 | 非公開(アーカイブ) | 平米数 | 25.35㎡ |
| 初期費用概算(参考) | 目安:455,500〜555,500 円 | みなし賃料(月額・参考) | 122,156〜142,156 円 |
| 備考 | 本ページは過去募集のアーカイブです。表示の金額は周辺相場・過去募集を踏まえた参考レンジであり、実際の契約金額・条件ではありません。 | ||
※上記みなし賃料(月額)は仲介手数料割引・無料&キャッシュバックを加味した高級賃貸バイブル限定の金額です。一般的なみなし賃料とは異なります。
【建物ページ】ガリシアヒルズ六本木の詳細・最新空室はこちら▶▶選ばれる理由
仲介手数料無料・キャンペーン情報(毎月15名様限定)
〇仲介手数料割引キャンペーン
ガリシアヒルズ六本木 1103の口コミ・レビュー
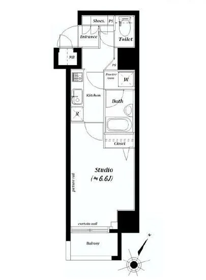
ガリシアヒルズ六本木 1103、そこは生活の舞台となる特別な空間です。南東を向くその部屋は、朝日が優しくカーテン越しに微笑みかけ、静けさの中に包まれた心地よい朝を迎えることができます。この1103号室は、広さ25.35㎡の1Kという贅沢な設計が、あなたの生活をまるで映画のワンシーンのように演出してくれるでしょう。
想像してみてください。朝の気配を感じながら、静かにコーヒーを淹れるその時、ふわりと…ガリシアヒルズ六本木 1103、そこは生活の舞台となる特別な空間です。南東を向くその部屋は、朝日が優しくカーテン越しに微笑みかけ、静けさの中に包まれた心地よい朝を迎えることができます。この1103号室は、広さ25.35㎡の1Kという贅沢な設計が、あなたの生活をまるで映画のワンシーンのように演出してくれるでしょう。
想像してみてください。朝の気配を感じながら、静かにコーヒーを淹れるその時、ふわりと香るコーヒー豆の深い香りがあなたを包み込み、心身がゆったりとした時間へと導かれます。ガリシアヒルズ六本木 1103の洋室6.6帖の空間は、あなたのクリエイティブな生活をサポートするために設計されています。大きな窓から差し込む光は、まるでアーティストの筆が描いたような温もりをもたらし、あなたをこの上ない空間へと誘います。
都会の喧騒からただ一歩離れたこの場所は、まるで洗練された美術館の一角のよう。床に足を運ぶと、冷たくも心地よい感触に思わず微笑みがこぼれます。エレガントなデザインと機能が見事に融合したこの部屋は、TVモニターホンやオートロックなど、現代の生活に欠かせない便利さを兼ね備えています。宅配ボックスも完備しており、忙しい日々の中でもあなたの時間をしっかりと守ります。
また、生活の利便性も申し分ありません。東京メトロ南北線の六本木一丁目駅まで徒歩3分。あなたの足取りは、街の色とりどりの文化や歴史を感じることができる旅へと変わります。周囲には、洗練されたカフェやアートギャラリーが点在し、日常の中で非日常を楽しむことができるのです。ガリシアヒルズ六本木 1103は、ただの住まいではなく、あなたの感性を刺激する場所でもあります。
夜が訪れると、六本木の街は灯りに包まれます。あなたは、バルコニーに出て街の喧騒を見下ろしながら、心の中で映画のエンディングを思い描いているかもしれません。ガリシアヒルズ六本木 1103が提供するのは、ただの居住空間ではなく、あなたの物語の始まりなのです。
ここでの日々は、あなた自身が主演する映画のように、一瞬一瞬が特別であり、味わい深いものとなることでしょう。どうか、この場所に訪れ、あなた自身のストーリーを紡いでください。ガリシアヒルズ六本木 1103は、あなたの選択を待っています。
想像してみてください。朝の気配を感じながら、静かにコーヒーを淹れるその時、ふわりと…ガリシアヒルズ六本木 1103、そこは生活の舞台となる特別な空間です。南東を向くその部屋は、朝日が優しくカーテン越しに微笑みかけ、静けさの中に包まれた心地よい朝を迎えることができます。この1103号室は、広さ25.35㎡の1Kという贅沢な設計が、あなたの生活をまるで映画のワンシーンのように演出してくれるでしょう。
想像してみてください。朝の気配を感じながら、静かにコーヒーを淹れるその時、ふわりと香るコーヒー豆の深い香りがあなたを包み込み、心身がゆったりとした時間へと導かれます。ガリシアヒルズ六本木 1103の洋室6.6帖の空間は、あなたのクリエイティブな生活をサポートするために設計されています。大きな窓から差し込む光は、まるでアーティストの筆が描いたような温もりをもたらし、あなたをこの上ない空間へと誘います。
都会の喧騒からただ一歩離れたこの場所は、まるで洗練された美術館の一角のよう。床に足を運ぶと、冷たくも心地よい感触に思わず微笑みがこぼれます。エレガントなデザインと機能が見事に融合したこの部屋は、TVモニターホンやオートロックなど、現代の生活に欠かせない便利さを兼ね備えています。宅配ボックスも完備しており、忙しい日々の中でもあなたの時間をしっかりと守ります。
また、生活の利便性も申し分ありません。東京メトロ南北線の六本木一丁目駅まで徒歩3分。あなたの足取りは、街の色とりどりの文化や歴史を感じることができる旅へと変わります。周囲には、洗練されたカフェやアートギャラリーが点在し、日常の中で非日常を楽しむことができるのです。ガリシアヒルズ六本木 1103は、ただの住まいではなく、あなたの感性を刺激する場所でもあります。
夜が訪れると、六本木の街は灯りに包まれます。あなたは、バルコニーに出て街の喧騒を見下ろしながら、心の中で映画のエンディングを思い描いているかもしれません。ガリシアヒルズ六本木 1103が提供するのは、ただの居住空間ではなく、あなたの物語の始まりなのです。
ここでの日々は、あなた自身が主演する映画のように、一瞬一瞬が特別であり、味わい深いものとなることでしょう。どうか、この場所に訪れ、あなた自身のストーリーを紡いでください。ガリシアヒルズ六本木 1103は、あなたの選択を待っています。
バイブルスコア
バイブルスコア: 34.5
平均的なスコアです。
※バイブルスコア詳細はこちら
バイブルスコアとは独自のAI機械学習技術を利用した物件評価システムで、物件のおすすめ度を示します。最高得点は100点で、スコアが高いほど、よりおすすめの物件と評価されています。
写真
契約条件
| 賃料 | 予想金額:104,000〜124,000円程度 | 管理費 | 予想金額:8,000〜12,000円程度 |
| 礼金 | 非公開(アーカイブ) | 敷金 | 非公開(アーカイブ) |
| フリーレント | なし | 平米数 | 25.35㎡ |
| 間取り | 1K | 大型収納 | |
| 契約期間 |
| 方角 | 南東 |
| 更新料 | 契約形態 | 普通賃貸借契約 | |
| 取引態様 | 媒介 | 内見状況 | 入居中 |
| 入居時期 | 入居中 | SOHO・事務所 | |
| ペット | ペット可 | 間取り内訳 | 洋室6.6帖 |
| キャンペーン情報・備考 | 本情報は賃料改定交渉の資料作成、収益物件の利回り試算、周辺エリアや最寄り駅の坪単価分析、次回募集開始時期の予測などにご活用いただけます。 | ||
※「どの不動産に頼めばいいのか分からない」「信頼できる営業マンの話を聞きたい」「一番親切な会社と契約したい」とお悩みの方におすすめなのが「高級賃貸バイブル」です。
高級賃貸バイブルは業界10年以上の熟練スタッフ群がお客様ファーストで対応します。
下記ボタンから、まずは無料でご相談下さい。
※内覧をご希望の際には、どうぞ物件のエントランス前にてお待ち合わせくださいませ。ご内覧後は、同じ場所でお別れとさせていただきます。お客様のご都合に合わせたスムーズなご案内を心がけておりますので、ご質問等がございましたら何なりとお申し付けください。 物件概要
| 物件名 |
| 築年月 |
|
|---|---|---|---|
| 所在地 | |||
| 交通 | |||
| 総戸数 |
| 総階数 |
|
| 構造 |
| ||
地図
物件までの道のりは、「拡大地図を表示」をクリックしてナビ機能をご利用ください。
部屋設備












建物設備

TVモニターホン

エレベーター

オートロック

宅配ボックス

敷地内ゴミ置場

駐輪場
ガリシアヒルズ六本木の現在募集中のお部屋
- ガリシアヒルズ六本木 13階 24.65㎡ - 間取り: 1K - 賃料: 15万円






























