
| 賃料 | 予想金額:120,000〜140,000円程度 | 管理費 | 予想金額:8,000〜12,000円程度 |
| 礼金/敷金 | 非公開(アーカイブ) | 平米数 | 28.97㎡ |
| 初期費用概算(参考) | 目安:511,500〜611,500 円 | みなし賃料(月額・参考) | 138,990〜158,990 円 |
| 備考 | 本ページは過去募集のアーカイブです。表示の金額は周辺相場・過去募集を踏まえた参考レンジであり、実際の契約金額・条件ではありません。 | ||
※上記みなし賃料(月額)は仲介手数料割引・無料&キャッシュバックを加味した高級賃貸バイブル限定の金額です。一般的なみなし賃料とは異なります。
【建物ページ】ガリシアヒルズ六本木の詳細・最新空室はこちら▶▶選ばれる理由
仲介手数料無料・キャンペーン情報(毎月15名様限定)
〇仲介手数料割引キャンペーン
ガリシアヒルズ六本木 1504の口コミ・レビュー
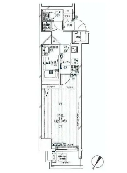
ガリシアヒルズ六本木 1504は、まるで都市の真ん中にそびえる現代の宮殿。その1504号室は、港区六本木の煌びやかな街並みを一望できる特権を手にする場所にあります。専有面積28.97㎡は、洗練された空間作りを可能にし、洋室8.9帖の広さが贅沢な生活の舞台を演出します。この部屋に足を踏み入れた瞬間、あなたはまるで映画の主人公になったかのように、心が躍ることでしょう。
静かな北向きの窓からは、優しい…ガリシアヒルズ六本木 1504は、まるで都市の真ん中にそびえる現代の宮殿。その1504号室は、港区六本木の煌びやかな街並みを一望できる特権を手にする場所にあります。専有面積28.97㎡は、洗練された空間作りを可能にし、洋室8.9帖の広さが贅沢な生活の舞台を演出します。この部屋に足を踏み入れた瞬間、あなたはまるで映画の主人公になったかのように、心が躍ることでしょう。
静かな北向きの窓からは、優しい陽射しが差し込み、時折街の喧騒とも和らげる心地よい風が部屋を通り抜けます。ここ、ガリシアヒルズ六本木 1504では、あなたの日常が特別な物語に変わります。朝の光で目覚めたあなたは、カーテンを開け、優雅にインスタントコーヒーの香りに包まれながら、ゆっくりとした時間を楽しむことでしょう。キッチンの隅に置かれたお気に入りの食器たちも、あなたの味わい深い朝食を待っているかのようです。
エレベーターでの移動は、まるで秘密の扉を開くような感覚。重厚なオートロックの扉が、あなたのプライベートな世界を守り、心地よい安心感を提供します。宅配ボックスは、忙しいあなたの生活に寄り添い、いつでも新しい発見をもたらしてくれる小さな宝箱のような存在です。住んでいるということは、ただ物理的な空間を持つことではなく、毎日の生活が映画のワンシーンのように彩られることを意味します。
六本木という街は、文化と芸術の交差点です。あなたがこのガリシアヒルズ六本木 1504に住むことで、周辺に点在するギャラリーやミュージアム、そして月に一度のアートイベントに自然と足を運ぶことになるでしょう。生きたアートに囲まれて暮らすような感覚は、毎日を豊かにし、あなたの感性を刺激します。
そして、夜が訪れると、街の灯りはまるで星のように瞬き、あたなの心を更に豊かにします。部屋の中からは、その煌めきを感じることができ、まるで宇宙の一部になったかのような心地よさを味わうことができるのです。ガリシアヒルズ六本木 1504での暮らしは、ただの物件に留まらず、あなた自身の物語を紡ぐ舞台となります。
この特別な空間で、毎日を特別なものに変え、その瞬間を大切に過ごしてみませんか。ガリシアヒルズ六本木 1504は、あなたの新たな生活が始まる場所、そして心が癒される邸宅のように、あなたを静かに待っています。
静かな北向きの窓からは、優しい…ガリシアヒルズ六本木 1504は、まるで都市の真ん中にそびえる現代の宮殿。その1504号室は、港区六本木の煌びやかな街並みを一望できる特権を手にする場所にあります。専有面積28.97㎡は、洗練された空間作りを可能にし、洋室8.9帖の広さが贅沢な生活の舞台を演出します。この部屋に足を踏み入れた瞬間、あなたはまるで映画の主人公になったかのように、心が躍ることでしょう。
静かな北向きの窓からは、優しい陽射しが差し込み、時折街の喧騒とも和らげる心地よい風が部屋を通り抜けます。ここ、ガリシアヒルズ六本木 1504では、あなたの日常が特別な物語に変わります。朝の光で目覚めたあなたは、カーテンを開け、優雅にインスタントコーヒーの香りに包まれながら、ゆっくりとした時間を楽しむことでしょう。キッチンの隅に置かれたお気に入りの食器たちも、あなたの味わい深い朝食を待っているかのようです。
エレベーターでの移動は、まるで秘密の扉を開くような感覚。重厚なオートロックの扉が、あなたのプライベートな世界を守り、心地よい安心感を提供します。宅配ボックスは、忙しいあなたの生活に寄り添い、いつでも新しい発見をもたらしてくれる小さな宝箱のような存在です。住んでいるということは、ただ物理的な空間を持つことではなく、毎日の生活が映画のワンシーンのように彩られることを意味します。
六本木という街は、文化と芸術の交差点です。あなたがこのガリシアヒルズ六本木 1504に住むことで、周辺に点在するギャラリーやミュージアム、そして月に一度のアートイベントに自然と足を運ぶことになるでしょう。生きたアートに囲まれて暮らすような感覚は、毎日を豊かにし、あなたの感性を刺激します。
そして、夜が訪れると、街の灯りはまるで星のように瞬き、あたなの心を更に豊かにします。部屋の中からは、その煌めきを感じることができ、まるで宇宙の一部になったかのような心地よさを味わうことができるのです。ガリシアヒルズ六本木 1504での暮らしは、ただの物件に留まらず、あなた自身の物語を紡ぐ舞台となります。
この特別な空間で、毎日を特別なものに変え、その瞬間を大切に過ごしてみませんか。ガリシアヒルズ六本木 1504は、あなたの新たな生活が始まる場所、そして心が癒される邸宅のように、あなたを静かに待っています。
バイブルスコア
バイブルスコア: 31.9
平均的なスコアです。
※バイブルスコア詳細はこちら
バイブルスコアとは独自のAI機械学習技術を利用した物件評価システムで、物件のおすすめ度を示します。最高得点は100点で、スコアが高いほど、よりおすすめの物件と評価されています。
写真
契約条件
| 賃料 | 予想金額:120,000〜140,000円程度 | 管理費 | 予想金額:8,000〜12,000円程度 |
| 礼金 | 非公開(アーカイブ) | 敷金 | 非公開(アーカイブ) |
| フリーレント | なし | 平米数 | 28.97㎡ |
| 間取り | 1K | 大型収納 | |
| 契約期間 |
| 方角 | 北 |
| 更新料 | 契約形態 | 普通賃貸借契約 | |
| 取引態様 | 媒介 | 内見状況 | 入居中 |
| 入居時期 | 入居中 | SOHO・事務所 | |
| ペット | 間取り内訳 | 洋室8.9帖 | |
| キャンペーン情報・備考 | 本情報は賃料改定交渉の資料作成、収益物件の利回り試算、周辺エリアや最寄り駅の坪単価分析、次回募集開始時期の予測などにご活用いただけます。 | ||
※「どの不動産に頼めばいいのか分からない」「信頼できる営業マンの話を聞きたい」「一番親切な会社と契約したい」とお悩みの方におすすめなのが「高級賃貸バイブル」です。
高級賃貸バイブルは業界10年以上の熟練スタッフ群がお客様ファーストで対応します。
下記ボタンから、まずは無料でご相談下さい。
※内覧をご希望の際には、どうぞ物件のエントランス前にてお待ち合わせくださいませ。ご内覧後は、同じ場所でお別れとさせていただきます。お客様のご都合に合わせたスムーズなご案内を心がけておりますので、ご質問等がございましたら何なりとお申し付けください。 物件概要
| 物件名 |
| 築年月 |
|
|---|---|---|---|
| 所在地 | |||
| 交通 | |||
| 総戸数 |
| 総階数 |
|
| 構造 |
| ||
地図
物件までの道のりは、「拡大地図を表示」をクリックしてナビ機能をご利用ください。
部屋設備












建物設備

TVモニターホン

エレベーター

オートロック

宅配ボックス

敷地内ゴミ置場

駐輪場
ガリシアヒルズ六本木の現在募集中のお部屋
- ガリシアヒルズ六本木 13階 24.65㎡ - 間取り: 1K - 賃料: 15万円






























