
| 賃料 | 予想金額:172,000〜192,000円程度 | 管理費 | 予想金額:8,000〜12,000円程度 |
| 礼金/敷金 | 非公開(アーカイブ) | 平米数 | 53.61㎡ |
| 初期費用概算(参考) | 目安:693,500〜793,500 円 | みなし賃料(月額・参考) | 193,698〜213,698 円 |
| 備考 | 本ページは過去募集のアーカイブです。表示の金額は周辺相場・過去募集を踏まえた参考レンジであり、実際の契約金額・条件ではありません。 | ||
※上記みなし賃料(月額)は仲介手数料割引・無料&キャッシュバックを加味した高級賃貸バイブル限定の金額です。一般的なみなし賃料とは異なります。
【建物ページ】ルーチェ高輪の詳細・最新空室はこちら▶▶選ばれる理由
仲介手数料無料・キャンペーン情報(毎月15名様限定)
〇仲介手数料割引キャンペーン
ルーチェ高輪 401の口コミ・レビュー
「ルーチェ高輪 401」。この名は、まるで光り輝く朝日を想起させる優雅な響きを持っています。あなたがこの物件の扉を開けるその瞬間、まるで特別な映画のワンシーンに足を踏み入れるような感覚に包まれることでしょう。高級感あふれるデザイナーズマンションが、まるであなたを待ち焦がれていたかのようにお迎えいたします。
「ルーチェ高輪 401」の階数は401であり、専有面積は53.61㎡。この空間は、洗練され…「ルーチェ高輪 401」。この名は、まるで光り輝く朝日を想起させる優雅な響きを持っています。あなたがこの物件の扉を開けるその瞬間、まるで特別な映画のワンシーンに足を踏み入れるような感覚に包まれることでしょう。高級感あふれるデザイナーズマンションが、まるであなたを待ち焦がれていたかのようにお迎えいたします。
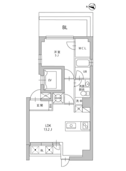
「ルーチェ高輪 401」の階数は401であり、専有面積は53.61㎡。この空間は、洗練された西側の眺望を望みつつ、安らぎを与える温もりに満ちています。そこには、洋室5帖とLDK13.2帖の巧妙に配置された間取りが、心地よい生活を約束します。日常の雑事や喧騒を忘れ、あなただけの静かな世界へと誘われることでしょう。
エレベーターで上がり、オートロックの扉を開けると、まず目に飛び込んでくるのは、上質な素材と洗練されたデザインが調和する空間です。高い天井から降り注ぐ自然光が、壁を柔らかく照らし出し、まるで一瞬のうちに心の奥深くまで届くかのようです。その光の中で、あなたは何か新しい創造の息吹を感じ、息を呑むような感覚に襲われることでしょう。
リビングダイニングは、あなたが大切な人々と共に過ごす時間にふさわしい特別な場所です。13.2帖の広がりは、さまざまなシーンを作り上げる舞台となり、友人を招いての祝宴や、穏やかな午後に読書を楽しむひととき、または静かな夜に心を癒すためのキャンドルライトの下でのディナー、すべてがここで実現できます。あなたの感覚を揺さぶるのは、季節ごとに変わる光と風のダンスです。
また、周囲には東京都港区高輪の歴史が息づいています。文化活気ある街並みには、現代アートと古き良き伝統が共存し、あなたの生活に彩りを加えます。高輪台駅から徒歩5分の好立地は、都心とのアクセスも非常に良好で、忙しい日常の中でも新たな発見を楽しむことができます。
このマンションは、単なる居住空間ではなく、あなたの人生の舞台であり、心の拠り所であるべきです。「ルーチェ高輪 401」は、五感を刺激し、あなたの生活に新たな物語を紡ぐ場所。自分だけの特別な瞬間を大切にしながら、新たな人生の一歩を踏み出してみてはいかがでしょうか。あなたを待ち望んでいるこの場所で、毎日が新しい映画の一幕のように、感動的なストーリーを織りなしていくことでしょう。
「ルーチェ高輪 401」の階数は401であり、専有面積は53.61㎡。この空間は、洗練され…「ルーチェ高輪 401」。この名は、まるで光り輝く朝日を想起させる優雅な響きを持っています。あなたがこの物件の扉を開けるその瞬間、まるで特別な映画のワンシーンに足を踏み入れるような感覚に包まれることでしょう。高級感あふれるデザイナーズマンションが、まるであなたを待ち焦がれていたかのようにお迎えいたします。
「ルーチェ高輪 401」の階数は401であり、専有面積は53.61㎡。この空間は、洗練された西側の眺望を望みつつ、安らぎを与える温もりに満ちています。そこには、洋室5帖とLDK13.2帖の巧妙に配置された間取りが、心地よい生活を約束します。日常の雑事や喧騒を忘れ、あなただけの静かな世界へと誘われることでしょう。
エレベーターで上がり、オートロックの扉を開けると、まず目に飛び込んでくるのは、上質な素材と洗練されたデザインが調和する空間です。高い天井から降り注ぐ自然光が、壁を柔らかく照らし出し、まるで一瞬のうちに心の奥深くまで届くかのようです。その光の中で、あなたは何か新しい創造の息吹を感じ、息を呑むような感覚に襲われることでしょう。
リビングダイニングは、あなたが大切な人々と共に過ごす時間にふさわしい特別な場所です。13.2帖の広がりは、さまざまなシーンを作り上げる舞台となり、友人を招いての祝宴や、穏やかな午後に読書を楽しむひととき、または静かな夜に心を癒すためのキャンドルライトの下でのディナー、すべてがここで実現できます。あなたの感覚を揺さぶるのは、季節ごとに変わる光と風のダンスです。
また、周囲には東京都港区高輪の歴史が息づいています。文化活気ある街並みには、現代アートと古き良き伝統が共存し、あなたの生活に彩りを加えます。高輪台駅から徒歩5分の好立地は、都心とのアクセスも非常に良好で、忙しい日常の中でも新たな発見を楽しむことができます。
このマンションは、単なる居住空間ではなく、あなたの人生の舞台であり、心の拠り所であるべきです。「ルーチェ高輪 401」は、五感を刺激し、あなたの生活に新たな物語を紡ぐ場所。自分だけの特別な瞬間を大切にしながら、新たな人生の一歩を踏み出してみてはいかがでしょうか。あなたを待ち望んでいるこの場所で、毎日が新しい映画の一幕のように、感動的なストーリーを織りなしていくことでしょう。
バイブルスコア
バイブルスコア: 41.1
条件のいい物件です、引っ越しが2か月以内の場合は仮申し込みを検討すべき物件です。
※バイブルスコア詳細はこちら
バイブルスコアとは独自のAI機械学習技術を利用した物件評価システムで、物件のおすすめ度を示します。最高得点は100点で、スコアが高いほど、よりおすすめの物件と評価されています。
写真
契約条件
| 賃料 | 予想金額:172,000〜192,000円程度 | 管理費 | 予想金額:8,000〜12,000円程度 |
| 礼金 | 非公開(アーカイブ) | 敷金 | 非公開(アーカイブ) |
| フリーレント | なし | 平米数 | 53.61㎡ |
| 間取り | 1LDK | 大型収納 | |
| 契約期間 |
| 方角 | 西 |
| 更新料 | 契約形態 | 普通賃貸借契約 | |
| 取引態様 | 媒介 | 内見状況 | 入居中 |
| 入居時期 | 入居中 | SOHO・事務所 | |
| ペット | ペット可 | 間取り内訳 | 洋室5帖 LDK13.2帖 |
| キャンペーン情報・備考 | 本情報は賃料改定交渉の資料作成、収益物件の利回り試算、周辺エリアや最寄り駅の坪単価分析、次回募集開始時期の予測などにご活用いただけます。 | ||
※「どの不動産に頼めばいいのか分からない」「信頼できる営業マンの話を聞きたい」「一番親切な会社と契約したい」とお悩みの方におすすめなのが「高級賃貸バイブル」です。
高級賃貸バイブルは業界10年以上の熟練スタッフ群がお客様ファーストで対応します。
下記ボタンから、まずは無料でご相談下さい。
※内覧をご希望の際には、どうぞ物件のエントランス前にてお待ち合わせくださいませ。ご内覧後は、同じ場所でお別れとさせていただきます。お客様のご都合に合わせたスムーズなご案内を心がけておりますので、ご質問等がございましたら何なりとお申し付けください。 物件概要
| 物件名 |
| 築年月 |
|
|---|---|---|---|
| 所在地 | |||
| 交通 | |||
| 総戸数 |
| 総階数 |
|
| 構造 |
| ||
地図
物件までの道のりは、「拡大地図を表示」をクリックしてナビ機能をご利用ください。
部屋設備

















建物設備

TVモニターホン

エレベーター

オートロック

宅配ボックス

敷地内ゴミ置場

駐輪場
ルーチェ高輪の現在募集中のお部屋
- ルーチェ高輪 901 - 間取り: 1LDK - 賃料: 21.5万円









