
| 賃料 | 予想金額:106,000〜126,000円程度 | 管理費 | 予想金額:8,000〜12,000円程度 |
| 礼金/敷金 | 非公開(アーカイブ) | 平米数 | 25.5㎡ |
| 初期費用概算(参考) | 目安:446,000〜546,000 円 | みなし賃料(月額・参考) | 123,917〜143,917 円 |
| 備考 | 本ページは過去募集のアーカイブです。表示の金額は周辺相場・過去募集を踏まえた参考レンジであり、実際の契約金額・条件ではありません。 | ||
※上記みなし賃料(月額)は仲介手数料割引・無料&キャッシュバックを加味した高級賃貸バイブル限定の金額です。一般的なみなし賃料とは異なります。
【建物ページ】ルジェンテ文京湯島の詳細・最新空室はこちら▶▶選ばれる理由
仲介手数料無料・キャンペーン情報(毎月15名様限定)
〇仲介手数料割引キャンペーン
ルジェンテ文京湯島 506の口コミ・レビュー
ルジェンテ文京湯島 506。この特別な空間は、ただの住居を超えた、心を掴むアトリエのような場所です。25.5㎡という面積の中には、生活の美しさが凝縮されており、あなたの人生の物語が紡がれる舞台となります。印象的な北向きの窓から差し込む光は、まるで朝日が新たな希望を運ぶように、柔らかな温もりであなたを包み込みます。まるで心が晴れやかになるような眺望は、まさにこの物件の特権。湯島駅から徒歩わずか5分の…ルジェンテ文京湯島 506。この特別な空間は、ただの住居を超えた、心を掴むアトリエのような場所です。25.5㎡という面積の中には、生活の美しさが凝縮されており、あなたの人生の物語が紡がれる舞台となります。印象的な北向きの窓から差し込む光は、まるで朝日が新たな希望を運ぶように、柔らかな温もりであなたを包み込みます。まるで心が晴れやかになるような眺望は、まさにこの物件の特権。湯島駅から徒歩わずか5分の距離に位置するこの地は、長い歴史を背負った文京区の中心、文化や芸術に溢れた街の息吹を感じることができるでしょう。
ルジェンテ文京湯島 506は、まるで古い友のようにあなたを迎え入れます。部屋の隅々にまで息づく温もりを感じながら、心地よい空間に浸ることができるのです。7帖の洋室は、あなたの創造力を刺激し、思い思いの生活シーンを描くための背景となります。その美しい床材に足を踏み入れると、まるで柔らかな絨毯の上を歩いているかのような心地よさが広がります。ここで、あなた自身が主人公の物語が始まるのです。
日々の生活は、ルジェンテ文京湯島 506での特別な瞬間に変わります。アートなカフェでのひと時や、静かな図書館の中での読書、美味しい香りに誘われた地元のレストランでのディナー。そうした豊かな体験が、この物件の周囲で待っています。まるで映画のワンシーンの中にいるように、五感が研ぎ澄まされる瞬間がここにはあります。冬の寒い日には、暖かな飲み物を手に、思索にふける贅沢な時間を過ごすことができるでしょう。
さらに、ルジェンテ文京湯島 506は、安心の設備の数々が整っています。オートロックや管理人による見守りは、まるで大切な人を守るために存在しているかのようです。バイク置場や駐輪場も完備され、自由な移動をサポートします。宅配ボックスを利用すれば、好きな時間に自宅で受け取ることができ、生活はますます便利に、快適になります。この物件は、まさに現代の生活に必要不可欠な要素を兼ね備えた、洗練された住まいです。
ルジェンテ文京湯島 506は、あなたの人生のシーンを美しく彩るキャンバスとなります。この地に根ざした伝統と新しい文化の融合を肌で感じながら、心豊かな毎日を送りませんか?あなたの物語がここから始まります。都市の喧騒を離れ、静寂の中で自分自身と向き合う時間が待っています。ルジェンテ文京湯島 506で、新たな人生の一ページを開いてください。あなたの心の赴くままに、毎日をお楽しみいただけることでしょう。
ルジェンテ文京湯島 506は、まるで古い友のようにあなたを迎え入れます。部屋の隅々にまで息づく温もりを感じながら、心地よい空間に浸ることができるのです。7帖の洋室は、あなたの創造力を刺激し、思い思いの生活シーンを描くための背景となります。その美しい床材に足を踏み入れると、まるで柔らかな絨毯の上を歩いているかのような心地よさが広がります。ここで、あなた自身が主人公の物語が始まるのです。
日々の生活は、ルジェンテ文京湯島 506での特別な瞬間に変わります。アートなカフェでのひと時や、静かな図書館の中での読書、美味しい香りに誘われた地元のレストランでのディナー。そうした豊かな体験が、この物件の周囲で待っています。まるで映画のワンシーンの中にいるように、五感が研ぎ澄まされる瞬間がここにはあります。冬の寒い日には、暖かな飲み物を手に、思索にふける贅沢な時間を過ごすことができるでしょう。
さらに、ルジェンテ文京湯島 506は、安心の設備の数々が整っています。オートロックや管理人による見守りは、まるで大切な人を守るために存在しているかのようです。バイク置場や駐輪場も完備され、自由な移動をサポートします。宅配ボックスを利用すれば、好きな時間に自宅で受け取ることができ、生活はますます便利に、快適になります。この物件は、まさに現代の生活に必要不可欠な要素を兼ね備えた、洗練された住まいです。
ルジェンテ文京湯島 506は、あなたの人生のシーンを美しく彩るキャンバスとなります。この地に根ざした伝統と新しい文化の融合を肌で感じながら、心豊かな毎日を送りませんか?あなたの物語がここから始まります。都市の喧騒を離れ、静寂の中で自分自身と向き合う時間が待っています。ルジェンテ文京湯島 506で、新たな人生の一ページを開いてください。あなたの心の赴くままに、毎日をお楽しみいただけることでしょう。
バイブルスコア
バイブルスコア: 58.9
条件のいい物件です、引っ越しが2か月以内の場合は仮申し込みを検討すべき物件です。
このお部屋は、現在ご入居中のため空室情報はございません。ただし、将来的に募集が開始される際、バイブルスコアにおいて非常に高い評価が期待されます。特にご興味をお持ちの方は、今のうちにブックマークやお気に入りに登録していただくと、募集開始のお知らせをすぐに受け取ることができます。是非ともご検討くださいませ。
※バイブルスコア詳細はこちら
バイブルスコアとは独自のAI機械学習技術を利用した物件評価システムで、物件のおすすめ度を示します。最高得点は100点で、スコアが高いほど、よりおすすめの物件と評価されています。
写真
契約条件
| 賃料 | 予想金額:106,000〜126,000円程度 | 管理費 | 予想金額:8,000〜12,000円程度 |
| 礼金 | 非公開(アーカイブ) | 敷金 | 非公開(アーカイブ) |
| フリーレント | なし | 平米数 | 25.5㎡ |
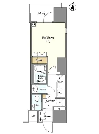
| 間取り | 1K | 大型収納 | |
| 契約期間 |
| 方角 | 北 |
| 更新料 | 契約形態 | 普通賃貸借契約 | |
| 取引態様 | 媒介 | 内見状況 | 入居中 |
| 入居時期 | 入居中 | SOHO・事務所 | |
| ペット | ペット可 | 間取り内訳 | 洋:7 |
| キャンペーン情報・備考 | 本情報は賃料改定交渉の資料作成、収益物件の利回り試算、周辺エリアや最寄り駅の坪単価分析、次回募集開始時期の予測などにご活用いただけます。 | ||
※「どの不動産に頼めばいいのか分からない」「信頼できる営業マンの話を聞きたい」「一番親切な会社と契約したい」とお悩みの方におすすめなのが「高級賃貸バイブル」です。
高級賃貸バイブルは業界10年以上の熟練スタッフ群がお客様ファーストで対応します。
下記ボタンから、まずは無料でご相談下さい。
※内覧をご希望の際には、どうぞ物件のエントランス前にてお待ち合わせくださいませ。ご内覧後は、同じ場所でお別れとさせていただきます。お客様のご都合に合わせたスムーズなご案内を心がけておりますので、ご質問等がございましたら何なりとお申し付けください。 物件概要
| 物件名 |
| 築年月 |
|
|---|---|---|---|
| 所在地 | |||
| 交通 | |||
| 総戸数 |
| 総階数 |
|
| 構造 |
| ||
地図
物件までの道のりは、「拡大地図を表示」をクリックしてナビ機能をご利用ください。
部屋設備















建物設備

TVモニターホン

エレベーター

オートロック

バイク置場

宅配ボックス

敷地内ゴミ置場

管理人

駐車場平置き

駐車場機械式

駐輪場
ルジェンテ文京湯島の現在募集中のお部屋
- No rooms found for this property.
























