
| 賃料 | 予想金額:133,000〜153,000円程度 | 管理費 | 予想金額:4,000〜8,000円程度 |
| 礼金/敷金 | 非公開(アーカイブ) | 平米数 | 38.12㎡ |
| 初期費用概算(参考) | 目安:551,000〜651,000 円 | みなし賃料(月額・参考) | 148,542〜168,542 円 |
| 備考 | 本ページは過去募集のアーカイブです。表示の金額は周辺相場・過去募集を踏まえた参考レンジであり、実際の契約金額・条件ではありません。 | ||
※上記みなし賃料(月額)は仲介手数料割引・無料&キャッシュバックを加味した高級賃貸バイブル限定の金額です。一般的なみなし賃料とは異なります。
【建物ページ】グランバリュー三田の詳細・最新空室はこちら▶▶選ばれる理由
仲介手数料無料・キャンペーン情報(毎月15名様限定)
〇仲介手数料割引キャンペーン
グランバリュー三田 702の口コミ・レビュー
グランバリュー三田 702。東京都港区芝の中心で、あなたを待ち続けるこの高級賃貸物件は、まるで人間の心を持ったかのように、温かく迎え入れてくれます。702という数は、空に広がる星々のように特別な存在感を放ち、あなたの新たな生活の舞台となります。
この物件は、エレベーターを使ってさりげなく自身の空間へと導いてくれる、まるで優雅な舞踏家のような存在です。東に面した窓からは、朝日が心地よい光を取り入れ…グランバリュー三田 702。東京都港区芝の中心で、あなたを待ち続けるこの高級賃貸物件は、まるで人間の心を持ったかのように、温かく迎え入れてくれます。702という数は、空に広がる星々のように特別な存在感を放ち、あなたの新たな生活の舞台となります。
この物件は、エレベーターを使ってさりげなく自身の空間へと導いてくれる、まるで優雅な舞踏家のような存在です。東に面した窓からは、朝日が心地よい光を取り入れ、柔らかな温もりであなたを包み込むことでしょう。毎朝、日の光に照らされながら、深呼吸をすると、洗練された街の息吹と共にフレッシュな空気が心に沁みわたります。
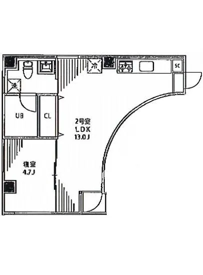
グランバリュー三田 702の内部には、洋室4.7帖とLDK13.0帖という魅力的な間取りが広がっており、どちらもまるで親しい友人のように、あなたを心地よく包み込みます。洋室は、静寂のオアシスとなり、一日の疲れを癒すための聖域です。そよ風がカーテンを揺らすたびに、日々のストレスが溶けていくのを感じることでしょう。
LDKは、まさに社交の舞台です。大切な人々と共に食事を楽しむ素敵なひととき、ホームパーティーでの笑い声、美味しい料理の香りが漂う空間。ここでは、五感を満たす贅沢な時間が流れます。キッチンから料理を運ぶ際には、まるでサーブされる料理が虹のような色彩を放つかのようです。味覚だけでなく、視覚、聴覚、嗅覚までも刺激され、毎日が映画のワンシーンのように鮮やかです。
この物件は、周囲の歴史や文化とも深く結びついています。東京都港区芝という土地には、古くからの伝統と近代的な要素が共存しています。その街並みは、まるで何世代にもわたり受け継がれてきた物語のページのようです。歴史ある寺院や美術館など、まるで時間が止まったかのような美しさが、あなたの日常を一層豊かに彩ります。
また、都営地下鉄三田線の三田駅まで徒歩5分というアクセスの良さは、あなたの日々の移動を軽やかにし、都市生活を思う存分楽しむことを可能にします。グランバリュー三田 702での生活は、あなた自身の物語を豊かにし、まるで小説の主人公になったかのような感覚を与えてくれるのです。
あなたの新しい生活が、ここグランバリュー三田 702で始まります。扉を開けると、そこにはあなたの夢や希望が広がる世界が待っています。この素晴らしい場所で、ぜひ自分だけのストーリーを紡いでください。全てがあなたの手の中に、グランバリュー三田 702は、心からあなたを迎え入れる準備が整っています。
この物件は、エレベーターを使ってさりげなく自身の空間へと導いてくれる、まるで優雅な舞踏家のような存在です。東に面した窓からは、朝日が心地よい光を取り入れ…グランバリュー三田 702。東京都港区芝の中心で、あなたを待ち続けるこの高級賃貸物件は、まるで人間の心を持ったかのように、温かく迎え入れてくれます。702という数は、空に広がる星々のように特別な存在感を放ち、あなたの新たな生活の舞台となります。
この物件は、エレベーターを使ってさりげなく自身の空間へと導いてくれる、まるで優雅な舞踏家のような存在です。東に面した窓からは、朝日が心地よい光を取り入れ、柔らかな温もりであなたを包み込むことでしょう。毎朝、日の光に照らされながら、深呼吸をすると、洗練された街の息吹と共にフレッシュな空気が心に沁みわたります。
グランバリュー三田 702の内部には、洋室4.7帖とLDK13.0帖という魅力的な間取りが広がっており、どちらもまるで親しい友人のように、あなたを心地よく包み込みます。洋室は、静寂のオアシスとなり、一日の疲れを癒すための聖域です。そよ風がカーテンを揺らすたびに、日々のストレスが溶けていくのを感じることでしょう。
LDKは、まさに社交の舞台です。大切な人々と共に食事を楽しむ素敵なひととき、ホームパーティーでの笑い声、美味しい料理の香りが漂う空間。ここでは、五感を満たす贅沢な時間が流れます。キッチンから料理を運ぶ際には、まるでサーブされる料理が虹のような色彩を放つかのようです。味覚だけでなく、視覚、聴覚、嗅覚までも刺激され、毎日が映画のワンシーンのように鮮やかです。
この物件は、周囲の歴史や文化とも深く結びついています。東京都港区芝という土地には、古くからの伝統と近代的な要素が共存しています。その街並みは、まるで何世代にもわたり受け継がれてきた物語のページのようです。歴史ある寺院や美術館など、まるで時間が止まったかのような美しさが、あなたの日常を一層豊かに彩ります。
また、都営地下鉄三田線の三田駅まで徒歩5分というアクセスの良さは、あなたの日々の移動を軽やかにし、都市生活を思う存分楽しむことを可能にします。グランバリュー三田 702での生活は、あなた自身の物語を豊かにし、まるで小説の主人公になったかのような感覚を与えてくれるのです。
あなたの新しい生活が、ここグランバリュー三田 702で始まります。扉を開けると、そこにはあなたの夢や希望が広がる世界が待っています。この素晴らしい場所で、ぜひ自分だけのストーリーを紡いでください。全てがあなたの手の中に、グランバリュー三田 702は、心からあなたを迎え入れる準備が整っています。
バイブルスコア
バイブルスコア: 27.3
平均的なスコアです。
※バイブルスコア詳細はこちら
バイブルスコアとは独自のAI機械学習技術を利用した物件評価システムで、物件のおすすめ度を示します。最高得点は100点で、スコアが高いほど、よりおすすめの物件と評価されています。
写真
契約条件
| 賃料 | 予想金額:133,000〜153,000円程度 | 管理費 | 予想金額:4,000〜8,000円程度 |
| 礼金 | 非公開(アーカイブ) | 敷金 | 非公開(アーカイブ) |
| フリーレント | なし | 平米数 | 38.12㎡ |
| 間取り | 1LDK | 大型収納 | |
| 契約期間 |
| 方角 | 東 |
| 更新料 | 契約形態 | 普通賃貸借契約 | |
| 取引態様 | 媒介 | 内見状況 | 入居中 |
| 入居時期 | 入居中 | SOHO・事務所 | 事務所(SOHO)可 |
| ペット | 間取り内訳 | 洋室4.7畳 LDK13.0畳 | |
| キャンペーン情報・備考 | 本情報は賃料改定交渉の資料作成、収益物件の利回り試算、周辺エリアや最寄り駅の坪単価分析、次回募集開始時期の予測などにご活用いただけます。 | ||
※「どの不動産に頼めばいいのか分からない」「信頼できる営業マンの話を聞きたい」「一番親切な会社と契約したい」とお悩みの方におすすめなのが「高級賃貸バイブル」です。
高級賃貸バイブルは業界10年以上の熟練スタッフ群がお客様ファーストで対応します。
下記ボタンから、まずは無料でご相談下さい。
※内覧をご希望の際には、どうぞ物件のエントランス前にてお待ち合わせくださいませ。ご内覧後は、同じ場所でお別れとさせていただきます。お客様のご都合に合わせたスムーズなご案内を心がけておりますので、ご質問等がございましたら何なりとお申し付けください。 物件概要
| 物件名 |
| 築年月 |
|
|---|---|---|---|
| 所在地 | |||
| 交通 | |||
| 総戸数 |
| 総階数 |
|
| 構造 |
| ||
地図
物件までの道のりは、「拡大地図を表示」をクリックしてナビ機能をご利用ください。
部屋設備














建物設備

TVモニターホン

エレベーター
グランバリュー三田の現在募集中のお部屋
- No rooms found for this property.









