
| 賃料 | 予想金額:134,000〜154,000円程度 | 管理費 | 予想金額:4,000〜8,000円程度 |
| 礼金/敷金 | 非公開(アーカイブ) | 平米数 | 38.12㎡ |
| 初期費用概算(参考) | 目安:554,500〜654,500 円 | みなし賃料(月額・参考) | 149,594〜169,594 円 |
| 備考 | 本ページは過去募集のアーカイブです。表示の金額は周辺相場・過去募集を踏まえた参考レンジであり、実際の契約金額・条件ではありません。 | ||
※上記みなし賃料(月額)は仲介手数料割引・無料&キャッシュバックを加味した高級賃貸バイブル限定の金額です。一般的なみなし賃料とは異なります。
【建物ページ】グランバリュー三田の詳細・最新空室はこちら▶▶選ばれる理由
仲介手数料無料・キャンペーン情報(毎月15名様限定)
〇仲介手数料割引キャンペーン
グランバリュー三田 602の口コミ・レビュー
グランバリュー三田 602は、まるで夢の中に佇むような、洗練された空間を提供する住宅です。東京都港区芝2-29-9という歴史のある街角に位置し、あなたの日々の生活に、優雅で特別な彩りを添えることでしょう。602号室の扉を開けた瞬間、南から注ぎ込む穏やかな陽光が、あなたを柔らかく包み込み、心地よい温もりを感じさせます。
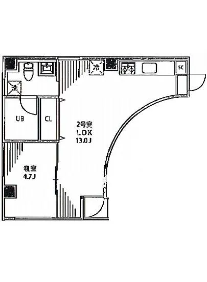
この住居は、4.7帖の洋室と13.0帖の広々としたLDKから構成される1LDK…グランバリュー三田 602は、まるで夢の中に佇むような、洗練された空間を提供する住宅です。東京都港区芝2-29-9という歴史のある街角に位置し、あなたの日々の生活に、優雅で特別な彩りを添えることでしょう。602号室の扉を開けた瞬間、南から注ぎ込む穏やかな陽光が、あなたを柔らかく包み込み、心地よい温もりを感じさせます。
この住居は、4.7帖の洋室と13.0帖の広々としたLDKから構成される1LDKの間取りを備えています。38.12㎡という空間は、まるであなた専用のワンシーンを演出するために設計された舞台のようです。LDKは家族や友人と過ごす特別な時間を持つための親密な空間であり、ここでの会話は、スムーズに流れるワインのように、心を豊かにするひとときとなるでしょう。シンプルで洗練されたデザインの中にも、デザイナーズならではの独自性が息づいています。
グランバリュー三田 602はあなたの五感を刺激します。柔らかな光が差し込む窓際で、朝のコーヒーを楽しむと、香ばしいアロマが心の底まで染み渡ります。そして、窓の外には、三田駅からの穏やかな通勤風景が広がり、都会の喧騒から一時の安息を与えてくれるのです。耳を澄ませば、近くの公園から響く子供たちの笑い声や、風に揺れる木々のささやきが、あなたの心を穏やかにしてくれることでしょう。
この場所は、ただの住処ではなく、東京の文化と歴史を感じることができる場でもあります。港区という地域は、古くから商業と文化の交差点として栄え、数多くのアートギャラリーや歴史的名所が点在しています。あなたは、ここグランバリュー三田 602から、そんな魅力的なスポットへの散歩を楽しみ、都会の中の小さな旅をすることができるのです。
エレベーターで行き来する間も、あなたはこのオアシスのような住まいを想い描きます。TVモニターホンの存在が、安心感を与え、訪れる人々にその優雅さを印象づけることでしょう。まるで映画の主人公になったかのように、日常が特別なものに変わります。
グランバリュー三田 602は、あなたを待っています。都会の生活と共に、心の豊かさを実感できるこの場所で、あなた自身の物語を紡ぎ出してください。毎日の生活が、まるで一つの美しい絵画のように、色とりどりの瞬間で満ち溢れることでしょう。さあ、あなたの新しい人生の舞台、グランバリュー三田 602での特別な時間をお楽しみください。
この住居は、4.7帖の洋室と13.0帖の広々としたLDKから構成される1LDK…グランバリュー三田 602は、まるで夢の中に佇むような、洗練された空間を提供する住宅です。東京都港区芝2-29-9という歴史のある街角に位置し、あなたの日々の生活に、優雅で特別な彩りを添えることでしょう。602号室の扉を開けた瞬間、南から注ぎ込む穏やかな陽光が、あなたを柔らかく包み込み、心地よい温もりを感じさせます。
この住居は、4.7帖の洋室と13.0帖の広々としたLDKから構成される1LDKの間取りを備えています。38.12㎡という空間は、まるであなた専用のワンシーンを演出するために設計された舞台のようです。LDKは家族や友人と過ごす特別な時間を持つための親密な空間であり、ここでの会話は、スムーズに流れるワインのように、心を豊かにするひとときとなるでしょう。シンプルで洗練されたデザインの中にも、デザイナーズならではの独自性が息づいています。
グランバリュー三田 602はあなたの五感を刺激します。柔らかな光が差し込む窓際で、朝のコーヒーを楽しむと、香ばしいアロマが心の底まで染み渡ります。そして、窓の外には、三田駅からの穏やかな通勤風景が広がり、都会の喧騒から一時の安息を与えてくれるのです。耳を澄ませば、近くの公園から響く子供たちの笑い声や、風に揺れる木々のささやきが、あなたの心を穏やかにしてくれることでしょう。
この場所は、ただの住処ではなく、東京の文化と歴史を感じることができる場でもあります。港区という地域は、古くから商業と文化の交差点として栄え、数多くのアートギャラリーや歴史的名所が点在しています。あなたは、ここグランバリュー三田 602から、そんな魅力的なスポットへの散歩を楽しみ、都会の中の小さな旅をすることができるのです。
エレベーターで行き来する間も、あなたはこのオアシスのような住まいを想い描きます。TVモニターホンの存在が、安心感を与え、訪れる人々にその優雅さを印象づけることでしょう。まるで映画の主人公になったかのように、日常が特別なものに変わります。
グランバリュー三田 602は、あなたを待っています。都会の生活と共に、心の豊かさを実感できるこの場所で、あなた自身の物語を紡ぎ出してください。毎日の生活が、まるで一つの美しい絵画のように、色とりどりの瞬間で満ち溢れることでしょう。さあ、あなたの新しい人生の舞台、グランバリュー三田 602での特別な時間をお楽しみください。
バイブルスコア
バイブルスコア: 26.1
平均的なスコアです。
※バイブルスコア詳細はこちら
バイブルスコアとは独自のAI機械学習技術を利用した物件評価システムで、物件のおすすめ度を示します。最高得点は100点で、スコアが高いほど、よりおすすめの物件と評価されています。
写真
契約条件
| 賃料 | 予想金額:134,000〜154,000円程度 | 管理費 | 予想金額:4,000〜8,000円程度 |
| 礼金 | 非公開(アーカイブ) | 敷金 | 非公開(アーカイブ) |
| フリーレント | なし | 平米数 | 38.12㎡ |
| 間取り | 1LDK | 大型収納 | |
| 契約期間 |
| 方角 | 東 |
| 更新料 | 契約形態 | 普通賃貸借契約 | |
| 取引態様 | 媒介 | 内見状況 | 入居中 |
| 入居時期 | 入居中 | SOHO・事務所 | |
| ペット | 間取り内訳 | 洋室4.7畳 LDK13.0畳 | |
| キャンペーン情報・備考 | 本情報は賃料改定交渉の資料作成、収益物件の利回り試算、周辺エリアや最寄り駅の坪単価分析、次回募集開始時期の予測などにご活用いただけます。 | ||
※「どの不動産に頼めばいいのか分からない」「信頼できる営業マンの話を聞きたい」「一番親切な会社と契約したい」とお悩みの方におすすめなのが「高級賃貸バイブル」です。
高級賃貸バイブルは業界10年以上の熟練スタッフ群がお客様ファーストで対応します。
下記ボタンから、まずは無料でご相談下さい。
※内覧をご希望の際には、どうぞ物件のエントランス前にてお待ち合わせくださいませ。ご内覧後は、同じ場所でお別れとさせていただきます。お客様のご都合に合わせたスムーズなご案内を心がけておりますので、ご質問等がございましたら何なりとお申し付けください。 物件概要
| 物件名 |
| 築年月 |
|
|---|---|---|---|
| 所在地 | |||
| 交通 | |||
| 総戸数 |
| 総階数 |
|
| 構造 |
| ||
地図
物件までの道のりは、「拡大地図を表示」をクリックしてナビ機能をご利用ください。
部屋設備













建物設備

TVモニターホン

エレベーター
グランバリュー三田の現在募集中のお部屋
- No rooms found for this property.









