
| 賃料 | 予想金額:149,000〜169,000円程度 | 管理費 | 予想金額:8,000〜12,000円程度 |
| 礼金/敷金 | 非公開(アーカイブ) | 平米数 | 41.14㎡ |
| 初期費用概算(参考) | 目安:613,000〜713,000 円 | みなし賃料(月額・参考) | 169,500〜189,500 円 |
| 備考 | 本ページは過去募集のアーカイブです。表示の金額は周辺相場・過去募集を踏まえた参考レンジであり、実際の契約金額・条件ではありません。 | ||
※上記みなし賃料(月額)は仲介手数料割引・無料&キャッシュバックを加味した高級賃貸バイブル限定の金額です。一般的なみなし賃料とは異なります。
【建物ページ】レジディア御茶ノ水2の詳細・最新空室はこちら▶▶選ばれる理由
仲介手数料無料・キャンペーン情報(毎月15名様限定)
〇仲介手数料割引キャンペーン
レジディア御茶ノ水2 503の口コミ・レビュー
レジディア御茶ノ水2 503は、まるで美しい物語の一ページに描かれた理想の住まいです。この特別なスペースは、東京都千代田区外神田2-9-5に位置し、北の風が運ぶ穏やかな時間を感じる場所にそっと佇んでいます。503という数字が、あなたの新しい生活の扉を優雅に開く合言葉となるでしょう。
この物件は、まるで洗練された舞台装置が整えられた劇場のようです。間取りは2DK、洋室5.5帖と4帖の二つの空間が、…レジディア御茶ノ水2 503は、まるで美しい物語の一ページに描かれた理想の住まいです。この特別なスペースは、東京都千代田区外神田2-9-5に位置し、北の風が運ぶ穏やかな時間を感じる場所にそっと佇んでいます。503という数字が、あなたの新しい生活の扉を優雅に開く合言葉となるでしょう。
この物件は、まるで洗練された舞台装置が整えられた劇場のようです。間取りは2DK、洋室5.5帖と4帖の二つの空間が、あなたの個性を自由に表現するキャンバスとなります。そして、8.1帖のダイニングキッチンは、香ばしい料理の匂いが漂う場所に生まれ変わります。それは友人を招き入れるパーティーの舞台ともなるし、静かな夜に一人で本に没頭するための隠れ家ともなるのです。
レジディア御茶ノ水2 503は、単なる居住空間ではなく、生活そのものを豊かにするためのパートナーです。東京メトロ銀座線末広町駅から徒歩5分の距離は、まるであなたを忙しい日常から解放し、無限の可能性を秘めた世界への入り口へと導いてくれます。外に出れば、歴史と現代が交錯するアートな街並みが広がり、コーヒーの香りが漂うカフェや、ひときわ煌びやかなショップがあなたのセンスを刺激します。
設備として整えられたTVモニターホンやオートロックは、あなたのプライバシーを守るための静かな見守り手。宅配ボックスは、忙しいあなたの生活に寄り添い、日常の小さな便利を提供します。それらは、まるで精巧な時計の歯車のように、スムーズに回り続ける生活の一部となります。
ここに住むことで、朝の目覚めは完璧なシンフォニーの始まりとなります。陽の光が窓を優しく通り抜け、暖かな光が室内を包み込みます。そして、日中にはそれぞれの部屋で異なる音色が奏でられ、夕暮れ時には心穏やかな時が流れます。夜には、静寂の中で月明かりを浴びながらリラックスする時間が訪れ、星々があなたの夢を見守るでしょう。
また、レジディア御茶ノ水2 503は、周辺の歴史や文化を深く感じられる環境にあります。古くから続く文教地区としての風情が漂い、アートや教育が根付いているからこそ、ここに住むことはただの生活ではなく、心の豊かさをももたらすのです。新たなインスピレーションがふとした瞬間に降り注ぎ、あなたの人生をさらに彩ることでしょう。
レジディア御茶ノ水2 503は、ただ作られた空間ではなく、あなたの人生そのものをより魅力的にするためのパートナーです。毎日の小さな喜びが積み重なり、ここに住むことであなたの物語が深まっていくことを、心から願っています。絵のように美しい「家族」になって、あなたを迎え入れます。今すぐ、この物件で新しい生活を始めてみませんか。
この物件は、まるで洗練された舞台装置が整えられた劇場のようです。間取りは2DK、洋室5.5帖と4帖の二つの空間が、…レジディア御茶ノ水2 503は、まるで美しい物語の一ページに描かれた理想の住まいです。この特別なスペースは、東京都千代田区外神田2-9-5に位置し、北の風が運ぶ穏やかな時間を感じる場所にそっと佇んでいます。503という数字が、あなたの新しい生活の扉を優雅に開く合言葉となるでしょう。
この物件は、まるで洗練された舞台装置が整えられた劇場のようです。間取りは2DK、洋室5.5帖と4帖の二つの空間が、あなたの個性を自由に表現するキャンバスとなります。そして、8.1帖のダイニングキッチンは、香ばしい料理の匂いが漂う場所に生まれ変わります。それは友人を招き入れるパーティーの舞台ともなるし、静かな夜に一人で本に没頭するための隠れ家ともなるのです。
レジディア御茶ノ水2 503は、単なる居住空間ではなく、生活そのものを豊かにするためのパートナーです。東京メトロ銀座線末広町駅から徒歩5分の距離は、まるであなたを忙しい日常から解放し、無限の可能性を秘めた世界への入り口へと導いてくれます。外に出れば、歴史と現代が交錯するアートな街並みが広がり、コーヒーの香りが漂うカフェや、ひときわ煌びやかなショップがあなたのセンスを刺激します。
設備として整えられたTVモニターホンやオートロックは、あなたのプライバシーを守るための静かな見守り手。宅配ボックスは、忙しいあなたの生活に寄り添い、日常の小さな便利を提供します。それらは、まるで精巧な時計の歯車のように、スムーズに回り続ける生活の一部となります。
ここに住むことで、朝の目覚めは完璧なシンフォニーの始まりとなります。陽の光が窓を優しく通り抜け、暖かな光が室内を包み込みます。そして、日中にはそれぞれの部屋で異なる音色が奏でられ、夕暮れ時には心穏やかな時が流れます。夜には、静寂の中で月明かりを浴びながらリラックスする時間が訪れ、星々があなたの夢を見守るでしょう。
また、レジディア御茶ノ水2 503は、周辺の歴史や文化を深く感じられる環境にあります。古くから続く文教地区としての風情が漂い、アートや教育が根付いているからこそ、ここに住むことはただの生活ではなく、心の豊かさをももたらすのです。新たなインスピレーションがふとした瞬間に降り注ぎ、あなたの人生をさらに彩ることでしょう。
レジディア御茶ノ水2 503は、ただ作られた空間ではなく、あなたの人生そのものをより魅力的にするためのパートナーです。毎日の小さな喜びが積み重なり、ここに住むことであなたの物語が深まっていくことを、心から願っています。絵のように美しい「家族」になって、あなたを迎え入れます。今すぐ、この物件で新しい生活を始めてみませんか。
バイブルスコア
バイブルスコア: 44
条件のいい物件です、引っ越しが2か月以内の場合は仮申し込みを検討すべき物件です。
※バイブルスコア詳細はこちら
バイブルスコアとは独自のAI機械学習技術を利用した物件評価システムで、物件のおすすめ度を示します。最高得点は100点で、スコアが高いほど、よりおすすめの物件と評価されています。
写真
契約条件
| 賃料 | 予想金額:149,000〜169,000円程度 | 管理費 | 予想金額:8,000〜12,000円程度 |
| 礼金 | 非公開(アーカイブ) | 敷金 | 非公開(アーカイブ) |
| フリーレント | なし | 平米数 | 41.14㎡ |
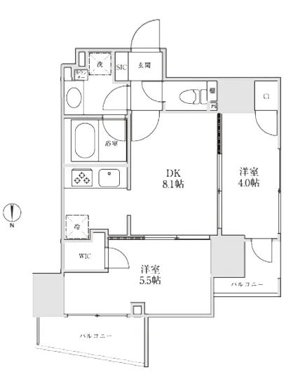
| 間取り | 2DK | 大型収納 | WIC+SIC |
| 契約期間 |
| 方角 | 北 |
| 更新料 | 契約形態 | 普通賃貸借契約 | |
| 取引態様 | 媒介 | 内見状況 | 入居中 |
| 入居時期 | 入居中 | SOHO・事務所 | |
| ペット | 間取り内訳 | 洋:5.5 洋:4 DK:8.1 | |
| キャンペーン情報・備考 | 本情報は賃料改定交渉の資料作成、収益物件の利回り試算、周辺エリアや最寄り駅の坪単価分析、次回募集開始時期の予測などにご活用いただけます。 | ||
※「どの不動産に頼めばいいのか分からない」「信頼できる営業マンの話を聞きたい」「一番親切な会社と契約したい」とお悩みの方におすすめなのが「高級賃貸バイブル」です。
高級賃貸バイブルは業界10年以上の熟練スタッフ群がお客様ファーストで対応します。
下記ボタンから、まずは無料でご相談下さい。
※内覧をご希望の際には、どうぞ物件のエントランス前にてお待ち合わせくださいませ。ご内覧後は、同じ場所でお別れとさせていただきます。お客様のご都合に合わせたスムーズなご案内を心がけておりますので、ご質問等がございましたら何なりとお申し付けください。 物件概要
| 物件名 |
| 築年月 |
|
|---|---|---|---|
| 所在地 | |||
| 交通 | |||
| 総戸数 |
| 総階数 |
|
| 構造 |
| ||
地図
物件までの道のりは、「拡大地図を表示」をクリックしてナビ機能をご利用ください。
部屋設備
















建物設備

TVモニターホン

エレベーター

オートロック

宅配ボックス

敷地内ゴミ置場

管理人

駐輪場
レジディア御茶ノ水2の現在募集中のお部屋
- No rooms found for this property.



























