
| 賃料 | 予想金額:215,000〜235,000円程度 | 管理費 | 予想金額:13,000〜17,000円程度 |
| 礼金/敷金 | 非公開(アーカイブ) | 平米数 | 41.14㎡ |
| 初期費用概算(参考) | 目安:766,500〜866,500 円 | みなし賃料(月額・参考) | 242,323〜262,323 円 |
| 備考 | 本ページは過去募集のアーカイブです。表示の金額は周辺相場・過去募集を踏まえた参考レンジであり、実際の契約金額・条件ではありません。 | ||
※上記みなし賃料(月額)は仲介手数料割引・無料&キャッシュバックを加味した高級賃貸バイブル限定の金額です。一般的なみなし賃料とは異なります。
【建物ページ】レジディア御茶ノ水2の詳細・最新空室はこちら▶▶選ばれる理由
仲介手数料無料・キャンペーン情報(毎月15名様限定)
〇引っ越しお祝い金30000円プレゼント(キャッシュバック)
〇仲介手数料無料キャンペーン
レジディア御茶ノ水2 203の口コミ・レビュー
レジディア御茶ノ水2 203。この名を耳にするたび、心に浮かぶのは、まるで映画の一幕に入り込んだような、息を呑む美しさと静寂の世界です。東京都千代田区外神田、歴史と文化が交差するこの地に佇む高級賃貸物件は、ただの住まいではなく、あなたの人生を豊かに彩る舞台装置となることでしょう。
レジディア御茶ノ水2 203は、専有面積41.14㎡の魅力を余すことなく引き出し、温もりを感じるスタイリッシュなデザ…レジディア御茶ノ水2 203。この名を耳にするたび、心に浮かぶのは、まるで映画の一幕に入り込んだような、息を呑む美しさと静寂の世界です。東京都千代田区外神田、歴史と文化が交差するこの地に佇む高級賃貸物件は、ただの住まいではなく、あなたの人生を豊かに彩る舞台装置となることでしょう。
レジディア御茶ノ水2 203は、専有面積41.14㎡の魅力を余すことなく引き出し、温もりを感じるスタイリッシュなデザインでお迎えします。北の方角に面し、柔らかな朝光が穏やかに差し込みます。その光の中で、あなたが目を覚ます瞬間、心地よい静けさが広がります。窓の外には、都会の喧騒を感じさせない穏やかな風景が広がり、ついほっと息をついてしまうことでしょう。
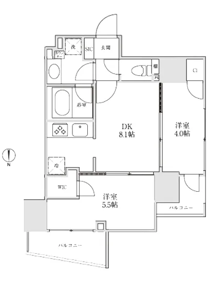
このお部屋の間取りは2DK、洋室5.5帖と洋室4帖、DK8.1帖の組み合わせが、あなたの日常に調和をもたらします。想像してみてください。5.5帖の洋室では、優雅な夜に本を手に取り、ページをめくるたびに空気がほんのり温まる感覚を味わいながら、物語の世界に没頭することができるのです。4帖の洋室は、穏やかな昼下がりのひとときに、茶香を漂わせる日本茶を淹れ、心の平安を感じる場所として機能します。
DK8.1帖は、まるで小さなカフェのようにあなたを迎え入れ、友人たちとの語らいや美味しい料理を共有するための空間となります。そこでは、キッチンから漂う香ばしい匂いが食欲をそそり、笑い声が響き渡り、まるで心の中に映し出される映画のシーンのように、心温まる時間が流れていくのです。
また、レジディア御茶ノ水2 203は、最新の設備を整えており、TVモニターホンやオートロックの採用により、安心・安全な暮らしを提供します。エレベーターで軽やかに上がると、宅配ボックスがあなたの生活をさらに便利に彩ります。これらの設備は、あなたの生活を豊かにするために細やかに設計されており、そのすべてが心地よいアクセントとなっています。
周辺には歴史ある神田明神や、文化的な音楽ホール、アートギャラリーが点在し、日常の中に芸術を感じることができます。東京メトロ銀座線の末広町駅まで徒歩5分という立地も、東京の喧騒から少し距離を置きながら、様々な文化に触れることができる贅沢な環境を提供しています。
レジディア御茶ノ水2 203での日々は、あなた自身が主人公となり、心の奥深くに響く物語を紡ぐ舞台であり、あなたの人生をより豊かに、色彩豊かにしてくれることでしょう。この場所で過ごす時間は、特別であり、ユニークな経験となることでしょう。あなたの新しい生活の一歩を、レジディア御茶ノ水2 203で始めてみませんか。
レジディア御茶ノ水2 203は、専有面積41.14㎡の魅力を余すことなく引き出し、温もりを感じるスタイリッシュなデザ…レジディア御茶ノ水2 203。この名を耳にするたび、心に浮かぶのは、まるで映画の一幕に入り込んだような、息を呑む美しさと静寂の世界です。東京都千代田区外神田、歴史と文化が交差するこの地に佇む高級賃貸物件は、ただの住まいではなく、あなたの人生を豊かに彩る舞台装置となることでしょう。
レジディア御茶ノ水2 203は、専有面積41.14㎡の魅力を余すことなく引き出し、温もりを感じるスタイリッシュなデザインでお迎えします。北の方角に面し、柔らかな朝光が穏やかに差し込みます。その光の中で、あなたが目を覚ます瞬間、心地よい静けさが広がります。窓の外には、都会の喧騒を感じさせない穏やかな風景が広がり、ついほっと息をついてしまうことでしょう。
このお部屋の間取りは2DK、洋室5.5帖と洋室4帖、DK8.1帖の組み合わせが、あなたの日常に調和をもたらします。想像してみてください。5.5帖の洋室では、優雅な夜に本を手に取り、ページをめくるたびに空気がほんのり温まる感覚を味わいながら、物語の世界に没頭することができるのです。4帖の洋室は、穏やかな昼下がりのひとときに、茶香を漂わせる日本茶を淹れ、心の平安を感じる場所として機能します。
DK8.1帖は、まるで小さなカフェのようにあなたを迎え入れ、友人たちとの語らいや美味しい料理を共有するための空間となります。そこでは、キッチンから漂う香ばしい匂いが食欲をそそり、笑い声が響き渡り、まるで心の中に映し出される映画のシーンのように、心温まる時間が流れていくのです。
また、レジディア御茶ノ水2 203は、最新の設備を整えており、TVモニターホンやオートロックの採用により、安心・安全な暮らしを提供します。エレベーターで軽やかに上がると、宅配ボックスがあなたの生活をさらに便利に彩ります。これらの設備は、あなたの生活を豊かにするために細やかに設計されており、そのすべてが心地よいアクセントとなっています。
周辺には歴史ある神田明神や、文化的な音楽ホール、アートギャラリーが点在し、日常の中に芸術を感じることができます。東京メトロ銀座線の末広町駅まで徒歩5分という立地も、東京の喧騒から少し距離を置きながら、様々な文化に触れることができる贅沢な環境を提供しています。
レジディア御茶ノ水2 203での日々は、あなた自身が主人公となり、心の奥深くに響く物語を紡ぐ舞台であり、あなたの人生をより豊かに、色彩豊かにしてくれることでしょう。この場所で過ごす時間は、特別であり、ユニークな経験となることでしょう。あなたの新しい生活の一歩を、レジディア御茶ノ水2 203で始めてみませんか。
バイブルスコア
バイブルスコア: 98.5
レア物件です、すぐ仮押さえしましょう!
このお部屋は、現在ご入居中のため空室情報はございません。ただし、将来的に募集が開始される際、バイブルスコアにおいて非常に高い評価が期待されます。特にご興味をお持ちの方は、今のうちにブックマークやお気に入りに登録していただくと、募集開始のお知らせをすぐに受け取ることができます。是非ともご検討くださいませ。
※バイブルスコア詳細はこちら
バイブルスコアとは独自のAI機械学習技術を利用した物件評価システムで、物件のおすすめ度を示します。最高得点は100点で、スコアが高いほど、よりおすすめの物件と評価されています。
写真
契約条件
| 賃料 | 予想金額:215,000〜235,000円程度 | 管理費 | 予想金額:13,000〜17,000円程度 |
| 礼金 | 非公開(アーカイブ) | 敷金 | 非公開(アーカイブ) |
| フリーレント | なし | 平米数 | 41.14㎡ |
| 間取り | 2DK | 大型収納 | WIC+SIC |
| 契約期間 | 2年 | 方角 | 北 |
| 更新料 | 1ヶ月 | 契約形態 | 普通賃貸借契約 |
| 取引態様 | 媒介 | 内見状況 | 入居中 |
| 入居時期 | 入居中 | SOHO・事務所 | |
| ペット | 間取り内訳 | 洋:5.5 洋:4 DK:8.1 | |
| キャンペーン情報・備考 | 本情報は賃料改定交渉の資料作成、収益物件の利回り試算、周辺エリアや最寄り駅の坪単価分析、次回募集開始時期の予測などにご活用いただけます。 | ||
※「どの不動産に頼めばいいのか分からない」「信頼できる営業マンの話を聞きたい」「一番親切な会社と契約したい」とお悩みの方におすすめなのが「高級賃貸バイブル」です。
高級賃貸バイブルは業界10年以上の熟練スタッフ群がお客様ファーストで対応します。
下記ボタンから、まずは無料でご相談下さい。
※内覧をご希望の際には、どうぞ物件のエントランス前にてお待ち合わせくださいませ。ご内覧後は、同じ場所でお別れとさせていただきます。お客様のご都合に合わせたスムーズなご案内を心がけておりますので、ご質問等がございましたら何なりとお申し付けください。 物件概要
| 物件名 |
| 築年月 |
|
|---|---|---|---|
| 所在地 | |||
| 交通 | |||
| 総戸数 |
| 総階数 |
|
| 構造 |
| ||
地図
物件までの道のりは、「拡大地図を表示」をクリックしてナビ機能をご利用ください。
部屋設備
















建物設備

TVモニターホン

エレベーター

オートロック

宅配ボックス

敷地内ゴミ置場

管理人

駐輪場
レジディア御茶ノ水2の現在募集中のお部屋
- No rooms found for this property.



























