
| 賃料 | 予想金額:204,000〜224,000円程度 | 管理費 | 予想金額:13,000〜17,000円程度 |
| 礼金/敷金 | 非公開(アーカイブ) | 平米数 | 41.14㎡ |
| 初期費用概算(参考) | 目安:715,200〜815,200 円 | みなし賃料(月額・参考) | 230,483〜250,483 円 |
| 備考 | 本ページは過去募集のアーカイブです。表示の金額は周辺相場・過去募集を踏まえた参考レンジであり、実際の契約金額・条件ではありません。 | ||
※上記みなし賃料(月額)は仲介手数料割引・無料&キャッシュバックを加味した高級賃貸バイブル限定の金額です。一般的なみなし賃料とは異なります。
【建物ページ】レジディア御茶ノ水2の詳細・最新空室はこちら▶▶選ばれる理由
仲介手数料無料・キャンペーン情報(毎月15名様限定)
〇引っ越しお祝い金42800円プレゼント(キャッシュバック)
〇仲介手数料無料キャンペーン
レジディア御茶ノ水2 603の口コミ・レビュー
41.14㎡の専有面積は、まるでアートのキャンバスのように広がり、あなたのライフスタイルに色を添えてくれることでしょう。北向きの窓…レジディア御茶ノ水2 603。この美しい名前は、まるで文学の一節のように私の心に響きます。ここに住むことは、日々を映画のワンシーンとして描き出すことができる、そんな特別な体験を意味します。603号室は、あなたを迎えるために用意された、優雅さと洗練が調和した空間です。
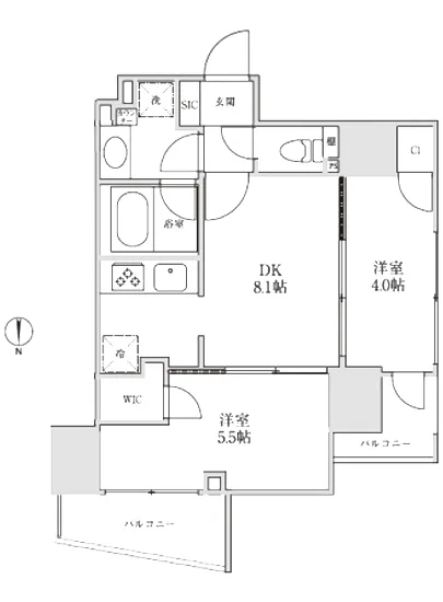
41.14㎡の専有面積は、まるでアートのキャンバスのように広がり、あなたのライフスタイルに色を添えてくれることでしょう。北向きの窓から差し込む柔らかな光は、朝の始まりを告げるかのように、静かにあなたの日常を照らします。そして、DK8.1帖の空間では、香ばしいコーヒーの香りが広がり、心地よい食事のひとときを演出します。夕暮れ時には、心安らぐ夕食を友人や家族と共に囲み、優しい会話に包まれて、時間を忘れることでしょう。
洋室5.5帖は、あなたのプライベート空間として、夢を描くための隠れ家となります。書斎や趣味の部屋として、個性を存分に発揮できる場所です。どのようなインテリアを施すか、その想像は心を踊らせます。時には、物語の主人公のように一人静かに読書を楽しみ、時には友人と笑い声を交わす、そんなシーンが思い描けます。
また、もう一つの洋室4帖は、穏やかな眠りへと誘うお部屋。柔らかな肌触りのシーツに包まれて、夢の世界へと旅立つ準備が整います。毎朝、窓を開けると秋の風のさわやかさや、春の訪れを告げる花々の香りが漂い、自然界の美しさを感じることができます。
レジディア御茶ノ水2 603の魅力は、内装だけにはとどまりません。オートロックや宅配ボックスといった最新の設備が、あなたの生活をより快適に、そして安全に守ります。エレベーターで優雅にアクセスし、緑豊かな敷地内を散策することは、まるで古き良きヨーロッパの街を歩いているかのようです。管理人の温かい笑顔が迎えてくれ、まるで昔ながらの喫茶店のような温もりを感じることでしょう。
また、周辺の歴史や文化も見逃せません。東京都千代田区外神田は、古くから栄えた文化の中心地。アートギャラリーや博物館、歴史的な建物が点在し、毎日が発見の旅となります。東京メトロ銀座線 末広町駅まで徒歩5分という便利な立地は、日々の生活にさらなる彩りを添えてくれます。
レジディア御茶ノ水2 603は、あなたの生活をラグジュアリーなものに変える場所です。まるで映画の主人公のように、この特別な空間で新たな物語を作り上げることができるのです。ここでの生活が、あなたにとって忘れられない瞬間となることを、心から願っています。
バイブルスコア
バイブルスコア: 53.6
条件のいい物件です、引っ越しが2か月以内の場合は仮申し込みを検討すべき物件です。
このお部屋は、現在ご入居中のため空室情報はございません。ただし、将来的に募集が開始される際、バイブルスコアにおいて非常に高い評価が期待されます。特にご興味をお持ちの方は、今のうちにブックマークやお気に入りに登録していただくと、募集開始のお知らせをすぐに受け取ることができます。是非ともご検討くださいませ。
※バイブルスコア詳細はこちら
バイブルスコアとは独自のAI機械学習技術を利用した物件評価システムで、物件のおすすめ度を示します。最高得点は100点で、スコアが高いほど、よりおすすめの物件と評価されています。
写真
契約条件
| 賃料 | 予想金額:204,000〜224,000円程度 | 管理費 | 予想金額:13,000〜17,000円程度 |
| 礼金 | 非公開(アーカイブ) | 敷金 | 非公開(アーカイブ) |
| フリーレント | なし | 平米数 | 41.14㎡ |
| 間取り | 2DK+WIC+SIC | 大型収納 | SIC・WIC |
| 契約期間 | 2年 | 方角 | 北 |
| 更新料 | 1ヶ月 | 契約形態 | 普通賃貸借契約 |
| 取引態様 | 媒介 | 内見状況 | 入居中 |
| 入居時期 | 入居中 | SOHO・事務所 | 不可 |
| ペット | 不可 | 間取り内訳 | DK8.1帖 洋室5.5帖 洋室4帖 |
| キャンペーン情報・備考 | 本情報は賃料改定交渉の資料作成、収益物件の利回り試算、周辺エリアや最寄り駅の坪単価分析、次回募集開始時期の予測などにご活用いただけます。 | ||
※「どの不動産に頼めばいいのか分からない」「信頼できる営業マンの話を聞きたい」「一番親切な会社と契約したい」とお悩みの方におすすめなのが「高級賃貸バイブル」です。
高級賃貸バイブルは業界10年以上の熟練スタッフ群がお客様ファーストで対応します。
下記ボタンから、まずは無料でご相談下さい。
※内覧をご希望の際には、どうぞ物件のエントランス前にてお待ち合わせくださいませ。ご内覧後は、同じ場所でお別れとさせていただきます。お客様のご都合に合わせたスムーズなご案内を心がけておりますので、ご質問等がございましたら何なりとお申し付けください。 物件概要
| 物件名 |
| 築年月 |
|
|---|---|---|---|
| 所在地 | |||
| 交通 | |||
| 総戸数 |
| 総階数 |
|
| 構造 |
| ||
地図
物件までの道のりは、「拡大地図を表示」をクリックしてナビ機能をご利用ください。
部屋設備












建物設備

TVモニターホン

エレベーター

オートロック

宅配ボックス

敷地内ゴミ置場

管理人

駐輪場
レジディア御茶ノ水2の現在募集中のお部屋
- No rooms found for this property.



























