
| 賃料 | 予想金額:129,000〜149,000円程度 | 管理費 | 予想金額:8,000〜12,000円程度 |
| 礼金/敷金 | 非公開(アーカイブ) | 平米数 | 30.27㎡ |
| 初期費用概算(参考) | 目安:543,000〜643,000 円 | みなし賃料(月額・参考) | 148,458〜168,458 円 |
| 備考 | 本ページは過去募集のアーカイブです。表示の金額は周辺相場・過去募集を踏まえた参考レンジであり、実際の契約金額・条件ではありません。 | ||
※上記みなし賃料(月額)は仲介手数料割引・無料&キャッシュバックを加味した高級賃貸バイブル限定の金額です。一般的なみなし賃料とは異なります。
【建物ページ】レジディア御茶ノ水2の詳細・最新空室はこちら▶▶選ばれる理由
仲介手数料無料・キャンペーン情報(毎月15名様限定)
〇仲介手数料割引キャンペーン
レジディア御茶ノ水2 601の口コミ・レビュー
レジディア御茶ノ水2 601、ここはただの住まいではなく、あなたにとっての新しい舞台です。601という番号は、まるで特別な魔法のように、日々の生活を彩るために用意された高級な小宇宙。30.27㎡のこの空間には、洗練されたデザインと温かみのある居心地が共存しています。
この物件に一歩足を踏み入れると、まるで異世界の扉が開かれたかのように、心が弾むのを感じます。北を向いた窓から差し込む柔らかな光が、…レジディア御茶ノ水2 601、ここはただの住まいではなく、あなたにとっての新しい舞台です。601という番号は、まるで特別な魔法のように、日々の生活を彩るために用意された高級な小宇宙。30.27㎡のこの空間には、洗練されたデザインと温かみのある居心地が共存しています。
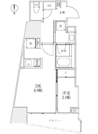
この物件に一歩足を踏み入れると、まるで異世界の扉が開かれたかのように、心が弾むのを感じます。北を向いた窓から差し込む柔らかな光が、静かな朝を告げ、日常の喧騒を忘れさせてくれます。洋室は2.4帖、ダイニングキッチンは6.9帖の空間が、あなたの感性を豊かに育てるために用意されたキャンバスのように感じられます。大きな窓から見える景色は、東京の都市が織り成す美しいモザイク。ここでの生活は、まるであなただけの映画の一シーンのように美しいのです。
レジディア御茶ノ水2 601では、エレベーターを利用して上質な暮らしにアクセスし、オートロックによって守られた空間へと帰る喜びを実感できます。操作する手元に感じる冷たい金属は、安心とともにあなたを包み込むのです。そして、TVモニターホンの存在は、まるで静かに見守る友のように、あなたのプライベートを守ってくれます。
そして、忙しい日々の中でも、ここにはあなたの生活をより豊かにするための工夫が隠されています。例えば、宅配ボックスがあることで、外出先でも気軽に大切な荷物を受け取り、まるで隠された宝物を探し当てる探検のような楽しみを味わえるのです。また、敷地内のゴミ置場や管理人の存在は、まるで見えない手によって生活全体が整えられ、心地よいリズムで進行する生活のバランスを保つ役割を果たします。
場所は、東京メトロ銀座線の末広町駅から徒歩わずか5分。歴史深い秋葉原や御茶ノ水の文化が息づくこのエリアの魅力は、現代の洗練とアートの香りが融合する街並みの中にこそ息づいています。芸術と文化の中心地で、新しい友人と出会ったり、創作活動に没頭したりすることで、生活はさらに豊かになるのです。
日々の暮らしの中で、あなたはこのレジディア御茶ノ水2 601で、ただの住まいではなく、人生という物語の中での素晴らしい舞台を手に入れることができるのです。開放感あふれる空間で、五感を刺激し、心躍る新たな展開を描いてみませんか。あなたの新しい生活がここから始まります。
この物件に一歩足を踏み入れると、まるで異世界の扉が開かれたかのように、心が弾むのを感じます。北を向いた窓から差し込む柔らかな光が、…レジディア御茶ノ水2 601、ここはただの住まいではなく、あなたにとっての新しい舞台です。601という番号は、まるで特別な魔法のように、日々の生活を彩るために用意された高級な小宇宙。30.27㎡のこの空間には、洗練されたデザインと温かみのある居心地が共存しています。
この物件に一歩足を踏み入れると、まるで異世界の扉が開かれたかのように、心が弾むのを感じます。北を向いた窓から差し込む柔らかな光が、静かな朝を告げ、日常の喧騒を忘れさせてくれます。洋室は2.4帖、ダイニングキッチンは6.9帖の空間が、あなたの感性を豊かに育てるために用意されたキャンバスのように感じられます。大きな窓から見える景色は、東京の都市が織り成す美しいモザイク。ここでの生活は、まるであなただけの映画の一シーンのように美しいのです。
レジディア御茶ノ水2 601では、エレベーターを利用して上質な暮らしにアクセスし、オートロックによって守られた空間へと帰る喜びを実感できます。操作する手元に感じる冷たい金属は、安心とともにあなたを包み込むのです。そして、TVモニターホンの存在は、まるで静かに見守る友のように、あなたのプライベートを守ってくれます。
そして、忙しい日々の中でも、ここにはあなたの生活をより豊かにするための工夫が隠されています。例えば、宅配ボックスがあることで、外出先でも気軽に大切な荷物を受け取り、まるで隠された宝物を探し当てる探検のような楽しみを味わえるのです。また、敷地内のゴミ置場や管理人の存在は、まるで見えない手によって生活全体が整えられ、心地よいリズムで進行する生活のバランスを保つ役割を果たします。
場所は、東京メトロ銀座線の末広町駅から徒歩わずか5分。歴史深い秋葉原や御茶ノ水の文化が息づくこのエリアの魅力は、現代の洗練とアートの香りが融合する街並みの中にこそ息づいています。芸術と文化の中心地で、新しい友人と出会ったり、創作活動に没頭したりすることで、生活はさらに豊かになるのです。
日々の暮らしの中で、あなたはこのレジディア御茶ノ水2 601で、ただの住まいではなく、人生という物語の中での素晴らしい舞台を手に入れることができるのです。開放感あふれる空間で、五感を刺激し、心躍る新たな展開を描いてみませんか。あなたの新しい生活がここから始まります。
バイブルスコア
バイブルスコア: 20.4
平均的なスコアです。
※バイブルスコア詳細はこちら
バイブルスコアとは独自のAI機械学習技術を利用した物件評価システムで、物件のおすすめ度を示します。最高得点は100点で、スコアが高いほど、よりおすすめの物件と評価されています。
写真
契約条件
| 賃料 | 予想金額:129,000〜149,000円程度 | 管理費 | 予想金額:8,000〜12,000円程度 |
| 礼金 | 非公開(アーカイブ) | 敷金 | 非公開(アーカイブ) |
| フリーレント | なし | 平米数 | 30.27㎡ |
| 間取り | 1DK | 大型収納 | WIC+SIC |
| 契約期間 |
| 方角 | 北 |
| 更新料 | 契約形態 | 普通賃貸借契約 | |
| 取引態様 | 媒介 | 内見状況 | 入居中 |
| 入居時期 | 入居中 | SOHO・事務所 | |
| ペット | 間取り内訳 | 洋:2.4 DK:6.9 | |
| キャンペーン情報・備考 | 本情報は賃料改定交渉の資料作成、収益物件の利回り試算、周辺エリアや最寄り駅の坪単価分析、次回募集開始時期の予測などにご活用いただけます。 | ||
※「どの不動産に頼めばいいのか分からない」「信頼できる営業マンの話を聞きたい」「一番親切な会社と契約したい」とお悩みの方におすすめなのが「高級賃貸バイブル」です。
高級賃貸バイブルは業界10年以上の熟練スタッフ群がお客様ファーストで対応します。
下記ボタンから、まずは無料でご相談下さい。
※内覧をご希望の際には、どうぞ物件のエントランス前にてお待ち合わせくださいませ。ご内覧後は、同じ場所でお別れとさせていただきます。お客様のご都合に合わせたスムーズなご案内を心がけておりますので、ご質問等がございましたら何なりとお申し付けください。 物件概要
| 物件名 |
| 築年月 |
|
|---|---|---|---|
| 所在地 | |||
| 交通 | |||
| 総戸数 |
| 総階数 |
|
| 構造 |
| ||
地図
物件までの道のりは、「拡大地図を表示」をクリックしてナビ機能をご利用ください。
部屋設備














建物設備

TVモニターホン

エレベーター

オートロック

宅配ボックス

敷地内ゴミ置場

管理人

駐輪場
レジディア御茶ノ水2の現在募集中のお部屋
- No rooms found for this property.



























