
| 賃料 | 予想金額:99,000〜119,000円程度 | 管理費 | 予想金額:10,000〜14,000円程度 |
| 礼金/敷金 | 非公開(アーカイブ) | 平米数 | 25.68㎡ |
| 初期費用概算(参考) | 目安:333,250〜433,250 円 | みなし賃料(月額・参考) | 117,203〜137,203 円 |
| 備考 | 本ページは過去募集のアーカイブです。表示の金額は周辺相場・過去募集を踏まえた参考レンジであり、実際の契約金額・条件ではありません。 | ||
※上記みなし賃料(月額)は仲介手数料割引・無料&キャッシュバックを加味した高級賃貸バイブル限定の金額です。一般的なみなし賃料とは異なります。
【建物ページ】メインステージ三田アーバンスクエアの詳細・最新空室はこちら▶▶選ばれる理由
仲介手数料無料・キャンペーン情報(毎月15名様限定)
〇仲介手数料割引キャンペーン
メインステージ三田アーバンスクエア 503の口コミ・レビュー
メインステージ三田アーバンスクエア 503。あなたがこの特別な空間の扉を開ける瞬間、まるで新しい物語の幕が上がるかのように、心が躍ることでしょう。東京の心臓部、港区芝という贅沢な地に佇むこの物件は、ただの住まいではなく、あなたの日常に華やかな色彩を添える舞台です。503号室、ここでは25.68㎡の中に無限の可能性が秘められています。この空間は、あなたを主人公とした人生ドラマの舞台裏、あなたの思い描…メインステージ三田アーバンスクエア 503。あなたがこの特別な空間の扉を開ける瞬間、まるで新しい物語の幕が上がるかのように、心が躍ることでしょう。東京の心臓部、港区芝という贅沢な地に佇むこの物件は、ただの住まいではなく、あなたの日常に華やかな色彩を添える舞台です。503号室、ここでは25.68㎡の中に無限の可能性が秘められています。この空間は、あなたを主人公とした人生ドラマの舞台裏、あなたの思い描くストーリーを支える素晴らしい相棒となることでしょう。
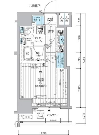
入ると、まず目に飛び込んでくるのは、柔らかな光が差し込むあたたかな空間。自然な風合いのフローリングが足元を優しく包み込み、心地よい温もりを感じさせます。8帖(R=8J)の広さは、決して狭さを感じさせることなく、あなたがくつろぎのひとときを過ごすための豊かな余白を与えてくれます。そこでどんな香りの料理を作り、どんな音楽を流し、どんな会話を交わすのか、それはすべてあなた次第です。
三田駅からわずか徒歩4分という立地は、まるで都会の喧騒と静寂を見事に調和させる楽器のようです。忙しさの中にも、ふと立ち止まって周囲の美しさを感じる余裕が生まれることでしょう。取り囲むのは、歴史が息づく街並みや文化の香り。隣接するおしゃれなカフェやレストラン、アートギャラリーは、あなたの生活にささやかだけれど深い感動をもたらしてくれます。豊かな歴史を持つこの地域は、まるであなたの人生の一部のように感じられることでしょう。
メインステージ三田アーバンスクエア 503には、快適な生活をサポートするための充実した設備が整っています。エレベーターでスムーズにアクセスできることに加え、オートロックのセキュリティが安心感をもたらします。そして、宅配ボックスは、あなたの忙しい日常を優しくフォローする優れたパートナー。また、駐車場やバイク置場、駐輪場も完備されており、あなたのライフスタイルの多様性を支えてくれることでしょう。
この空間での生活は、まるで映画のワンシーンのように美しく、日々の中に小さな奇跡を見出していくことでしょう。朝、窓から差し込む陽射しの中で目覚め、コーヒーの香りが漂う中で優雅な朝食を楽しむ。午後の余暇には、近くの公園で風に揺れる木々の音を聞きながら読書にふける。夜には、都心の煌めく夜景を眺めながら、自分だけの特別な時間を過ごすことができるのです。
メインステージ三田アーバンスクエア 503は、生活をただ「する場」としてではなく、心を満たし、人生を豊かにする「舞台」としての役割を果たします。あなたの新しい物語をここから始めてみませんか。きっと、あなたにとって特別な空間となることでしょう。
入ると、まず目に飛び込んでくるのは、柔らかな光が差し込むあたたかな空間。自然な風合いのフローリングが足元を優しく包み込み、心地よい温もりを感じさせます。8帖(R=8J)の広さは、決して狭さを感じさせることなく、あなたがくつろぎのひとときを過ごすための豊かな余白を与えてくれます。そこでどんな香りの料理を作り、どんな音楽を流し、どんな会話を交わすのか、それはすべてあなた次第です。
三田駅からわずか徒歩4分という立地は、まるで都会の喧騒と静寂を見事に調和させる楽器のようです。忙しさの中にも、ふと立ち止まって周囲の美しさを感じる余裕が生まれることでしょう。取り囲むのは、歴史が息づく街並みや文化の香り。隣接するおしゃれなカフェやレストラン、アートギャラリーは、あなたの生活にささやかだけれど深い感動をもたらしてくれます。豊かな歴史を持つこの地域は、まるであなたの人生の一部のように感じられることでしょう。
メインステージ三田アーバンスクエア 503には、快適な生活をサポートするための充実した設備が整っています。エレベーターでスムーズにアクセスできることに加え、オートロックのセキュリティが安心感をもたらします。そして、宅配ボックスは、あなたの忙しい日常を優しくフォローする優れたパートナー。また、駐車場やバイク置場、駐輪場も完備されており、あなたのライフスタイルの多様性を支えてくれることでしょう。
この空間での生活は、まるで映画のワンシーンのように美しく、日々の中に小さな奇跡を見出していくことでしょう。朝、窓から差し込む陽射しの中で目覚め、コーヒーの香りが漂う中で優雅な朝食を楽しむ。午後の余暇には、近くの公園で風に揺れる木々の音を聞きながら読書にふける。夜には、都心の煌めく夜景を眺めながら、自分だけの特別な時間を過ごすことができるのです。
メインステージ三田アーバンスクエア 503は、生活をただ「する場」としてではなく、心を満たし、人生を豊かにする「舞台」としての役割を果たします。あなたの新しい物語をここから始めてみませんか。きっと、あなたにとって特別な空間となることでしょう。
バイブルスコア
バイブルスコア: 28.9
平均的なスコアです。
※バイブルスコア詳細はこちら
バイブルスコアとは独自のAI機械学習技術を利用した物件評価システムで、物件のおすすめ度を示します。最高得点は100点で、スコアが高いほど、よりおすすめの物件と評価されています。
写真
契約条件
| 賃料 | 予想金額:99,000〜119,000円程度 | 管理費 | 予想金額:10,000〜14,000円程度 |
| 礼金 | 非公開(アーカイブ) | 敷金 | 非公開(アーカイブ) |
| フリーレント | なし | 平米数 | 25.68㎡ |
| 間取り | 1K | 大型収納 | |
| 契約期間 |
| 方角 | |
| 更新料 | 契約形態 | 普通賃貸借契約 | |
| 取引態様 | 媒介 | 内見状況 | 入居中 |
| 入居時期 | 入居中 | SOHO・事務所 | |
| ペット | 間取り内訳 | R=8J | |
| キャンペーン情報・備考 | 本情報は賃料改定交渉の資料作成、収益物件の利回り試算、周辺エリアや最寄り駅の坪単価分析、次回募集開始時期の予測などにご活用いただけます。 | ||
※「どの不動産に頼めばいいのか分からない」「信頼できる営業マンの話を聞きたい」「一番親切な会社と契約したい」とお悩みの方におすすめなのが「高級賃貸バイブル」です。
高級賃貸バイブルは業界10年以上の熟練スタッフ群がお客様ファーストで対応します。
下記ボタンから、まずは無料でご相談下さい。
※内覧をご希望の際には、どうぞ物件のエントランス前にてお待ち合わせくださいませ。ご内覧後は、同じ場所でお別れとさせていただきます。お客様のご都合に合わせたスムーズなご案内を心がけておりますので、ご質問等がございましたら何なりとお申し付けください。 物件概要
| 物件名 |
| 築年月 |
|
|---|---|---|---|
| 所在地 | |||
| 交通 | |||
| 総戸数 |
| 総階数 |
|
| 構造 |
| ||
地図
物件までの道のりは、「拡大地図を表示」をクリックしてナビ機能をご利用ください。
部屋設備












建物設備

TVモニターホン

エレベーター

オートロック

バイク置場

宅配ボックス

敷地内ゴミ置場

駐車場平置き

駐輪場
メインステージ三田アーバンスクエアの現在募集中のお部屋
- No rooms found for this property.




















