
| 賃料 | 予想金額:95,000〜115,000円程度 | 管理費 | 予想金額:6,000〜10,000円程度 |
| 礼金/敷金 | 非公開(アーカイブ) | 平米数 | 22.58㎡ |
| 初期費用概算(参考) | 目安:349,500〜449,500 円 | みなし賃料(月額・参考) | 109,135〜129,135 円 |
| 備考 | 本ページは過去募集のアーカイブです。表示の金額は周辺相場・過去募集を踏まえた参考レンジであり、実際の契約金額・条件ではありません。 | ||
※上記みなし賃料(月額)は仲介手数料割引・無料&キャッシュバックを加味した高級賃貸バイブル限定の金額です。一般的なみなし賃料とは異なります。
【建物ページ】メインステージ三田アーバンスクエアの詳細・最新空室はこちら▶▶選ばれる理由
仲介手数料無料・キャンペーン情報(毎月15名様限定)
〇引っ越しお祝い金5000円プレゼント(キャッシュバック)
メインステージ三田アーバンスクエア 4階 22.58㎡の口コミ・レビュー
メインステージ三田アーバンスクエア 4階 22.58㎡は、まるで静かな絵画の中に佇む一輪の花のように、都心の喧騒を忘れさせる特別な場所です。このアパートメントは、港区芝の豊かな歴史と文化を背景に持ち、あなたの日常を優雅な映画のワンシーンへと変えてくれることでしょう。
扉を開くと、まず感じるのは温かみのある日差しが差し込む洋室6.8帖。大きな窓からは、浮かぶ雲と透き通った青空が見え、まるで空と大地…メインステージ三田アーバンスクエア 4階 22.58㎡は、まるで静かな絵画の中に佇む一輪の花のように、都心の喧騒を忘れさせる特別な場所です。このアパートメントは、港区芝の豊かな歴史と文化を背景に持ち、あなたの日常を優雅な映画のワンシーンへと変えてくれることでしょう。
扉を開くと、まず感じるのは温かみのある日差しが差し込む洋室6.8帖。大きな窓からは、浮かぶ雲と透き通った青空が見え、まるで空と大地が語りかけてくるようです。陽光は木の床に絵の具のように広がり、柔らかに包み込んでくれます。あたかも何かを知っているかのように、日々新たな色を加えていくこの空間は、あなたの想像力を刺激し、創造の舞台を提供します。
そして、静寂の中に響くのは、近くの都市公園から聞こえるさわやかな風の音。そっと窓を開けると、春の訪れを告げる花の香りが部屋中に広がります。それはまるで、自然があなたに語りかけているかのよう。都会の中にありながら、心の安らぎを感じられる特別な瞬間がここにはあります。
メインステージ三田アーバンスクエア 4階 22.58㎡には、現代的な設備も整っています。TVモニターホンで訪問者を事前に確認し、オートロックで安全な生活が守られます。また、宅配ボックスや駐輪場、バイク置場を完備し、煩わしさから解放してくれるのです。生活の道具となる設備が、まるで優雅な舞踏のパートナーのように、あなたをサポートします。
この場所は、三田駅から徒歩4分という立地に位置し、洗練された生活を送りながらも、街歩きや文化体験を楽しむことができる理想的な環境です。周囲には、伝統的な和の美しさを感じる神社や、現代アートを愉しむことができるギャラリーが点在し、日常が文化的な豊かさに包まれています。
メインステージ三田アーバンスクエア 4階 22.58㎡では、朝のコーヒーを香ばしい香りで迎え、夜には穏やかな光に包まれた空間で心安らぐひとときを過ごすことができます。あなたの生活の一部が、美しいストーリーへと変わり、日々の瞬間が特別な思い出に刻まれていくでしょう。
この物件はただの住まいではありません。生活そのものがアートであり、あなた自身がその一部となるのです。メインステージ三田アーバンスクエア 4階 22.58㎡で、心の豊かさと共に歩む日々を始めてみませんか。あなたを迎える準備は、すでに整っています。
扉を開くと、まず感じるのは温かみのある日差しが差し込む洋室6.8帖。大きな窓からは、浮かぶ雲と透き通った青空が見え、まるで空と大地…メインステージ三田アーバンスクエア 4階 22.58㎡は、まるで静かな絵画の中に佇む一輪の花のように、都心の喧騒を忘れさせる特別な場所です。このアパートメントは、港区芝の豊かな歴史と文化を背景に持ち、あなたの日常を優雅な映画のワンシーンへと変えてくれることでしょう。
扉を開くと、まず感じるのは温かみのある日差しが差し込む洋室6.8帖。大きな窓からは、浮かぶ雲と透き通った青空が見え、まるで空と大地が語りかけてくるようです。陽光は木の床に絵の具のように広がり、柔らかに包み込んでくれます。あたかも何かを知っているかのように、日々新たな色を加えていくこの空間は、あなたの想像力を刺激し、創造の舞台を提供します。
そして、静寂の中に響くのは、近くの都市公園から聞こえるさわやかな風の音。そっと窓を開けると、春の訪れを告げる花の香りが部屋中に広がります。それはまるで、自然があなたに語りかけているかのよう。都会の中にありながら、心の安らぎを感じられる特別な瞬間がここにはあります。
メインステージ三田アーバンスクエア 4階 22.58㎡には、現代的な設備も整っています。TVモニターホンで訪問者を事前に確認し、オートロックで安全な生活が守られます。また、宅配ボックスや駐輪場、バイク置場を完備し、煩わしさから解放してくれるのです。生活の道具となる設備が、まるで優雅な舞踏のパートナーのように、あなたをサポートします。
この場所は、三田駅から徒歩4分という立地に位置し、洗練された生活を送りながらも、街歩きや文化体験を楽しむことができる理想的な環境です。周囲には、伝統的な和の美しさを感じる神社や、現代アートを愉しむことができるギャラリーが点在し、日常が文化的な豊かさに包まれています。
メインステージ三田アーバンスクエア 4階 22.58㎡では、朝のコーヒーを香ばしい香りで迎え、夜には穏やかな光に包まれた空間で心安らぐひとときを過ごすことができます。あなたの生活の一部が、美しいストーリーへと変わり、日々の瞬間が特別な思い出に刻まれていくでしょう。
この物件はただの住まいではありません。生活そのものがアートであり、あなた自身がその一部となるのです。メインステージ三田アーバンスクエア 4階 22.58㎡で、心の豊かさと共に歩む日々を始めてみませんか。あなたを迎える準備は、すでに整っています。
写真
契約条件
| 賃料 | 予想金額:95,000〜115,000円程度 | 管理費 | 予想金額:6,000〜10,000円程度 |
| 礼金 | 非公開(アーカイブ) | 敷金 | 非公開(アーカイブ) |
| フリーレント | なし | 平米数 | 22.58㎡ |
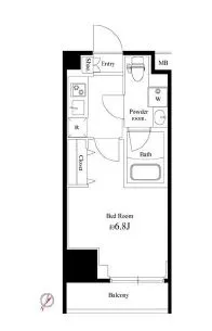
| 間取り | 1K | 大型収納 | なし |
| 契約期間 | 2年間 | 方角 | |
| 更新料 | 1ヶ月 | 契約形態 | 普通賃貸借契約 |
| 取引態様 | 媒介 | 内見状況 | 入居中 |
| 入居時期 | 入居中 | SOHO・事務所 | SOHO不可 |
| ペット | ペット飼育不可 | 間取り内訳 | 洋室6.8帖 |
| キャンペーン情報・備考 | 本情報は賃料改定交渉の資料作成、収益物件の利回り試算、周辺エリアや最寄り駅の坪単価分析、次回募集開始時期の予測などにご活用いただけます。 | ||
※「どの不動産に頼めばいいのか分からない」「信頼できる営業マンの話を聞きたい」「一番親切な会社と契約したい」とお悩みの方におすすめなのが「高級賃貸バイブル」です。
高級賃貸バイブルは業界10年以上の熟練スタッフ群がお客様ファーストで対応します。
下記ボタンから、まずは無料でご相談下さい。
※内覧をご希望の際には、どうぞ物件のエントランス前にてお待ち合わせくださいませ。ご内覧後は、同じ場所でお別れとさせていただきます。お客様のご都合に合わせたスムーズなご案内を心がけておりますので、ご質問等がございましたら何なりとお申し付けください。 物件概要
| 物件名 |
| 築年月 |
|
|---|---|---|---|
| 所在地 | |||
| 交通 | |||
| 総戸数 |
| 総階数 |
|
| 構造 |
| ||
地図
物件までの道のりは、「拡大地図を表示」をクリックしてナビ機能をご利用ください。
部屋設備







建物設備

TVモニターホン

エレベーター

オートロック

バイク置場

宅配ボックス

敷地内ゴミ置場

駐車場平置き

駐輪場
メインステージ三田アーバンスクエアの現在募集中のお部屋
- No rooms found for this property.




















