
| 賃料 | 予想金額:111,000〜131,000円程度 | 管理費 | 予想金額:10,000〜14,000円程度 |
| 礼金/敷金 | 非公開(アーカイブ) | 平米数 | 28.26㎡ |
| 初期費用概算(参考) | 目安:362,000〜462,000 円 | みなし賃料(月額・参考) | 129,063〜149,063 円 |
| 備考 | 本ページは過去募集のアーカイブです。表示の金額は周辺相場・過去募集を踏まえた参考レンジであり、実際の契約金額・条件ではありません。 | ||
※上記みなし賃料(月額)は仲介手数料割引・無料&キャッシュバックを加味した高級賃貸バイブル限定の金額です。一般的なみなし賃料とは異なります。
【建物ページ】プライマル新宿若松町の詳細・最新空室はこちら▶▶選ばれる理由
仲介手数料無料・キャンペーン情報(毎月15名様限定)
〇仲介手数料割引キャンペーン
プライマル新宿若松町 909の口コミ・レビュー
プライマル新宿若松町 909。ここはただの空間ではなく、心を震わせる物語の舞台です。あなたがこの特別な場所の扉を開けると、そこには新しい生活が待っています。南向きの窓からは、優しい日差しが舞い込み、穏やかな光に包まれる瞬間をお楽しみいただけます。あなたの手でこの部屋に、どのような彩りを加えるかは、まるで絵筆を持った画家のような楽しさがあります。
このプライマル新宿若松町 909は、28.26㎡の…プライマル新宿若松町 909。ここはただの空間ではなく、心を震わせる物語の舞台です。あなたがこの特別な場所の扉を開けると、そこには新しい生活が待っています。南向きの窓からは、優しい日差しが舞い込み、穏やかな光に包まれる瞬間をお楽しみいただけます。あなたの手でこの部屋に、どのような彩りを加えるかは、まるで絵筆を持った画家のような楽しさがあります。
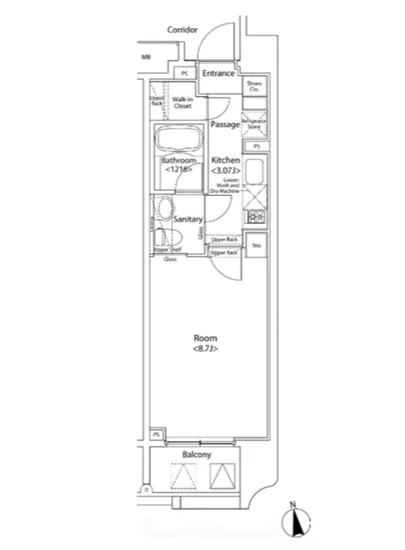
このプライマル新宿若松町 909は、28.26㎡の広さを持つ1Kの間取りが、あなたの個性を引き立てる場となります。洋室は8.7帖、そして小さなキッチンは3.07帖。このコンパクトさがもたらす自由は、まるで小さな宝箱のようで、何を詰め込み、どのように使おうかと想像を掻き立てます。朝のキッチンで目覚ましのコーヒーを淹れる音、フライパンで sizzling と焼く音、また、夜の静けさの中、食卓で味わう夕食の余韻が、まるで映画のワンシーンのように心に残ります。
エレガントなデザインが施された部屋の中で、TVモニターホンのひんやりとした手触りが、安心感をもたらし、オートロックの堅固な守りがあなたのプライバシーをしっかり守ります。宅配ボックスからは、美味しい食材や贈り物を受け取る時のワクワク感が、さらにこの空間を特別なものにしてくれます。敷地内のゴミ置場や駐輪場も完備され、日常の雑事がもたらすストレスから解放されることで、あなたの生活がより豊かに彩られることでしょう。
このプライマル新宿若松町 909の魅力は、単に住まいとしての機能だけではありません。それは、周辺の歴史と文化、そしてアートとの調和とも密接に結び付きます。新宿エリアには、かつての日本の文化と現代の洗練が交差する場所が数多く存在し、あなたの生活の一部として息づくでしょう。おしゃれなカフェでのひと時や、アートギャラリーで感じるインスピレーションが、毎日の暮らしに彩を加えてくれます。
まるでこの場所が、静かにあなたを迎え入れるように、プライマル新宿若松町 909はあなたに特別な日々を約束します。新たな出会いや発見が待ち受けるこの場所で、あなたの物語を描き始めてみてはいかがでしょうか。これはただの住まいではなく、人生の素敵な舞台なのです。あなたがこの特別な空間にいる限り、毎日が映画のような感動的なシーンに満ち溢れることでしょう。
このプライマル新宿若松町 909は、28.26㎡の…プライマル新宿若松町 909。ここはただの空間ではなく、心を震わせる物語の舞台です。あなたがこの特別な場所の扉を開けると、そこには新しい生活が待っています。南向きの窓からは、優しい日差しが舞い込み、穏やかな光に包まれる瞬間をお楽しみいただけます。あなたの手でこの部屋に、どのような彩りを加えるかは、まるで絵筆を持った画家のような楽しさがあります。
このプライマル新宿若松町 909は、28.26㎡の広さを持つ1Kの間取りが、あなたの個性を引き立てる場となります。洋室は8.7帖、そして小さなキッチンは3.07帖。このコンパクトさがもたらす自由は、まるで小さな宝箱のようで、何を詰め込み、どのように使おうかと想像を掻き立てます。朝のキッチンで目覚ましのコーヒーを淹れる音、フライパンで sizzling と焼く音、また、夜の静けさの中、食卓で味わう夕食の余韻が、まるで映画のワンシーンのように心に残ります。
エレガントなデザインが施された部屋の中で、TVモニターホンのひんやりとした手触りが、安心感をもたらし、オートロックの堅固な守りがあなたのプライバシーをしっかり守ります。宅配ボックスからは、美味しい食材や贈り物を受け取る時のワクワク感が、さらにこの空間を特別なものにしてくれます。敷地内のゴミ置場や駐輪場も完備され、日常の雑事がもたらすストレスから解放されることで、あなたの生活がより豊かに彩られることでしょう。
このプライマル新宿若松町 909の魅力は、単に住まいとしての機能だけではありません。それは、周辺の歴史と文化、そしてアートとの調和とも密接に結び付きます。新宿エリアには、かつての日本の文化と現代の洗練が交差する場所が数多く存在し、あなたの生活の一部として息づくでしょう。おしゃれなカフェでのひと時や、アートギャラリーで感じるインスピレーションが、毎日の暮らしに彩を加えてくれます。
まるでこの場所が、静かにあなたを迎え入れるように、プライマル新宿若松町 909はあなたに特別な日々を約束します。新たな出会いや発見が待ち受けるこの場所で、あなたの物語を描き始めてみてはいかがでしょうか。これはただの住まいではなく、人生の素敵な舞台なのです。あなたがこの特別な空間にいる限り、毎日が映画のような感動的なシーンに満ち溢れることでしょう。
バイブルスコア
バイブルスコア: 19.2
高級な物件でない場合は割高な物件です。。
※バイブルスコア詳細はこちら
バイブルスコアとは独自のAI機械学習技術を利用した物件評価システムで、物件のおすすめ度を示します。最高得点は100点で、スコアが高いほど、よりおすすめの物件と評価されています。
写真
契約条件
| 賃料 | 予想金額:111,000〜131,000円程度 | 管理費 | 予想金額:10,000〜14,000円程度 |
| 礼金 | 非公開(アーカイブ) | 敷金 | 非公開(アーカイブ) |
| フリーレント | なし | 平米数 | 28.26㎡ |
| 間取り | 1K | 大型収納 | WIC |
| 契約期間 |
| 方角 | 南 |
| 更新料 | 契約形態 | 普通賃貸借契約 | |
| 取引態様 | 媒介 | 内見状況 | 入居中 |
| 入居時期 | 入居中 | SOHO・事務所 | |
| ペット | 間取り内訳 | 洋:8.7 K:3.07 | |
| キャンペーン情報・備考 | 本情報は賃料改定交渉の資料作成、収益物件の利回り試算、周辺エリアや最寄り駅の坪単価分析、次回募集開始時期の予測などにご活用いただけます。 | ||
※「どの不動産に頼めばいいのか分からない」「信頼できる営業マンの話を聞きたい」「一番親切な会社と契約したい」とお悩みの方におすすめなのが「高級賃貸バイブル」です。
高級賃貸バイブルは業界10年以上の熟練スタッフ群がお客様ファーストで対応します。
下記ボタンから、まずは無料でご相談下さい。
※内覧をご希望の際には、どうぞ物件のエントランス前にてお待ち合わせくださいませ。ご内覧後は、同じ場所でお別れとさせていただきます。お客様のご都合に合わせたスムーズなご案内を心がけておりますので、ご質問等がございましたら何なりとお申し付けください。 物件概要
| 物件名 |
| 築年月 |
|
|---|---|---|---|
| 所在地 | |||
| 交通 | |||
| 総戸数 |
| 総階数 |
|
| 構造 |
| ||
地図
物件までの道のりは、「拡大地図を表示」をクリックしてナビ機能をご利用ください。
部屋設備
















建物設備

TVモニターホン

エレベーター

オートロック

宅配ボックス

敷地内ゴミ置場

管理人

駐車場平置き

駐車場機械式

駐輪場
プライマル新宿若松町の現在募集中のお部屋
- No rooms found for this property.





























