
| 賃料 | 予想金額:185,000〜205,000円程度 | 管理費 | 予想金額:8,000〜12,000円程度 |
| 礼金/敷金 | 非公開(アーカイブ) | 平米数 | 47.66㎡ |
| 初期費用概算(参考) | 目安:99,000〜199,000 円 | みなし賃料(月額・参考) | 194,042〜214,042 円 |
| 備考 | 本ページは過去募集のアーカイブです。表示の金額は周辺相場・過去募集を踏まえた参考レンジであり、実際の契約金額・条件ではありません。 | ||
※上記みなし賃料(月額)は仲介手数料割引・無料&キャッシュバックを加味した高級賃貸バイブル限定の金額です。一般的なみなし賃料とは異なります。
【建物ページ】カスタリア恵比寿の詳細・最新空室はこちら▶▶選ばれる理由
仲介手数料無料・キャンペーン情報(毎月15名様限定)
〇引っ越しお祝い金390000円プレゼント(キャッシュバック)
〇仲介手数料無料キャンペーン
カスタリア恵比寿 705の口コミ・レビュー
カスタリア恵比寿 705は、まるで夢の中の精霊のように、あなたの新しい生活を優雅に彩る特別な空間です。東京都渋谷区恵比寿3-15-6という、洗練された街の中心に身を寄せ、日々の喧騒を優しく包み込む南向きの窓からは、温かな陽光が降り注ぎます。47.66㎡の広さは、まるで静寂に包まれた舞台のように、あなたのデザイン次第で様々な物語を描くことができます。
カスタリア恵比寿 705の内部は、R=19.3…カスタリア恵比寿 705は、まるで夢の中の精霊のように、あなたの新しい生活を優雅に彩る特別な空間です。東京都渋谷区恵比寿3-15-6という、洗練された街の中心に身を寄せ、日々の喧騒を優しく包み込む南向きの窓からは、温かな陽光が降り注ぎます。47.66㎡の広さは、まるで静寂に包まれた舞台のように、あなたのデザイン次第で様々な物語を描くことができます。
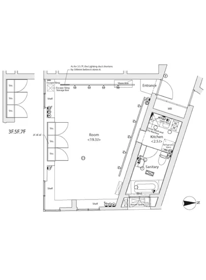
カスタリア恵比寿 705の内部は、R=19.3帖の間取りが生み出す自由な空間が広がり、あなたの想像力を掻き立てます。色とりどりの家具やアートを飾る余地が十分にあり、そこに住むあなた自身が、まるで貴族のように過ごすことができるのです。窓を開けると、爽やかな風が頬を撫で、街の匂いや音が心地よく響きます。近くに広がる恵比寿の街並みは、まるで映画のワンシーンのように、あなたの五感を刺激し、毎日を特別なものに変えてくれるでしょう。
そして、この物件にはモダンなデザインが施され、オートロックや宅配ボックスなどの便利な設備が整っています。エレガントなTVモニターホンは、日常の小さなスリルを提供し、あなたの居住空間をさらに特別なものにしてくれます。カスタリア恵比寿 705の各所には、デザイナーズならではの洗練された美が息づき、見る者の心を捉えます。
また、恵比寿という土地は、ただの居住地ではありません。豊かな歴史と文化に育まれたこの場所は、美術館やギャラリー、そして多彩なレストランが所狭しと並ぶ魅力あふれるスポットです。夕暮れに歩くと、街の灯りが星空のように輝き、人々の笑い声が響き渡ります。そんな情景を背景に、カスタリア恵比寿 705での生活は、まるであなた自身が主人公になったかのように、日々のストーリーを紡いでいくことでしょう。
カスタリア恵比寿 705は、ただの住処ではなく、あなたの人生の旅の出発点。ここでの生活は、毎日が新しい冒険の始まりなのです。心踊る毎日を踏み出して、かけがえのない日々を楽しんでください。その瞬間、あなたの生活がどれほど特別で豊かなものとなるか、ぜひ感じ取っていただきたいと思います。カスタリア恵比寿 705、この場所があなたを待っています。
カスタリア恵比寿 705の内部は、R=19.3…カスタリア恵比寿 705は、まるで夢の中の精霊のように、あなたの新しい生活を優雅に彩る特別な空間です。東京都渋谷区恵比寿3-15-6という、洗練された街の中心に身を寄せ、日々の喧騒を優しく包み込む南向きの窓からは、温かな陽光が降り注ぎます。47.66㎡の広さは、まるで静寂に包まれた舞台のように、あなたのデザイン次第で様々な物語を描くことができます。
カスタリア恵比寿 705の内部は、R=19.3帖の間取りが生み出す自由な空間が広がり、あなたの想像力を掻き立てます。色とりどりの家具やアートを飾る余地が十分にあり、そこに住むあなた自身が、まるで貴族のように過ごすことができるのです。窓を開けると、爽やかな風が頬を撫で、街の匂いや音が心地よく響きます。近くに広がる恵比寿の街並みは、まるで映画のワンシーンのように、あなたの五感を刺激し、毎日を特別なものに変えてくれるでしょう。
そして、この物件にはモダンなデザインが施され、オートロックや宅配ボックスなどの便利な設備が整っています。エレガントなTVモニターホンは、日常の小さなスリルを提供し、あなたの居住空間をさらに特別なものにしてくれます。カスタリア恵比寿 705の各所には、デザイナーズならではの洗練された美が息づき、見る者の心を捉えます。
また、恵比寿という土地は、ただの居住地ではありません。豊かな歴史と文化に育まれたこの場所は、美術館やギャラリー、そして多彩なレストランが所狭しと並ぶ魅力あふれるスポットです。夕暮れに歩くと、街の灯りが星空のように輝き、人々の笑い声が響き渡ります。そんな情景を背景に、カスタリア恵比寿 705での生活は、まるであなた自身が主人公になったかのように、日々のストーリーを紡いでいくことでしょう。
カスタリア恵比寿 705は、ただの住処ではなく、あなたの人生の旅の出発点。ここでの生活は、毎日が新しい冒険の始まりなのです。心踊る毎日を踏み出して、かけがえのない日々を楽しんでください。その瞬間、あなたの生活がどれほど特別で豊かなものとなるか、ぜひ感じ取っていただきたいと思います。カスタリア恵比寿 705、この場所があなたを待っています。
バイブルスコア
バイブルスコア: 27.3
平均的なスコアです。
※バイブルスコア詳細はこちら
バイブルスコアとは独自のAI機械学習技術を利用した物件評価システムで、物件のおすすめ度を示します。最高得点は100点で、スコアが高いほど、よりおすすめの物件と評価されています。
写真
契約条件
| 賃料 | 予想金額:185,000〜205,000円程度 | 管理費 | 予想金額:8,000〜12,000円程度 |
| 礼金 | 非公開(アーカイブ) | 敷金 | 非公開(アーカイブ) |
| フリーレント | なし | 平米数 | 47.66㎡ |
| 間取り | 1K | 大型収納 | |
| 契約期間 |
| 方角 | 南 |
| 更新料 | 契約形態 | 普通賃貸借契約 | |
| 取引態様 | 媒介 | 内見状況 | 入居中 |
| 入居時期 | 入居中 | SOHO・事務所 | |
| ペット | 間取り内訳 | R=19.3J | |
| キャンペーン情報・備考 | 本情報は賃料改定交渉の資料作成、収益物件の利回り試算、周辺エリアや最寄り駅の坪単価分析、次回募集開始時期の予測などにご活用いただけます。 | ||
※「どの不動産に頼めばいいのか分からない」「信頼できる営業マンの話を聞きたい」「一番親切な会社と契約したい」とお悩みの方におすすめなのが「高級賃貸バイブル」です。
高級賃貸バイブルは業界10年以上の熟練スタッフ群がお客様ファーストで対応します。
下記ボタンから、まずは無料でご相談下さい。
※内覧をご希望の際には、どうぞ物件のエントランス前にてお待ち合わせくださいませ。ご内覧後は、同じ場所でお別れとさせていただきます。お客様のご都合に合わせたスムーズなご案内を心がけておりますので、ご質問等がございましたら何なりとお申し付けください。 物件概要
| 物件名 |
| 築年月 |
|
|---|---|---|---|
| 所在地 | |||
| 交通 | |||
| 総戸数 |
| 総階数 |
|
| 構造 |
| ||
地図
物件までの道のりは、「拡大地図を表示」をクリックしてナビ機能をご利用ください。
部屋設備















建物設備

TVモニターホン

エレベーター

オートロック

宅配ボックス

敷地内ゴミ置場

駐車場機械式

駐輪場
カスタリア恵比寿の現在募集中のお部屋
- No rooms found for this property.




















