
| 賃料 | 予想金額:184,000〜204,000円程度 | 管理費 | 予想金額:8,000〜12,000円程度 |
| 礼金/敷金 | 非公開(アーカイブ) | 平米数 | 47.66㎡ |
| 初期費用概算(参考) | 目安:541,500〜641,500 円 | みなし賃料(月額・参考) | 202,281〜222,281 円 |
| 備考 | 本ページは過去募集のアーカイブです。表示の金額は周辺相場・過去募集を踏まえた参考レンジであり、実際の契約金額・条件ではありません。 | ||
※上記みなし賃料(月額)は仲介手数料割引・無料&キャッシュバックを加味した高級賃貸バイブル限定の金額です。一般的なみなし賃料とは異なります。
【建物ページ】カスタリア恵比寿の詳細・最新空室はこちら▶▶選ばれる理由
仲介手数料無料・キャンペーン情報(毎月15名様限定)
〇仲介手数料割引キャンペーン
カスタリア恵比寿 305の口コミ・レビュー
カスタリア恵比寿 305。ここは、都市の喧騒から解放された特別な場所。305号室という名は、まるでかけがえのない思い出の一ページのように、あなたの新しい生活の舞台を飾ります。広がる47.66㎡の空間には、19.3帖の心安らぐリビングが広がり、窓から注ぐ南向きの光が、朝の目覚めを柔らかく包み込みます。あなたがこの素晴らしいお部屋に足を踏み入れると、どこか慶びの微笑みを誘発させるような特別な香りが漂っ…カスタリア恵比寿 305。ここは、都市の喧騒から解放された特別な場所。305号室という名は、まるでかけがえのない思い出の一ページのように、あなたの新しい生活の舞台を飾ります。広がる47.66㎡の空間には、19.3帖の心安らぐリビングが広がり、窓から注ぐ南向きの光が、朝の目覚めを柔らかく包み込みます。あなたがこの素晴らしいお部屋に足を踏み入れると、どこか慶びの微笑みを誘発させるような特別な香りが漂ってきます。それは、貴族のように吟味された新鮮な木材の匂い、そして、洗練されたデザインが醸し出す清々しさです。
カスタリア恵比寿 305は、ただの住まいではありません。ここは、あなたの感性を刺激し、心を満たす場所なのです。優雅な空間設計とデザイナーズの魅力が融合したこの部屋は、まるで芸術作品のようにあなたを迎え入れます。エレベーターを降りると、静かに整えられた通路があなたを待っています。オートロックのセキュリティが施されたこの空間は、自分だけの秘密の隠れ家を提供し、外界からの平穏なシールドを形成します。
この素敵な家は、あなたの生活の一部として、まるで映画のワンシーンのような情景を描き出します。日差しが差し込むリビングで、朝のコーヒーを楽しむあなたの姿が浮かび上がります。手にしたマグカップからは、香ばしいコーヒーの香りが漂い、心地よい音楽が背景に流れる。窓を開ければ、微風が心地よく吹き抜け、遠くの街のざわめきがまるで楽器のように調和します。ここ、カスタリア恵比寿 305は、あなたにとっての舞台であり、日常の中に非日常を楽しむための隠れ家なのです。
恵比寿という地名は、歴史と文化が交錯する場所です。この地域で育まれた洗練された美意識や、個性的なアートシーンは、カスタリア恵比寿 305のインテリアにも随所に表れています。アートの息吹が感じられる周辺のカフェやギャラリーを巡る旅は、まさにあなたの心の豊かさを育むことになるでしょう。
そして、日々を彩るのは、住まうあなた自身です。カスタリア恵比寿 305での暮らしは、ただの生活ではなく、自己表現そのもの。あなたの選ぶ家具やインテリアによって、この空間は新たな顔を見せます。友人を招いた際の贅沢な晩餐会も、心温まるホームパーティーも、この場所では特別な思い出に変わることでしょう。
カスタリア恵比寿 305に住むということは、人生のクオリティを見直すこと。あなたの感性を大切にし、豊かな時間を過ごせる場所なのです。この素晴らしい空間で、日常の中の特別を見つけ、心に残るシーンを共に描いていきましょう。ここは、あなたの心の故郷です。新しい生活が、色とりどりの光景で満たされることを心より願っております。
カスタリア恵比寿 305は、ただの住まいではありません。ここは、あなたの感性を刺激し、心を満たす場所なのです。優雅な空間設計とデザイナーズの魅力が融合したこの部屋は、まるで芸術作品のようにあなたを迎え入れます。エレベーターを降りると、静かに整えられた通路があなたを待っています。オートロックのセキュリティが施されたこの空間は、自分だけの秘密の隠れ家を提供し、外界からの平穏なシールドを形成します。
この素敵な家は、あなたの生活の一部として、まるで映画のワンシーンのような情景を描き出します。日差しが差し込むリビングで、朝のコーヒーを楽しむあなたの姿が浮かび上がります。手にしたマグカップからは、香ばしいコーヒーの香りが漂い、心地よい音楽が背景に流れる。窓を開ければ、微風が心地よく吹き抜け、遠くの街のざわめきがまるで楽器のように調和します。ここ、カスタリア恵比寿 305は、あなたにとっての舞台であり、日常の中に非日常を楽しむための隠れ家なのです。
恵比寿という地名は、歴史と文化が交錯する場所です。この地域で育まれた洗練された美意識や、個性的なアートシーンは、カスタリア恵比寿 305のインテリアにも随所に表れています。アートの息吹が感じられる周辺のカフェやギャラリーを巡る旅は、まさにあなたの心の豊かさを育むことになるでしょう。
そして、日々を彩るのは、住まうあなた自身です。カスタリア恵比寿 305での暮らしは、ただの生活ではなく、自己表現そのもの。あなたの選ぶ家具やインテリアによって、この空間は新たな顔を見せます。友人を招いた際の贅沢な晩餐会も、心温まるホームパーティーも、この場所では特別な思い出に変わることでしょう。
カスタリア恵比寿 305に住むということは、人生のクオリティを見直すこと。あなたの感性を大切にし、豊かな時間を過ごせる場所なのです。この素晴らしい空間で、日常の中の特別を見つけ、心に残るシーンを共に描いていきましょう。ここは、あなたの心の故郷です。新しい生活が、色とりどりの光景で満たされることを心より願っております。
バイブルスコア
バイブルスコア: 28.1
平均的なスコアです。
※バイブルスコア詳細はこちら
バイブルスコアとは独自のAI機械学習技術を利用した物件評価システムで、物件のおすすめ度を示します。最高得点は100点で、スコアが高いほど、よりおすすめの物件と評価されています。
写真
契約条件
| 賃料 | 予想金額:184,000〜204,000円程度 | 管理費 | 予想金額:8,000〜12,000円程度 |
| 礼金 | 非公開(アーカイブ) | 敷金 | 非公開(アーカイブ) |
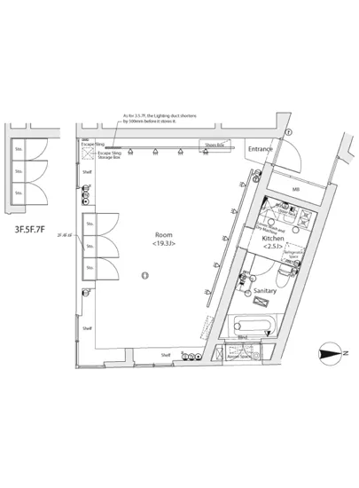
| フリーレント | なし | 平米数 | 47.66㎡ |
| 間取り | 1K | 大型収納 | |
| 契約期間 |
| 方角 | 南 |
| 更新料 | 契約形態 | 普通賃貸借契約 | |
| 取引態様 | 媒介 | 内見状況 | 入居中 |
| 入居時期 | 入居中 | SOHO・事務所 | |
| ペット | 間取り内訳 | R=19.3J | |
| キャンペーン情報・備考 | 本情報は賃料改定交渉の資料作成、収益物件の利回り試算、周辺エリアや最寄り駅の坪単価分析、次回募集開始時期の予測などにご活用いただけます。 | ||
※「どの不動産に頼めばいいのか分からない」「信頼できる営業マンの話を聞きたい」「一番親切な会社と契約したい」とお悩みの方におすすめなのが「高級賃貸バイブル」です。
高級賃貸バイブルは業界10年以上の熟練スタッフ群がお客様ファーストで対応します。
下記ボタンから、まずは無料でご相談下さい。
※内覧をご希望の際には、どうぞ物件のエントランス前にてお待ち合わせくださいませ。ご内覧後は、同じ場所でお別れとさせていただきます。お客様のご都合に合わせたスムーズなご案内を心がけておりますので、ご質問等がございましたら何なりとお申し付けください。 物件概要
| 物件名 |
| 築年月 |
|
|---|---|---|---|
| 所在地 | |||
| 交通 | |||
| 総戸数 |
| 総階数 |
|
| 構造 |
| ||
地図
物件までの道のりは、「拡大地図を表示」をクリックしてナビ機能をご利用ください。
部屋設備















建物設備

TVモニターホン

エレベーター

オートロック

宅配ボックス

敷地内ゴミ置場

駐車場機械式

駐輪場
カスタリア恵比寿の現在募集中のお部屋
- No rooms found for this property.




















