
| 賃料 | 予想金額:270,000〜290,000円程度 | 管理費 | 予想金額:8,000〜12,000円程度 |
| 礼金/敷金 | 非公開(アーカイブ) | 平米数 | 84.79㎡ |
| 初期費用概算(参考) | 目安:1,036,500〜1,136,500 円 | みなし賃料(月額・参考) | 296,802〜316,802 円 |
| 備考 | 本ページは過去募集のアーカイブです。表示の金額は周辺相場・過去募集を踏まえた参考レンジであり、実際の契約金額・条件ではありません。 | ||
※上記みなし賃料(月額)は仲介手数料割引・無料&キャッシュバックを加味した高級賃貸バイブル限定の金額です。一般的なみなし賃料とは異なります。
【建物ページ】NTPRレジデンス芝浦の詳細・最新空室はこちら▶▶選ばれる理由
仲介手数料無料・キャンペーン情報(毎月15名様限定)
〇仲介手数料割引キャンペーン
NTPRレジデンス芝浦 901の口コミ・レビュー
NTPRレジデンス芝浦 901。この名は、東京の洗練された街並みの中にひっそりと佇む、まるで夢の中の邸宅のような存在です。あなたがこの物件の扉を開けたとき、そこには新たな物語が待っています。84.79㎡の広大な空間は、まるで自由に羽ばたくことができる鳥のように、心を解放してくれることでしょう。
9階に位置するNTPRレジデンス芝浦 901は、朝日が優しく差し込む東向きの窓から始まる、新しい一日の…NTPRレジデンス芝浦 901。この名は、東京の洗練された街並みの中にひっそりと佇む、まるで夢の中の邸宅のような存在です。あなたがこの物件の扉を開けたとき、そこには新たな物語が待っています。84.79㎡の広大な空間は、まるで自由に羽ばたくことができる鳥のように、心を解放してくれることでしょう。
9階に位置するNTPRレジデンス芝浦 901は、朝日が優しく差し込む東向きの窓から始まる、新しい一日の幕開けをお約束します。窓の外には、青い空と共に墨田川の流れが広がり、耳をすませば鳥のさえずりが心地よいBGMとなって響いてきます。この場所で、あなたは都会の喧騒から解放され、静けさと贅沢を同時に楽しむことができるのです。
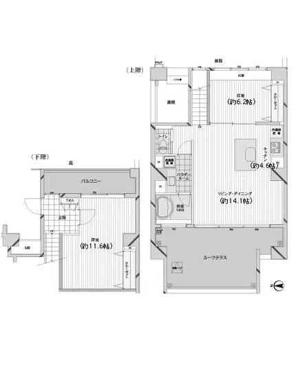
お部屋に足を踏み入れれば、まず気がつくのは広々としたLDK14.1帖の開放感。美しいデザインの内装は、洗練されたモダンな雰囲気を漂わせ、まるで上級なアートギャラリーにいるかのようです。ここには、友人を招いてのディナー、家族との団らん、素敵なひとときを彩るための無限の可能性が広がっています。窓から注がれる柔らかい光が、テーブルに並んだ美味しい料理を一層引き立て、心に残る思い出を築いていくことでしょう。
次に目を引くのは、洋室11.6帖と洋室6.2帖。それぞれの部屋は、異なる個性を持った空間として、あなたの創造力を刺激します。洋室11.6帖では、ひとりの時間をゆったりと楽しみ、書斎や趣味の部屋としての役割を果たすことでしょう。その隣の洋室6.2帖は、心温まるゲストルームとして、お友達や大切な人を迎えるための特別な場所となります。どちらの部屋も、あなた自身を映し出す鏡のように、心地よい安らぎを感じさせてくれます。
NTPRレジデンス芝浦 901には、快適さを追求した設備が整っており、オートロックや宅配ボックス、エレベーターなど、便利さを提供します。毎日の暮らしをより豊かにするための細やかな配慮が、あなたの生活をサポートしてくれることでしょう。敷地内にはゴミ置場や駐輪場も完備され、ストレスのない生活が実現します。
周辺には歴史的な名所や文化的なスポットが点在し、散策するだけで新しい発見が待っています。東京タワーの美しいシルエットを望む道を歩けば、心が躍る瞬間が広がります。NTPRレジデンス芝浦 901は、その立地により、都会の喧騒と自然の静けさを絶妙に融合させているのです。
NTPRレジデンス芝浦 901での生活は、日常の中に非日常を感じさせ、まるで映画のワンシーンのような特別な体験をもたらします。ここでのひとときが、あなたの人生に美しい絵画のようなストーリーを描くことになるでしょう。さあ、新たな物語の主人公となる準備はできましたか?
9階に位置するNTPRレジデンス芝浦 901は、朝日が優しく差し込む東向きの窓から始まる、新しい一日の…NTPRレジデンス芝浦 901。この名は、東京の洗練された街並みの中にひっそりと佇む、まるで夢の中の邸宅のような存在です。あなたがこの物件の扉を開けたとき、そこには新たな物語が待っています。84.79㎡の広大な空間は、まるで自由に羽ばたくことができる鳥のように、心を解放してくれることでしょう。
9階に位置するNTPRレジデンス芝浦 901は、朝日が優しく差し込む東向きの窓から始まる、新しい一日の幕開けをお約束します。窓の外には、青い空と共に墨田川の流れが広がり、耳をすませば鳥のさえずりが心地よいBGMとなって響いてきます。この場所で、あなたは都会の喧騒から解放され、静けさと贅沢を同時に楽しむことができるのです。
お部屋に足を踏み入れれば、まず気がつくのは広々としたLDK14.1帖の開放感。美しいデザインの内装は、洗練されたモダンな雰囲気を漂わせ、まるで上級なアートギャラリーにいるかのようです。ここには、友人を招いてのディナー、家族との団らん、素敵なひとときを彩るための無限の可能性が広がっています。窓から注がれる柔らかい光が、テーブルに並んだ美味しい料理を一層引き立て、心に残る思い出を築いていくことでしょう。
次に目を引くのは、洋室11.6帖と洋室6.2帖。それぞれの部屋は、異なる個性を持った空間として、あなたの創造力を刺激します。洋室11.6帖では、ひとりの時間をゆったりと楽しみ、書斎や趣味の部屋としての役割を果たすことでしょう。その隣の洋室6.2帖は、心温まるゲストルームとして、お友達や大切な人を迎えるための特別な場所となります。どちらの部屋も、あなた自身を映し出す鏡のように、心地よい安らぎを感じさせてくれます。
NTPRレジデンス芝浦 901には、快適さを追求した設備が整っており、オートロックや宅配ボックス、エレベーターなど、便利さを提供します。毎日の暮らしをより豊かにするための細やかな配慮が、あなたの生活をサポートしてくれることでしょう。敷地内にはゴミ置場や駐輪場も完備され、ストレスのない生活が実現します。
周辺には歴史的な名所や文化的なスポットが点在し、散策するだけで新しい発見が待っています。東京タワーの美しいシルエットを望む道を歩けば、心が躍る瞬間が広がります。NTPRレジデンス芝浦 901は、その立地により、都会の喧騒と自然の静けさを絶妙に融合させているのです。
NTPRレジデンス芝浦 901での生活は、日常の中に非日常を感じさせ、まるで映画のワンシーンのような特別な体験をもたらします。ここでのひとときが、あなたの人生に美しい絵画のようなストーリーを描くことになるでしょう。さあ、新たな物語の主人公となる準備はできましたか?
バイブルスコア
バイブルスコア: 35.9
平均的なスコアです。
※バイブルスコア詳細はこちら
バイブルスコアとは独自のAI機械学習技術を利用した物件評価システムで、物件のおすすめ度を示します。最高得点は100点で、スコアが高いほど、よりおすすめの物件と評価されています。
写真
契約条件
| 賃料 | 予想金額:270,000〜290,000円程度 | 管理費 | 予想金額:8,000〜12,000円程度 |
| 礼金 | 非公開(アーカイブ) | 敷金 | 非公開(アーカイブ) |
| フリーレント | なし | 平米数 | 84.79㎡ |
| 間取り | 2LDK | 大型収納 | |
| 契約期間 |
| 方角 | 東 |
| 更新料 | 契約形態 | 普通賃貸借契約 | |
| 取引態様 | 媒介 | 内見状況 | 入居中 |
| 入居時期 | 入居中 | SOHO・事務所 | |
| ペット | 間取り内訳 | 洋室11.6 洋室6.2 LDK14.1 | |
| キャンペーン情報・備考 | 本情報は賃料改定交渉の資料作成、収益物件の利回り試算、周辺エリアや最寄り駅の坪単価分析、次回募集開始時期の予測などにご活用いただけます。 | ||
※「どの不動産に頼めばいいのか分からない」「信頼できる営業マンの話を聞きたい」「一番親切な会社と契約したい」とお悩みの方におすすめなのが「高級賃貸バイブル」です。
高級賃貸バイブルは業界10年以上の熟練スタッフ群がお客様ファーストで対応します。
下記ボタンから、まずは無料でご相談下さい。
※内覧をご希望の際には、どうぞ物件のエントランス前にてお待ち合わせくださいませ。ご内覧後は、同じ場所でお別れとさせていただきます。お客様のご都合に合わせたスムーズなご案内を心がけておりますので、ご質問等がございましたら何なりとお申し付けください。 物件概要
| 物件名 |
| 築年月 |
|
|---|---|---|---|
| 所在地 | |||
| 交通 | |||
| 総戸数 |
| 総階数 |
|
| 構造 |
| ||
地図
物件までの道のりは、「拡大地図を表示」をクリックしてナビ機能をご利用ください。
部屋設備

















建物設備

TVモニターホン

エレベーター

オートロック

宅配ボックス

敷地内ゴミ置場

駐輪場
NTPRレジデンス芝浦の現在募集中のお部屋
- No rooms found for this property.




























