
| 賃料 | 予想金額:162,000〜182,000円程度 | 管理費 | 予想金額:5,000〜9,000円程度 |
| 礼金/敷金 | 非公開(アーカイブ) | 平米数 | 50.6㎡ |
| 初期費用概算(参考) | 目安:654,000〜754,000 円 | みなし賃料(月額・参考) | 180,083〜200,083 円 |
| 備考 | 本ページは過去募集のアーカイブです。表示の金額は周辺相場・過去募集を踏まえた参考レンジであり、実際の契約金額・条件ではありません。 | ||
※上記みなし賃料(月額)は仲介手数料割引・無料&キャッシュバックを加味した高級賃貸バイブル限定の金額です。一般的なみなし賃料とは異なります。
【建物ページ】コスモリード新宿余丁町の詳細・最新空室はこちら▶▶選ばれる理由
仲介手数料無料・キャンペーン情報(毎月15名様限定)
〇仲介手数料割引キャンペーン
コスモリード新宿余丁町 501の口コミ・レビュー
コスモリード新宿余丁町 501は、東京都新宿区余丁町の静謐な環境に佇む、まるで都市のオアシスのような高級賃貸物件です。501号室の扉を開けるその瞬間、あなたはまるで映画の主人公のように、この空間が待ちわびていた特別な物語の一部であることを実感することでしょう。
陽光が優しく降り注ぐ南東の方向を迎え、あなたを包み込むのは、温かみのある木の香りと、柔らかな光が照らす広々としたLDK10.4帖。この空…コスモリード新宿余丁町 501は、東京都新宿区余丁町の静謐な環境に佇む、まるで都市のオアシスのような高級賃貸物件です。501号室の扉を開けるその瞬間、あなたはまるで映画の主人公のように、この空間が待ちわびていた特別な物語の一部であることを実感することでしょう。
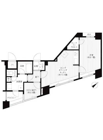
陽光が優しく降り注ぐ南東の方向を迎え、あなたを包み込むのは、温かみのある木の香りと、柔らかな光が照らす広々としたLDK10.4帖。この空間は、ただの居住空間ではなく、心の余裕をもたらすサンクチュアリです。友人と笑顔を交わしながら、香ばしいコーヒーの香りが漂うキッチンで、食卓を囲むことを思い描いてみてください。ここでの時間は、まるで優雅なカフェで過ごすひとときのように、心を満たしてくれることでしょう。
隣接する洋室8.1帖は、落ち着いた雰囲気をお届けします。大きな窓から差し込む光が、静寂の中で優雅な舞を踊る様は、まるで心の中の芸術が形を持つ瞬間です。あなたの特別なプライベートスペースとして、ここでは自分自身を再発見し、過去の思い出に浸ることができるでしょう。また、DEN2.8帖は、あなたのクリエイティブなアイデアを形にするための小部屋として、または穏やかな瞑想の時間をもたらすための隠れ家として機能します。
コスモリード新宿余丁町 501は、ただの住まいではありません。24時間管理された安心感、オートロックされたエントランス、デザインにこだわった内装は、まるで貴族の城のような洗練された空間を提供します。宅配ボックスや駐輪場、バイク置場などの最新の設備も整い、日常生活の利便性を高めています。心地よい管理人の存在が、あなたの日常にさらなる温もりを添えることでしょう。
この物件は、都市の喧騒を離れながらも、便利な立地にあります。都営地下鉄大江戸線若松河田駅まで徒歩6分の距離は、日々の移動をスムーズにし、東京の4つの季節の美しさを存分に堪能できるでしょう。周囲には歴史的な文化が息づくエリアが広がり、散歩をするたびに異なる風景と出会い、心を豊かにすることでしょう。
コスモリード新宿余丁町 501での生活は、単なる日常を超え、あなたの人生の新たな章を切り開くための舞台です。親しみやすい街に囲まれながら、静けさと優雅さを兼ね備えた空間で、あなたの物語を紡いでみてはいかがでしょうか。生活するたびに心躍るような経験が溢れ出し、ここでの毎日が、かけがえのない感動的な瞬間となることでしょう。あなたを待っている、特別な場所が、ここにあるのです。
陽光が優しく降り注ぐ南東の方向を迎え、あなたを包み込むのは、温かみのある木の香りと、柔らかな光が照らす広々としたLDK10.4帖。この空…コスモリード新宿余丁町 501は、東京都新宿区余丁町の静謐な環境に佇む、まるで都市のオアシスのような高級賃貸物件です。501号室の扉を開けるその瞬間、あなたはまるで映画の主人公のように、この空間が待ちわびていた特別な物語の一部であることを実感することでしょう。
陽光が優しく降り注ぐ南東の方向を迎え、あなたを包み込むのは、温かみのある木の香りと、柔らかな光が照らす広々としたLDK10.4帖。この空間は、ただの居住空間ではなく、心の余裕をもたらすサンクチュアリです。友人と笑顔を交わしながら、香ばしいコーヒーの香りが漂うキッチンで、食卓を囲むことを思い描いてみてください。ここでの時間は、まるで優雅なカフェで過ごすひとときのように、心を満たしてくれることでしょう。
隣接する洋室8.1帖は、落ち着いた雰囲気をお届けします。大きな窓から差し込む光が、静寂の中で優雅な舞を踊る様は、まるで心の中の芸術が形を持つ瞬間です。あなたの特別なプライベートスペースとして、ここでは自分自身を再発見し、過去の思い出に浸ることができるでしょう。また、DEN2.8帖は、あなたのクリエイティブなアイデアを形にするための小部屋として、または穏やかな瞑想の時間をもたらすための隠れ家として機能します。
コスモリード新宿余丁町 501は、ただの住まいではありません。24時間管理された安心感、オートロックされたエントランス、デザインにこだわった内装は、まるで貴族の城のような洗練された空間を提供します。宅配ボックスや駐輪場、バイク置場などの最新の設備も整い、日常生活の利便性を高めています。心地よい管理人の存在が、あなたの日常にさらなる温もりを添えることでしょう。
この物件は、都市の喧騒を離れながらも、便利な立地にあります。都営地下鉄大江戸線若松河田駅まで徒歩6分の距離は、日々の移動をスムーズにし、東京の4つの季節の美しさを存分に堪能できるでしょう。周囲には歴史的な文化が息づくエリアが広がり、散歩をするたびに異なる風景と出会い、心を豊かにすることでしょう。
コスモリード新宿余丁町 501での生活は、単なる日常を超え、あなたの人生の新たな章を切り開くための舞台です。親しみやすい街に囲まれながら、静けさと優雅さを兼ね備えた空間で、あなたの物語を紡いでみてはいかがでしょうか。生活するたびに心躍るような経験が溢れ出し、ここでの毎日が、かけがえのない感動的な瞬間となることでしょう。あなたを待っている、特別な場所が、ここにあるのです。
バイブルスコア
バイブルスコア: 26.9
平均的なスコアです。
※バイブルスコア詳細はこちら
バイブルスコアとは独自のAI機械学習技術を利用した物件評価システムで、物件のおすすめ度を示します。最高得点は100点で、スコアが高いほど、よりおすすめの物件と評価されています。
写真
契約条件
| 賃料 | 予想金額:162,000〜182,000円程度 | 管理費 | 予想金額:5,000〜9,000円程度 |
| 礼金 | 非公開(アーカイブ) | 敷金 | 非公開(アーカイブ) |
| フリーレント | なし | 平米数 | 50.6㎡ |
| 間取り | 2LDK | 大型収納 | WIC+DEN |
| 契約期間 |
| 方角 | 南東 |
| 更新料 | 契約形態 | 普通賃貸借契約 | |
| 取引態様 | 媒介 | 内見状況 | 入居中 |
| 入居時期 | 入居中 | SOHO・事務所 | |
| ペット | 間取り内訳 | 洋:8.1 DEN:2.8 LDK:10.4 | |
| キャンペーン情報・備考 | 本情報は賃料改定交渉の資料作成、収益物件の利回り試算、周辺エリアや最寄り駅の坪単価分析、次回募集開始時期の予測などにご活用いただけます。 | ||
※「どの不動産に頼めばいいのか分からない」「信頼できる営業マンの話を聞きたい」「一番親切な会社と契約したい」とお悩みの方におすすめなのが「高級賃貸バイブル」です。
高級賃貸バイブルは業界10年以上の熟練スタッフ群がお客様ファーストで対応します。
下記ボタンから、まずは無料でご相談下さい。
※内覧をご希望の際には、どうぞ物件のエントランス前にてお待ち合わせくださいませ。ご内覧後は、同じ場所でお別れとさせていただきます。お客様のご都合に合わせたスムーズなご案内を心がけておりますので、ご質問等がございましたら何なりとお申し付けください。 物件概要
| 物件名 |
| 築年月 |
|
|---|---|---|---|
| 所在地 | |||
| 交通 | |||
| 総戸数 |
| 総階数 |
|
| 構造 |
| ||
地図
物件までの道のりは、「拡大地図を表示」をクリックしてナビ機能をご利用ください。
部屋設備

















建物設備

24時間管理

TVモニターホン

エレベーター

オートロック

バイク置場

宅配ボックス

敷地内ゴミ置場

管理人

駐輪場
コスモリード新宿余丁町の現在募集中のお部屋
- コスモリード新宿余丁町 309 - 間取り: 1LDK - 賃料: 23.3万円
- コスモリード新宿余丁町 210 - 間取り: 1LDK - 賃料: 17.3万円
- コスモリード新宿余丁町 506 - 間取り: 1LDK+WIC - 賃料: 16.8万円
- コスモリード新宿余丁町 302 - 間取り: 1DK - 賃料: 17万円
- コスモリード新宿余丁町 403 - 間取り: 1LDK - 賃料: 22.3万円


















