
| 賃料 | 予想金額:178,000〜198,000円程度 | 管理費 | 予想金額:10,000〜14,000円程度 |
| 礼金/敷金 | 非公開(アーカイブ) | 平米数 | 56.47㎡ |
| 初期費用概算(参考) | 目安:717,500〜817,500 円 | みなし賃料(月額・参考) | 202,073〜222,073 円 |
| 備考 | 本ページは過去募集のアーカイブです。表示の金額は周辺相場・過去募集を踏まえた参考レンジであり、実際の契約金額・条件ではありません。 | ||
※上記みなし賃料(月額)は仲介手数料割引・無料&キャッシュバックを加味した高級賃貸バイブル限定の金額です。一般的なみなし賃料とは異なります。
【建物ページ】ベラカーサ秋葉原の詳細・最新空室はこちら▶▶選ばれる理由
仲介手数料無料・キャンペーン情報(毎月15名様限定)
〇仲介手数料割引キャンペーン
ベラカーサ秋葉原 604の口コミ・レビュー
ベラカーサ秋葉原 604。この名前を聞くと、まるで都会の真ん中に立つ宝石のような佇まいを想像してください。東京都千代田区神田佐久間町4-1に位置し、南向きの窓からは穏やかな陽光が注ぎ込むこの物件は、あなたの憧れの生活空間として、心の奥深くに響く存在となるでしょう。
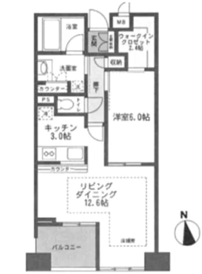
エレガントにデザインされたこの部屋は、専有面積56.47㎡という広さを持ちながらも、まるでアートのように計算された間取りが随所に施さ…ベラカーサ秋葉原 604。この名前を聞くと、まるで都会の真ん中に立つ宝石のような佇まいを想像してください。東京都千代田区神田佐久間町4-1に位置し、南向きの窓からは穏やかな陽光が注ぎ込むこの物件は、あなたの憧れの生活空間として、心の奥深くに響く存在となるでしょう。
エレガントにデザインされたこの部屋は、専有面積56.47㎡という広さを持ちながらも、まるでアートのように計算された間取りが随所に施されています。洋室6帖、リビングダイニングは12.6帖、そしてキッチンは3帖という絶妙なバランスの中で、あなたの人生を豊かに彩る幸福な瞬間が待ち受けています。まるで新しい映画のワンシーンが始まるかのように、私たちの心をトキメキで満たしてくれるでしょう。
ベラカーサ秋葉原 604の扉を開けた瞬間、洗練された空間が広がります。足元に広がるフローリングは、滑らかな触感を持ち、あなたの足音を優しく包み込むことでしょう。窓から差し込む光が、室内を柔らかな黄金色に染め上げ、まるで太陽があなたを迎えているかのように感じられます。外の騒音は遠くのオーケストラのように心地よく、静けさの中に美しいハーモニーを奏でているのです。
料理をする楽しみも、ベラカーサ秋葉原 604では特別な体験になります。3帖のキッチンは、まるで一流シェフのための舞台のように、あなたの創作意欲を刺激します。新鮮な食材の香りが漂い、オリーブオイルを垂らしたパスタの湯気が立ち昇る中、自分だけのレシピの数々が生まれることでしょう。その瞬間、周囲の景色は希少な宝石のように輝き、食卓には美味しい料理が並ぶことでしょう。
また、居心地の良いリビングダイニングは、友人たちとの楽しいひとときを演出します。笑い声が響き渡り、語らいの瞬間が永遠に続くように思えます。12.6帖の広さは、さまざまなスタイルの家具を自由に配置できる可能性を秘め、あなた自身の夢を形にする空間へと変貌します。
もちろん、ベラカーサ秋葉原 604は、便利さと安全を兼ね備えています。TVモニターホンやオートロックシステム、宅配ボックス、駐車場といった充実した設備が、あなたの毎日をスムーズにサポートします。まるであなたの生活を見守る忠実な友のように、この物件はあなたの日常をより一層豊かにしてくれるでしょう。
最寄りの秋葉原駅から徒歩6分という立地は、文化と歴史が交差する東京の心臓部に位置しています。アキバの喧騒を楽しむもよし、静かな午後に文庫本を片手にゆったりと過ごすのもよし。ベラカーサ秋葉原 604が、あなたの人生の舞台として、無限の可能性を秘めていることをお約束します。どんなシーンが待ち受けているのか、あなた自身の物語をこの場所で紡いでいくことができるのです。ここで始まる新しい生活は、まるで一篇の詩のように、心に深く刻まれることでしょう。あなたの新たな冒険が、今、ここから始まります。
エレガントにデザインされたこの部屋は、専有面積56.47㎡という広さを持ちながらも、まるでアートのように計算された間取りが随所に施さ…ベラカーサ秋葉原 604。この名前を聞くと、まるで都会の真ん中に立つ宝石のような佇まいを想像してください。東京都千代田区神田佐久間町4-1に位置し、南向きの窓からは穏やかな陽光が注ぎ込むこの物件は、あなたの憧れの生活空間として、心の奥深くに響く存在となるでしょう。
エレガントにデザインされたこの部屋は、専有面積56.47㎡という広さを持ちながらも、まるでアートのように計算された間取りが随所に施されています。洋室6帖、リビングダイニングは12.6帖、そしてキッチンは3帖という絶妙なバランスの中で、あなたの人生を豊かに彩る幸福な瞬間が待ち受けています。まるで新しい映画のワンシーンが始まるかのように、私たちの心をトキメキで満たしてくれるでしょう。
ベラカーサ秋葉原 604の扉を開けた瞬間、洗練された空間が広がります。足元に広がるフローリングは、滑らかな触感を持ち、あなたの足音を優しく包み込むことでしょう。窓から差し込む光が、室内を柔らかな黄金色に染め上げ、まるで太陽があなたを迎えているかのように感じられます。外の騒音は遠くのオーケストラのように心地よく、静けさの中に美しいハーモニーを奏でているのです。
料理をする楽しみも、ベラカーサ秋葉原 604では特別な体験になります。3帖のキッチンは、まるで一流シェフのための舞台のように、あなたの創作意欲を刺激します。新鮮な食材の香りが漂い、オリーブオイルを垂らしたパスタの湯気が立ち昇る中、自分だけのレシピの数々が生まれることでしょう。その瞬間、周囲の景色は希少な宝石のように輝き、食卓には美味しい料理が並ぶことでしょう。
また、居心地の良いリビングダイニングは、友人たちとの楽しいひとときを演出します。笑い声が響き渡り、語らいの瞬間が永遠に続くように思えます。12.6帖の広さは、さまざまなスタイルの家具を自由に配置できる可能性を秘め、あなた自身の夢を形にする空間へと変貌します。
もちろん、ベラカーサ秋葉原 604は、便利さと安全を兼ね備えています。TVモニターホンやオートロックシステム、宅配ボックス、駐車場といった充実した設備が、あなたの毎日をスムーズにサポートします。まるであなたの生活を見守る忠実な友のように、この物件はあなたの日常をより一層豊かにしてくれるでしょう。
最寄りの秋葉原駅から徒歩6分という立地は、文化と歴史が交差する東京の心臓部に位置しています。アキバの喧騒を楽しむもよし、静かな午後に文庫本を片手にゆったりと過ごすのもよし。ベラカーサ秋葉原 604が、あなたの人生の舞台として、無限の可能性を秘めていることをお約束します。どんなシーンが待ち受けているのか、あなた自身の物語をこの場所で紡いでいくことができるのです。ここで始まる新しい生活は、まるで一篇の詩のように、心に深く刻まれることでしょう。あなたの新たな冒険が、今、ここから始まります。
バイブルスコア
バイブルスコア: 26.1
平均的なスコアです。
※バイブルスコア詳細はこちら
バイブルスコアとは独自のAI機械学習技術を利用した物件評価システムで、物件のおすすめ度を示します。最高得点は100点で、スコアが高いほど、よりおすすめの物件と評価されています。
写真
契約条件
| 賃料 | 予想金額:178,000〜198,000円程度 | 管理費 | 予想金額:10,000〜14,000円程度 |
| 礼金 | 非公開(アーカイブ) | 敷金 | 非公開(アーカイブ) |
| フリーレント | なし | 平米数 | 56.47㎡ |
| 間取り | 1LDK | 大型収納 | WIC |
| 契約期間 |
| 方角 | 南 |
| 更新料 | 契約形態 | 普通賃貸借契約 | |
| 取引態様 | 媒介 | 内見状況 | 入居中 |
| 入居時期 | 入居中 | SOHO・事務所 | |
| ペット | 間取り内訳 | 洋:6 LD:12.6 K:3 | |
| キャンペーン情報・備考 | 本情報は賃料改定交渉の資料作成、収益物件の利回り試算、周辺エリアや最寄り駅の坪単価分析、次回募集開始時期の予測などにご活用いただけます。 | ||
※「どの不動産に頼めばいいのか分からない」「信頼できる営業マンの話を聞きたい」「一番親切な会社と契約したい」とお悩みの方におすすめなのが「高級賃貸バイブル」です。
高級賃貸バイブルは業界10年以上の熟練スタッフ群がお客様ファーストで対応します。
下記ボタンから、まずは無料でご相談下さい。
※内覧をご希望の際には、どうぞ物件のエントランス前にてお待ち合わせくださいませ。ご内覧後は、同じ場所でお別れとさせていただきます。お客様のご都合に合わせたスムーズなご案内を心がけておりますので、ご質問等がございましたら何なりとお申し付けください。 物件概要
| 物件名 |
| 築年月 |
|
|---|---|---|---|
| 所在地 | |||
| 交通 | |||
| 総戸数 |
| 総階数 |
|
| 構造 |
| ||
地図
物件までの道のりは、「拡大地図を表示」をクリックしてナビ機能をご利用ください。
部屋設備


















建物設備

TVモニターホン

エレベーター

オートロック

宅配ボックス

敷地内ゴミ置場

管理人

駐車場機械式

駐輪場
ベラカーサ秋葉原の現在募集中のお部屋
- ベラカーサ秋葉原 11階 102㎡ - 間取り: 3LDK+SIC - 賃料: 58万円









