
| 賃料 | 予想金額:189,000〜209,000円程度 | 管理費 | 予想金額:0〜2,000円程度 |
| 礼金/敷金 | 非公開(アーカイブ) | 平米数 | 56.47㎡ |
| 初期費用概算(参考) | 目安:738,000〜838,000 円 | みなし賃料(月額・参考) | 201,271〜221,271 円 |
| 備考 | 本ページは過去募集のアーカイブです。表示の金額は周辺相場・過去募集を踏まえた参考レンジであり、実際の契約金額・条件ではありません。 | ||
※上記みなし賃料(月額)は仲介手数料割引・無料&キャッシュバックを加味した高級賃貸バイブル限定の金額です。一般的なみなし賃料とは異なります。
【建物ページ】ベラカーサ秋葉原の詳細・最新空室はこちら▶▶選ばれる理由
仲介手数料無料・キャンペーン情報(毎月15名様限定)
〇仲介手数料割引キャンペーン
ベラカーサ秋葉原 602の口コミ・レビュー
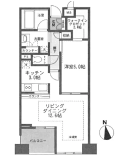
ベラカーサ秋葉原 602。この名前を耳にするだけで、心に浮かぶのは洗練された空間と、そこに宿る静かな優雅さです。東京都千代田区神田佐久間町4-1に位置するこの高級賃貸物件は、南向きの窓から差し込む柔らかな日差しによって、日常のどんな瞬間も特別なものに変えてくれます。602号室は56.47㎡という広さで、1LDKの間取りは、まるで心の中の物語を語るかのように、各空間がダンスを踊る演出をしています。
…ベラカーサ秋葉原 602。この名前を耳にするだけで、心に浮かぶのは洗練された空間と、そこに宿る静かな優雅さです。東京都千代田区神田佐久間町4-1に位置するこの高級賃貸物件は、南向きの窓から差し込む柔らかな日差しによって、日常のどんな瞬間も特別なものに変えてくれます。602号室は56.47㎡という広さで、1LDKの間取りは、まるで心の中の物語を語るかのように、各空間がダンスを踊る演出をしています。
扉を開けると、あなたを待ち受けるのは、ゆったりとしたLDK12.6帖。ここはただのリビングではなく、毎日が映画の舞台となる特別な場所です。窓辺に座り、優雅なソファーに身を沈めると、外の世界が静かに息づく音が耳に届きます。人々の声、かすかな車の音が、まるで心地よいメロディーのように響き渡り、忙しない日常を忘れさせてくれるのです。
料理をするためのキッチン3帖は、香ばしいものから甘いものまで、さまざまな食材がスタンバイしています。ここでの料理は、ただの食事作りではなく、アートのような体験に変わります。切った野菜がまるで色とりどりの絵筆のように、あなたの料理を華やかに彩ります。オーブンから漂う焼きたてのパンの香りは、まるで家に幸福をもたらす甘い魔法のようです。
そして、洋室6帖は、心を癒す隠れ家としての役割を果たします。ここは一日の終わりに、静かに自分を見つめ直すための場所です。ゆっくりとした時間が流れ、あなたを包み込むように、ほのかな香りのアロマキャンドルが揺れる様子が目に浮かびます。心地よいベッドに横たわり、夢の中で新たな冒険を思い描くことができるでしょう。
ベラカーサ秋葉原 602には、オートロックやTVモニターホンといった安全性を高めるための設備が整い、宅配ボックスも完備しているため、便利な生活が実現します。エレベーターを使って、あなたの新たな物語が始まる606階へと上がると、やがて管理人が優しい微笑みで迎えてくれます。
周辺地域も知識や歴史で満ち溢れています。アキバの名のもとに建つこの場所は、テクノロジーと歴史が共存する街。歴史ある神田明神から発せられる霊気が、日常的に忙しさの中にあるあなたの心を和ませてくれることでしょう。秋葉原駅から徒歩6分というアクセスも、懐かしさと新しさが交差する文化の象徴です。
ベラカーサ秋葉原 602は、ただの住まいではなく、毎日を特別な物語に変える舞台なのです。この空間で過ごす時間は、まるで一編の短編小説のように、少しずつ色を重ねていくことでしょう。あなたの人生の新たな章が、ここから始まります。いつの間にか、自分の居場所として愛着が湧くことでしょう。金色の光が差し込む間取りの中で、あなたの物語を花開かせてみませんか。
…ベラカーサ秋葉原 602。この名前を耳にするだけで、心に浮かぶのは洗練された空間と、そこに宿る静かな優雅さです。東京都千代田区神田佐久間町4-1に位置するこの高級賃貸物件は、南向きの窓から差し込む柔らかな日差しによって、日常のどんな瞬間も特別なものに変えてくれます。602号室は56.47㎡という広さで、1LDKの間取りは、まるで心の中の物語を語るかのように、各空間がダンスを踊る演出をしています。
扉を開けると、あなたを待ち受けるのは、ゆったりとしたLDK12.6帖。ここはただのリビングではなく、毎日が映画の舞台となる特別な場所です。窓辺に座り、優雅なソファーに身を沈めると、外の世界が静かに息づく音が耳に届きます。人々の声、かすかな車の音が、まるで心地よいメロディーのように響き渡り、忙しない日常を忘れさせてくれるのです。
料理をするためのキッチン3帖は、香ばしいものから甘いものまで、さまざまな食材がスタンバイしています。ここでの料理は、ただの食事作りではなく、アートのような体験に変わります。切った野菜がまるで色とりどりの絵筆のように、あなたの料理を華やかに彩ります。オーブンから漂う焼きたてのパンの香りは、まるで家に幸福をもたらす甘い魔法のようです。
そして、洋室6帖は、心を癒す隠れ家としての役割を果たします。ここは一日の終わりに、静かに自分を見つめ直すための場所です。ゆっくりとした時間が流れ、あなたを包み込むように、ほのかな香りのアロマキャンドルが揺れる様子が目に浮かびます。心地よいベッドに横たわり、夢の中で新たな冒険を思い描くことができるでしょう。
ベラカーサ秋葉原 602には、オートロックやTVモニターホンといった安全性を高めるための設備が整い、宅配ボックスも完備しているため、便利な生活が実現します。エレベーターを使って、あなたの新たな物語が始まる606階へと上がると、やがて管理人が優しい微笑みで迎えてくれます。
周辺地域も知識や歴史で満ち溢れています。アキバの名のもとに建つこの場所は、テクノロジーと歴史が共存する街。歴史ある神田明神から発せられる霊気が、日常的に忙しさの中にあるあなたの心を和ませてくれることでしょう。秋葉原駅から徒歩6分というアクセスも、懐かしさと新しさが交差する文化の象徴です。
ベラカーサ秋葉原 602は、ただの住まいではなく、毎日を特別な物語に変える舞台なのです。この空間で過ごす時間は、まるで一編の短編小説のように、少しずつ色を重ねていくことでしょう。あなたの人生の新たな章が、ここから始まります。いつの間にか、自分の居場所として愛着が湧くことでしょう。金色の光が差し込む間取りの中で、あなたの物語を花開かせてみませんか。
バイブルスコア
バイブルスコア: 19.2
高級な物件でない場合は割高な物件です。。
※バイブルスコア詳細はこちら
バイブルスコアとは独自のAI機械学習技術を利用した物件評価システムで、物件のおすすめ度を示します。最高得点は100点で、スコアが高いほど、よりおすすめの物件と評価されています。
写真
契約条件
| 賃料 | 予想金額:189,000〜209,000円程度 | 管理費 | 予想金額:0〜2,000円程度 |
| 礼金 | 非公開(アーカイブ) | 敷金 | 非公開(アーカイブ) |
| フリーレント | なし | 平米数 | 56.47㎡ |
| 間取り | 1LDK | 大型収納 | WIC |
| 契約期間 |
| 方角 | 南 |
| 更新料 | 契約形態 | 普通賃貸借契約 | |
| 取引態様 | 媒介 | 内見状況 | 入居中 |
| 入居時期 | 入居中 | SOHO・事務所 | |
| ペット | 間取り内訳 | 洋:6 LD:12.6 K:3 | |
| キャンペーン情報・備考 | 本情報は賃料改定交渉の資料作成、収益物件の利回り試算、周辺エリアや最寄り駅の坪単価分析、次回募集開始時期の予測などにご活用いただけます。 | ||
※「どの不動産に頼めばいいのか分からない」「信頼できる営業マンの話を聞きたい」「一番親切な会社と契約したい」とお悩みの方におすすめなのが「高級賃貸バイブル」です。
高級賃貸バイブルは業界10年以上の熟練スタッフ群がお客様ファーストで対応します。
下記ボタンから、まずは無料でご相談下さい。
※内覧をご希望の際には、どうぞ物件のエントランス前にてお待ち合わせくださいませ。ご内覧後は、同じ場所でお別れとさせていただきます。お客様のご都合に合わせたスムーズなご案内を心がけておりますので、ご質問等がございましたら何なりとお申し付けください。 物件概要
| 物件名 |
| 築年月 |
|
|---|---|---|---|
| 所在地 | |||
| 交通 | |||
| 総戸数 |
| 総階数 |
|
| 構造 |
| ||
地図
物件までの道のりは、「拡大地図を表示」をクリックしてナビ機能をご利用ください。
部屋設備


















建物設備

TVモニターホン

エレベーター

オートロック

宅配ボックス

敷地内ゴミ置場

管理人

駐車場機械式

駐輪場
ベラカーサ秋葉原の現在募集中のお部屋
- ベラカーサ秋葉原 11階 102㎡ - 間取り: 3LDK+SIC - 賃料: 58万円









