
| 賃料 | 予想金額:147,000〜167,000円程度 | 管理費 | 予想金額:15,000〜19,000円程度 |
| 礼金/敷金 | 非公開(アーカイブ) | 平米数 | 33.24㎡ |
| 初期費用概算(参考) | 目安:302,500〜402,500 円 | みなし賃料(月額・参考) | 168,073〜188,073 円 |
| 備考 | 本ページは過去募集のアーカイブです。表示の金額は周辺相場・過去募集を踏まえた参考レンジであり、実際の契約金額・条件ではありません。 | ||
※上記みなし賃料(月額)は仲介手数料割引・無料&キャッシュバックを加味した高級賃貸バイブル限定の金額です。一般的なみなし賃料とは異なります。
【建物ページ】ラスパシオ東日本橋リバーサイドの詳細・最新空室はこちら▶▶選ばれる理由
仲介手数料無料・キャンペーン情報(毎月15名様限定)
〇仲介手数料割引キャンペーン
ラスパシオ東日本橋リバーサイド 501の口コミ・レビュー
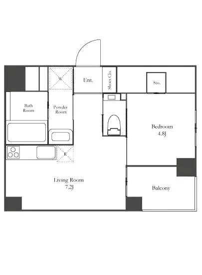
ラスパシオ東日本橋リバーサイド 501は、まるで都会のオアシスのように、静かな時間と上質な空間を提供する特別な住まいです。この特別な空間は、南東の陽射しが柔らかく差し込むことで、まるで朝の光が新たな物語を始めるかのように、あなたを迎え入れます。居住空間は、洋室4.8帖とLDK7.2帖の絶妙なコンビネーションで、都市生活とともに心の余裕をもたらします。
扉を開けると、心地良い空気に包まれ、まるで新…ラスパシオ東日本橋リバーサイド 501は、まるで都会のオアシスのように、静かな時間と上質な空間を提供する特別な住まいです。この特別な空間は、南東の陽射しが柔らかく差し込むことで、まるで朝の光が新たな物語を始めるかのように、あなたを迎え入れます。居住空間は、洋室4.8帖とLDK7.2帖の絶妙なコンビネーションで、都市生活とともに心の余裕をもたらします。
扉を開けると、心地良い空気に包まれ、まるで新しい日の始まりのような感覚に浸ることでしょう。ここ、ラスパシオ東日本橋リバーサイド 501には、モダンな設備が整い、TVモニターホンやエレベーター、オートロック、宅配ボックスなど、あなたのライフスタイルを一段と豊かにするための工夫が施されています。まるで、毎日が映画のワンシーンのように、快適さと便利さが両立した生活を実現してくれます。
この物件は、ただの住まいではありません。まるで優雅な舞台の中心で、あなたが主役となり、日常の中に潜む小さな喜びを見つけるための隠れ家です。新鮮なコーヒーの香りが漂う朝、窓から見える穏やかな景色を眺めながら、優雅に時間が流れる瞬間を感じることでしょう。夕暮れ時には、その特別な景色が黄金色に染まり、疲れた心に優しいひとときを提供してくれます。
また、ラスパシオ東日本橋リバーサイド 501は、その立地も魅力です。都営地下鉄浅草線の東日本橋駅から徒歩5分という利便性に加え、周辺には歴史的な文化やアートが息づいています。街を歩くと、そこには江戸の香りが漂う街並みや、現代アートが息づく場所が点在しています。あなたの生活の中に、そんな豊かな文化を感じられる要素が溢れているのです。
毎晩、心地良い風を感じながら、バルコニーで地元の美味しい料理を楽しむことができるのも、ラスパシオ東日本橋リバーサイド 501ならではの特権です。新鮮な素材を使った料理の香ばしい香りが、あなたの五感を刺激し、生活をより豊かに彩ります。
ラスパシオ東日本橋リバーサイド 501は、ただの物件ではなく、あなたの新たな人生の舞台です。ここでの生活は、まるで美しい物語の一部であり、毎日を特別な瞬間で満たしてくれることでしょう。都会の喧騒から少し離れたこの場所には、あなた自身が描く理想の生活が待っています。どうぞ、この特別な空間で新しい自分を見つけてください。
扉を開けると、心地良い空気に包まれ、まるで新…ラスパシオ東日本橋リバーサイド 501は、まるで都会のオアシスのように、静かな時間と上質な空間を提供する特別な住まいです。この特別な空間は、南東の陽射しが柔らかく差し込むことで、まるで朝の光が新たな物語を始めるかのように、あなたを迎え入れます。居住空間は、洋室4.8帖とLDK7.2帖の絶妙なコンビネーションで、都市生活とともに心の余裕をもたらします。
扉を開けると、心地良い空気に包まれ、まるで新しい日の始まりのような感覚に浸ることでしょう。ここ、ラスパシオ東日本橋リバーサイド 501には、モダンな設備が整い、TVモニターホンやエレベーター、オートロック、宅配ボックスなど、あなたのライフスタイルを一段と豊かにするための工夫が施されています。まるで、毎日が映画のワンシーンのように、快適さと便利さが両立した生活を実現してくれます。
この物件は、ただの住まいではありません。まるで優雅な舞台の中心で、あなたが主役となり、日常の中に潜む小さな喜びを見つけるための隠れ家です。新鮮なコーヒーの香りが漂う朝、窓から見える穏やかな景色を眺めながら、優雅に時間が流れる瞬間を感じることでしょう。夕暮れ時には、その特別な景色が黄金色に染まり、疲れた心に優しいひとときを提供してくれます。
また、ラスパシオ東日本橋リバーサイド 501は、その立地も魅力です。都営地下鉄浅草線の東日本橋駅から徒歩5分という利便性に加え、周辺には歴史的な文化やアートが息づいています。街を歩くと、そこには江戸の香りが漂う街並みや、現代アートが息づく場所が点在しています。あなたの生活の中に、そんな豊かな文化を感じられる要素が溢れているのです。
毎晩、心地良い風を感じながら、バルコニーで地元の美味しい料理を楽しむことができるのも、ラスパシオ東日本橋リバーサイド 501ならではの特権です。新鮮な素材を使った料理の香ばしい香りが、あなたの五感を刺激し、生活をより豊かに彩ります。
ラスパシオ東日本橋リバーサイド 501は、ただの物件ではなく、あなたの新たな人生の舞台です。ここでの生活は、まるで美しい物語の一部であり、毎日を特別な瞬間で満たしてくれることでしょう。都会の喧騒から少し離れたこの場所には、あなた自身が描く理想の生活が待っています。どうぞ、この特別な空間で新しい自分を見つけてください。
バイブルスコア
バイブルスコア: 26.9
平均的なスコアです。
※バイブルスコア詳細はこちら
バイブルスコアとは独自のAI機械学習技術を利用した物件評価システムで、物件のおすすめ度を示します。最高得点は100点で、スコアが高いほど、よりおすすめの物件と評価されています。
写真
現在写真が登録されていません契約条件
| 賃料 | 予想金額:147,000〜167,000円程度 | 管理費 | 予想金額:15,000〜19,000円程度 |
| 礼金 | 非公開(アーカイブ) | 敷金 | 非公開(アーカイブ) |
| フリーレント | なし | 平米数 | 33.24㎡ |
| 間取り | 1LDK | 大型収納 | N |
| 契約期間 |
| 方角 | 南東 |
| 更新料 | 契約形態 | 普通賃貸借契約 | |
| 取引態様 | 媒介 | 内見状況 | 入居中 |
| 入居時期 | 入居中 | SOHO・事務所 | |
| ペット | 間取り内訳 | 洋:4.8 LDK:7.2 | |
| キャンペーン情報・備考 | 本情報は賃料改定交渉の資料作成、収益物件の利回り試算、周辺エリアや最寄り駅の坪単価分析、次回募集開始時期の予測などにご活用いただけます。 | ||
※「どの不動産に頼めばいいのか分からない」「信頼できる営業マンの話を聞きたい」「一番親切な会社と契約したい」とお悩みの方におすすめなのが「高級賃貸バイブル」です。
高級賃貸バイブルは業界10年以上の熟練スタッフ群がお客様ファーストで対応します。
下記ボタンから、まずは無料でご相談下さい。
※内覧をご希望の際には、どうぞ物件のエントランス前にてお待ち合わせくださいませ。ご内覧後は、同じ場所でお別れとさせていただきます。お客様のご都合に合わせたスムーズなご案内を心がけておりますので、ご質問等がございましたら何なりとお申し付けください。 物件概要
| 物件名 |
| 築年月 |
|
|---|---|---|---|
| 所在地 | |||
| 交通 | |||
| 総戸数 |
| 総階数 |
|
| 構造 |
| ||
地図
物件までの道のりは、「拡大地図を表示」をクリックしてナビ機能をご利用ください。
部屋設備















建物設備

TVモニターホン

エレベーター

オートロック

宅配ボックス

敷地内ゴミ置場

管理人
ラスパシオ東日本橋リバーサイドの現在募集中のお部屋
- No rooms found for this property.
