
| 賃料 | 予想金額:200,000〜220,000円程度 | 管理費 | 予想金額:0〜2,000円程度 |
| 礼金/敷金 | 非公開(アーカイブ) | 平米数 | 56.7㎡ |
| 初期費用概算(参考) | 目安:776,500〜876,500 円 | みなし賃料(月額・参考) | 212,844〜232,844 円 |
| 備考 | 本ページは過去募集のアーカイブです。表示の金額は周辺相場・過去募集を踏まえた参考レンジであり、実際の契約金額・条件ではありません。 | ||
※上記みなし賃料(月額)は仲介手数料割引・無料&キャッシュバックを加味した高級賃貸バイブル限定の金額です。一般的なみなし賃料とは異なります。
【建物ページ】サンストン白金台の詳細・最新空室はこちら▶▶選ばれる理由
仲介手数料無料・キャンペーン情報(毎月15名様限定)
〇仲介手数料割引キャンペーン
サンストン白金台 203の口コミ・レビュー
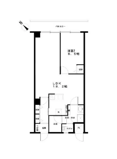
サンストン白金台 203。この名を口にするたび、まるで特別な宝物を手に入れたかのように心が躍ります。東京都港区白金台に位置し、北西に広がる静かな空気に包まれたこの物件は、あなたの新しい生活の舞台を提供します。エレベーターで昇り、扉を開く瞬間、その先には、広大な18.5帖のLDKと、心地よい6.5帖の寝室が待っているのです。ここでの生活は、まるで映画の一シーンのように、優雅で特別なものとなるでしょう…サンストン白金台 203。この名を口にするたび、まるで特別な宝物を手に入れたかのように心が躍ります。東京都港区白金台に位置し、北西に広がる静かな空気に包まれたこの物件は、あなたの新しい生活の舞台を提供します。エレベーターで昇り、扉を開く瞬間、その先には、広大な18.5帖のLDKと、心地よい6.5帖の寝室が待っているのです。ここでの生活は、まるで映画の一シーンのように、優雅で特別なものとなるでしょう。
サンストン白金台 203に足を踏み入れると、温かみのある木の床が優しくあなたを迎え入れます。陽光が差し込み、煌めくダンスを踊るその光景は、まるで自然と調和した芸術作品のよう。ゆったりとしたLDKでは、家族や友人と共に、心温まるひと時を過ごすことができます。窓の外には、青空が広がり、時折聞こえる小鳥のさえずりが心地良いBGMとなります。この場所は、あなたのインスピレーションの源となり、創造的な生活を生み出す舞台なのです。
寝室は静寂に包まれ、柔らかな布団に身を沈めるたび、穏やかな夢の世界へと誘われます。目を閉じると、夕暮れ時の白金台の街並みが脳裏に浮かび、夜の訪れを優雅に感じさせてくれます。朝が来れば、窓を開けた時の爽やかな風が、あなたの頬を撫で、日々の活力を与えてくれることでしょう。
このマンションは、ただの住まいではありません。それは、四季折々の美しさを楽しむための特別な場所です。春には桜の花びらが舞い、夏には青々とした緑が広がります。秋には鮮やかな紅葉が目を楽しませ、冬には静寂な雪景色が心を静めます。自然と共鳴し、快適な空間を持ち味とするサンストン白金台 203での生活は、まさに一冊の絵本のように、あなたの人生を彩るのです。
周辺には白金台ならではの歴史と文化が息づいています。美術館やギャラリーが点在し、ご自身の感性を豊かにするインスピレーションを与えてくれます。また、近隣のカフェやレストランでは、身体が喜ぶ新鮮な食材を活かした料理が楽しめます。五感を刺激するこのエリアでは、食と芸術が一体となり、あなたの暮らしをより豊かにします。
そして、駐車場に平置きされた愛車は、あなたが訪れるべき美しい風景へと導くサポート役。オートロックで守られた安全な環境は、心からリラックスできる空間を提供します。また、敷地内のゴミ置場は、生活の便利さを追求した証。サンストン白金台 203は、より良い暮らしを実現するために細やかな配慮が行き届いています。
ここでの生活は、まるで夢の中にいるかのような甘美なひと時を提供し、日々の喧騒から解き放たれる特別な空間をもたらします。サンストン白金台 203に住むことは、あなた自身の物語を紡いでいく旅の始まりです。この場所で、あなたの新しい生活がどのように花ひらくのか、その瞬間が待ち遠しいことでしょう。
サンストン白金台 203に足を踏み入れると、温かみのある木の床が優しくあなたを迎え入れます。陽光が差し込み、煌めくダンスを踊るその光景は、まるで自然と調和した芸術作品のよう。ゆったりとしたLDKでは、家族や友人と共に、心温まるひと時を過ごすことができます。窓の外には、青空が広がり、時折聞こえる小鳥のさえずりが心地良いBGMとなります。この場所は、あなたのインスピレーションの源となり、創造的な生活を生み出す舞台なのです。
寝室は静寂に包まれ、柔らかな布団に身を沈めるたび、穏やかな夢の世界へと誘われます。目を閉じると、夕暮れ時の白金台の街並みが脳裏に浮かび、夜の訪れを優雅に感じさせてくれます。朝が来れば、窓を開けた時の爽やかな風が、あなたの頬を撫で、日々の活力を与えてくれることでしょう。
このマンションは、ただの住まいではありません。それは、四季折々の美しさを楽しむための特別な場所です。春には桜の花びらが舞い、夏には青々とした緑が広がります。秋には鮮やかな紅葉が目を楽しませ、冬には静寂な雪景色が心を静めます。自然と共鳴し、快適な空間を持ち味とするサンストン白金台 203での生活は、まさに一冊の絵本のように、あなたの人生を彩るのです。
周辺には白金台ならではの歴史と文化が息づいています。美術館やギャラリーが点在し、ご自身の感性を豊かにするインスピレーションを与えてくれます。また、近隣のカフェやレストランでは、身体が喜ぶ新鮮な食材を活かした料理が楽しめます。五感を刺激するこのエリアでは、食と芸術が一体となり、あなたの暮らしをより豊かにします。
そして、駐車場に平置きされた愛車は、あなたが訪れるべき美しい風景へと導くサポート役。オートロックで守られた安全な環境は、心からリラックスできる空間を提供します。また、敷地内のゴミ置場は、生活の便利さを追求した証。サンストン白金台 203は、より良い暮らしを実現するために細やかな配慮が行き届いています。
ここでの生活は、まるで夢の中にいるかのような甘美なひと時を提供し、日々の喧騒から解き放たれる特別な空間をもたらします。サンストン白金台 203に住むことは、あなた自身の物語を紡いでいく旅の始まりです。この場所で、あなたの新しい生活がどのように花ひらくのか、その瞬間が待ち遠しいことでしょう。
バイブルスコア
バイブルスコア: 26.5
平均的なスコアです。
※バイブルスコア詳細はこちら
バイブルスコアとは独自のAI機械学習技術を利用した物件評価システムで、物件のおすすめ度を示します。最高得点は100点で、スコアが高いほど、よりおすすめの物件と評価されています。
写真
契約条件
| 賃料 | 予想金額:200,000〜220,000円程度 | 管理費 | 予想金額:0〜2,000円程度 |
| 礼金 | 非公開(アーカイブ) | 敷金 | 非公開(アーカイブ) |
| フリーレント | なし | 平米数 | 56.7㎡ |
| 間取り | 1LDK | 大型収納 | |
| 契約期間 |
| 方角 | 北西 |
| 更新料 | 契約形態 | 普通賃貸借契約 | |
| 取引態様 | 媒介 | 内見状況 | 入居中 |
| 入居時期 | 入居中 | SOHO・事務所 | 事務所(SOHO)可 |
| ペット | 間取り内訳 | LDK=18.5J / BR=6.5J | |
| キャンペーン情報・備考 | 本情報は賃料改定交渉の資料作成、収益物件の利回り試算、周辺エリアや最寄り駅の坪単価分析、次回募集開始時期の予測などにご活用いただけます。 | ||
※「どの不動産に頼めばいいのか分からない」「信頼できる営業マンの話を聞きたい」「一番親切な会社と契約したい」とお悩みの方におすすめなのが「高級賃貸バイブル」です。
高級賃貸バイブルは業界10年以上の熟練スタッフ群がお客様ファーストで対応します。
下記ボタンから、まずは無料でご相談下さい。
※内覧をご希望の際には、どうぞ物件のエントランス前にてお待ち合わせくださいませ。ご内覧後は、同じ場所でお別れとさせていただきます。お客様のご都合に合わせたスムーズなご案内を心がけておりますので、ご質問等がございましたら何なりとお申し付けください。 物件概要
| 物件名 |
| 築年月 |
|
|---|---|---|---|
| 所在地 | |||
| 交通 | |||
| 総戸数 | 総階数 |
| |
| 構造 |
| ||
地図
物件までの道のりは、「拡大地図を表示」をクリックしてナビ機能をご利用ください。
部屋設備












建物設備

エレベーター

オートロック

敷地内ゴミ置場

駐車場平置き
サンストン白金台の現在募集中のお部屋
- No rooms found for this property.















