
| 賃料 | 予想金額:790,000〜810,000円程度 | 管理費 | 予想金額:0〜2,000円程度 |
| 礼金/敷金 | 非公開(アーカイブ) | 平米数 | 139.34㎡ |
| 初期費用概算(参考) | 目安:2,841,500〜2,941,500 円 | みなし賃料(月額・参考) | 833,573〜853,573 円 |
| 備考 | 本ページは過去募集のアーカイブです。表示の金額は周辺相場・過去募集を踏まえた参考レンジであり、実際の契約金額・条件ではありません。 | ||
※上記みなし賃料(月額)は仲介手数料割引・無料&キャッシュバックを加味した高級賃貸バイブル限定の金額です。一般的なみなし賃料とは異なります。
【建物ページ】二番町テラスの詳細・最新空室はこちら▶▶選ばれる理由
仲介手数料無料・キャンペーン情報(毎月15名様限定)
〇仲介手数料割引キャンペーン
二番町テラス 9階 139.34㎡の口コミ・レビュー
二番町テラス 9階 139.34㎡は、まるで都会のオアシスのような存在感を放つ高級賃貸物件です。東京都千代田区の静かな二番町に位置し、北西を望むその窓からは、都市の喧騒を忘れさせる美しい光景が広がります。ここに住むことで、まるで自らが映画の主人公になったかのような特別な日常が始まります。
この物件に足を踏み入れた瞬間、あなたの感覚は新たな世界に引き込まれます。リビングダイニングは23.2帖の広さ…二番町テラス 9階 139.34㎡は、まるで都会のオアシスのような存在感を放つ高級賃貸物件です。東京都千代田区の静かな二番町に位置し、北西を望むその窓からは、都市の喧騒を忘れさせる美しい光景が広がります。ここに住むことで、まるで自らが映画の主人公になったかのような特別な日常が始まります。
この物件に足を踏み入れた瞬間、あなたの感覚は新たな世界に引き込まれます。リビングダイニングは23.2帖の広さを誇り、ゆったりとした空間は心を開放へと導きます。自然光が優しく差し込み、空間を温かく包み込む中、家族や友人と共に語らうひとときが幸せの象徴になることでしょう。LDKの隅々に漂う香り、それはコーヒーの香ばしさや、焼きたてのパンの温かな芳香が混ざり合い、毎日の生活に特別な彩りを添えます。
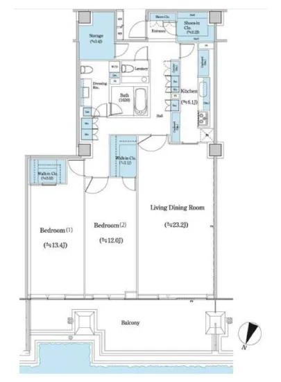
二番町テラスはただの住まいではありません。これはあなたの人生の舞台です。調理場である6.1帖のキッチンからは、新たな料理の冒険へと旅立つ準備が整い、12帖の洋室は、静かな読書の時間を提供してくれる隠れ家のような存在です。納戸(S)3.4帖は、待ちに待った愛用品や宝物をしまっておける特別な場所として、その役割を果たします。さらに13.4帖の洋室は、心地よい眠りへと導く甘美な空間。柔らかなベッドに身を任せれば、夢の中で新たな冒険が待っています。
また、二番町テラスの魅力は、快適な設備にもあります。24時間管理され、安心して暮らせる環境は、あなたの生活を守る見えない盾となります。フィットネスルームでは、身体を動かす喜びがあなたを待ち受けており、毎日の健康維持がさらなる活力を生むことでしょう。フロントサービスや宅配ボックスも完備され、利便性はまるで貴族のように感じることができます。
周辺の文化や歴史も、二番町テラスが一層魅力的な理由のひとつです。ここは千代田区、歴史と現代が交差する場所。近くには美術館や文化施設も点在し、アートや音楽に触れる機会が豊富です。日常の中で生まれるインスピレーションから、あなたの創造力は刺激を受け、より豊かな生活が展開されることでしょう。
二番町テラス 9階 139.34㎡は、単なる住まいを超えた存在。ここに住むことで、あなたの人生はドラマのように美しく彩られ、毎日が特別なストーリーを紡ぎ出すのです。これは、ただ住む場所ではなく、あなた自身の物語を紡ぐための特別な舞台なのです。選ばれた者にしか味わえないこの贅沢な生活を、ぜひ手に入れてください。
この物件に足を踏み入れた瞬間、あなたの感覚は新たな世界に引き込まれます。リビングダイニングは23.2帖の広さ…二番町テラス 9階 139.34㎡は、まるで都会のオアシスのような存在感を放つ高級賃貸物件です。東京都千代田区の静かな二番町に位置し、北西を望むその窓からは、都市の喧騒を忘れさせる美しい光景が広がります。ここに住むことで、まるで自らが映画の主人公になったかのような特別な日常が始まります。
この物件に足を踏み入れた瞬間、あなたの感覚は新たな世界に引き込まれます。リビングダイニングは23.2帖の広さを誇り、ゆったりとした空間は心を開放へと導きます。自然光が優しく差し込み、空間を温かく包み込む中、家族や友人と共に語らうひとときが幸せの象徴になることでしょう。LDKの隅々に漂う香り、それはコーヒーの香ばしさや、焼きたてのパンの温かな芳香が混ざり合い、毎日の生活に特別な彩りを添えます。
二番町テラスはただの住まいではありません。これはあなたの人生の舞台です。調理場である6.1帖のキッチンからは、新たな料理の冒険へと旅立つ準備が整い、12帖の洋室は、静かな読書の時間を提供してくれる隠れ家のような存在です。納戸(S)3.4帖は、待ちに待った愛用品や宝物をしまっておける特別な場所として、その役割を果たします。さらに13.4帖の洋室は、心地よい眠りへと導く甘美な空間。柔らかなベッドに身を任せれば、夢の中で新たな冒険が待っています。
また、二番町テラスの魅力は、快適な設備にもあります。24時間管理され、安心して暮らせる環境は、あなたの生活を守る見えない盾となります。フィットネスルームでは、身体を動かす喜びがあなたを待ち受けており、毎日の健康維持がさらなる活力を生むことでしょう。フロントサービスや宅配ボックスも完備され、利便性はまるで貴族のように感じることができます。
周辺の文化や歴史も、二番町テラスが一層魅力的な理由のひとつです。ここは千代田区、歴史と現代が交差する場所。近くには美術館や文化施設も点在し、アートや音楽に触れる機会が豊富です。日常の中で生まれるインスピレーションから、あなたの創造力は刺激を受け、より豊かな生活が展開されることでしょう。
二番町テラス 9階 139.34㎡は、単なる住まいを超えた存在。ここに住むことで、あなたの人生はドラマのように美しく彩られ、毎日が特別なストーリーを紡ぎ出すのです。これは、ただ住む場所ではなく、あなた自身の物語を紡ぐための特別な舞台なのです。選ばれた者にしか味わえないこの贅沢な生活を、ぜひ手に入れてください。
バイブルスコア
バイブルスコア: 36.4
平均的なスコアです。
※バイブルスコア詳細はこちら
バイブルスコアとは独自のAI機械学習技術を利用した物件評価システムで、物件のおすすめ度を示します。最高得点は100点で、スコアが高いほど、よりおすすめの物件と評価されています。
写真
契約条件
| 賃料 | 予想金額:790,000〜810,000円程度 | 管理費 | 予想金額:0〜2,000円程度 |
| 礼金 | 非公開(アーカイブ) | 敷金 | 非公開(アーカイブ) |
| フリーレント | なし | 平米数 | 139.34㎡ |
| 間取り | 2LDK | 大型収納 | 2WIC+SIC+Sto |
| 契約期間 |
| 方角 | 北西 |
| 更新料 | 契約形態 | 普通賃貸借契約 | |
| 取引態様 | 媒介 | 内見状況 | 入居中 |
| 入居時期 | 入居中 | SOHO・事務所 | 事務所(SOHO)可 |
| ペット | ペット可 | 間取り内訳 | LD23.2K6.1洋室12納戸(S)3.4洋室13.4 |
| キャンペーン情報・備考 | 本情報は賃料改定交渉の資料作成、収益物件の利回り試算、周辺エリアや最寄り駅の坪単価分析、次回募集開始時期の予測などにご活用いただけます。 | ||
※「どの不動産に頼めばいいのか分からない」「信頼できる営業マンの話を聞きたい」「一番親切な会社と契約したい」とお悩みの方におすすめなのが「高級賃貸バイブル」です。
高級賃貸バイブルは業界10年以上の熟練スタッフ群がお客様ファーストで対応します。
下記ボタンから、まずは無料でご相談下さい。
※内覧をご希望の際には、どうぞ物件のエントランス前にてお待ち合わせくださいませ。ご内覧後は、同じ場所でお別れとさせていただきます。お客様のご都合に合わせたスムーズなご案内を心がけておりますので、ご質問等がございましたら何なりとお申し付けください。 物件概要
| 物件名 |
| 築年月 |
|
|---|---|---|---|
| 所在地 | |||
| 交通 | |||
| 総戸数 |
| 総階数 |
|
| 構造 |
| ||
地図
物件までの道のりは、「拡大地図を表示」をクリックしてナビ機能をご利用ください。
部屋設備


















建物設備

24時間管理

TVモニターホン

エレベーター

オートロック

バイク置場

フィットネス

フロントサービス

宅配ボックス

敷地内ゴミ置場

管理人

駐車場平置き

駐車場機械式

駐輪場
二番町テラスの現在募集中のお部屋
- 二番町テラス 915 - 間取り: 2SLDK+WIC - 賃料: 94万円
- 二番町テラス 1209 - 間取り: 3LDK+WIC - 賃料: 129.9万円
- 二番町テラス 1004 - 間取り: 2LDK+WIC+SIC - 賃料: 109万円




















