
| 賃料 | 予想金額:1,180,000〜1,200,000円程度 | 管理費 | 予想金額:0〜2,000円程度 |
| 礼金/敷金 | 非公開(アーカイブ) | 平米数 | 187.45㎡ |
| 初期費用概算(参考) | 目安:4,206,500〜4,306,500 円 | みなし賃料(月額・参考) | 1,243,885〜1,263,885 円 |
| 備考 | 本ページは過去募集のアーカイブです。表示の金額は周辺相場・過去募集を踏まえた参考レンジであり、実際の契約金額・条件ではありません。 | ||
※上記みなし賃料(月額)は仲介手数料割引・無料&キャッシュバックを加味した高級賃貸バイブル限定の金額です。一般的なみなし賃料とは異なります。
【建物ページ】二番町テラスの詳細・最新空室はこちら▶▶選ばれる理由
仲介手数料無料・キャンペーン情報(毎月15名様限定)
〇仲介手数料割引キャンペーン
二番町テラス 1302の口コミ・レビュー
二番町テラス 1302。これはただの住まいではありません。それは、あなたの人生に新しいページを加える舞台、特別な物語を紡ぐためのセッティングなのです。静寂と安らぎが織りなすこの1302号室は、東京都千代田区二番町の中心で、あなたを日々の喧騒から解き放つオアシスとして待っています。
あなたがこの空間に足を踏み入れた瞬間、広がるのはまるで映画のワンシーンのような美しい光景。37.4帖のLDに、心地よ…二番町テラス 1302。これはただの住まいではありません。それは、あなたの人生に新しいページを加える舞台、特別な物語を紡ぐためのセッティングなのです。静寂と安らぎが織りなすこの1302号室は、東京都千代田区二番町の中心で、あなたを日々の喧騒から解き放つオアシスとして待っています。
あなたがこの空間に足を踏み入れた瞬間、広がるのはまるで映画のワンシーンのような美しい光景。37.4帖のLDに、心地よい陽射しが染み込み、まるで空があなたのためにカーテンを開けてくれたかのようです。そして、その柔らかな日差しと共に、あなたはキッチンで料理の音を楽しむことができるのです。5帖のキッチンで生まれる食材の香りは、まるでフランスの市場で買ったばかりの新鮮な野菜や果物のように、あなたの五感を刺激します。
そして、リビングからは、二番町の風景を一望できる優雅な景観が広がっています。朝、目覚めた時にはさわやかな風がカーテンを揺らし、都会の喧騒を忘れさせる静けさが広がります。夜には、東京の灯りが星空のように輝き、あなたの生活を特別なものに変えてくれることでしょう。
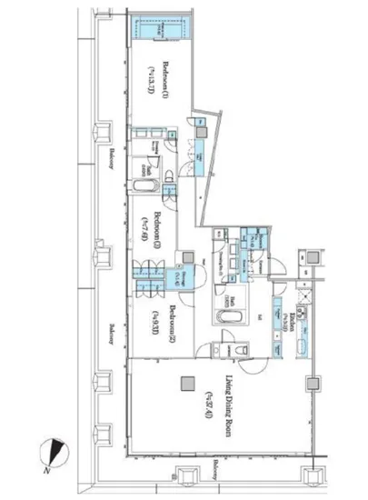
この物件は、ただの居住空間ではなく、あなた自身のアートギャラリーです。広々とした3LDKの間取り、13.7帖、9.3帖、7.6帖の個室はどれも独特の魅力を持っており、各部屋で異なる物語を紡ぐことができます。あなたの大切な人々に、特別な集いを演出する場として利用でき、心温まるひとときを過ごすことができるのです。
一方で、二番町テラス 1302の優雅さは、ただの住まいの枠を超えています。24時間管理の安心感、オートロックの安心、安全なフィットネス設備、そしてフロントサービスがあなたをサポートします。これらの設備は、まるであなたの日常に寄り添う存在のようです。フィットネスエリアでの運動は、あなたの身体をより美しく、そして健康的に保つためのパートナーとなります。
周辺の文化は、まさにこの高級賃貸の価値をさらに引き立てます。東京メトロ有楽町線の麹町駅から徒歩1分という立地は、歴史ある街並みと現代の洗練が見事に調和しています。近隣には、様々な美術館やギャラリーも点在し、芸術に触れる機会も豊富です。文化と歴史が交差するこの場所で、あなたの人生に彩りを与えてくれることでしょう。
二番町テラス 1302は、ただの居住空間ではなく、あなた自身を映し出す鏡です。そこでの生活は、まるで一編の詩のように、穏やかで美しい瞬間が積み重なり、あなたの人生を鮮やかに彩ります。どうか、この特別な物件で、あなたの物語を紡いでください。新たな出発を告げる場所、それが二番町テラス 1302なのです。
あなたがこの空間に足を踏み入れた瞬間、広がるのはまるで映画のワンシーンのような美しい光景。37.4帖のLDに、心地よ…二番町テラス 1302。これはただの住まいではありません。それは、あなたの人生に新しいページを加える舞台、特別な物語を紡ぐためのセッティングなのです。静寂と安らぎが織りなすこの1302号室は、東京都千代田区二番町の中心で、あなたを日々の喧騒から解き放つオアシスとして待っています。
あなたがこの空間に足を踏み入れた瞬間、広がるのはまるで映画のワンシーンのような美しい光景。37.4帖のLDに、心地よい陽射しが染み込み、まるで空があなたのためにカーテンを開けてくれたかのようです。そして、その柔らかな日差しと共に、あなたはキッチンで料理の音を楽しむことができるのです。5帖のキッチンで生まれる食材の香りは、まるでフランスの市場で買ったばかりの新鮮な野菜や果物のように、あなたの五感を刺激します。
そして、リビングからは、二番町の風景を一望できる優雅な景観が広がっています。朝、目覚めた時にはさわやかな風がカーテンを揺らし、都会の喧騒を忘れさせる静けさが広がります。夜には、東京の灯りが星空のように輝き、あなたの生活を特別なものに変えてくれることでしょう。
この物件は、ただの居住空間ではなく、あなた自身のアートギャラリーです。広々とした3LDKの間取り、13.7帖、9.3帖、7.6帖の個室はどれも独特の魅力を持っており、各部屋で異なる物語を紡ぐことができます。あなたの大切な人々に、特別な集いを演出する場として利用でき、心温まるひとときを過ごすことができるのです。
一方で、二番町テラス 1302の優雅さは、ただの住まいの枠を超えています。24時間管理の安心感、オートロックの安心、安全なフィットネス設備、そしてフロントサービスがあなたをサポートします。これらの設備は、まるであなたの日常に寄り添う存在のようです。フィットネスエリアでの運動は、あなたの身体をより美しく、そして健康的に保つためのパートナーとなります。
周辺の文化は、まさにこの高級賃貸の価値をさらに引き立てます。東京メトロ有楽町線の麹町駅から徒歩1分という立地は、歴史ある街並みと現代の洗練が見事に調和しています。近隣には、様々な美術館やギャラリーも点在し、芸術に触れる機会も豊富です。文化と歴史が交差するこの場所で、あなたの人生に彩りを与えてくれることでしょう。
二番町テラス 1302は、ただの居住空間ではなく、あなた自身を映し出す鏡です。そこでの生活は、まるで一編の詩のように、穏やかで美しい瞬間が積み重なり、あなたの人生を鮮やかに彩ります。どうか、この特別な物件で、あなたの物語を紡いでください。新たな出発を告げる場所、それが二番町テラス 1302なのです。
バイブルスコア
バイブルスコア: 15.4
高級な物件でない場合は割高な物件です。。
※バイブルスコア詳細はこちら
バイブルスコアとは独自のAI機械学習技術を利用した物件評価システムで、物件のおすすめ度を示します。最高得点は100点で、スコアが高いほど、よりおすすめの物件と評価されています。
写真
契約条件
| 賃料 | 予想金額:1,180,000〜1,200,000円程度 | 管理費 | 予想金額:0〜2,000円程度 |
| 礼金 | 非公開(アーカイブ) | 敷金 | 非公開(アーカイブ) |
| フリーレント | なし | 平米数 | 187.45㎡ |
| 間取り | 3LDK | 大型収納 | 2WIC+SIC |
| 契約期間 |
| 方角 | 東 |
| 更新料 | 契約形態 | 普通賃貸借契約 | |
| 取引態様 | 媒介 | 内見状況 | 入居中 |
| 入居時期 | 入居中 | SOHO・事務所 | 事務所(SOHO)可 |
| ペット | ペット可 | 間取り内訳 | LD=37.4J / K=5J / BR=13.7J / BR=9.3J / BR=7.6J |
| キャンペーン情報・備考 | 本情報は賃料改定交渉の資料作成、収益物件の利回り試算、周辺エリアや最寄り駅の坪単価分析、次回募集開始時期の予測などにご活用いただけます。 | ||
※「どの不動産に頼めばいいのか分からない」「信頼できる営業マンの話を聞きたい」「一番親切な会社と契約したい」とお悩みの方におすすめなのが「高級賃貸バイブル」です。
高級賃貸バイブルは業界10年以上の熟練スタッフ群がお客様ファーストで対応します。
下記ボタンから、まずは無料でご相談下さい。
※内覧をご希望の際には、どうぞ物件のエントランス前にてお待ち合わせくださいませ。ご内覧後は、同じ場所でお別れとさせていただきます。お客様のご都合に合わせたスムーズなご案内を心がけておりますので、ご質問等がございましたら何なりとお申し付けください。 物件概要
| 物件名 |
| 築年月 |
|
|---|---|---|---|
| 所在地 | |||
| 交通 | |||
| 総戸数 |
| 総階数 |
|
| 構造 |
| ||
地図
物件までの道のりは、「拡大地図を表示」をクリックしてナビ機能をご利用ください。
部屋設備



















建物設備

24時間管理

TVモニターホン

エレベーター

オートロック

バイク置場

フィットネス

フロントサービス

宅配ボックス

敷地内ゴミ置場

管理人

駐車場平置き

駐車場機械式

駐輪場
二番町テラスの現在募集中のお部屋
- 二番町テラス 915 - 間取り: 2SLDK+WIC - 賃料: 94万円
- 二番町テラス 1209 - 間取り: 3LDK+WIC - 賃料: 129.9万円
- 二番町テラス 1004 - 間取り: 2LDK+WIC+SIC - 賃料: 109万円




















