
| 賃料 | 予想金額:920,000〜940,000円程度 | 管理費 | 予想金額:0〜2,000円程度 |
| 礼金/敷金 | 非公開(アーカイブ) | 平米数 | 143.61㎡ |
| 初期費用概算(参考) | 目安:3,296,500〜3,396,500 円 | みなし賃料(月額・参考) | 970,344〜990,344 円 |
| 備考 | 本ページは過去募集のアーカイブです。表示の金額は周辺相場・過去募集を踏まえた参考レンジであり、実際の契約金額・条件ではありません。 | ||
※上記みなし賃料(月額)は仲介手数料割引・無料&キャッシュバックを加味した高級賃貸バイブル限定の金額です。一般的なみなし賃料とは異なります。
【建物ページ】二番町テラスの詳細・最新空室はこちら▶▶選ばれる理由
仲介手数料無料・キャンペーン情報(毎月15名様限定)
〇仲介手数料割引キャンペーン
二番町テラス 1102の口コミ・レビュー
二番町テラス 1102は、まるで優雅な絵画が現実に飛び込んできたかのように、その存在感を放っています。東京都千代田区二番町5-25という、都市の中心でありながら、静寂に包まれたこの地に佇むこの物件は、生活の舞台としてふさわしい場所と言えるでしょう。北と東に面するその窓から、朝日が優しく差し込み、夜には星々が囁くように煌めく情景が広がります。専有面積143.61㎡、それは住む人々に広がる夢の空間を約…二番町テラス 1102は、まるで優雅な絵画が現実に飛び込んできたかのように、その存在感を放っています。東京都千代田区二番町5-25という、都市の中心でありながら、静寂に包まれたこの地に佇むこの物件は、生活の舞台としてふさわしい場所と言えるでしょう。北と東に面するその窓から、朝日が優しく差し込み、夜には星々が囁くように煌めく情景が広がります。専有面積143.61㎡、それは住む人々に広がる夢の空間を約束する大地。この空間の中で、あなたの物語が始まるのです。
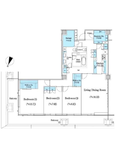
二番町テラス 1102の扉を開けると、目の前には18.3帖のリビングが広がります。そこには、心を温める陽の光が差し込み、家具の配置を選ぶ楽しみがあなたを待っています。家族や友人とともに笑い合うひととき、映画のワンシーンを思わせるような飾らない会話が響くでしょう。五感を刺激する様々な香りが、料理を通じてあなたの指先を踊らせることでしょう。キッチンには5.3帖の広さがあり、あなたの料理スキルを磨く舞台が整っています。
そして、プライベート空間として整えられた3つの寝室は、各々異なる物語を紡ぎ出すことでしょう。12.7帖、8.9帖、7.9帖と、それぞれが独自の個性を持っている様に感じられます。寝室での静かな夜、思索にふけりながら心の声に耳を傾ける。その時間は、まるで星空の下で過ごす夢の世界に触れているかのようです。
さらに、二番町テラス 1102には、24時間管理のフロントサービスや、宅配ボックス、フィットネスルームといった、現代の暮らしを豊かに彩る設備が揃っています。エレガントなオートロックシステムがあなたのセキュリティを守り、安心の中で生活することができるでしょう。ここに住むことは、まるで自分自身が特別な映画の主人公であるかのように、毎日を彩ってくれるのです。
そして、この街は歴史と文化が息づく場所です。周囲には東京メトロ有楽町線の麹町駅があり、アクセスも良好です。静けさと喧騒が同居するこの地は、まるで時代を超えた美術館のよう。周辺の風景や街並みの中に、あなたの生活が溶け込んでいく様子が想像できます。歴史ある建物に触れ、文化を感じながら、日常に彩りを加えることができるのは、この場所ならではの特権です。
二番町テラス 1102は、ただの住まいではありません。それは、あなたの新しい人生のページを開く舞台であり、魅力と安らぎに満ちた場所です。何を思い、何を選び、どのような物語を紡ぐかは、あなたの自由です。私たちは、あなたがこの空間で、どのように輝くのかを楽しみにしています。ここでの日々は、まるで最高の映画を観ているかのような、美しい瞬間の連続でしょう。あなたの新しい物語が、ここ二番町テラス 1102で始まることを、心から願っています。
二番町テラス 1102の扉を開けると、目の前には18.3帖のリビングが広がります。そこには、心を温める陽の光が差し込み、家具の配置を選ぶ楽しみがあなたを待っています。家族や友人とともに笑い合うひととき、映画のワンシーンを思わせるような飾らない会話が響くでしょう。五感を刺激する様々な香りが、料理を通じてあなたの指先を踊らせることでしょう。キッチンには5.3帖の広さがあり、あなたの料理スキルを磨く舞台が整っています。
そして、プライベート空間として整えられた3つの寝室は、各々異なる物語を紡ぎ出すことでしょう。12.7帖、8.9帖、7.9帖と、それぞれが独自の個性を持っている様に感じられます。寝室での静かな夜、思索にふけりながら心の声に耳を傾ける。その時間は、まるで星空の下で過ごす夢の世界に触れているかのようです。
さらに、二番町テラス 1102には、24時間管理のフロントサービスや、宅配ボックス、フィットネスルームといった、現代の暮らしを豊かに彩る設備が揃っています。エレガントなオートロックシステムがあなたのセキュリティを守り、安心の中で生活することができるでしょう。ここに住むことは、まるで自分自身が特別な映画の主人公であるかのように、毎日を彩ってくれるのです。
そして、この街は歴史と文化が息づく場所です。周囲には東京メトロ有楽町線の麹町駅があり、アクセスも良好です。静けさと喧騒が同居するこの地は、まるで時代を超えた美術館のよう。周辺の風景や街並みの中に、あなたの生活が溶け込んでいく様子が想像できます。歴史ある建物に触れ、文化を感じながら、日常に彩りを加えることができるのは、この場所ならではの特権です。
二番町テラス 1102は、ただの住まいではありません。それは、あなたの新しい人生のページを開く舞台であり、魅力と安らぎに満ちた場所です。何を思い、何を選び、どのような物語を紡ぐかは、あなたの自由です。私たちは、あなたがこの空間で、どのように輝くのかを楽しみにしています。ここでの日々は、まるで最高の映画を観ているかのような、美しい瞬間の連続でしょう。あなたの新しい物語が、ここ二番町テラス 1102で始まることを、心から願っています。
バイブルスコア
バイブルスコア: 17.7
高級な物件でない場合は割高な物件です。。
※バイブルスコア詳細はこちら
バイブルスコアとは独自のAI機械学習技術を利用した物件評価システムで、物件のおすすめ度を示します。最高得点は100点で、スコアが高いほど、よりおすすめの物件と評価されています。
写真
契約条件
| 賃料 | 予想金額:920,000〜940,000円程度 | 管理費 | 予想金額:0〜2,000円程度 |
| 礼金 | 非公開(アーカイブ) | 敷金 | 非公開(アーカイブ) |
| フリーレント | なし | 平米数 | 143.61㎡ |
| 間取り | 3LDK | 大型収納 | 2WIC+SIC+N |
| 契約期間 |
| 方角 | 北 / 東 |
| 更新料 | 契約形態 | 普通賃貸借契約 | |
| 取引態様 | 媒介 | 内見状況 | 入居中 |
| 入居時期 | 入居中 | SOHO・事務所 | 事務所(SOHO)可 |
| ペット | ペット可 | 間取り内訳 | LD=18.3J / K=5.3J / BR=12.7J / BR=8.9J / BR=7.9J |
| キャンペーン情報・備考 | 本情報は賃料改定交渉の資料作成、収益物件の利回り試算、周辺エリアや最寄り駅の坪単価分析、次回募集開始時期の予測などにご活用いただけます。 | ||
※「どの不動産に頼めばいいのか分からない」「信頼できる営業マンの話を聞きたい」「一番親切な会社と契約したい」とお悩みの方におすすめなのが「高級賃貸バイブル」です。
高級賃貸バイブルは業界10年以上の熟練スタッフ群がお客様ファーストで対応します。
下記ボタンから、まずは無料でご相談下さい。
※内覧をご希望の際には、どうぞ物件のエントランス前にてお待ち合わせくださいませ。ご内覧後は、同じ場所でお別れとさせていただきます。お客様のご都合に合わせたスムーズなご案内を心がけておりますので、ご質問等がございましたら何なりとお申し付けください。 物件概要
| 物件名 |
| 築年月 |
|
|---|---|---|---|
| 所在地 | |||
| 交通 | |||
| 総戸数 |
| 総階数 |
|
| 構造 |
| ||
地図
物件までの道のりは、「拡大地図を表示」をクリックしてナビ機能をご利用ください。
部屋設備



















建物設備

24時間管理

TVモニターホン

エレベーター

オートロック

バイク置場

フィットネス

フロントサービス

宅配ボックス

敷地内ゴミ置場

管理人

駐車場平置き

駐車場機械式

駐輪場
二番町テラスの現在募集中のお部屋
- 二番町テラス 915 - 間取り: 2SLDK+WIC - 賃料: 94万円
- 二番町テラス 1209 - 間取り: 3LDK+WIC - 賃料: 129.9万円
- 二番町テラス 1004 - 間取り: 2LDK+WIC+SIC - 賃料: 109万円




















