
| 賃料 | 予想金額:490,000〜510,000円程度 | 管理費 | 予想金額:0〜2,000円程度 |
| 礼金/敷金 | 非公開(アーカイブ) | 平米数 | 90.72㎡ |
| 初期費用概算(参考) | 目安:1,791,500〜1,891,500 円 | みなし賃料(月額・参考) | 517,948〜537,948 円 |
| 備考 | 本ページは過去募集のアーカイブです。表示の金額は周辺相場・過去募集を踏まえた参考レンジであり、実際の契約金額・条件ではありません。 | ||
※上記みなし賃料(月額)は仲介手数料割引・無料&キャッシュバックを加味した高級賃貸バイブル限定の金額です。一般的なみなし賃料とは異なります。
【建物ページ】二番町テラスの詳細・最新空室はこちら▶▶選ばれる理由
仲介手数料無料・キャンペーン情報(毎月15名様限定)
〇仲介手数料割引キャンペーン
二番町テラス 1207の口コミ・レビュー
二番町テラス 1207は、まさに洗練された都市生活の象徴です。東京都千代田区の静寂と活気が交錯する二番町に佇むこの物件は、1207という数字が語る通り、空間の広がりを感じさせる90.72㎡の贅沢な専有面積を誇ります。西向きの窓からは、夕陽がゆっくりと街を染め上げる様が見渡せ、日が沈む頃には温かいオレンジ色の光が部屋の中に舞い込み、まるでゴールドのカーテンが広がるかのような感覚を味わえます。
あな…二番町テラス 1207は、まさに洗練された都市生活の象徴です。東京都千代田区の静寂と活気が交錯する二番町に佇むこの物件は、1207という数字が語る通り、空間の広がりを感じさせる90.72㎡の贅沢な専有面積を誇ります。西向きの窓からは、夕陽がゆっくりと街を染め上げる様が見渡せ、日が沈む頃には温かいオレンジ色の光が部屋の中に舞い込み、まるでゴールドのカーテンが広がるかのような感覚を味わえます。
あなたがこの邸宅に足を踏み入れる瞬間、心地よい風が微かに香る中庭の花々を思わせる香りが漂ってきます。この空間は、ただの居所ではなく、心を安らげ、癒すために設計された特別な場所なのです。リビングダイニングは13帖の広さを持ち、そこにはあなたの物語が編まれていくことでしょう。友人たちと共に過ごす心温まるディナーの後、微かな音楽が流れる中、窓から見える美しい夕陽に目を奪われる瞬間を想像してください。その時、時の流れを忘れ、まるで映画のワンシーンのように心に刻まれるでしょう。
二番町テラス 1207のキッチンは、3.9帖のスタイリッシュな空間です。ガスの火で料理が燻り立つシズル音が、家庭の温かさを呼び起こします。新鮮な食材を使った料理の香りが立ち上り、食卓を囲む際の期待感が膨らむのです。近くにある有名なマーケットから、旬の食材を選び抜く楽しみも、都会の暮らしの醍醐味と言えるでしょう。
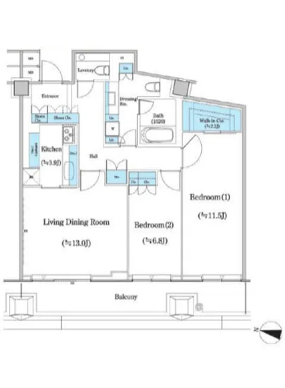
この邸宅には、11.5帖と6.8帖の二つのベッドルームが美しく配置されています。それぞれがプライベートな oasisとなり、穏やかな夢を見るための安らぎの空間を提供します。柔らかな灯りが溢れ、夜が訪れる頃には、心安らぐひと時をお約束します。目を閉じれば、静かな夜の中で小鳥のさえずりが耳に届き、まるで自然と共存しているかのような穏やかなひとときを感じることができます。
この物件の素敵な特長の一つは、24時間の管理体制やオートロック、フィットネス施設、フロントサービスといった充実した設備です。それは、あなたの快適さだけでなく、安心感も確保し、日常生活を特別なものへと昇華させます。宅配ボックスを利用することで、大切な荷物がいつでも受け取れる利便性も、都会生活の強い味方となります。
最寄駅の東京メトロ有楽町線麹町駅までは徒歩1分。まるであなたがこの街に溶け込むためのゆとりの道を用意されたかのように、通勤やお出かけが容易に感じられます。この場所からは、歴史的な建造物や洗練された文化施設へのアクセスは言うまでもなく、あなたの生活を豊かに彩る無限の可能性が広がっています。
二番町テラス 1207は、あなたの新たな人生の舞台を提供する、まるで夢のような空間です。この特別な場所で、心躍る日々と甘美な瞬間を重ねていくことを、私たちは心から願っております。新しい生活が、きっとあなたの人生にとってかけがえのないものとなることでしょう。
あな…二番町テラス 1207は、まさに洗練された都市生活の象徴です。東京都千代田区の静寂と活気が交錯する二番町に佇むこの物件は、1207という数字が語る通り、空間の広がりを感じさせる90.72㎡の贅沢な専有面積を誇ります。西向きの窓からは、夕陽がゆっくりと街を染め上げる様が見渡せ、日が沈む頃には温かいオレンジ色の光が部屋の中に舞い込み、まるでゴールドのカーテンが広がるかのような感覚を味わえます。
あなたがこの邸宅に足を踏み入れる瞬間、心地よい風が微かに香る中庭の花々を思わせる香りが漂ってきます。この空間は、ただの居所ではなく、心を安らげ、癒すために設計された特別な場所なのです。リビングダイニングは13帖の広さを持ち、そこにはあなたの物語が編まれていくことでしょう。友人たちと共に過ごす心温まるディナーの後、微かな音楽が流れる中、窓から見える美しい夕陽に目を奪われる瞬間を想像してください。その時、時の流れを忘れ、まるで映画のワンシーンのように心に刻まれるでしょう。
二番町テラス 1207のキッチンは、3.9帖のスタイリッシュな空間です。ガスの火で料理が燻り立つシズル音が、家庭の温かさを呼び起こします。新鮮な食材を使った料理の香りが立ち上り、食卓を囲む際の期待感が膨らむのです。近くにある有名なマーケットから、旬の食材を選び抜く楽しみも、都会の暮らしの醍醐味と言えるでしょう。
この邸宅には、11.5帖と6.8帖の二つのベッドルームが美しく配置されています。それぞれがプライベートな oasisとなり、穏やかな夢を見るための安らぎの空間を提供します。柔らかな灯りが溢れ、夜が訪れる頃には、心安らぐひと時をお約束します。目を閉じれば、静かな夜の中で小鳥のさえずりが耳に届き、まるで自然と共存しているかのような穏やかなひとときを感じることができます。
この物件の素敵な特長の一つは、24時間の管理体制やオートロック、フィットネス施設、フロントサービスといった充実した設備です。それは、あなたの快適さだけでなく、安心感も確保し、日常生活を特別なものへと昇華させます。宅配ボックスを利用することで、大切な荷物がいつでも受け取れる利便性も、都会生活の強い味方となります。
最寄駅の東京メトロ有楽町線麹町駅までは徒歩1分。まるであなたがこの街に溶け込むためのゆとりの道を用意されたかのように、通勤やお出かけが容易に感じられます。この場所からは、歴史的な建造物や洗練された文化施設へのアクセスは言うまでもなく、あなたの生活を豊かに彩る無限の可能性が広がっています。
二番町テラス 1207は、あなたの新たな人生の舞台を提供する、まるで夢のような空間です。この特別な場所で、心躍る日々と甘美な瞬間を重ねていくことを、私たちは心から願っております。新しい生活が、きっとあなたの人生にとってかけがえのないものとなることでしょう。
バイブルスコア
バイブルスコア: 32.3
平均的なスコアです。
※バイブルスコア詳細はこちら
バイブルスコアとは独自のAI機械学習技術を利用した物件評価システムで、物件のおすすめ度を示します。最高得点は100点で、スコアが高いほど、よりおすすめの物件と評価されています。
写真
契約条件
| 賃料 | 予想金額:490,000〜510,000円程度 | 管理費 | 予想金額:0〜2,000円程度 |
| 礼金 | 非公開(アーカイブ) | 敷金 | 非公開(アーカイブ) |
| フリーレント | なし | 平米数 | 90.72㎡ |
| 間取り | 2LDK | 大型収納 | WIC |
| 契約期間 |
| 方角 | 西 |
| 更新料 | 契約形態 | 普通賃貸借契約 | |
| 取引態様 | 媒介 | 内見状況 | 入居中 |
| 入居時期 | 入居中 | SOHO・事務所 | 事務所(SOHO)可 |
| ペット | ペット可 | 間取り内訳 | LD=13J / K=3.9J / BR=11.5J / BR=6.8J |
| キャンペーン情報・備考 | 本情報は賃料改定交渉の資料作成、収益物件の利回り試算、周辺エリアや最寄り駅の坪単価分析、次回募集開始時期の予測などにご活用いただけます。 | ||
※「どの不動産に頼めばいいのか分からない」「信頼できる営業マンの話を聞きたい」「一番親切な会社と契約したい」とお悩みの方におすすめなのが「高級賃貸バイブル」です。
高級賃貸バイブルは業界10年以上の熟練スタッフ群がお客様ファーストで対応します。
下記ボタンから、まずは無料でご相談下さい。
※内覧をご希望の際には、どうぞ物件のエントランス前にてお待ち合わせくださいませ。ご内覧後は、同じ場所でお別れとさせていただきます。お客様のご都合に合わせたスムーズなご案内を心がけておりますので、ご質問等がございましたら何なりとお申し付けください。 物件概要
| 物件名 |
| 築年月 |
|
|---|---|---|---|
| 所在地 | |||
| 交通 | |||
| 総戸数 |
| 総階数 |
|
| 構造 |
| ||
地図
物件までの道のりは、「拡大地図を表示」をクリックしてナビ機能をご利用ください。
部屋設備

















建物設備

24時間管理

TVモニターホン

エレベーター

オートロック

バイク置場

フィットネス

フロントサービス

宅配ボックス

敷地内ゴミ置場

管理人

駐車場平置き

駐車場機械式

駐輪場
二番町テラスの現在募集中のお部屋
- 二番町テラス 915 - 間取り: 2SLDK+WIC - 賃料: 94万円
- 二番町テラス 1209 - 間取り: 3LDK+WIC - 賃料: 129.9万円
- 二番町テラス 1004 - 間取り: 2LDK+WIC+SIC - 賃料: 109万円




















